
새롭게 문을 연 버밍엄 대학 학습관은 교내의 부족한 강의공간을 확보하는 동시에 소통의 중심장소로 제안된다. 격자 형상과 연속적인 수직형상은 건물의 독특한 이미지를 만들어 낸다.
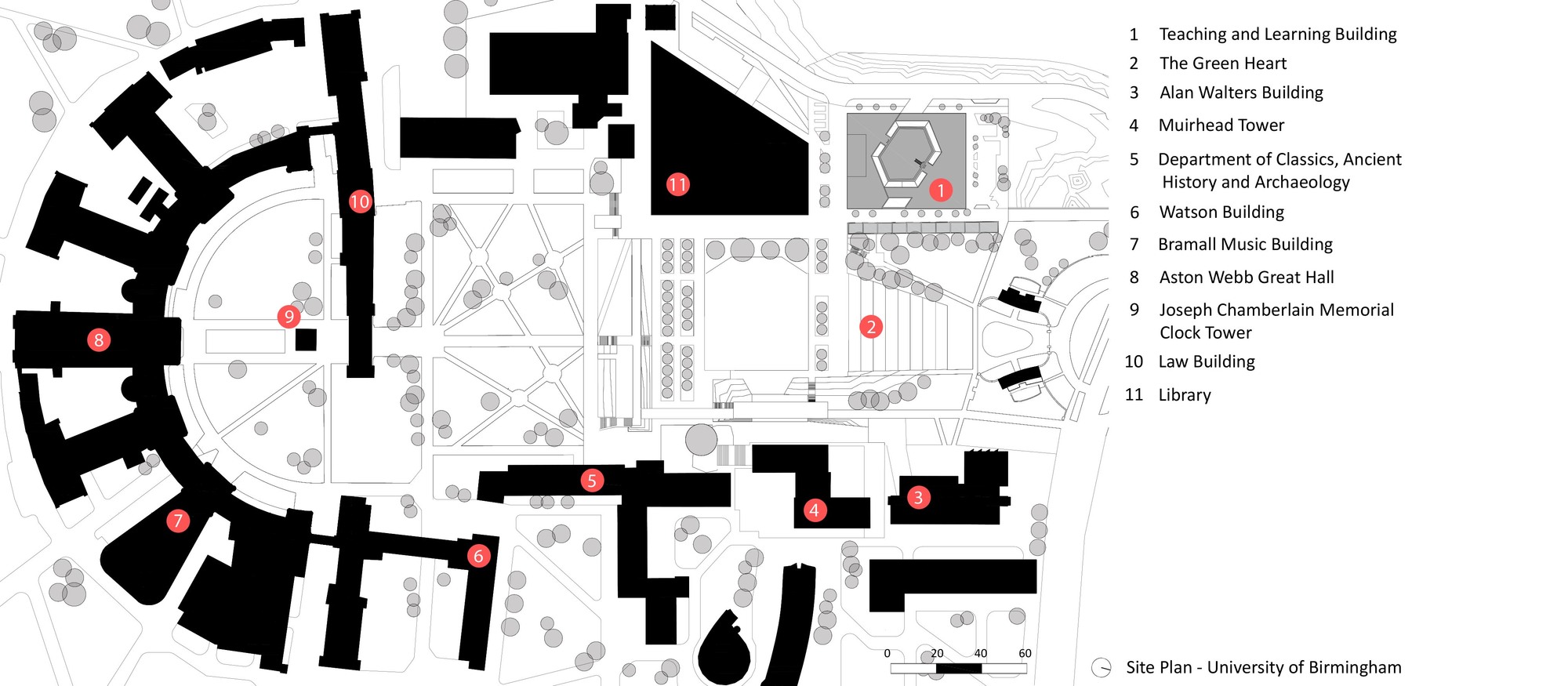
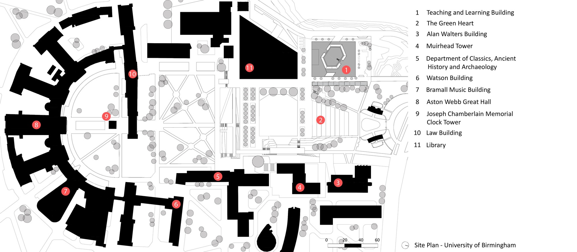
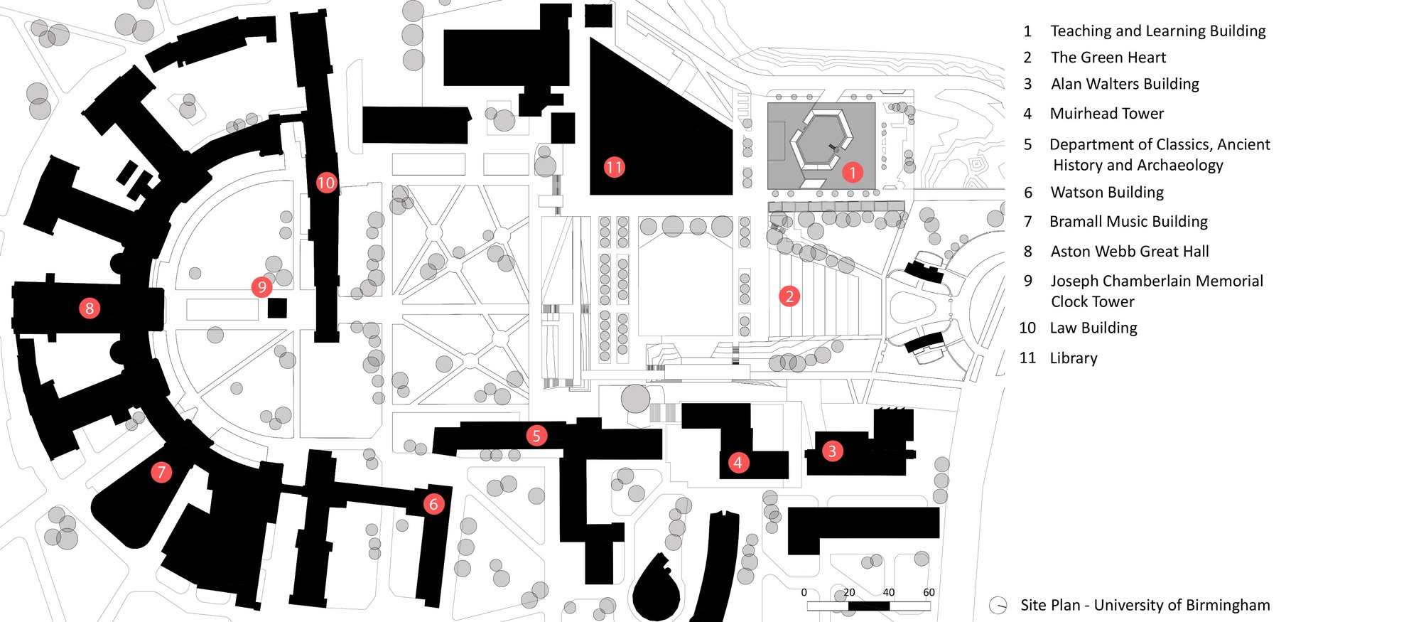
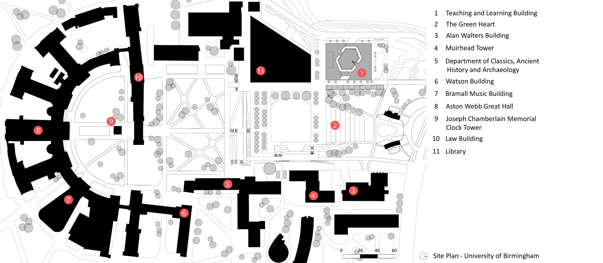
The University of Birmingham commissioned BDP in March 2017 to construct a new flagship education facility to enable and encourage cutting-edge teaching and learning. The role of the building is to mitigate the challenges posed by increasing student numbers and to increase the quality of the learning spaces offered in a Higher Education environment, where students see themselves as ‘consumers’ as much as ‘learners’. The building is part of the University’s continued investment in the quality of the student experience, providing teaching and social learning spaces that will accommodate the growth in student numbers.
Beyond term time, the building will also host large academic conferences. Creating stimulating and rewarding student experience Supporting the University’s continued development of the ‘Green Heart’ of its city centre campus, the Teaching and Learning Building creates a distinct new learning environment, promoting progressive learning techniques through a portfolio of new and vibrant learning, teaching, and study environments (both formal and informal), together with integral café facilities, designed to encourage interaction between student peers and staff members.
The primary feature of this building is a variety of teaching spaces clustered around two new lecture theatres, a 500 seat traditional lecture theatre, and a 250 seat interactive lecture theatre. An array of smaller seminar and self-directed learning spaces wrap around the lecture theatres and are designed to encourage students to inhabit the building beyond the formal timetable, promoting University of Birmingham’s idea of a ‘sticky’ campus, an important aspect as the student profile changes to more part-time and professional development courses.





















from archdaily
'Culture' 카테고리의 다른 글
| *헬싱키 스쿨 프로젝트 [ AOR Architects ] Jätkäsaari Comprehensive School (0) | 2021.02.18 |
|---|---|
| *붉은벽돌 스포츠센터 [ Galfetti ] Camp del Ferro Sports Center (0) | 2021.02.13 |
| *푸른고래 [ OPEN Architecture ] Pinghe Bibliotheater (0) | 2021.01.25 |
| *메타볼리즘 스페인 문화재연구소[ Fernando Higueras ] Spanish Cultural Heritage Institute (0) | 2021.01.05 |
| *백색 아치회랑 pablo millán (0) | 2020.12.30 |