
자연으로 초대. 정적인 숲속 한가운데 위치한 작은 리조트 시설은 바쁜 도시생활에서 찾을 수 없는 행복한 느림을 선사흔 장소입니다. 숙박객들이 머무는 박공지붕형태의 3개의 파빌리온과 부대시설로 이루어져 있습니다. 재료 본연의 물성을 표현할 수 있도록 디자인 방향은 단순하면서도 거칠게 구성됩니다. 하지만 그 속에서 가장 따뜻한 자연미를 느낄 수 있도록 안락함을 제공합니다.
Ziedlejas is a wellness resort or ‘Latvian nature spa’ in Krimulda parish, Latvia made for a slow, immersive break away from the crowds. The owners aspire to keep the tradition alive while adapting it to meet modern needs. So, for example, the saunas are fundamentally true to custom yet aesthetically and ergonomically enhanced. The choice of materials – linen, wood, metal – is guided by nature and local heritage.
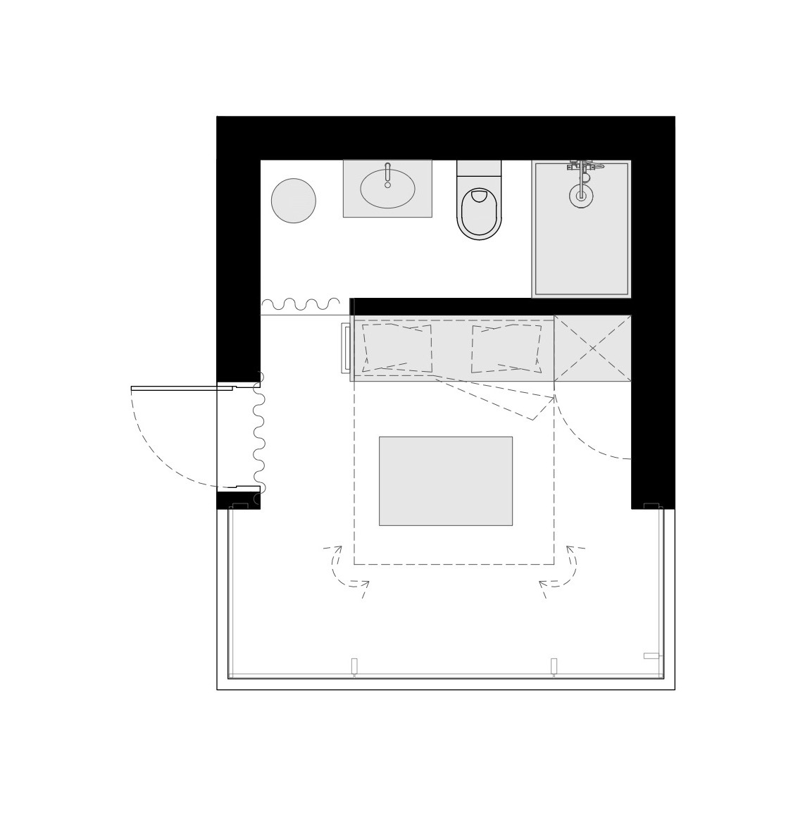
In 2020, three corten steel and glass cabins opened for guests to stay the night with nature in lieu of a TV screen. The cabins with fully glazed fronts are inherently adaptable and deliberately minimalist to encourage being mindful of the natural surroundings. Inspired by the tiny living movement and Japanese culture, Open AD designed custom furniture such as the foldaway double bed and pop-up tea table. Extra sleeping space is available on the mezzanine level. Each cabin has its own bathroom tucked into the secluded section. Besides the cabins, the terraced herb garden is a source of ingredients for tea blends and sauna ritual accessories.
Ziedlejas has been a work in progress from day one, but every new addition fits like a puzzle piece to complete the story. The collaboration between the owners, architecture and design team, landscape architect, and craftsmen involved has been key to the project’s success. Future plans include a third sauna building, events space, and reception area.






























from archdaily