
Patkau Architects-Polygon Gallery
두개의 원칙을 위해 건물은 독창적인 형상으로 지상으로 부터 부유합니다. 버라드만과 새로운 공공 광장을 위한 넓은 전망확보와 뱅쿠버 시티의 스카이라인과 동기화되는 건물 형상을 위해 리프트 업 합니다.
이러한 형상을 구현하는 톱니모양의 프로파일은 알루미늄 데크로 부터 확장된 스테인레스 스틸 레이어로 표현됩니다.
이 두개의 재료는 상호작용합니다. 사계절마다 다른게 입사하는 태양광에 따라 낮과 밤 그리고 아침과 저녁마다 서로 다른 분위기와 공간감을 형성합니다.
The Polygon Gallery is the rebirth of the Presentation House Gallery, which has been a passionately independent photography and media institution in North Vancouver for more than forty years. More site-maker than site response, the building stands at the front of urban waterfront renewal where infrastructure is reimagined and culture outgrows an industrial past.
The main mass of the building is lifted from the ground plane to provide open access to both a new public plaza and a wide view of the Vancouver skyline across Burrard Inlet. Its iconic saw-toothed profile is clad in layers of mirrored stainless steel beneath expanded aluminum decking. The interplay between the two materials gives the singular mass an ephemeral depth that shifts with seasonal sunlight and evening atmosphere.
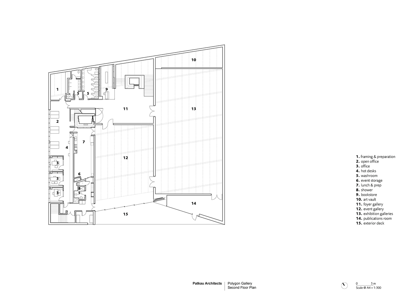
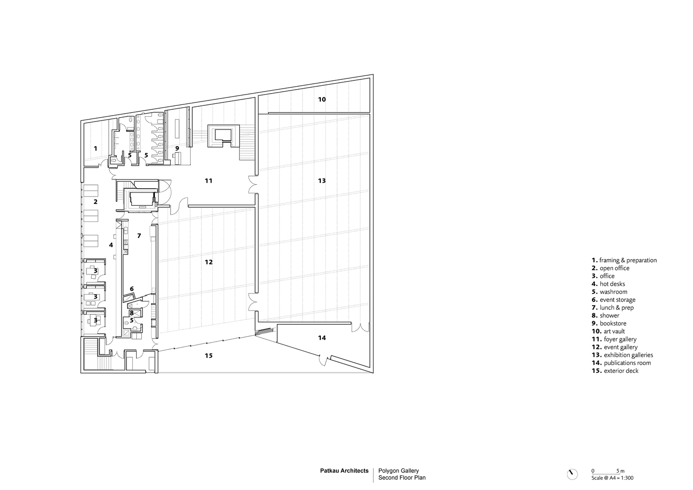
Gallery Director, Reid Shier requested gallery space free of obstacles, with floors and walls that can be cut into, ceilings from which anything could be hung in any position, access to power and media anywhere, lighting that can be natural or controlled. The main gallery is thus conceived as a ready instrument for creativity, more studio than a museum. The structural musculature of the building performs the dual purposes of lifting the gallery and providing a clear space, completely daylit from above with diffuse northern light, or darkened. A system of steel purlins provides a track for lighting, data, media, suspended works, and temporary partitions. The robust and easily patched oak flooring features a continuous central channel for ventilation, electrical, and data chases that give ready access to freestanding works and temporary partitions of any configuration.
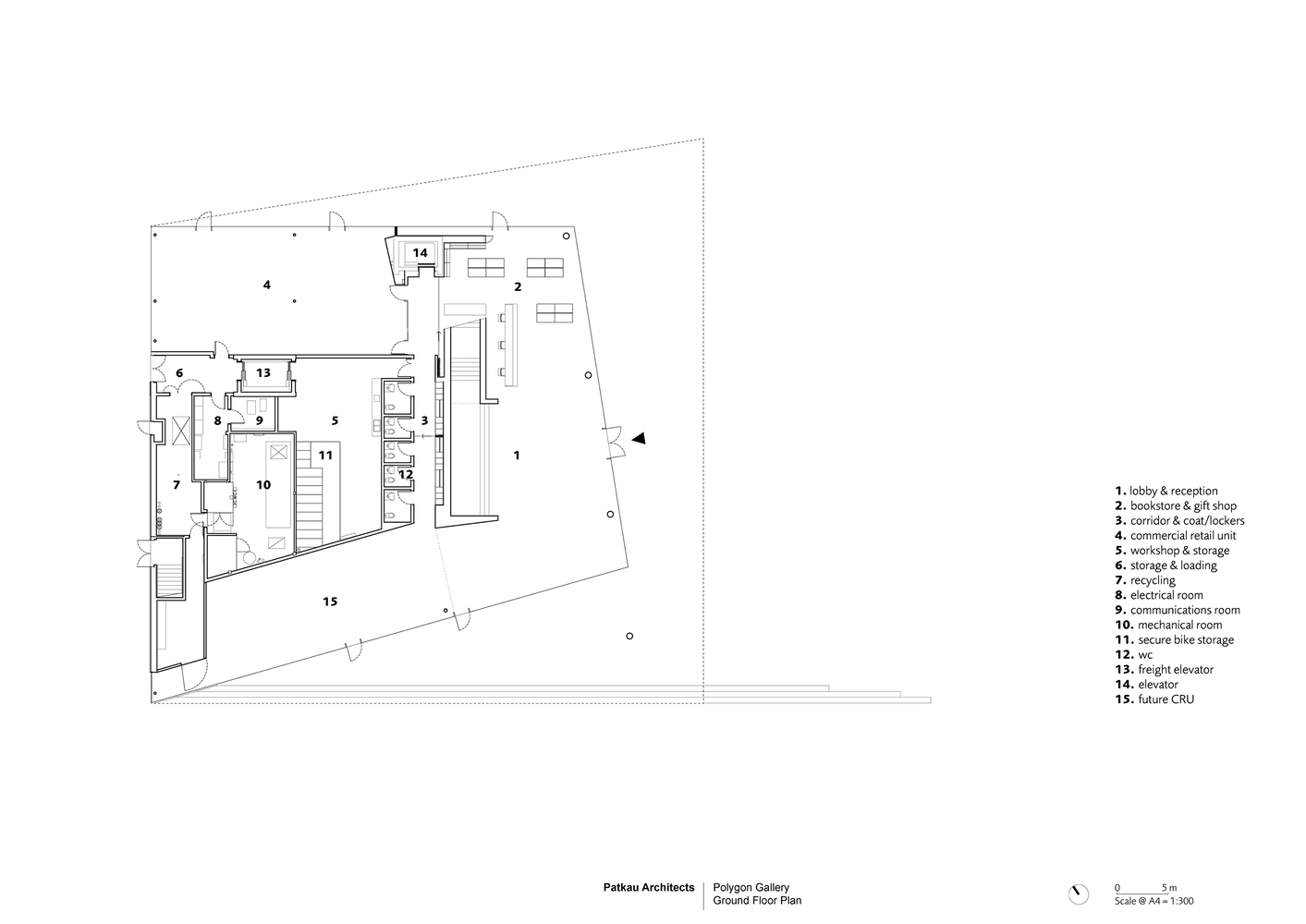
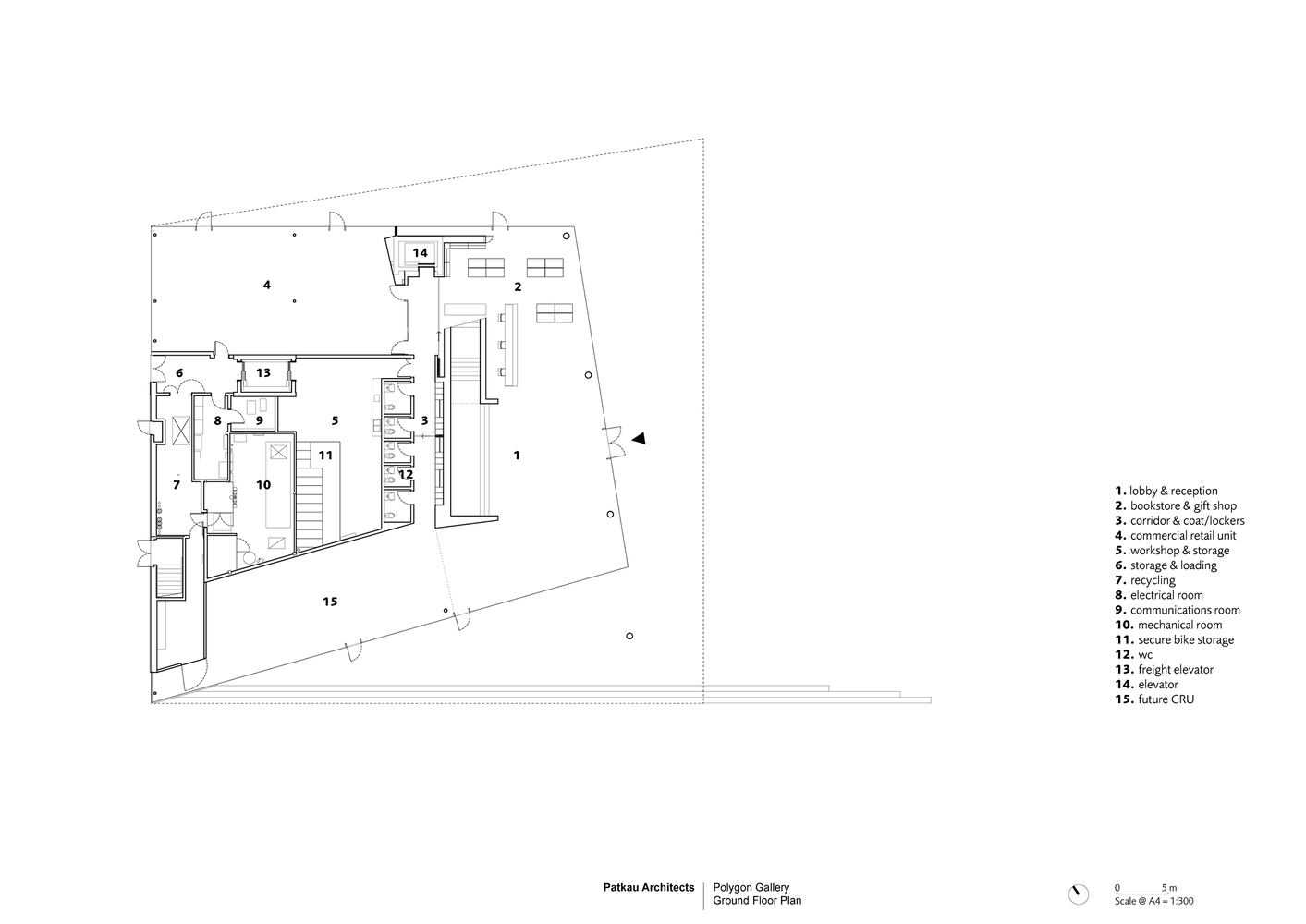
The upper level also contains a large flexible event gallery for education, outreach, and private functions. Its entire southern wall is an operable glazed panorama overlooking Burrard Inlet and Vancouver. In addition to the fully glazed entrance and lobby, the lower level supports small retail spaces, to help diversify waterfront development. These fine-grained street-level uses to make the building an attractor for the growing social life on the city’s waterfront and share the energy of the Gallery with the public space. The plaza, so activated by the Gallery, provides a new cultural node for North Vancouver, reinforcing a sense of local identity for a small city that neighbors a larger and more prominent one.

















from archdaily
'Culture' 카테고리의 다른 글
| *레크레이션 센터 [ Hopkins Architects + Sasaki ] Colby College Harold Alfond Athletics and Recreation Center (0) | 2021.08.04 |
|---|---|
| *마린타임 캐릭터 도서관 [ JKMM architects ] Kirkkonummi Library (0) | 2021.08.03 |
| *싼야 팜 랩 [ CLOU architects ] Sanya Farm Lab (0) | 2021.07.29 |
| *패시브 테라 센터 [ One University One Village Team ] Terra Centre (0) | 2021.07.16 |
| *페델클럽 [ Healy Partners Architects ] The Padel Club (0) | 2021.07.15 |