
Amelia Tavella Architectes-Convent Saint François
오래시간동안 파괴되어 방치 되었던 역사적인 건물의 일부분을 복원. 현재의 장소에 재현하는 프로젝트 입니다.
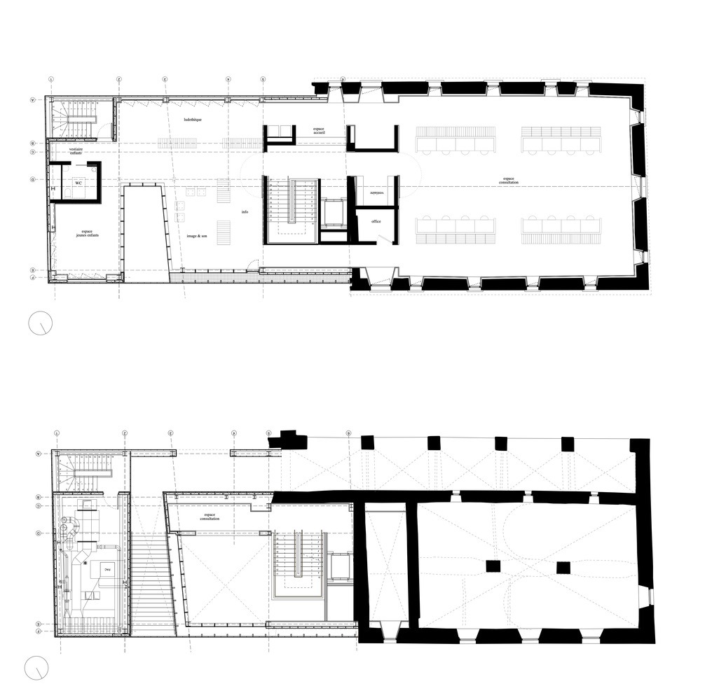
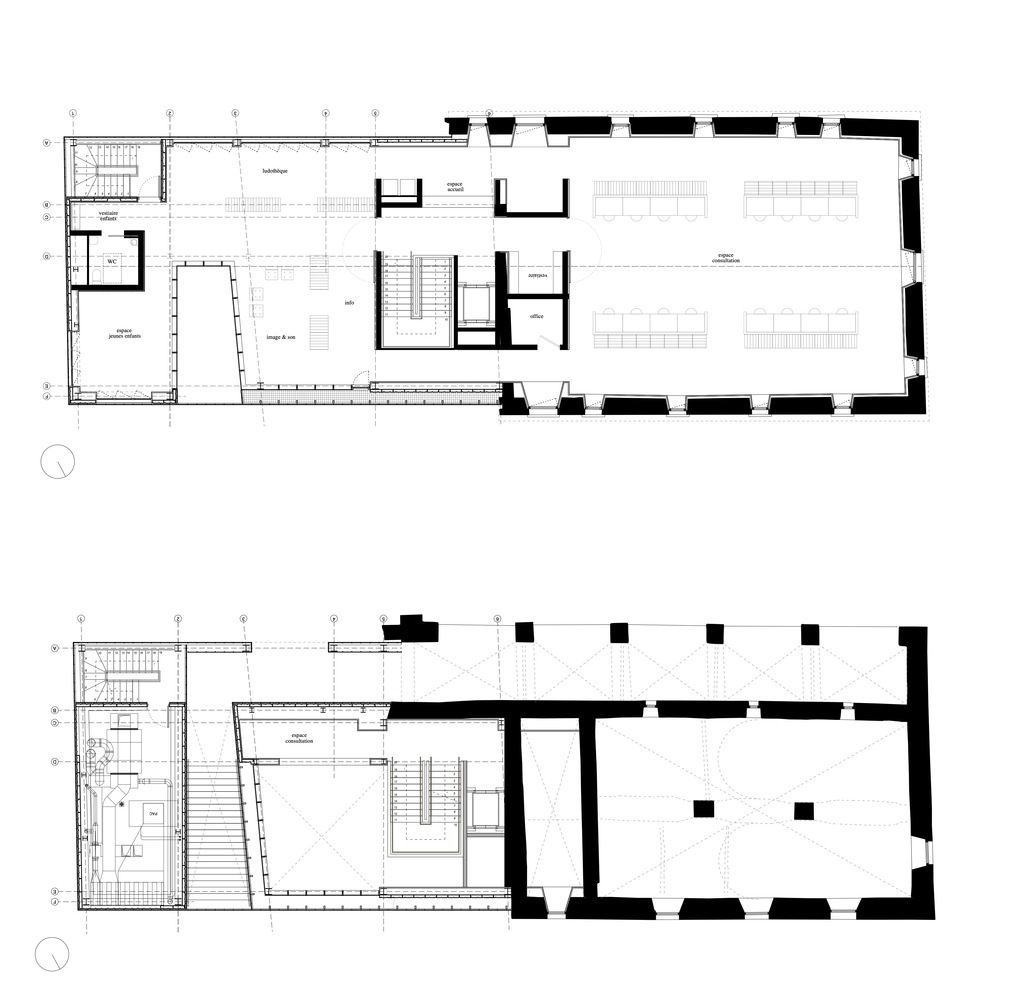
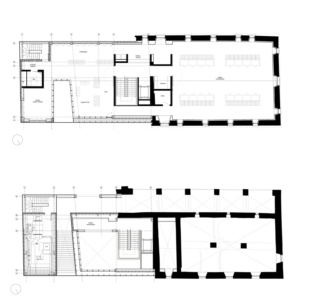
건축의 모습은 동질감을 유지하여, 공간의 사용성을 연속시키는 것과 달리, 기존 석재와 대비되는 스틸소재를 사용합니다.
이러한 디자인 어휘는 복원에 대해, 많은 생각이 들게 합니다. 현재에는 유효하지 않지만 과거의 모습을 그대로 재현하는 것이 유효한 것인지, 조금 다른 모습이라도, 원래의 취지를 계승하여 현재의 공간에 적합하게 만드는 것이 유효한 것인지는 생각해 볼 문제 입니다.
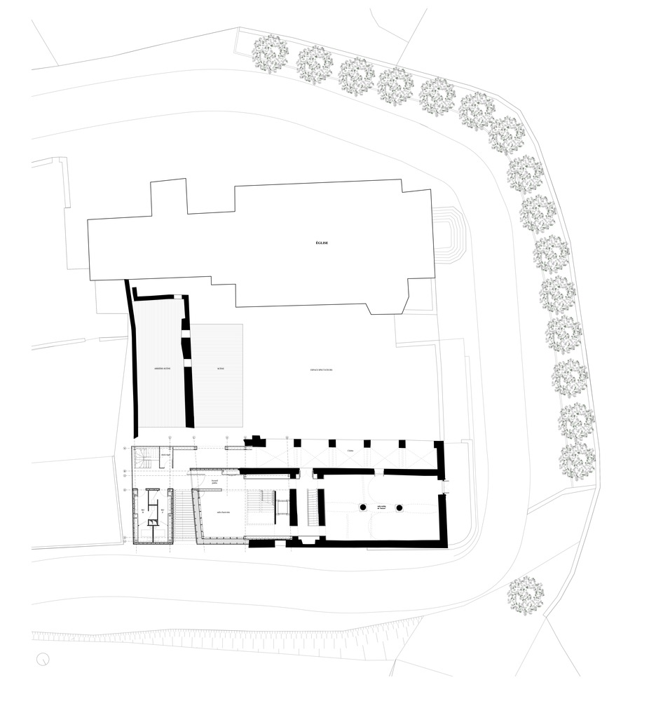
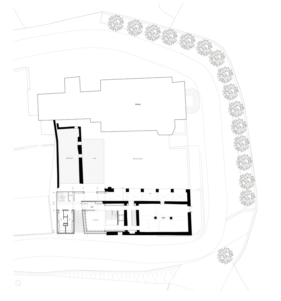
Amelia Tavella has just completed the rehabilitation and extension of the Convent Saint-François, in Santa-Lucia di Tallano, Corsica. This partially ruined building from 1480, a historical monument, had been abandoned for a very long time.
“I believe in higher and invisible forces. The Convent Saint-François, built in 1480, is part of this belief. Housed high up, on its promontory, it was a defensive castle before being a place of prayer, of retreat, chosen by monks aware of the absolute beauty of the site. Faith rallies to the sublime”
With his back to the cemetery, he overlooks the village he is watching. It has a front and a backstage. An olive grove is like a collar at its feet, a happy garden of heavenly food. In front of him, the spectacle of the Corsican mountains. Here pulses the heart of Alta Roca. The beauty there is religious, supernatural.
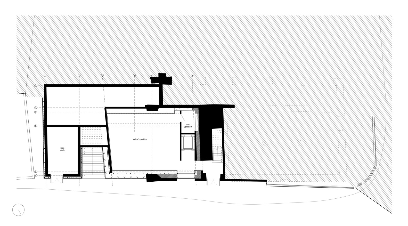
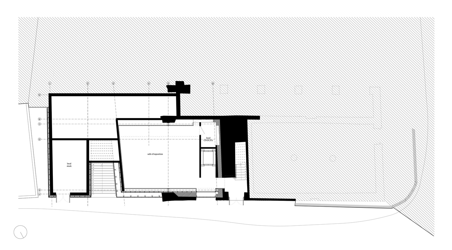
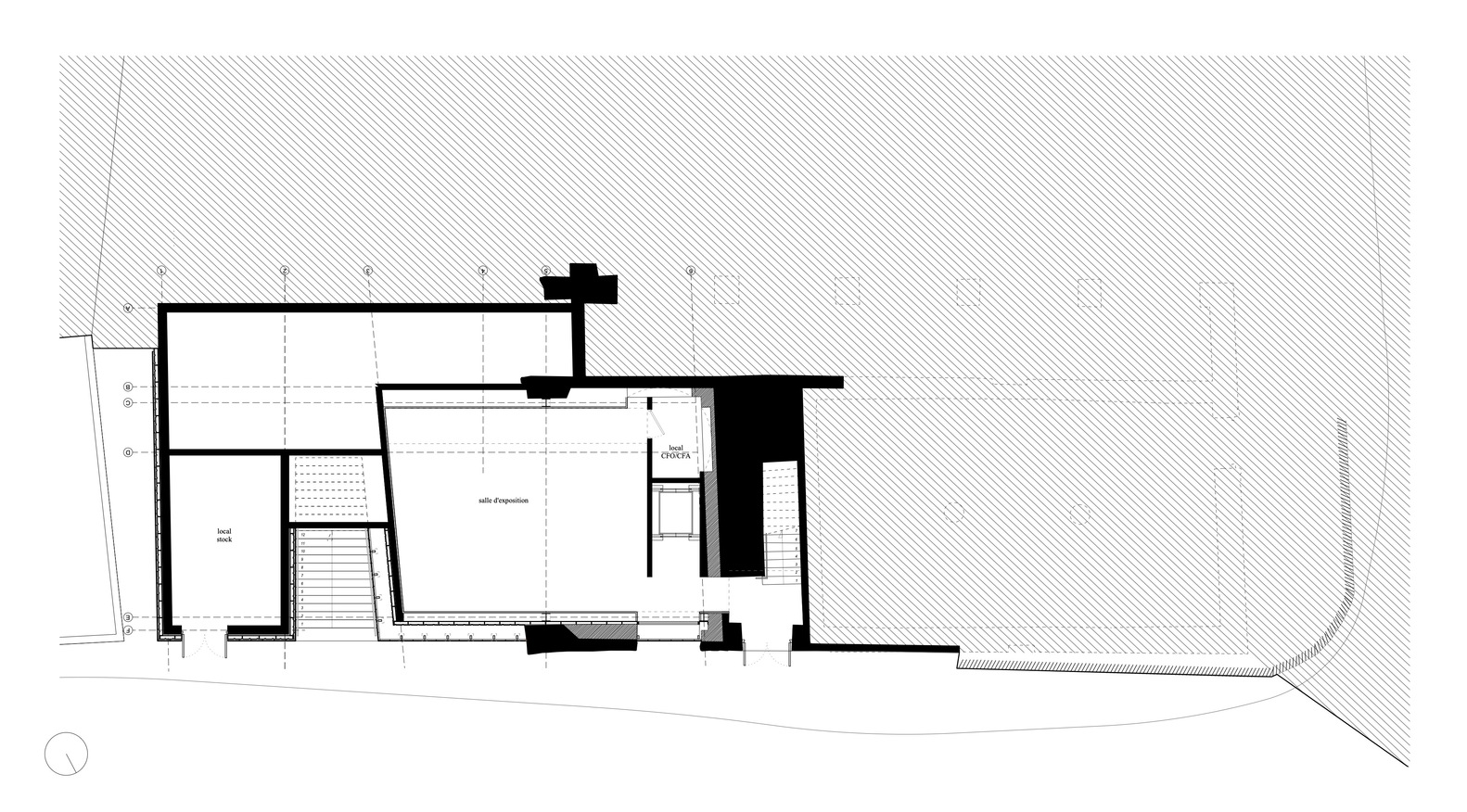
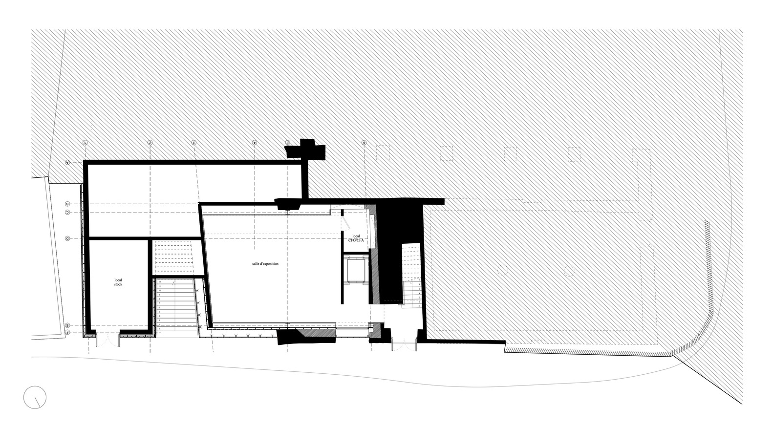
Nature has grown inside the building, Siamese nature slipped between the stones and then transformed into plant armor that protects against erosion and collapse. A fig tree is included in the facade. The wood, the roots become structural replaced the lime. An essential component of the historic monument, we have honored this nature which will have long protected the dormant building before its resurrection. Amelia Tavella has chosen to keep the ruins and replace the torn part, the phantom part, in copper work which will become the House of the Territory.





































from archdaily