
![]() |
![]() |
![]() |
![]() |
![]() |
0studio Arquitectura-Sal de Jade Restaurant
오스튜디오 아키텍츄라-살데자드 레스토랑
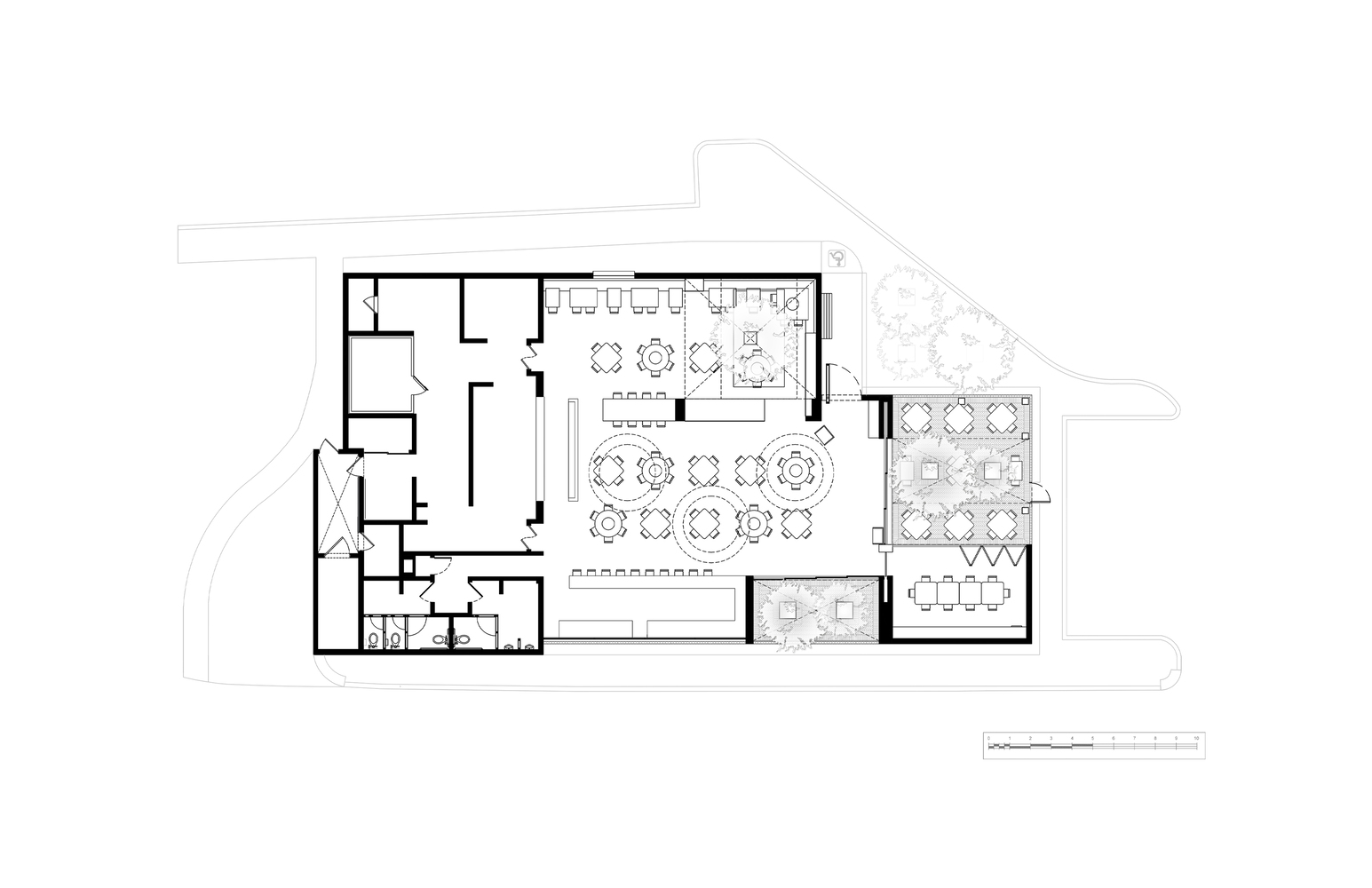
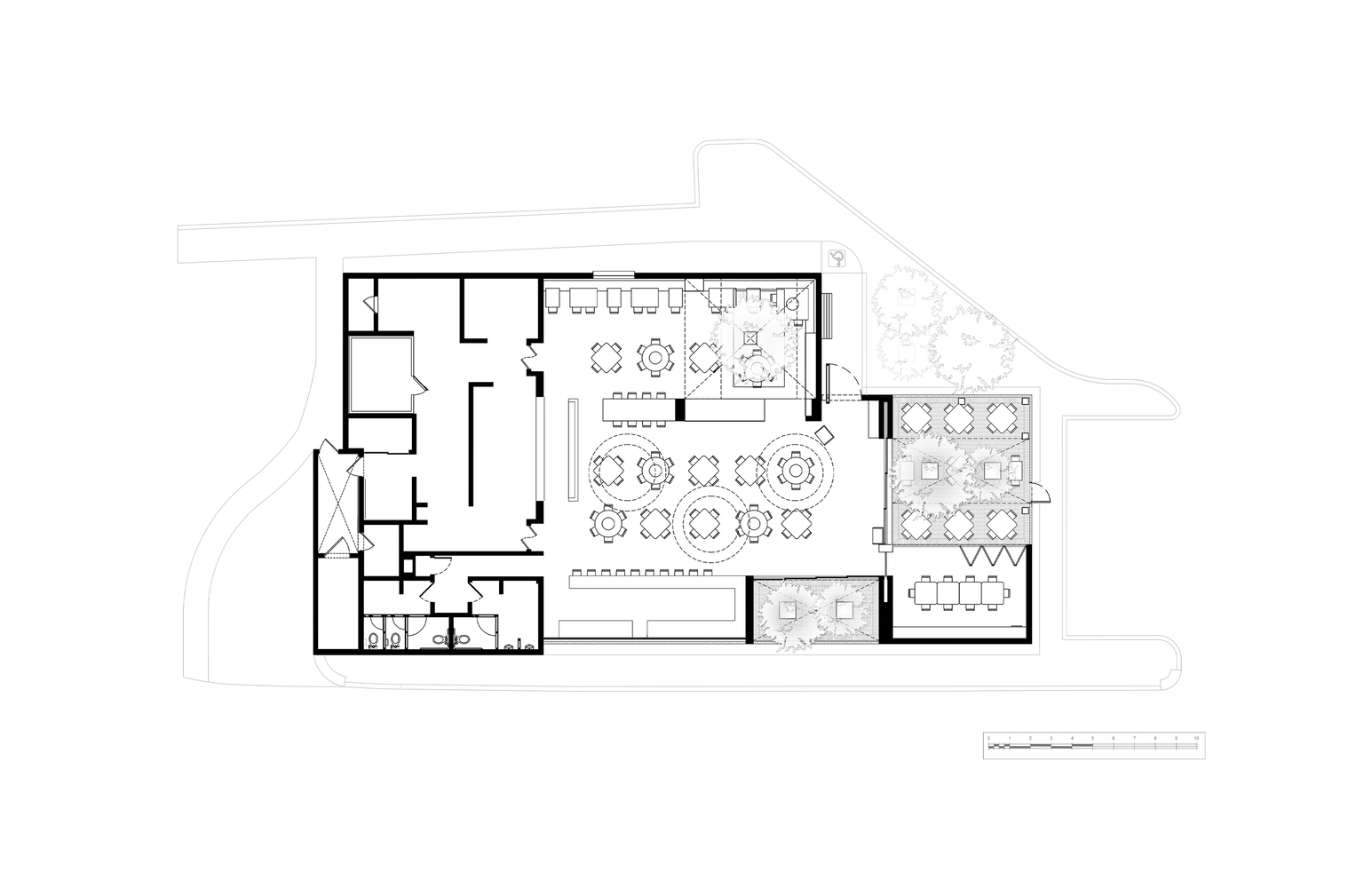
The configuration of the project was born from the intention to generate a simple volume with a pure orthogonal stroke. A monolith, that thanks to its materiality, its textures, and landscape, could represent the unique environment in which it is located.
In order for the interior to be fully alive, the atmospheres achieved by the proposed materials aim to provide an intimate experience for each of the visitors. Within the same space, different scenarios can be discovered, largely due to the transition of scales generated in a specific way by the nucleus at triple interior height. It not only cooperates in creating a great sensation of spatial amplitude but also transfers all the prominence to the shape of the monolith and transforms it into an iconic and unique volume on the city scale.

By developing the entire program on a single level, the building has a laterally incorporated space that plays an opposite role to the volume. The lattice seeks to give the user a permeable space with contact to the outside without losing privacy granted by the main volumetry.










살데자드 레스토랑 프로젝트
프로젝트의 디자인의도는 직교로 교차하는 선이 만드는 단순함과 순수성을 그대로 표현하는 건축에 있습니다. 질감, 풍경 그리고 물성을 통해 모놀리스(단일체)의 장중한 건축을 완성할 수 있었습니다.
from archdaily
'Commerce' 카테고리의 다른 글
| *로프삽 인테리어 [ JRA Jarousek.Rochova.Architekti ] Rope Shop Ujezd (0) | 2021.10.05 |
|---|---|
| *박공하우스 [ Delmulle Delmulle Architecten ] Factory Roof Houses (0) | 2021.09.20 |
| *푸 마이 가든 [ TAA DESIGN ] Phu My Garden (0) | 2021.07.13 |
| *커피와 블랙 [ Yiannis Pouspourikas Design Studio ] BLAC (0) | 2021.07.08 |
| *화웨이 플래그쉽 스토어 인 파리 [ Lonsdale ] Huawei’s First Flagship in France (0) | 2021.06.15 |




