
![]() |
![]() |
![]() |
Studio Puisto-Pistohiekka Resort
기존 나무들 사이로, 호수가 보이는 곳에 건축물이 보기 좋게 자리한다. 사이마 풍경과 조우하는 어두운 컬러의 외관은 밝고 화사한 내부 목재 인테리어와 대비를 이룬다.
사우나와 레스토랑의 연속되는 호숫가 풍경은 계단식 외부 데크에서 바라보는 풍경과 함께 주요한 공간적 경험을 제공한다.
이곳을 방문하는 손님들에게 고급 레스토랑의 식사와 여유로운 사우나를 제공한다.






















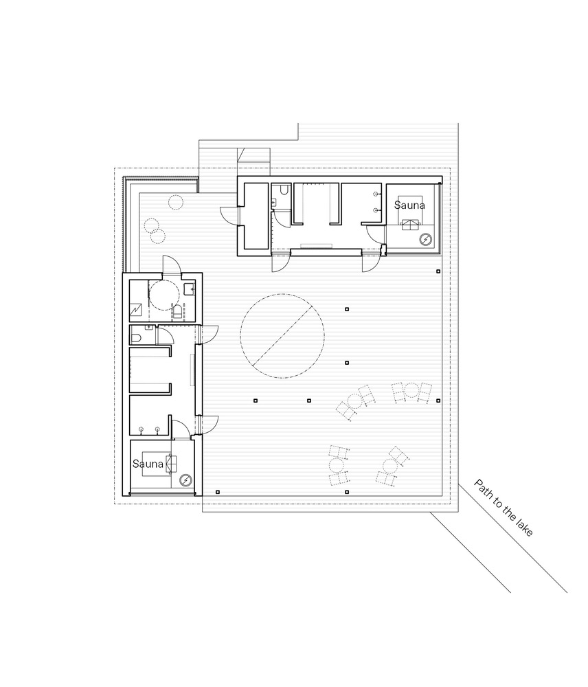
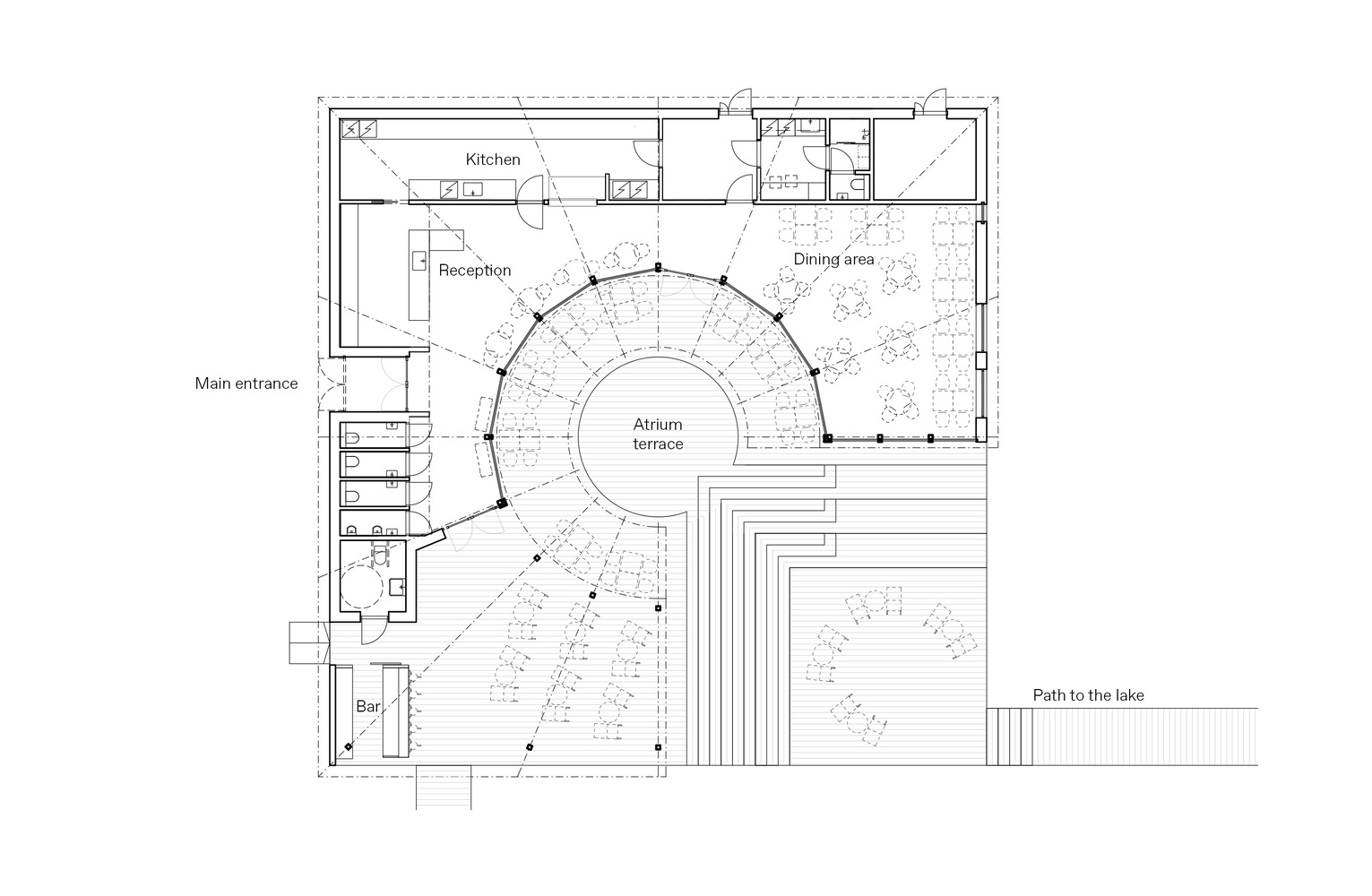
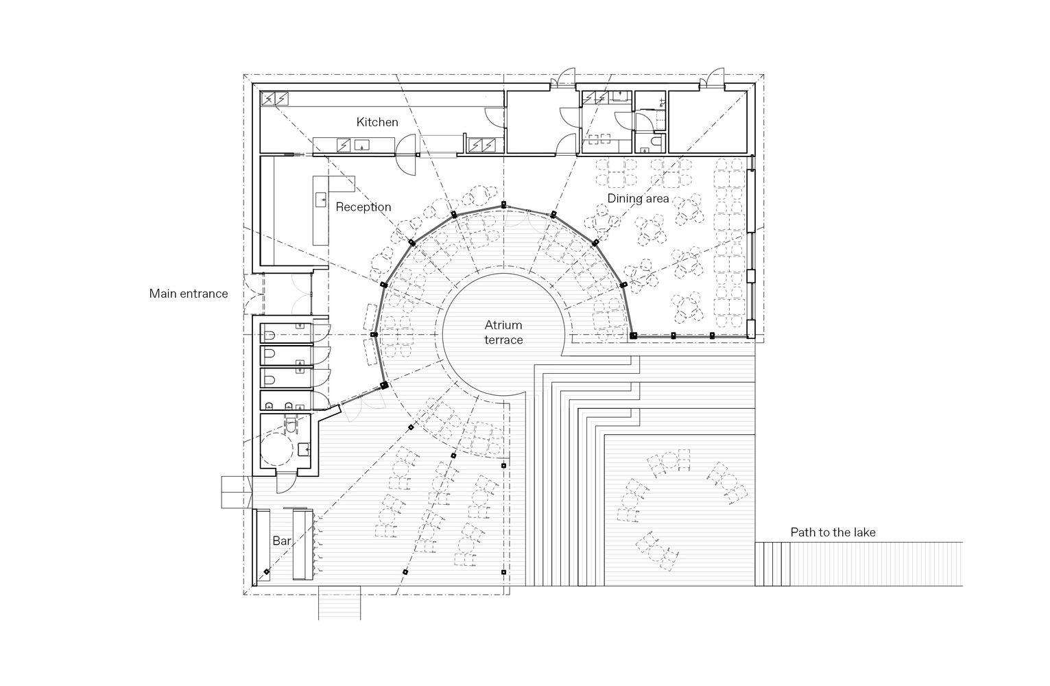
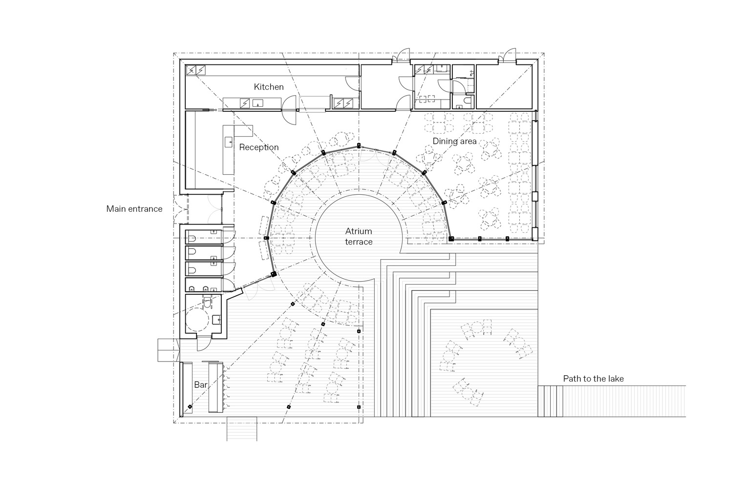
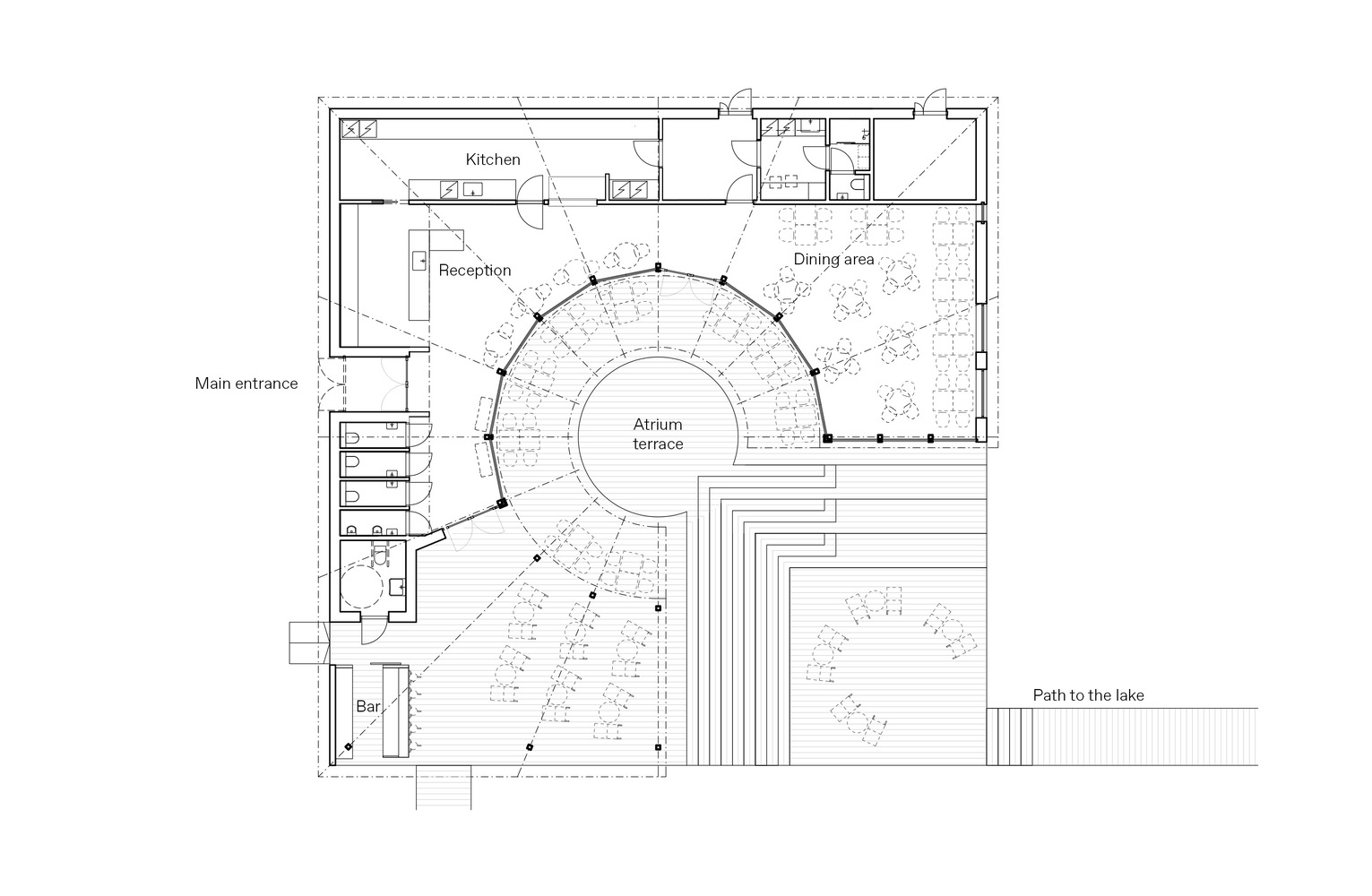
Pistohiekka sauna restaurant is the first step towards rebuilding the Pistohiekka resort area which flourished until the 1980s but has since disappeared. The project brings long-awaited services back to the area in the form of a lakeside sauna and a restaurant. Pistohiekka sauna-restaurant is one of the key development sites in Studio Puisto’s design for developing tourism and wood construction in Pistohiekka. The concept boasts a strong design aesthetic based on a central, curved outdoor space with the restaurant and sauna spaces spiraling around it.
The buildings are situated on a lakeside lot amongst existing trees where they blend into the delicate Saimaa scenery with their dark exteriors, contrasted by the inviting and warm light wooden interiors. In the sauna- the restaurant itself, the lakeside sceneries and terraced outdoor leisure areas play an important part. The guests can enjoy summertime sunsets between high-quality restaurant meals and leisurely lounging in the sauna.
The starting point for the Pistohiekka sauna restaurant was the magnificent location, situated between rocky areas in a tranquil cove. The set of buildings designed along with the overall development design for the area was refined together with the project owner into a unique overall concept highlighting the particular aspects of the area and making the resort a place worth visiting even from further away. With the different features of the area carefully considered in the placement of the buildings, the result is a concept where two buildings seem to invite the surrounding scenery in, creating exteriors and interiors where you can always admire the beautiful Saimaa scenery regardless of the weather.
The curved inner courtyard of the restaurant creates viewpoints both in and out of the building, and the covered sauna exteriors with a unique, round opening in the roof create a thematic link between the buildings. Thanks to a team of top professionals, the process from design to construction and all the way to the finished result went smoothly and quickly. The original concept truly shines in the end result thanks to the determination of the project owners and the skill level of the contractors.
from archdaily
'Hotel & Resort' 카테고리의 다른 글
| *레트로보다 클래식에 더 가깝게 Irina Kromayer designs Château Royal hotel to feel "authentic" rather than retro (0) | 2023.01.25 |
|---|---|
| *스테이 환기 [ DESIGN2TONE ] Hwangi (0) | 2023.01.16 |
| *몰디브 말다이브즈 리조트 Studio MK27 creates Patina Maldives resort on new island (0) | 2022.11.02 |
| *부티크 호텔 나인제로 [ Kimpton ] Nine Zero (0) | 2022.09.21 |
| *콘크리트의 조형미와 단순함 [ Ludwig Godefroy Architecture ] house To (0) | 2022.09.16 |


