
![]() |
![]() |
![]() |
Kiltro Polaris Arquitectura + WEWI Studio + JC Arquitectura-Edificio Domus Peepem 8.1
Domus Peepem 프로젝트는 새로운 주택공급과 도시재생을 통해 도시기능을 활성화 시키는데 목적을 둔다. 80년대 노동자들을 위한 저소득 주택지역에 버려진 장소를 재건한다. 거주자는 자녀가 없는 젊은 부부, 젊은 전문직 종사자, 비기너들과 새로운 주거 임대 공간 등, 다양한 프로필의 사람들이 접근, 거주할 수 있도록 한다.




























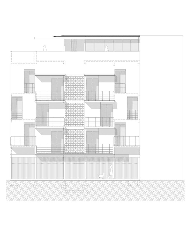
Domus Peepem is the latest in a series of interventions that, through new housing schemes and the regeneration of public space, aims to recover a portion of the urban fabric. It is located in Cancun, one of the most important tourist centers in the country, with marked socioeconomic contrasts. The central idea of these interventions has been to build sustainable buildings, with a social vocation, integrating instead of distancing.
The Donceles neighborhood is a neighborhood that was developed in the eighties as a group of low income housing for workers. After Hurricane Wilma (2005) it suffered considerable damage, which led to the abandonment of many homes and triggered a high degree of degradation. Domus Peepem, an addition to the previous interventions, seeks to reverse this deterioration. It is located on a corner, on an 88m2 lot, on one of the neighborhood's pedestrian walkways, and in front of an abandoned public space. This public space is recovered in order to transform it into a square and a completely renovated pedestrian walkway.
Domus Peepem was thought of as a place where people of different profiles can coexist: couples without children, young professionals, people starting a new stage in their lives, and tourists who rent through digital platforms. Not only do the residents of the neighborhood coexist with new inhabitants, but travelers of other nationalities as well. Interventions such as this have allowed, through private investment, the recovery of public space, for residents to participate and for new inhabitants to have efficient housing and high-quality public space.
The apartments, regardless of their size, are dignified, and well lit, with natural ventilation and a perception of spaciousness. In addition to the implementation of solar cells and motion sensors, various passive technologies guarantee the proper functioning of the home. On the last level, in a cool and illuminated common space for living together, protected by an apparent concrete slab, the context that surrounds the building can be appreciated: the views include the neighborhood, the sea, the neighboring golf course, the rooftops of other households.
from archdaily
'House' 카테고리의 다른 글
| *트리플렉스 빌라 [ Jingyu Space Research Laboratory ] Triplex Villa (12) | 2023.01.03 |
|---|---|
| *양배추 나무 집 [ Peter Stutchbury Architecture ] Cabbage Tree House_A Sky Ground Connection (0) | 2022.12.27 |
| *하우스 비 [ a2o designs ] House Be (0) | 2022.12.22 |
| *자연과 조화를 이루는 지속 가능한 주택 [ Breathe Architecture ] Edgars Creek House (12) | 2022.12.19 |
| *루프탑의 변신 펜트하우스 [ Estúdio Mangava ] BGN Penthouse (0) | 2022.12.13 |


