
![]() |
![]() |
![]() |
Studio Anne Holtrop-The 35 Green Corner Building: An Art Collection Storage Facility
스튜디오 앤 홀트롭이 설계한 그린 코너 빌딩은 샌드캐스트 구조 벽 요소와 독특한 미적 특징을 갖춘 시각적으로 놀랍고 환경을 고려한 디자인이 특징입니다. 외관은 건물의 얕은 깊이를 강조하고 대형 샌드캐스트 알루미늄 셔터로 보완했으며, 내부는 샌드캐스트 콘크리트 바닥 슬래브로 마감했습니다.




































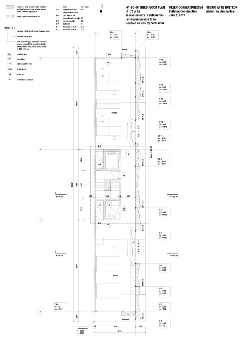
The Green Corner building, designed by Studio Anne Holtrop, features a visually stunning and environmentally conscious design with sand casted structural wall elements and unique aesthetic features. The facade emphasizes the building’s shallow depth and is complemented by large sand-casted aluminum shutters, while the interior features sand-casted concrete floor slabs.
Design and Construction with Sand-Casted Structural Walls
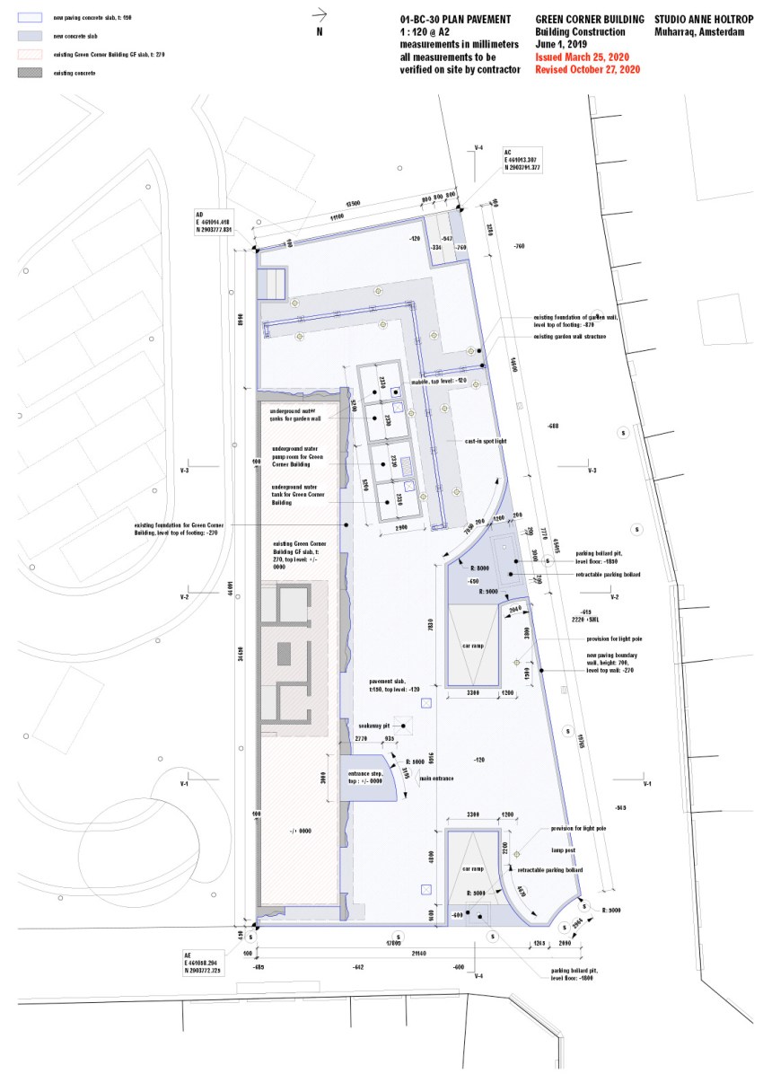
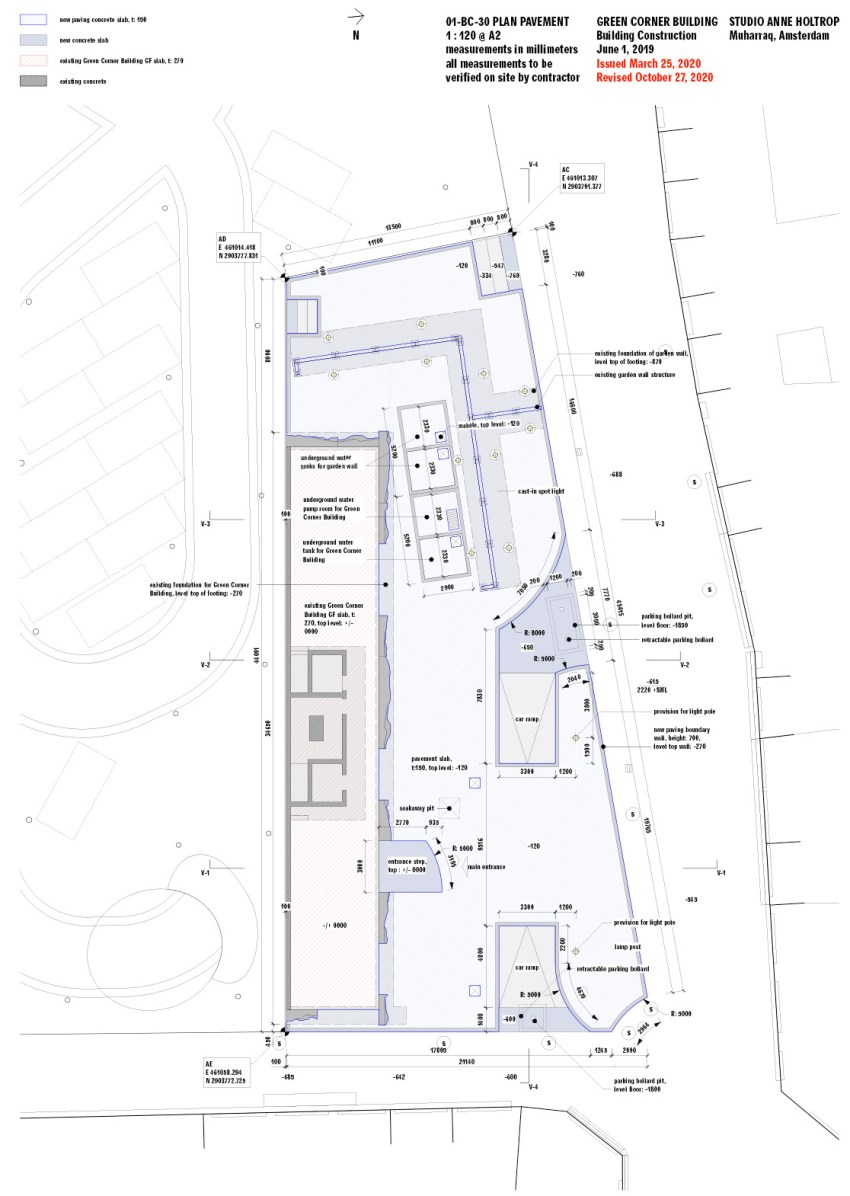
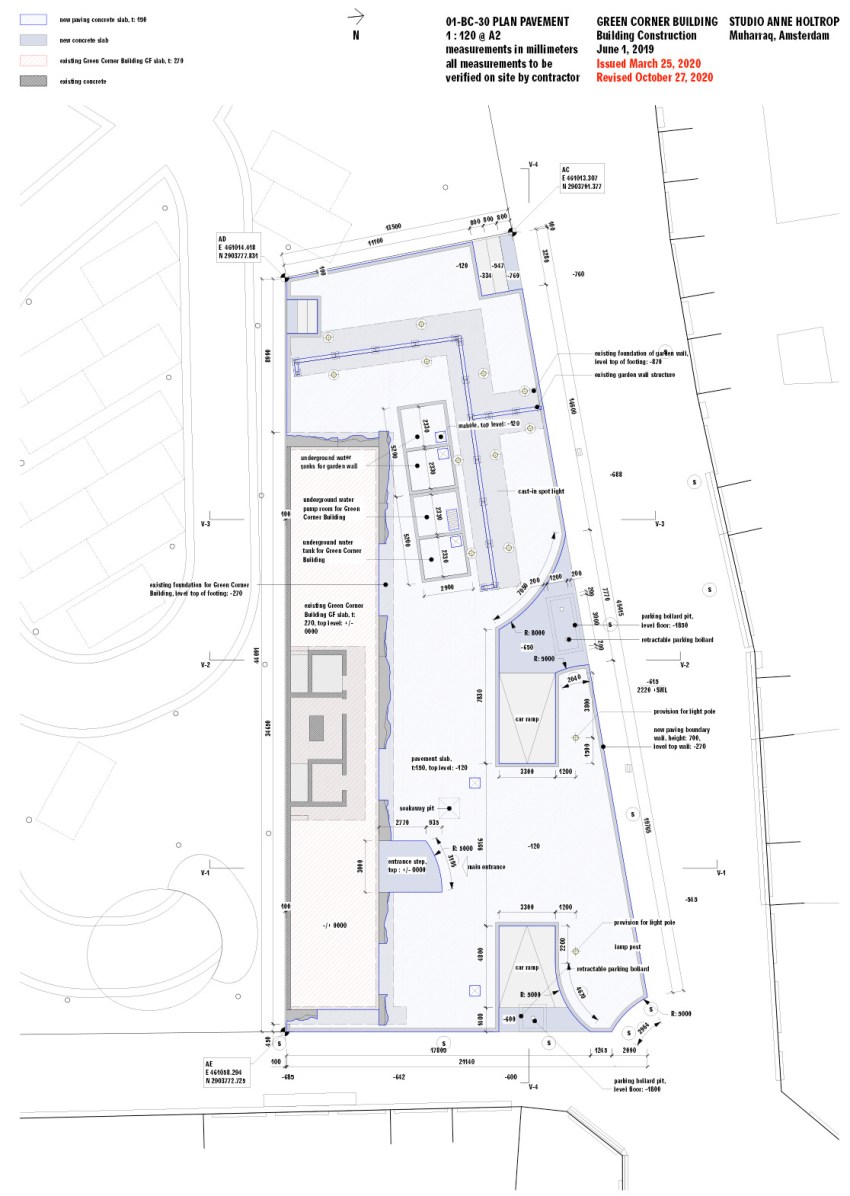
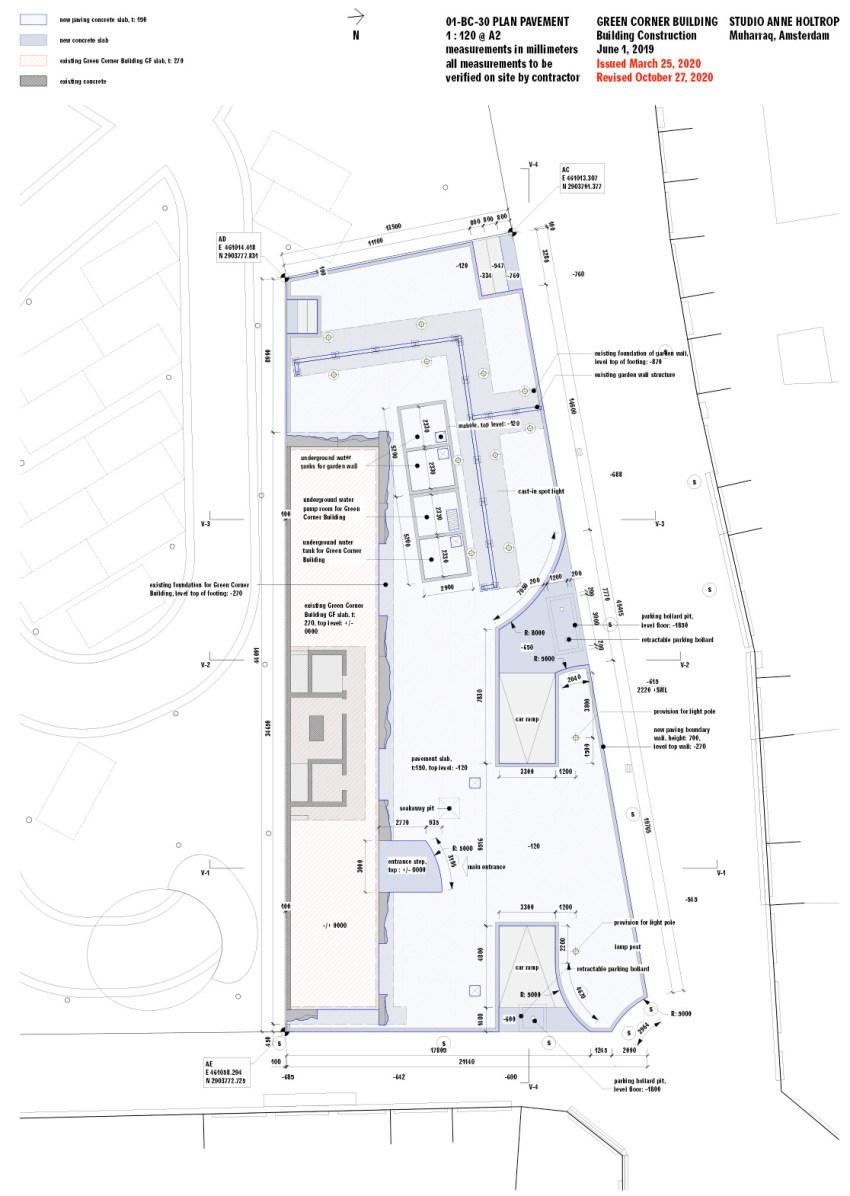
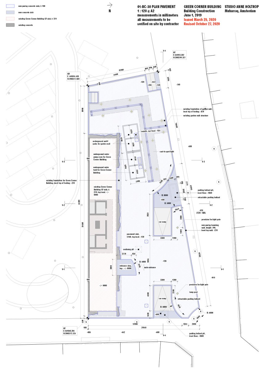
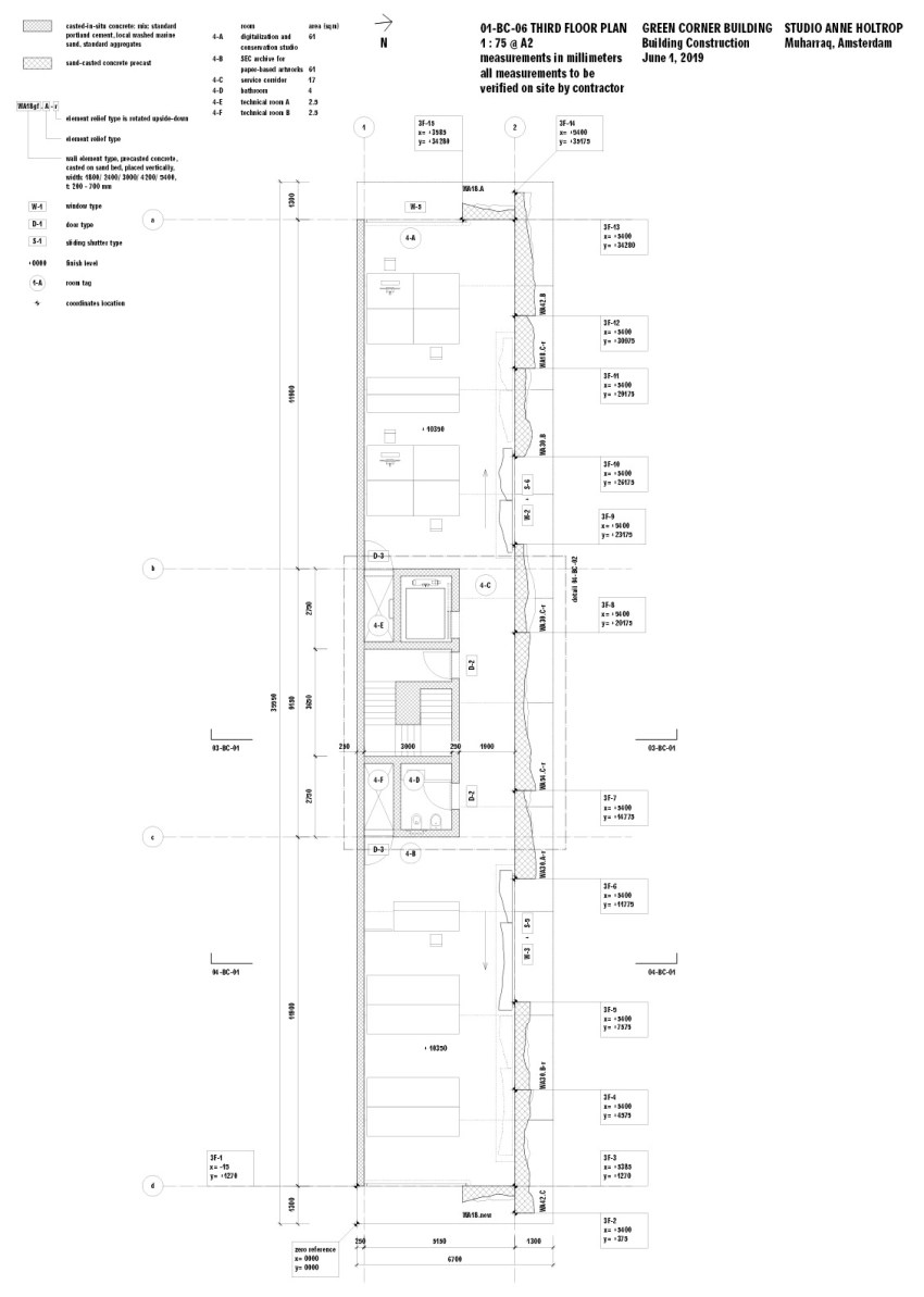
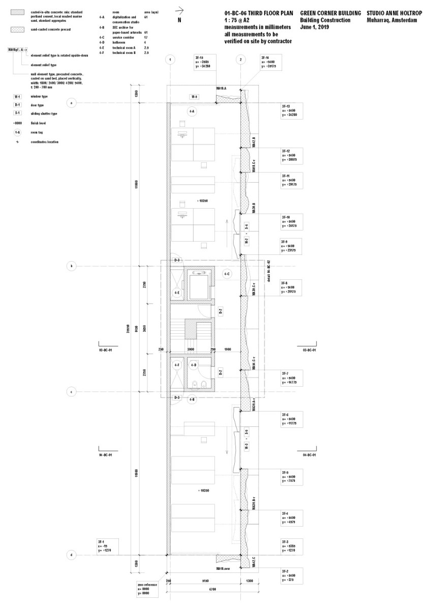
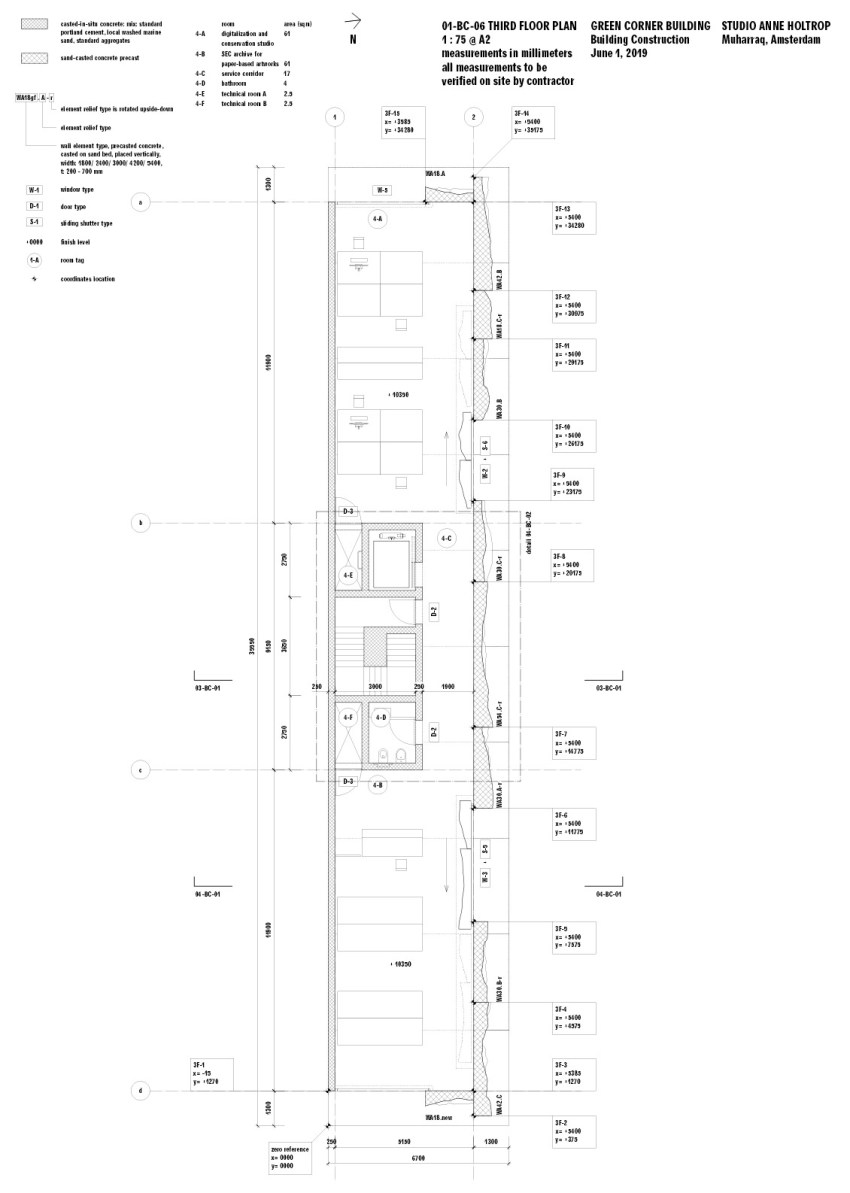
The Green Corner building features a floor plan consisting of two identically sized rooms and a core in between, with a very shallow depth that emphasizes the main facade as the primary spatial element. The facade itself is made of sand-casted structural wall elements with a strong relief, adding a unique touch to each element cast on the ground next to the building. This technique creates a geological cut in the ground at the positions of the windows and the corners of the building, adding to its aesthetic appeal.
The sand casting technique is also repeated in the concrete floor slabs on the interior, maintaining the building’s unique theme throughout. Large shutters made of sand-casted aluminum with the relief facing towards the interior can be moved in front of the windows, providing natural light and ventilation while offering an artistic touch to the interior space. These aluminum casts are also hollow, allowing the interior of the casts to be seen through the windows.
The building’s name, the Green Corner, comes from an existing corner designed by Patrick Blanc that features a vertical garden. The building was built adjacent to a parking structure designed by Christian Kerez, providing a unique contrast in architectural styles. Overall, the building’s design and materials offer a visually stunning and environmentally conscious approach to modern architecture.
from archeyes


