
![]() |
![]() |
![]() |
Ludwig Godefroy Architecture-Alférez House
작은 집의 시작은 숲속에 위치한 오두막, 숲속에 길을 잃은 이에게 등대가 되어주는 피난소처럼, 삶에 지친 도시인에게 마음의 피신처를 제공하기 위해 계획되었다. 최대한 외부 자연환경을 존중하는 건축은 최소한의 건축으로 진행된다. 작은 오두막과 같은 건축환경은 오두막의 가벼움과 콘크리트 요새 같은 장중함의 균형감으로 독특한 대비를 구현한다.
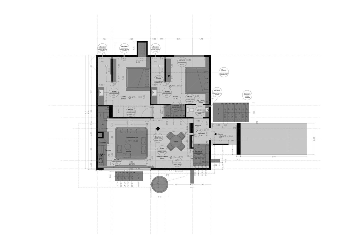
The project of the house of the Alférez Gorge takes its origin from the concept of a cabin and the romantic idea of a protective shelter in the middle of the forest; an isolated house seeking to resemble an object that would have been deposited on the ground, among the trees. The design of the house is developed based on 3 main points:


























1. The project responds to the idea of an isolated house in the forest, without ever losing sight of the need for a strong sense of security; a house as a safe, made of concrete that defends and takes care of its inhabitants.
The result is a house that is characterized by its meeting of language between the idea of the cabin a romantic element-, and the fortress -a protective element-, expressing brutalism in its concrete. The concrete comes to close and defend the first floor, while the windows are placed out of reach to prevent a possible outside intrusion.
2. The structural project seeks to be as compact as possible, with the footprint as small as possible, in order to avoid a complex and costly foundation due to the steep slope of the terrain. The house is mounted on the natural slope, flying among the pines on its southwest corner, and semi-buried on its opposite northeast corner.
The project seeks to recreate the feeling of a cabin suspended in the natural topography of its terrain. The structure expresses a perfect balance of its foundation, generating a singular contrast between the feeling of lightness of a cabin on one side, balanced by the weight of a concrete fortress on the other.
3.The house increases its height to seek the light among the trees, and at the same time a relationship with the top of those majestic pines present on the ground. Following the logic of its compact footprint of 9.5mts X 9.5mts, the purpose of the project has been to grow vertically, instead of horizontally. The vertical growth allows the house to seek the light among the trees, complementing the very location of the house in the northeastern part of the lot, this part being the highest and sunniest.
The configuration of the house is developed in semi levels around a double height, with high windows and skylights on the roof. The high volume of its double height allows to distribute the light in all interior spaces, and compensate for the loss of windows on the first floor that protects us from any intrusion.
from archdaily
'House' 카테고리의 다른 글
| *클리프탑 하우스 [ Simon Couchman Architects ] CLIFFTOP HOUSE (12) | 2023.04.07 |
|---|---|
| *롱라이프-루즈핏 [ Bindloss Dawes ] Autobarn (0) | 2023.04.04 |
| *하늘중정 [ FGMF Arquitetos ] POD Pinheiros (12) | 2023.03.24 |
| *다섯가구, 그랑드 버티컬루버 [ Izquierdo Lehmann ] San Crescente Complex (0) | 2023.03.23 |
| *중정 아파트 [ SO-IL ] 450 Warren (12) | 2023.03.21 |


