
Tropical Space-Premier Office
Tropical Space unveils Premier Office, an office building for rent located on a quiet street in Ho Chi Minh City where several other rental offices have been built. The design team aspired to create a building that can maximize the performance of natural lighting without being affected by the negative impact of direct sunlight. The door and window system can be opened when the weather is good.
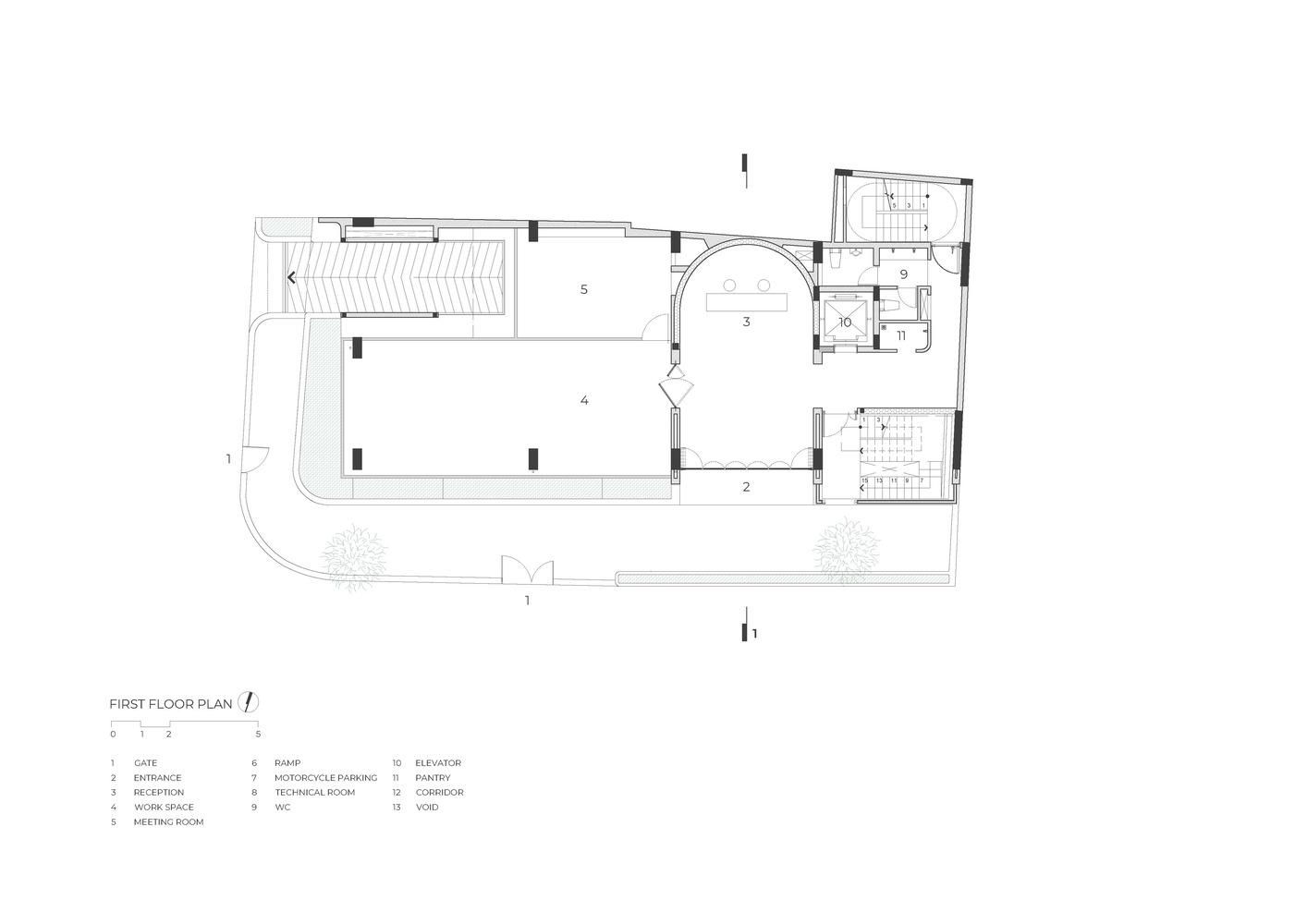
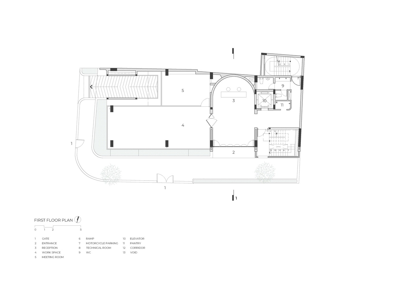
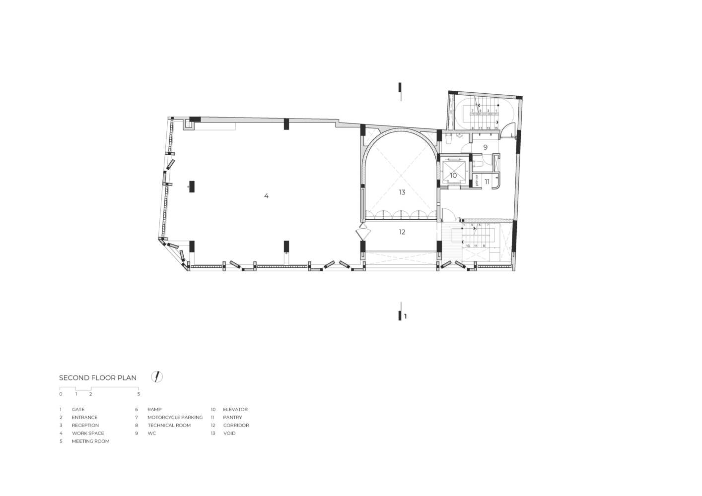
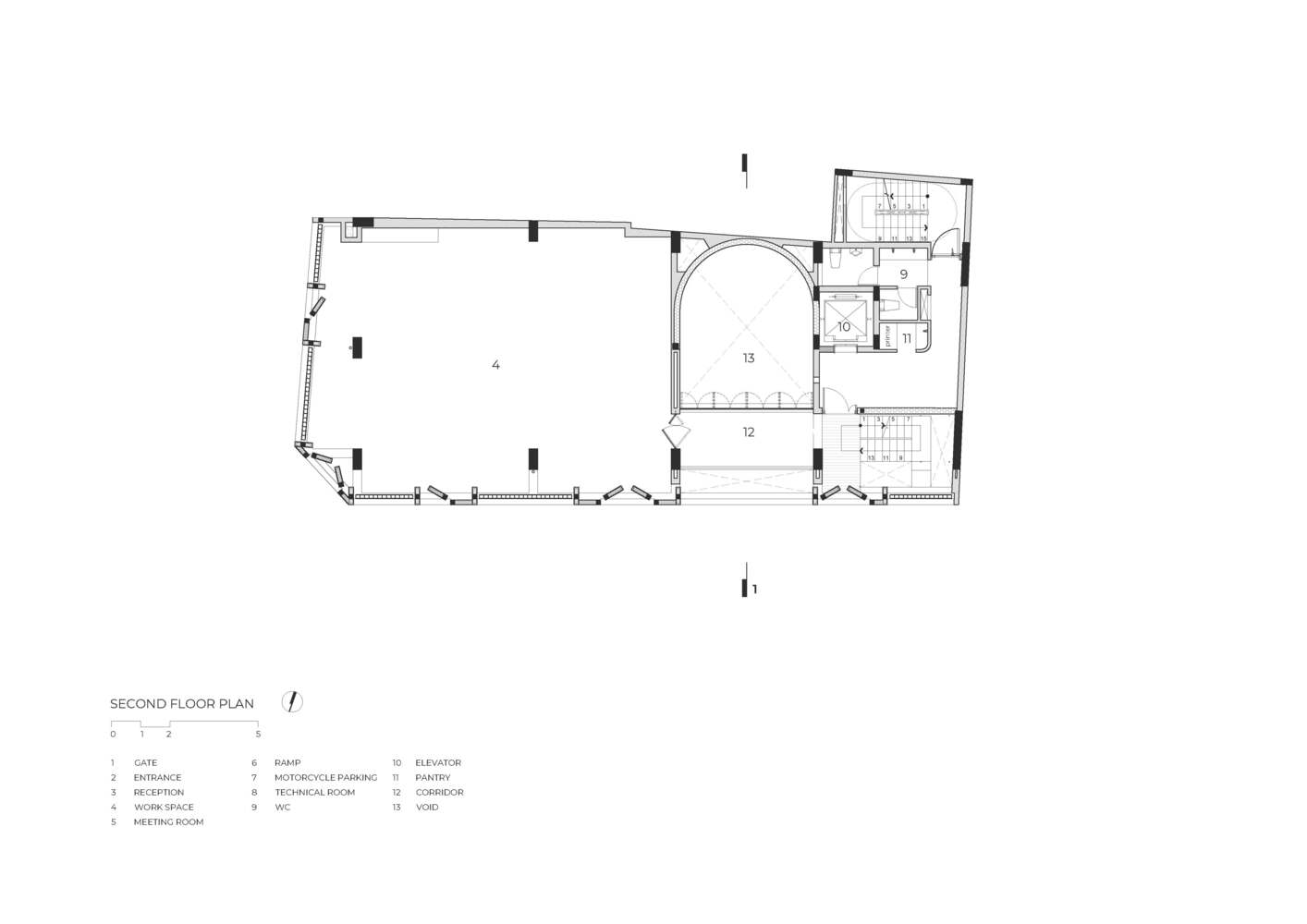
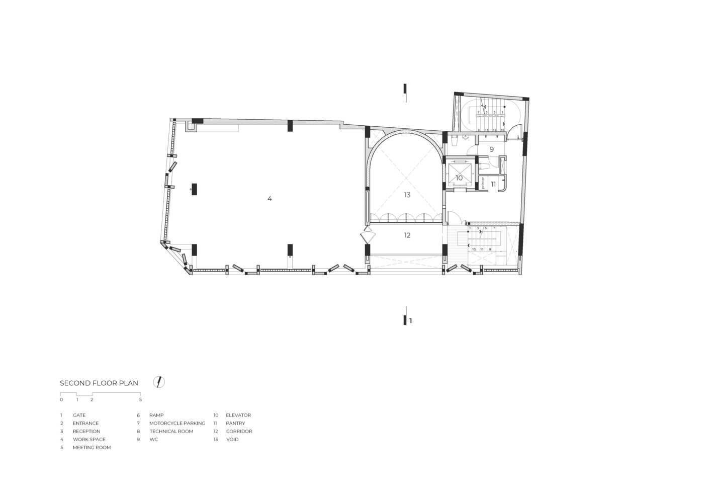
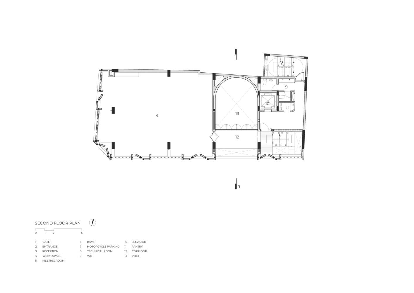
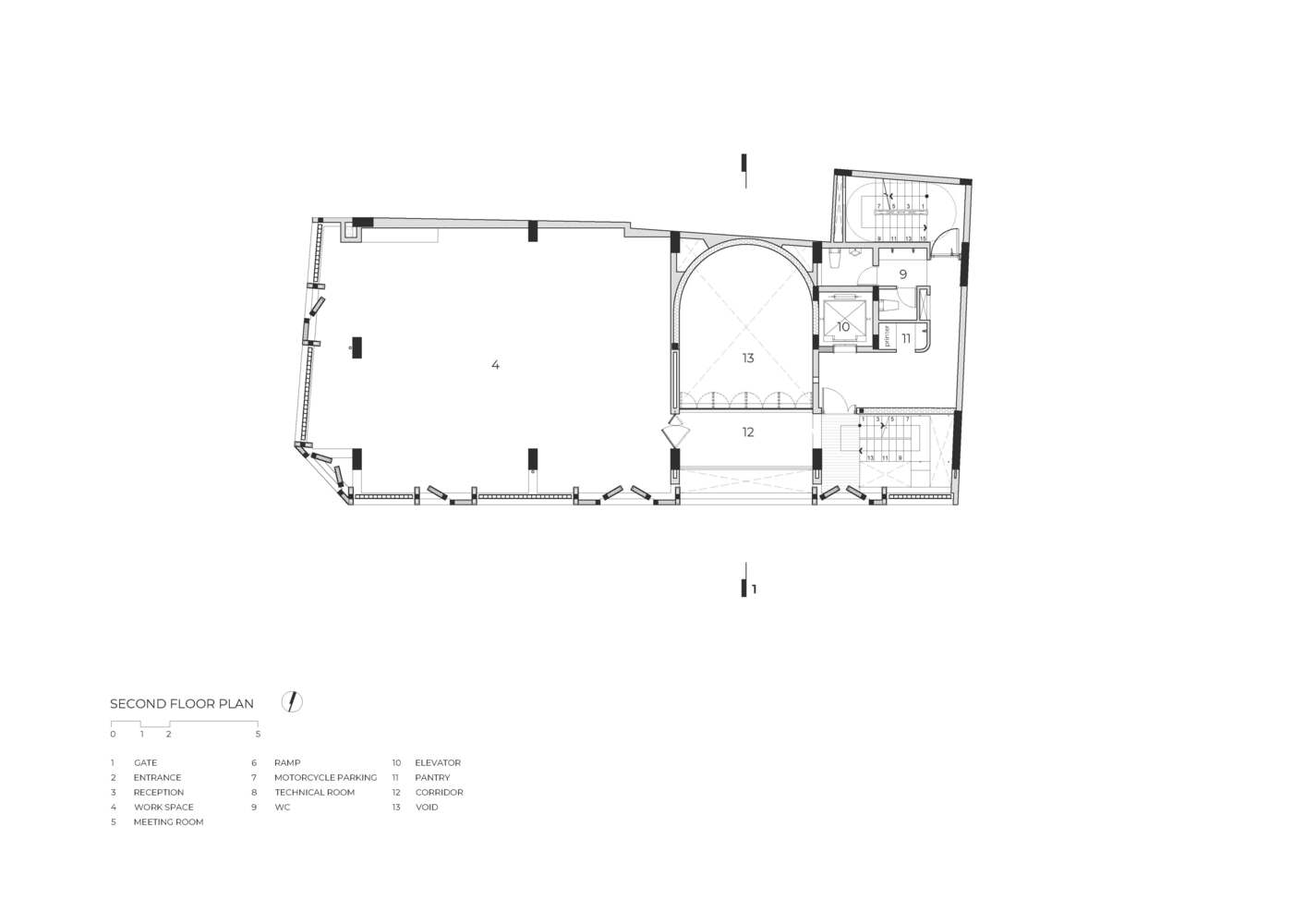
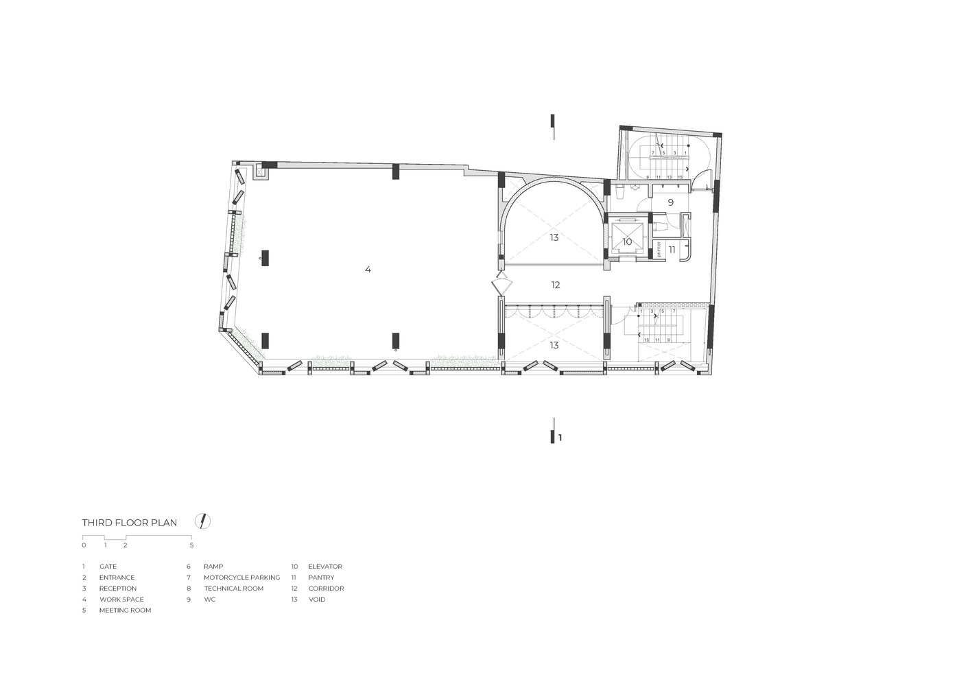
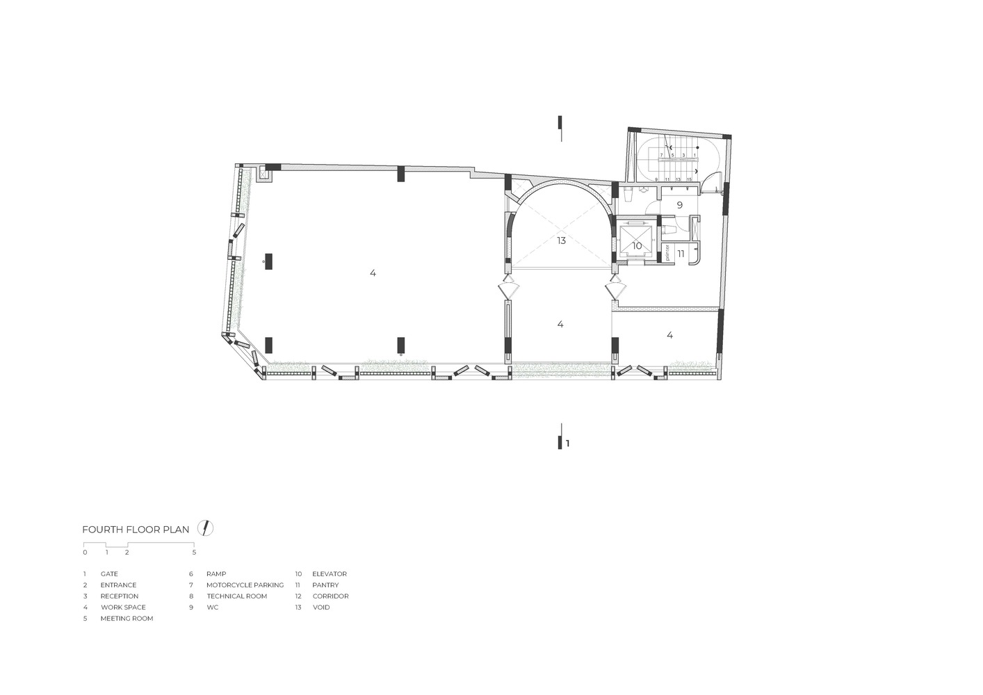
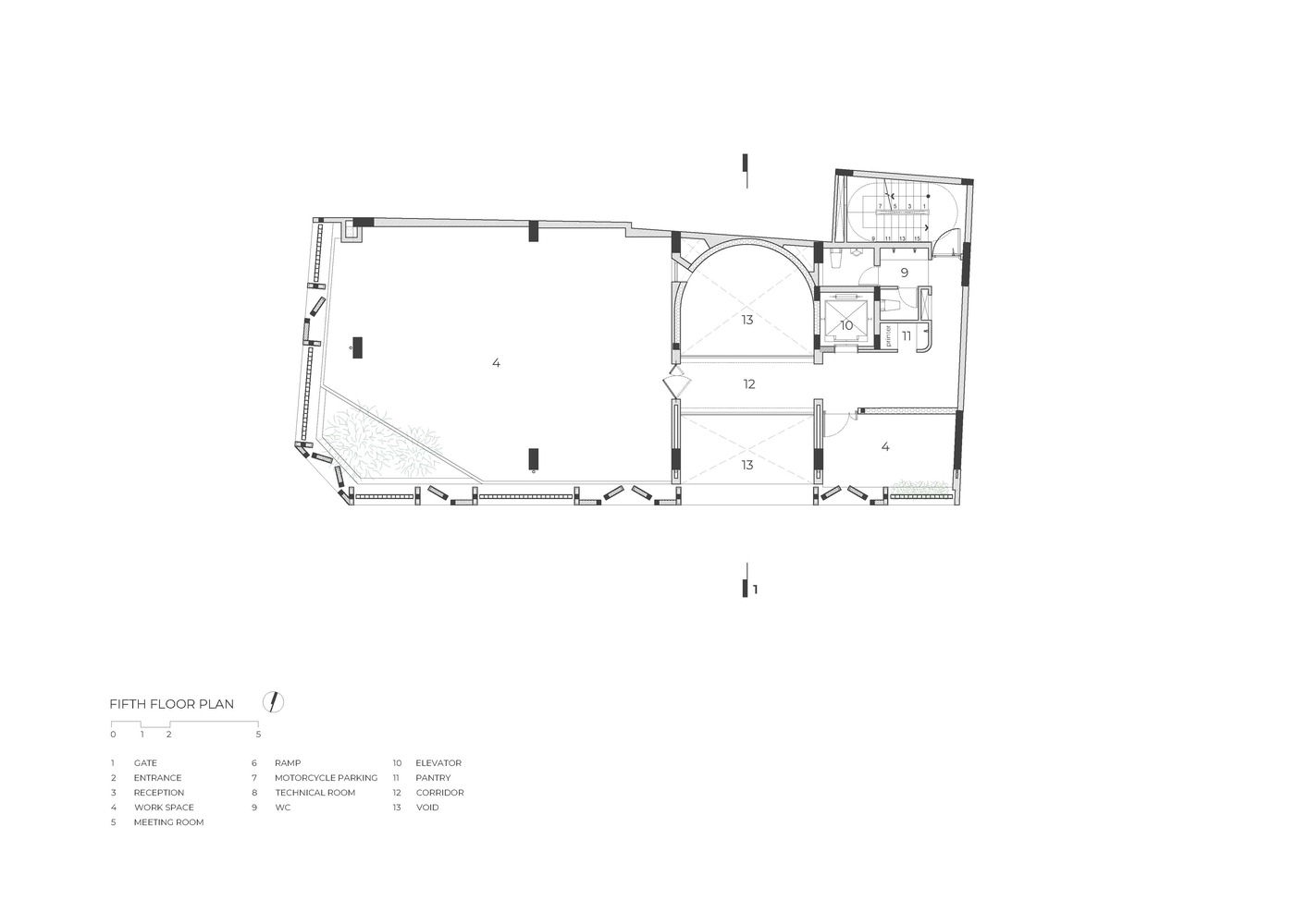
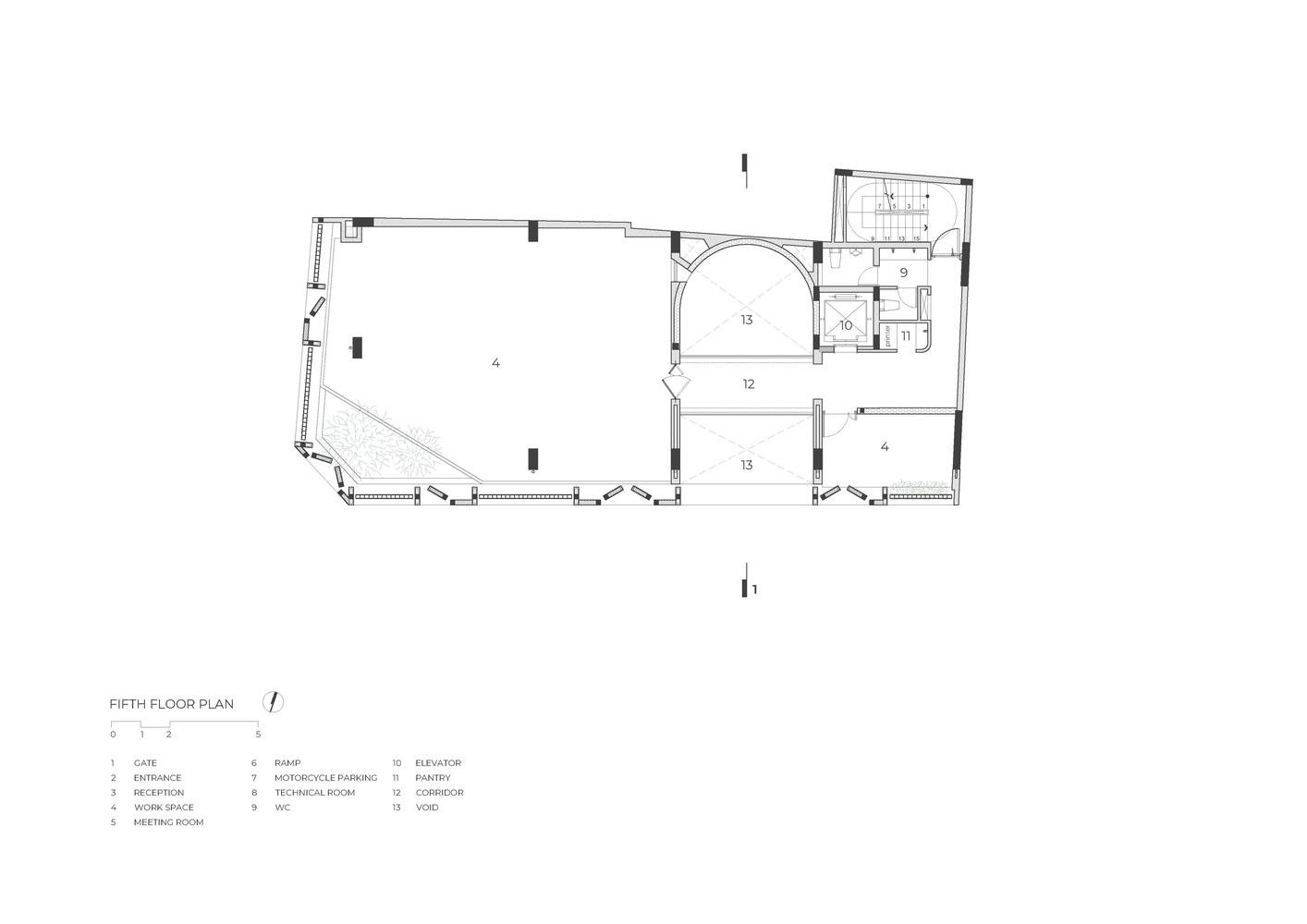
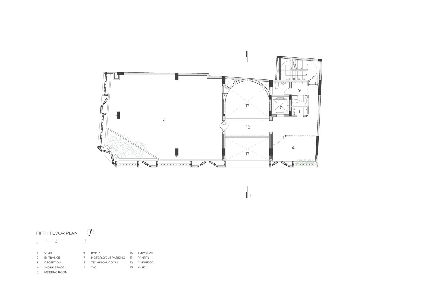
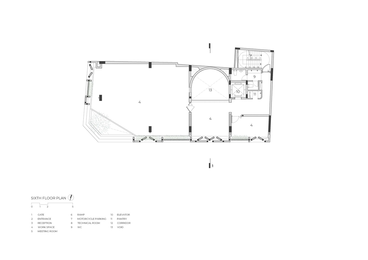
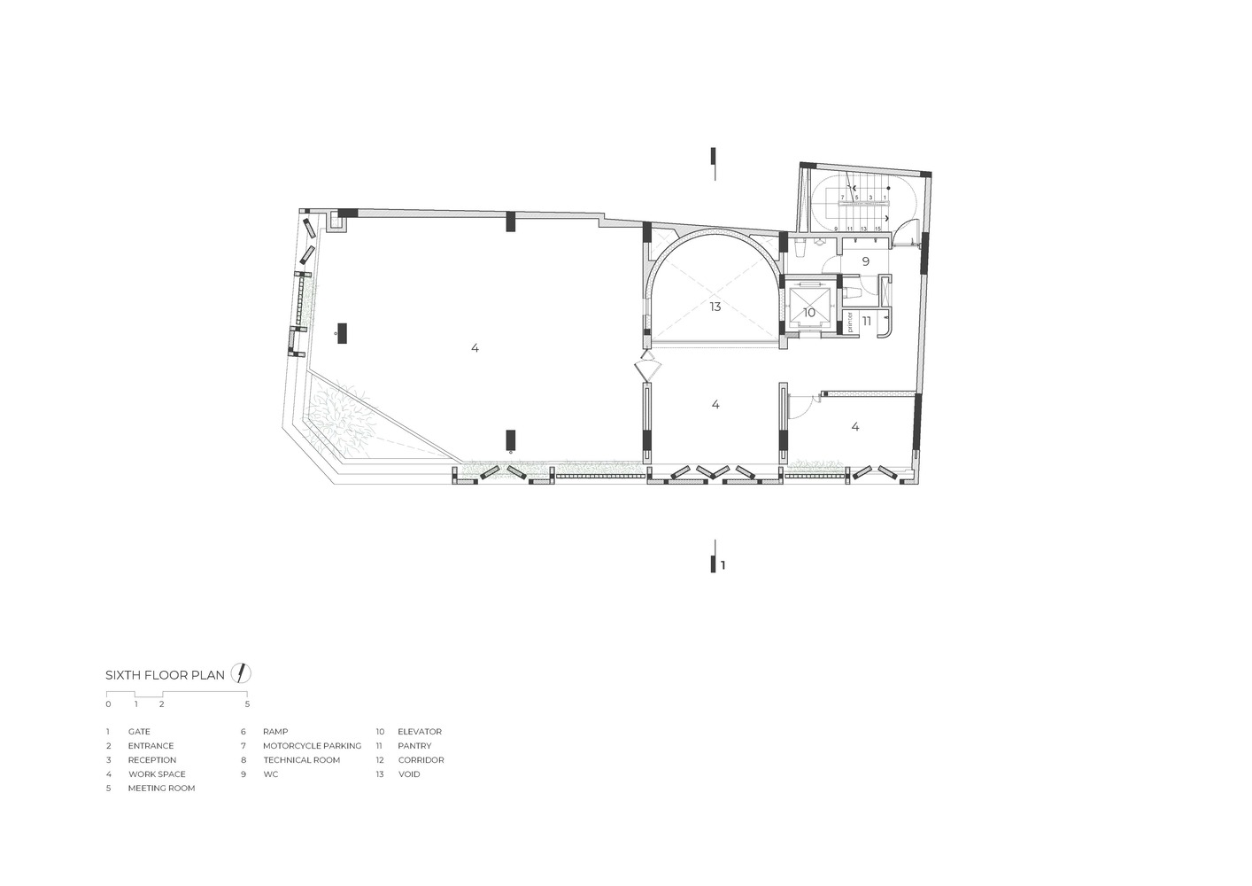
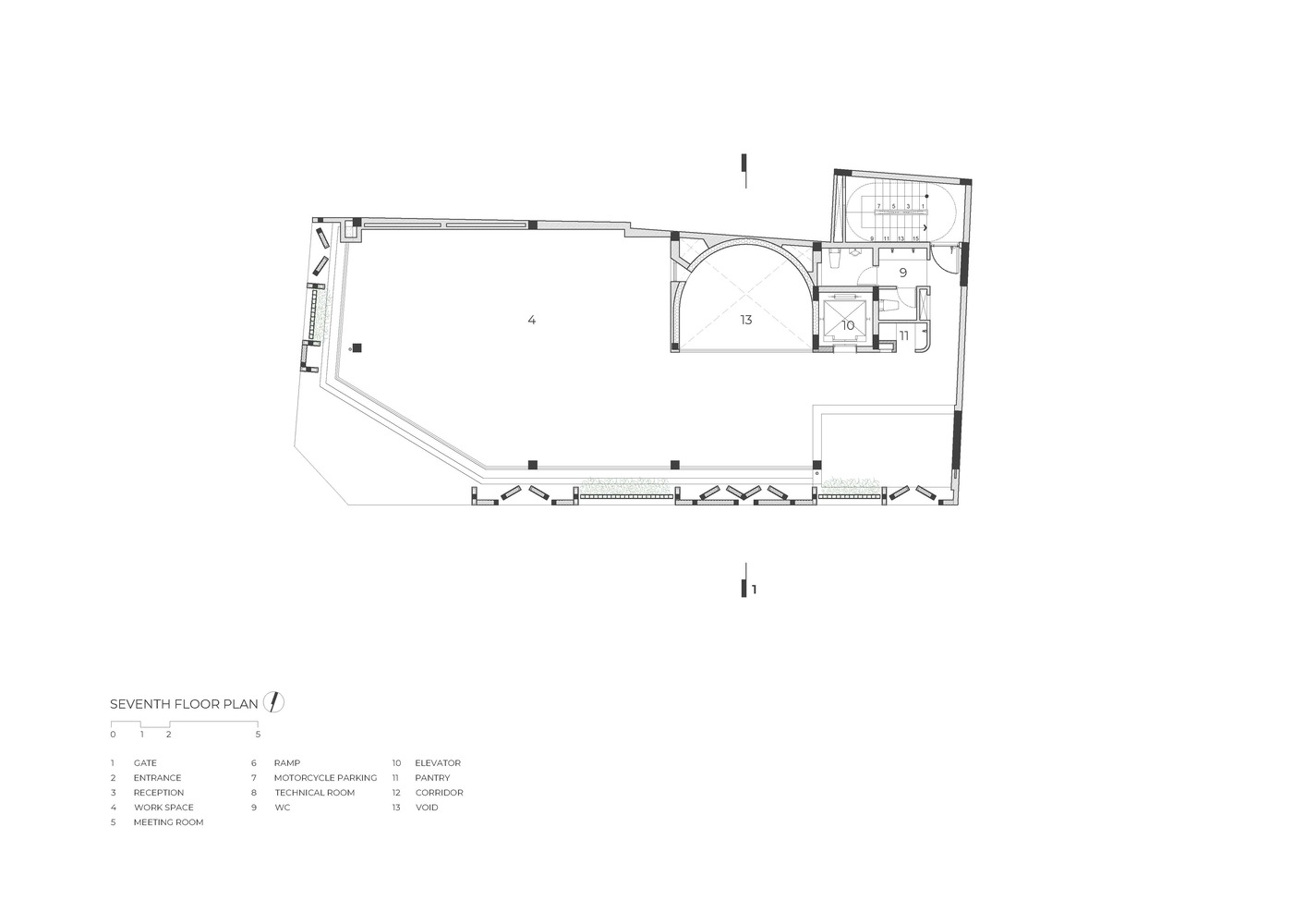
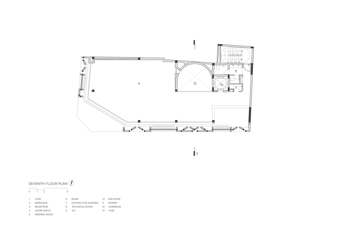
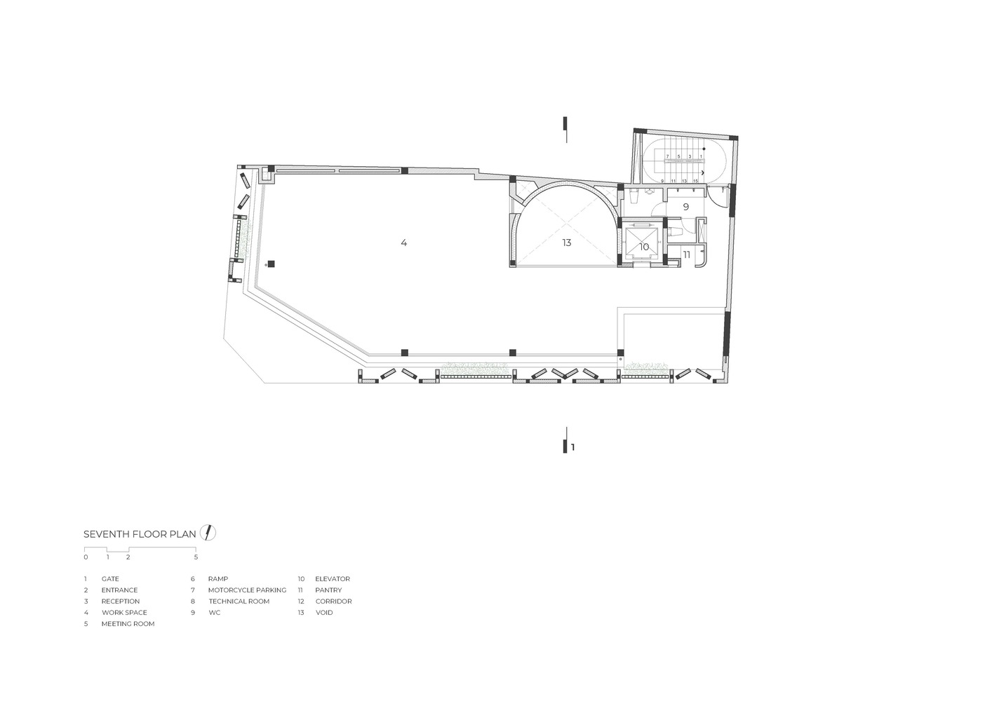
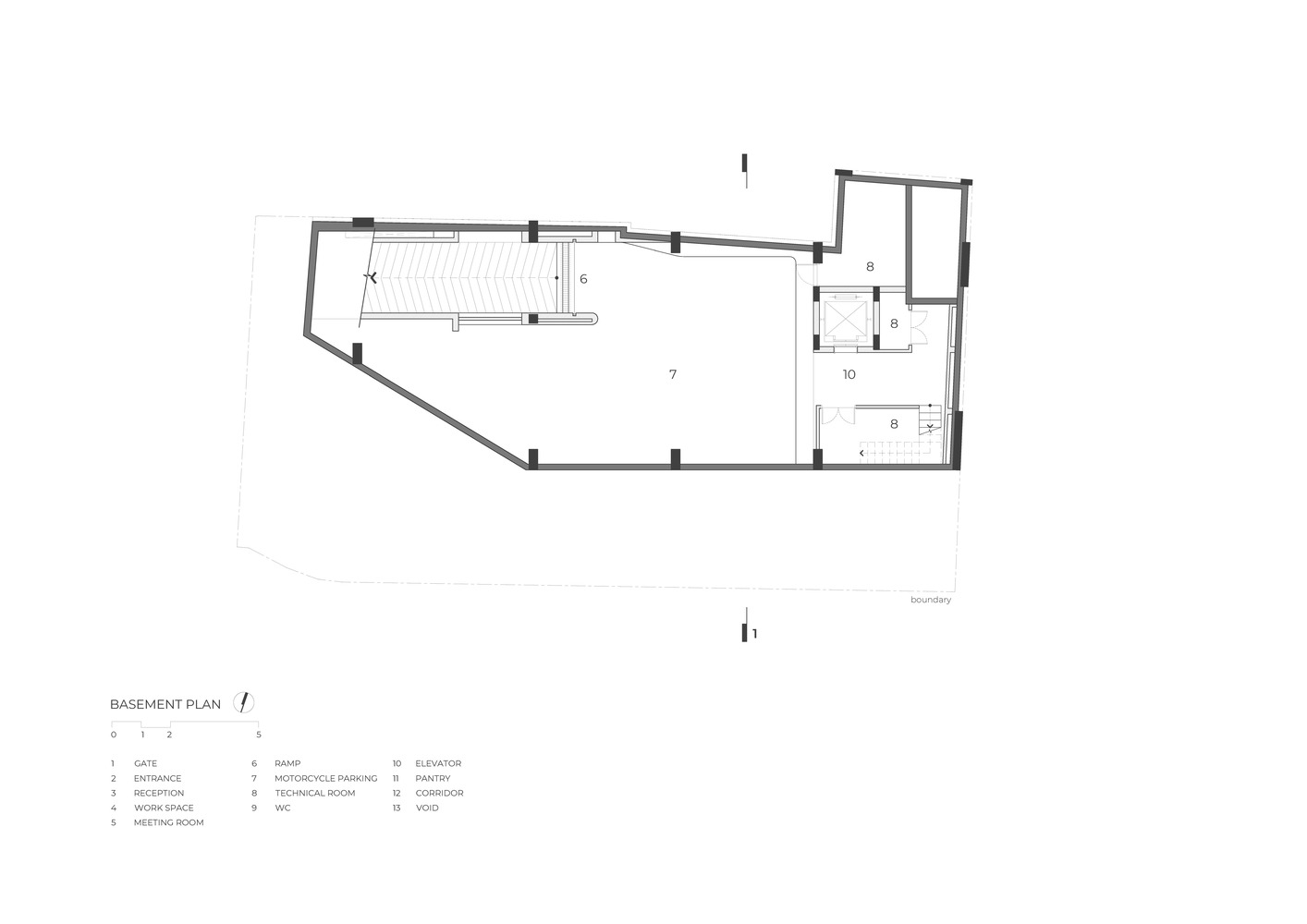
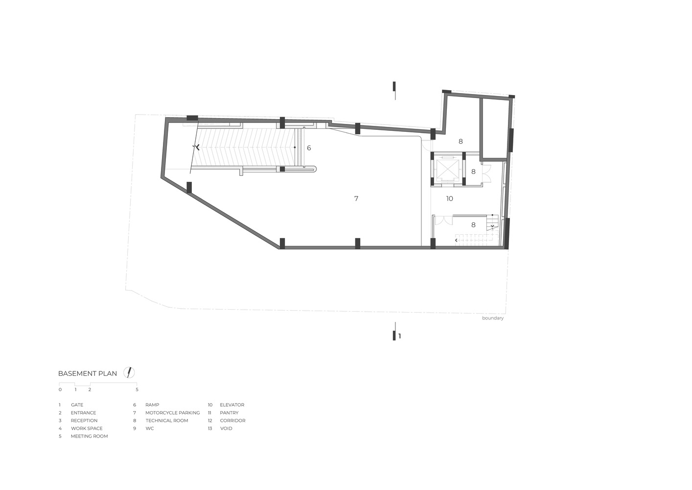
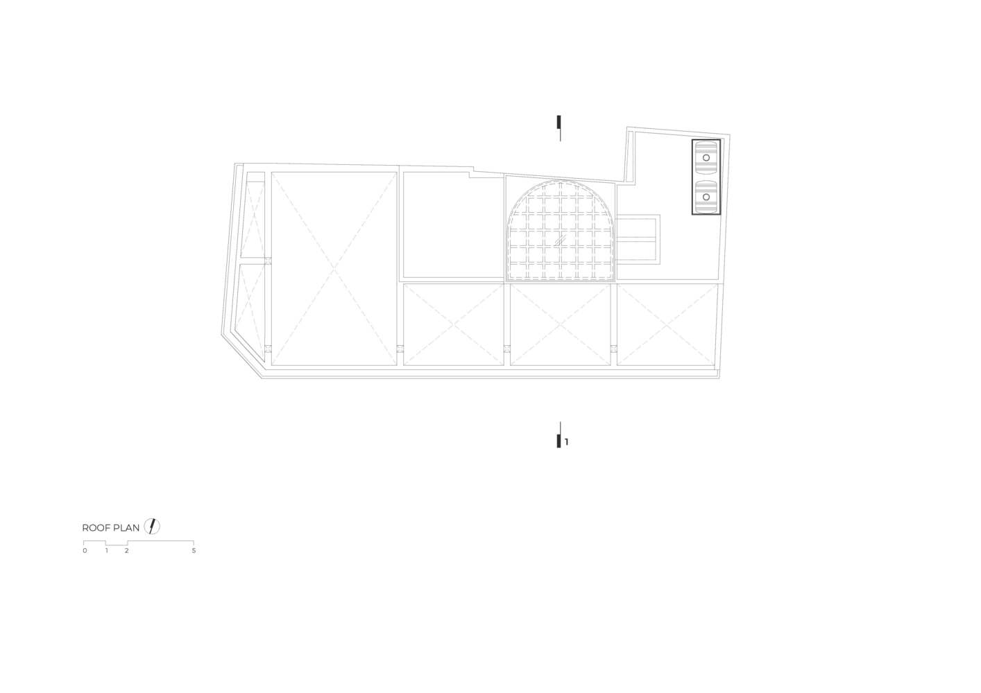
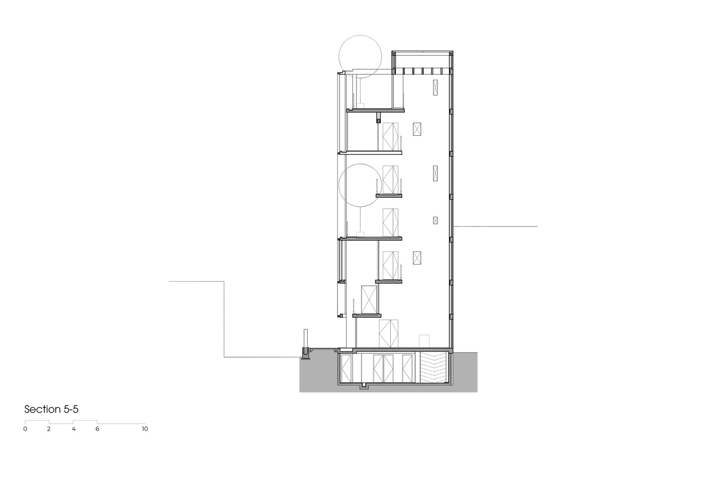
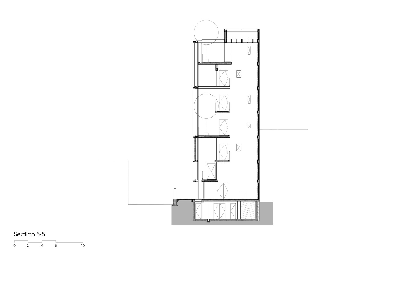
The building is covered by brick walls with a concrete structure. The functional areas are divided by a continuous vertical void in the center, which helps natural light and airflow go throughout the building.
One side of the central void is the office space, with two facades opening to catch the sunlight and wind. The other side accommodates the restroom, storage, elevator, and stairs. These two blocks are connected by corridors spanning the void. By connecting the void between the corridors and empty spaces, both vertically and horizontally, the building can create moving light areas and space displacement during the day.
Many consider the office as a second home where they spend most of their time during the day. To inspire people working there, the architect endeavored to design an interesting space filled with natural light and ventilation by having a double layer with a unique “brick curtain” outside, and aluminum sliding glass doors inside.






















from archdaily
'Office' 카테고리의 다른 글
| *무주공간 오피스 [ Atsushi Tasaki Architecture and Design ] Office 2023 (0) | 2023.08.31 |
|---|---|
| *바오롱 오피스 [ H.a + NQN. ] Bao Long Office (0) | 2023.07.03 |
| *하베 오피스 [ Barkow Leibinger ] HAWE Office Building (0) | 2023.07.02 |
| *인큐베이터 스페이스 [ IF_DO ] The Hithe Business Incubator Space (12) | 2023.06.09 |
| *타스트럽 시티홀 [ PLH Arkitekter-Høje ] Taastrup City Hall (52) | 2023.05.31 |