
![]() |
![]() |
![]() |
PLH Arkitekter-Høje-Taastrup City Hall
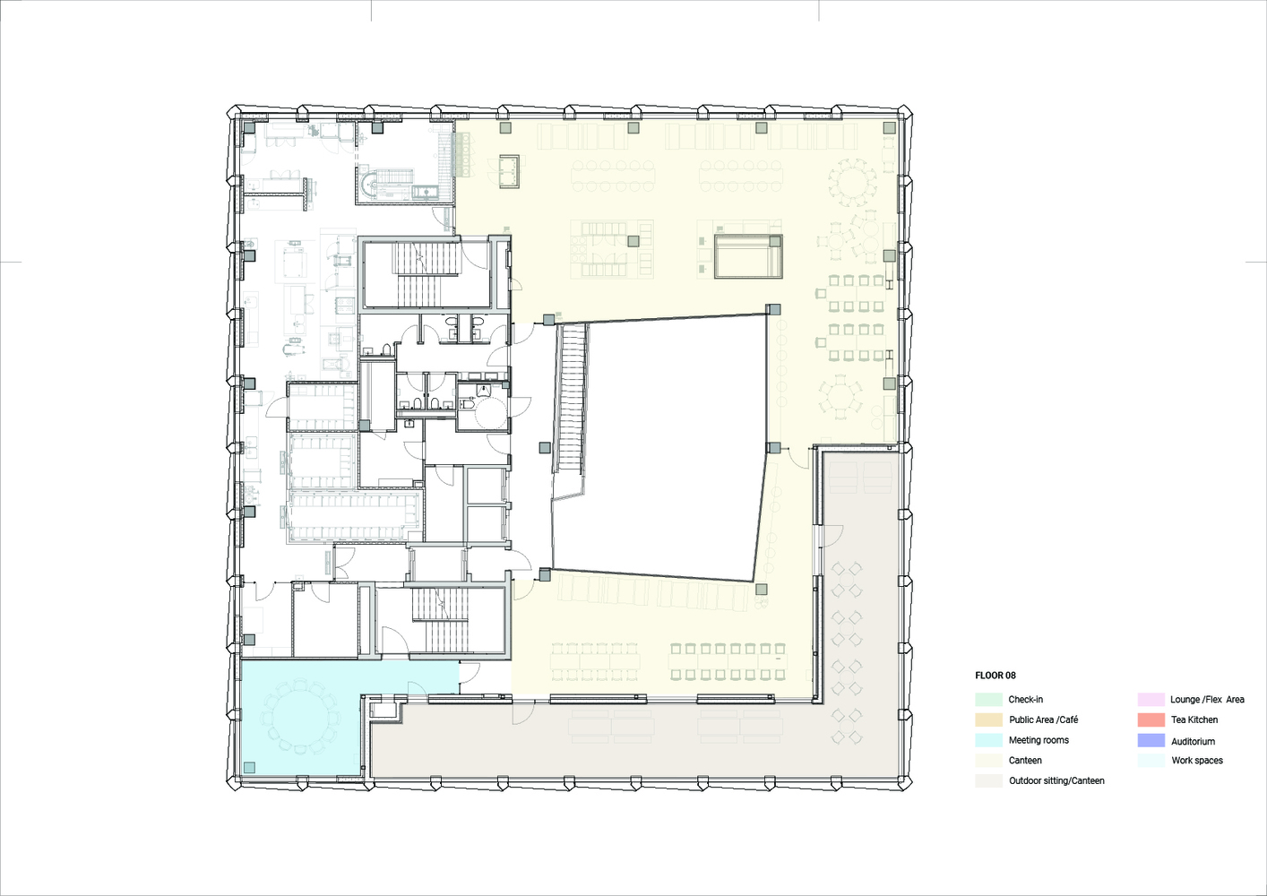
덴마크 Høje Taastrup에는 혁신적이면서 독특한 외형을 가진 시청사가 있다. '시민을 위한 집'을 컨셉으로 미래지향적인 디자인을 접목한 업무환경과 지속가능한 건축공간을 구현한다. 총 9개층의 규모는 동적인 각도로 시선을 사로 잡는 투명한 외관과 일반인들에게 개방된 옥상테라스가 지역 랜드마크로 돋보이게 만든다.



































In Høje Taastrup you find one of Denmark's most innovative and unique city halls. The "Citizens' House" is ambitious and forward-looking in its design – featuring a great work environment, sustainable solutions, and visions of strengthening the local communities. Nine floors. Eye-catching, transparent facade with playful angles. Large, inviting rooftop terrace, which can be opened to the public. Høje-Taastrup's city hall stands out as a significant architectural landmark. The building is designed by PLH Arkitekter in collaboration with ALL and COWI out of a vision of developing modern, flexible work environments for employees, while at the same time giving back to the city and its citizens.
A terrace, sun deck, and cozy seating areas surround the building. Three large stairs, paths, and plantings close to the building help create a natural cohesion with the nearby city park. The unique facade is characterized by a mix of champagne colored elements and large glass panels, which are angled slightly in relation to each other, creating a dynamic and welcoming expression.
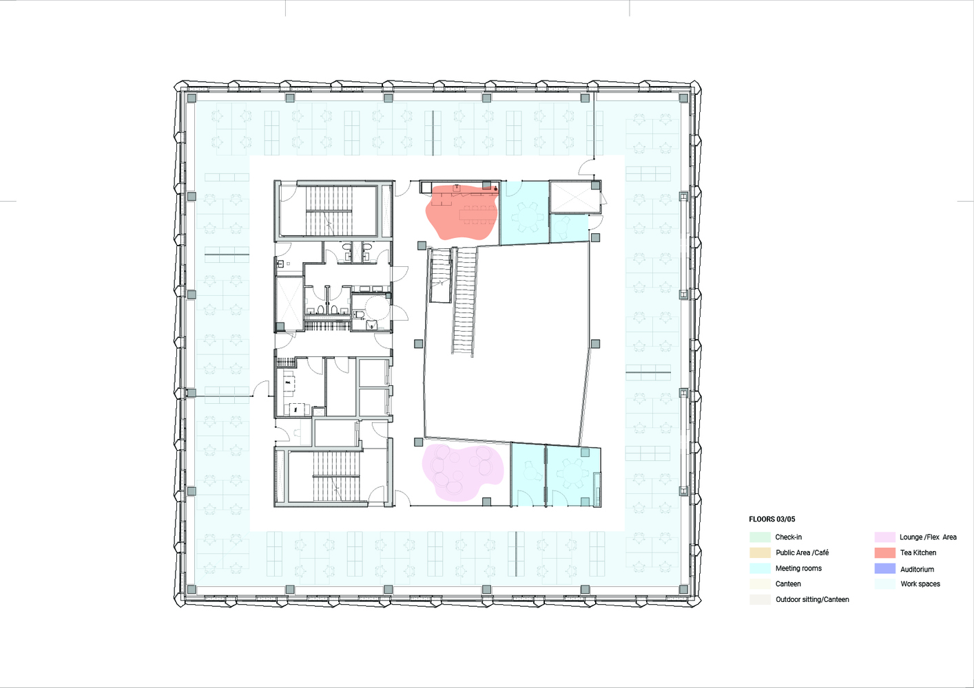
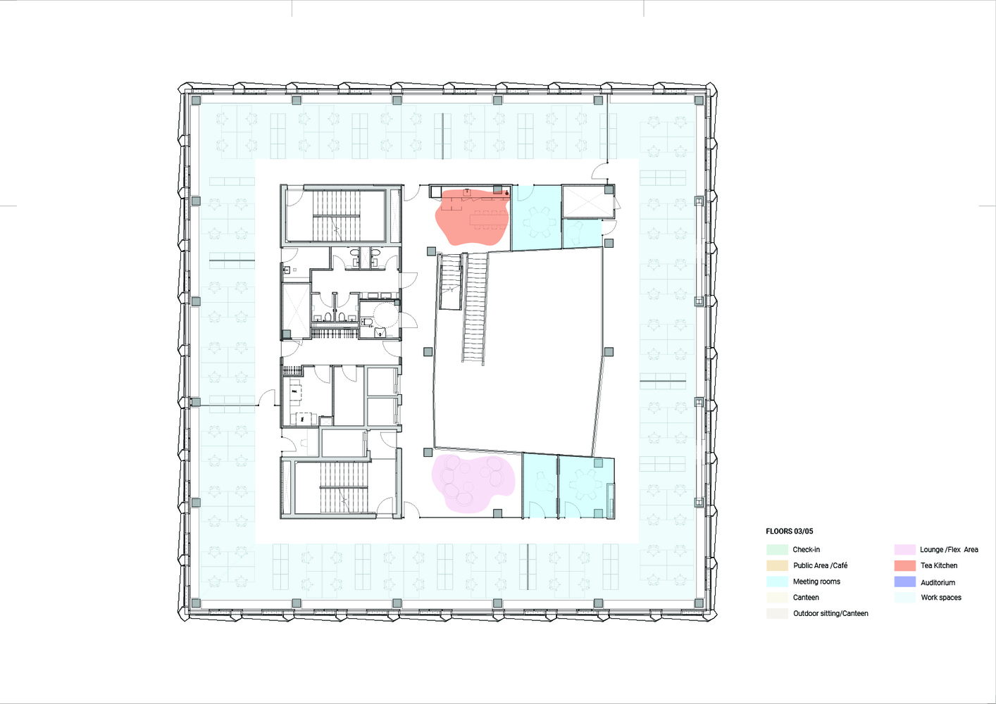
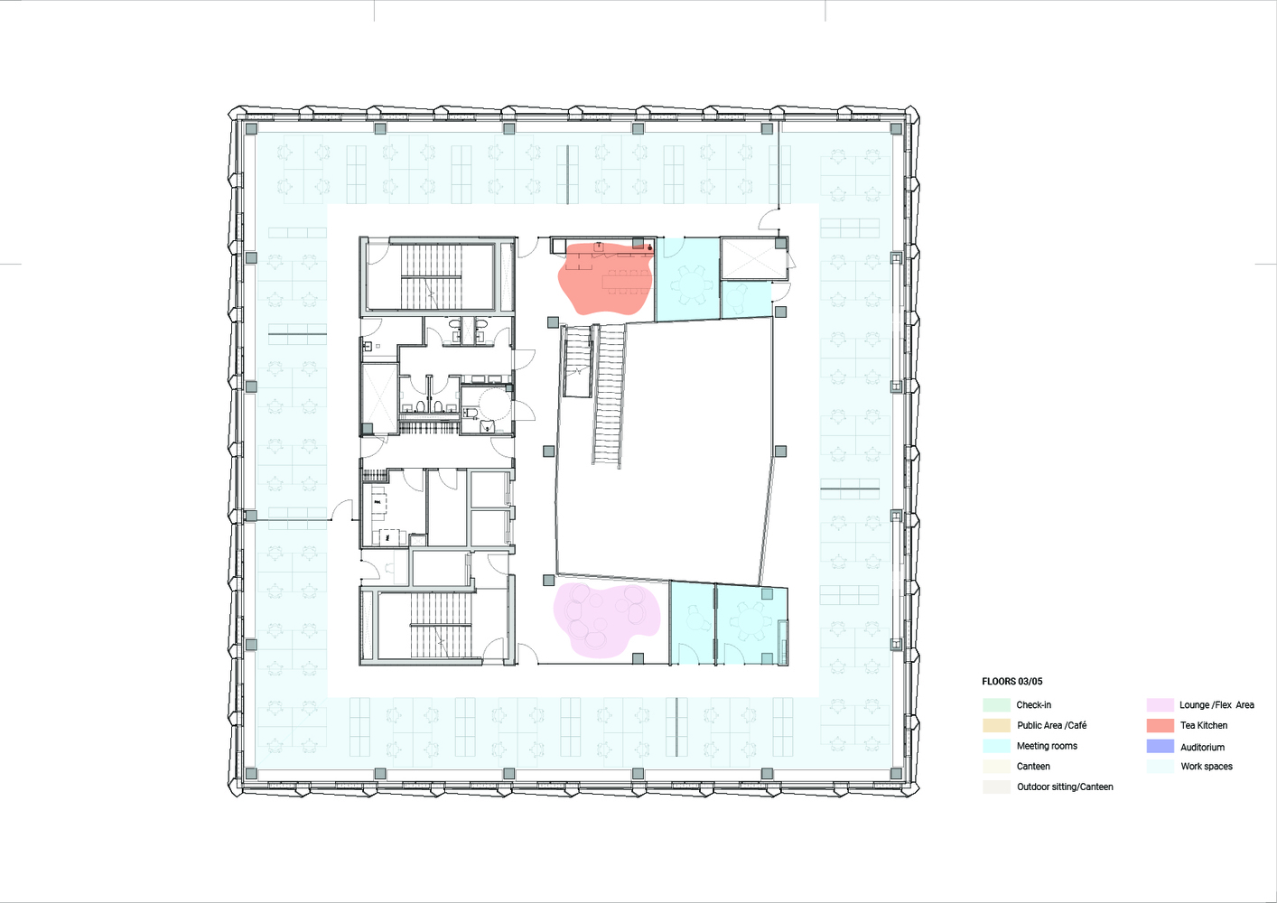
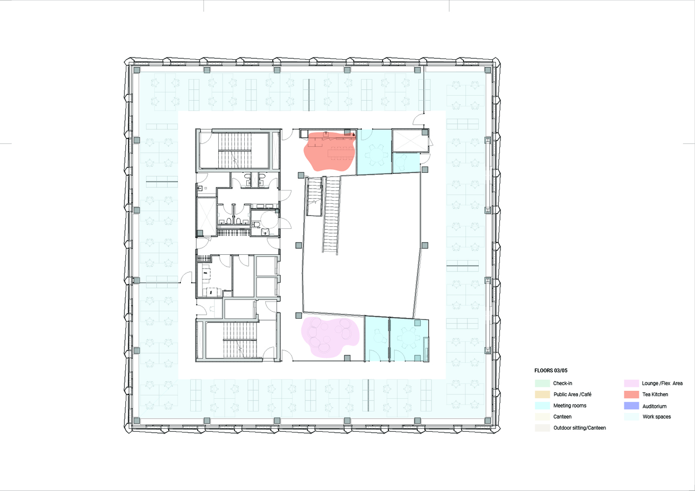
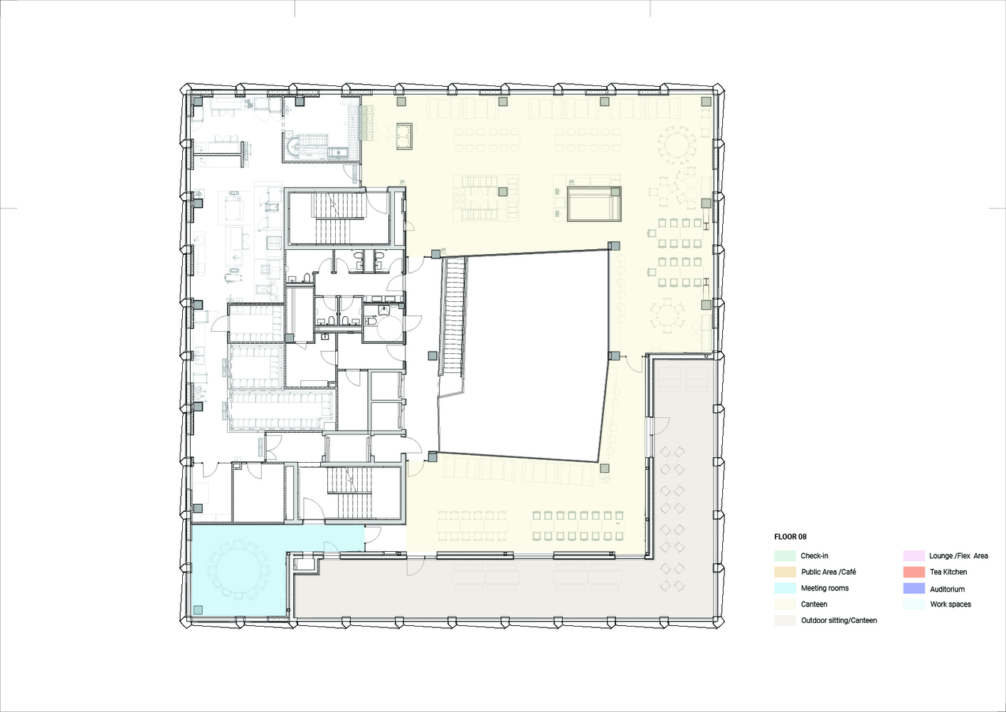
The aim has been to create a house that is both a modern workplace for employees and a natural, inviting gathering point for citizens. Entering the large, 37-meter-high atrium you find citizen oriented functions such as reception, job center, citizen service, and the council chamber, which can be borrowed by citizens and has direct access to the city park. Thus, the outdoor areas can be included in events such as weddings held in the chamber.
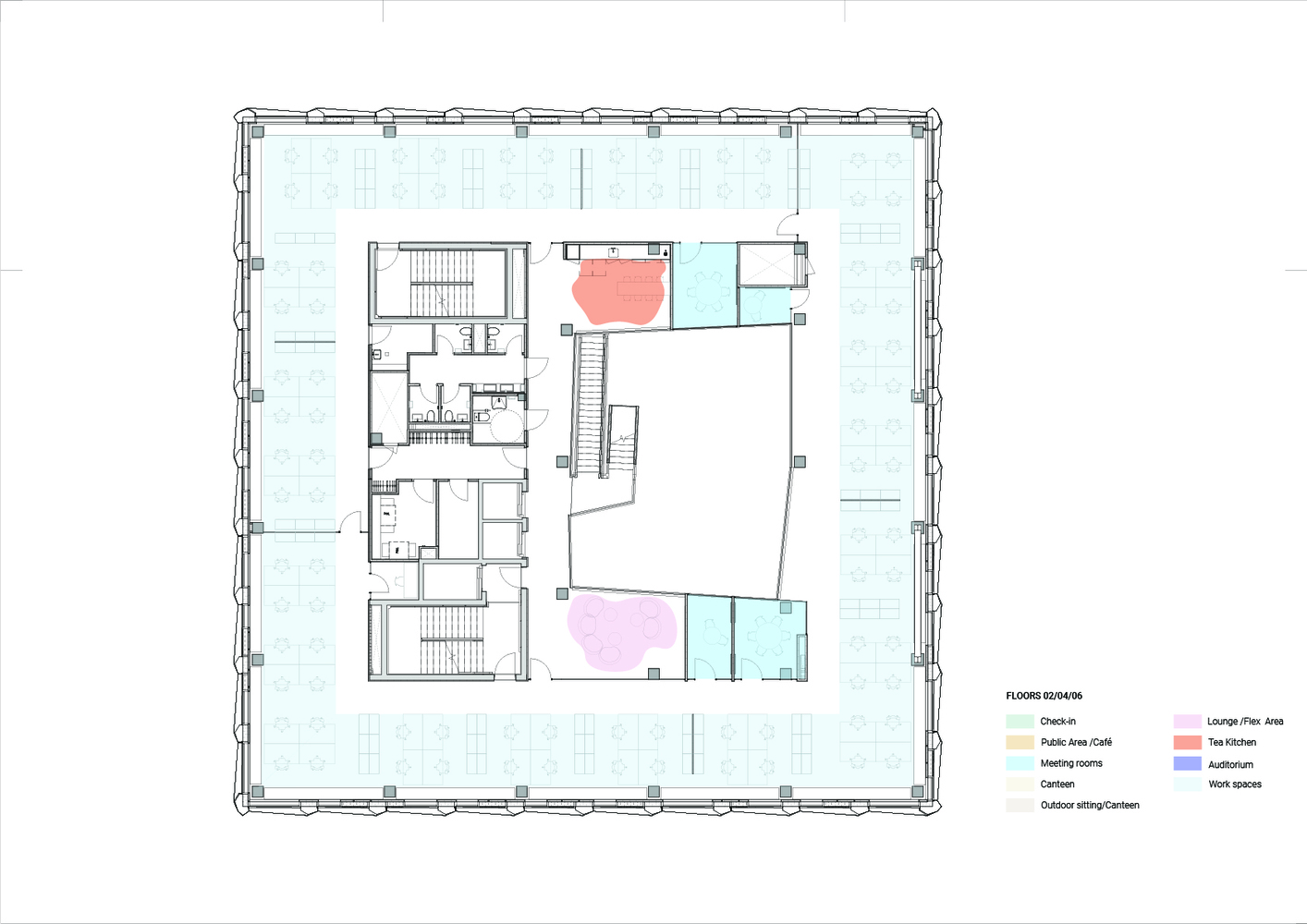
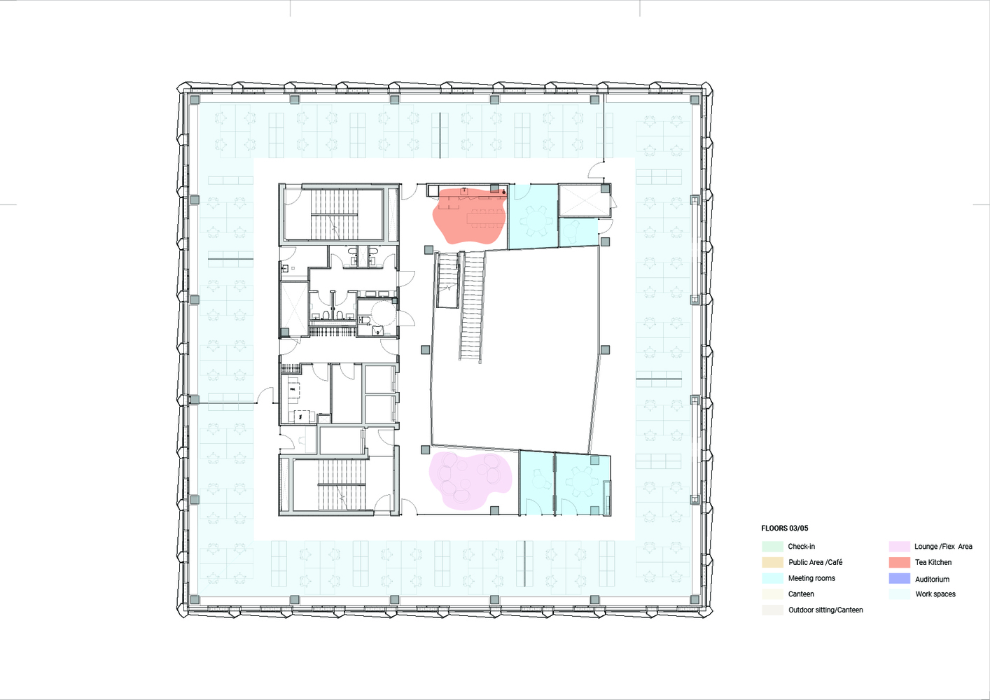
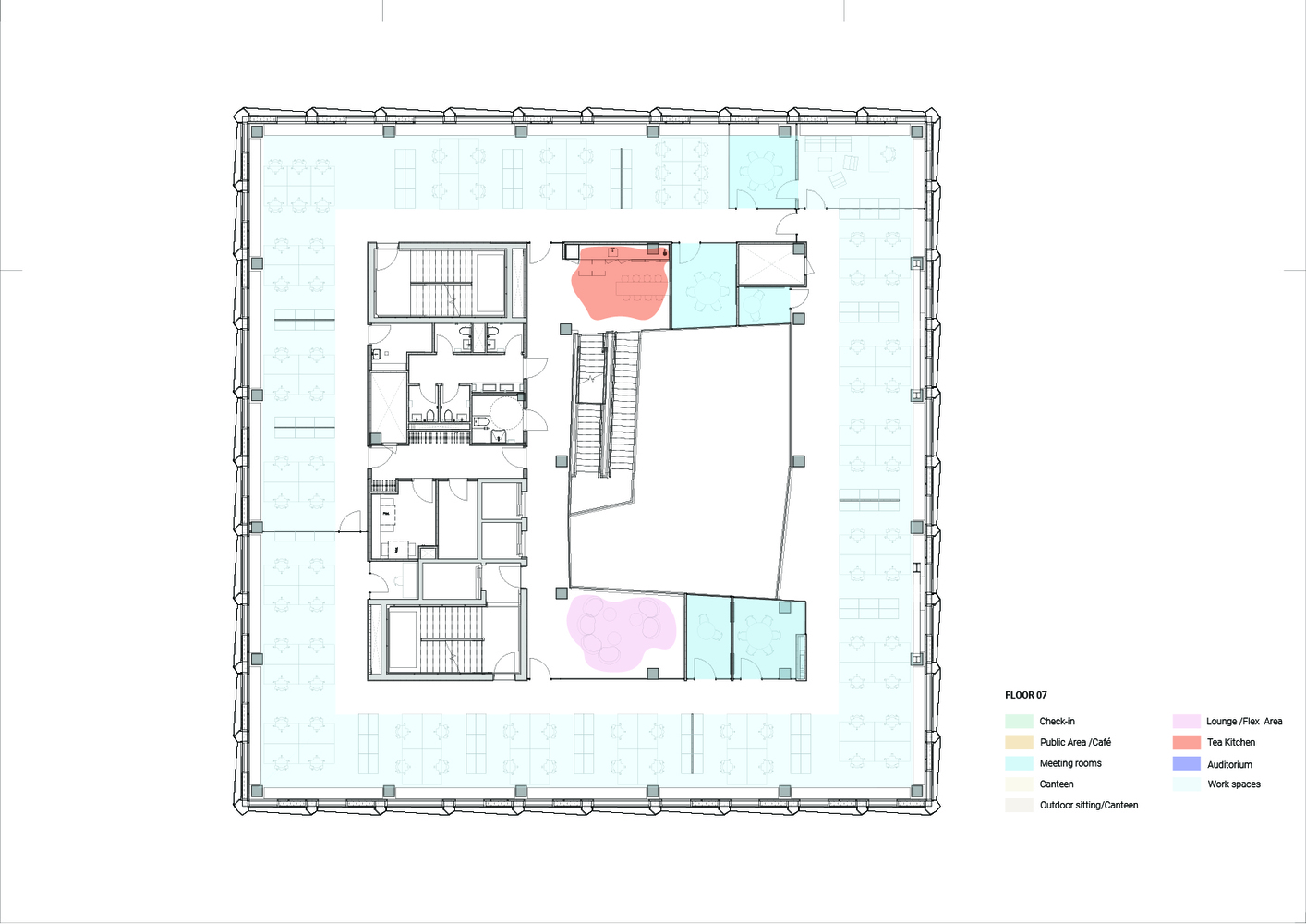
In the atrium, you also find the central staircase of the building. It is designed so that it can be used as a tribune for performances and gatherings, or simply offer a place to rest during the day. From the staircase, you reach the first floor, where you will find the multi meeting hall, which can be used for meetings and public events. The next floors contain work areas organized around the open atrium with a clear view of the different floors to support coherence and knowledge sharing. The workstations are placed by the large windows providing plenty of daylight. To future-proof the office areas, the design is flexible, so it can be easily reconfigured for new needs and work methods.
At the top of the building, there is a large rooftop terrace that can be used for events and opened to the public. The terrace is designed as an architectural landscape divided into several different levels. Sustainable solutions have been an integrated part of the project. The greenery around the city hall increases biodiversity. At the same time, CO2 emissions from the construction have been reduced, as the building’s foundation consists of recycled concrete from demolished apartment buildings in the municipality.
from archdaily
'Office' 카테고리의 다른 글
| *하베 오피스 [ Barkow Leibinger ] HAWE Office Building (0) | 2023.07.02 |
|---|---|
| *인큐베이터 스페이스 [ IF_DO ] The Hithe Business Incubator Space (12) | 2023.06.09 |
| *탈리에신 건축스튜디오 [ Taliesyn Design & Architecture ] Taliesyn 123 Office (0) | 2023.05.25 |
| *오픈플랜, 오피스랜드스케이프 [ JSPA Design ] Shenzhen Yeahka C4 Office Design (12) | 2023.03.17 |
| *단파론 리노베이션 프로젝트 [ [Y/N] Studio ] Bradbury Works (12) | 2023.03.14 |


