
![]() |
![]() |
![]() |
H.a + NQN.-Bao Long Office
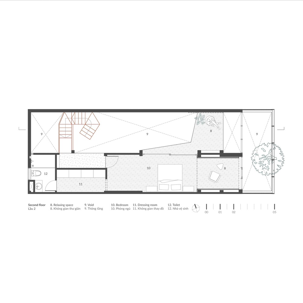
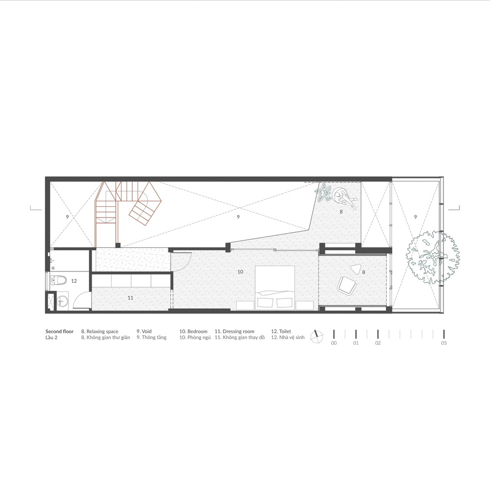
The current status of the work is 2 old townhouses: 2.9mx16.7m and 3.1mx19.28m which have been degraded. The investor wants to combine the two houses and renovate them into a multi functional project including shops, offices, and resting places.
Design ideas and inspiration - Located on Su Van Hanh Street, a famous stainless steel trading place in Saigon. The ground floor of the building is a shop selling stainless steel, the dividing wall of 2 existing houses has been demolished to have enough space to display products and sell in the traditional way.
Contrasting with the noise, bustle, and clutter below is an office and a quiet pantry on the 1st floor, which is designed back in by a large green courtyard and transparent glass facade system, to increase contrast with the store and make a strong impression on passersby.






















from archdaliy
'Office' 카테고리의 다른 글
| *그리드 [ Estúdio 41 ] Sede da Newe (0) | 2024.01.01 |
|---|---|
| *무주공간 오피스 [ Atsushi Tasaki Architecture and Design ] Office 2023 (0) | 2023.08.31 |
| *프리미어 오피스 [ Tropical Space ] Premier Office (1) | 2023.07.02 |
| *하베 오피스 [ Barkow Leibinger ] HAWE Office Building (0) | 2023.07.02 |
| *인큐베이터 스페이스 [ IF_DO ] The Hithe Business Incubator Space (12) | 2023.06.09 |


