
![]() |
![]() |
![]() |
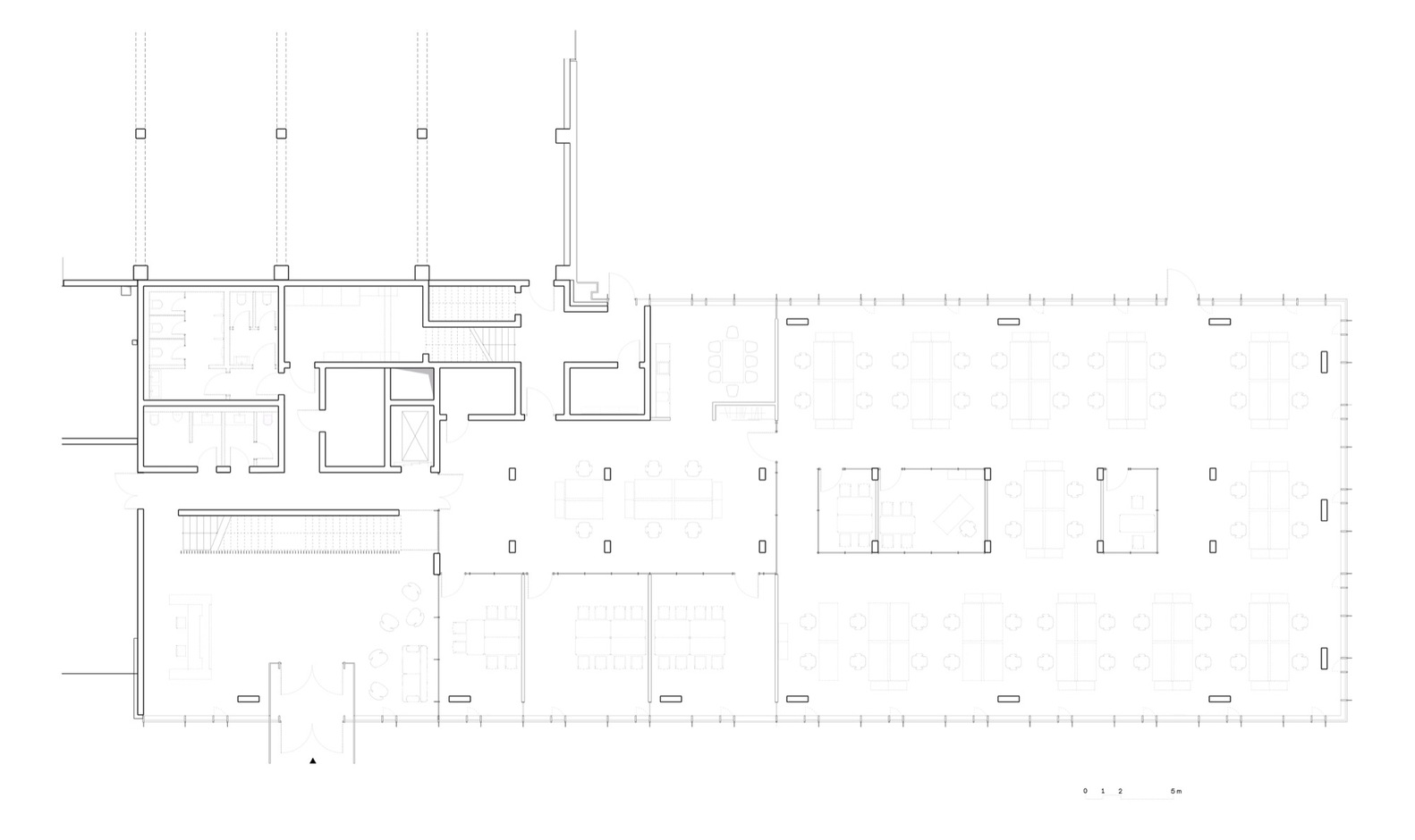
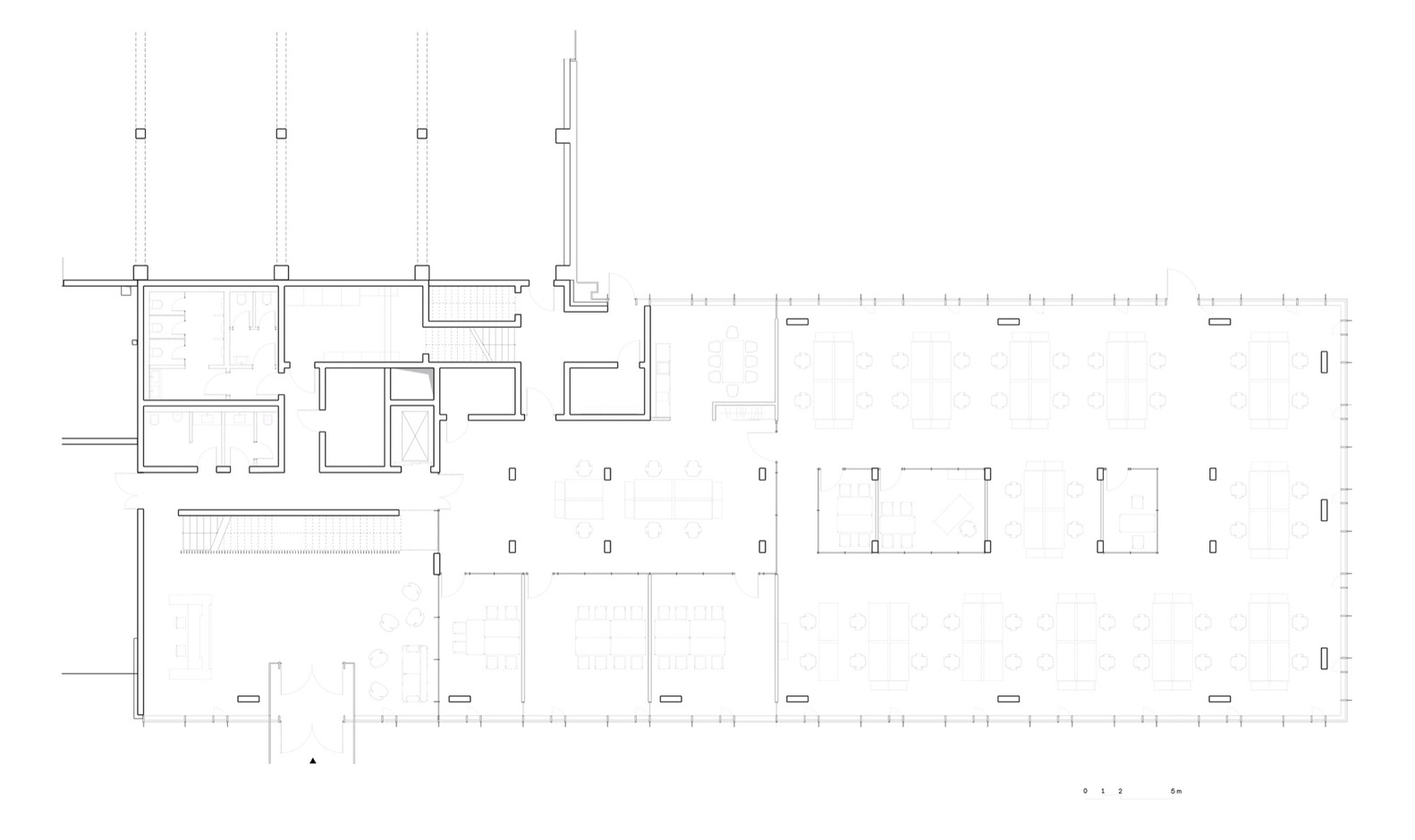
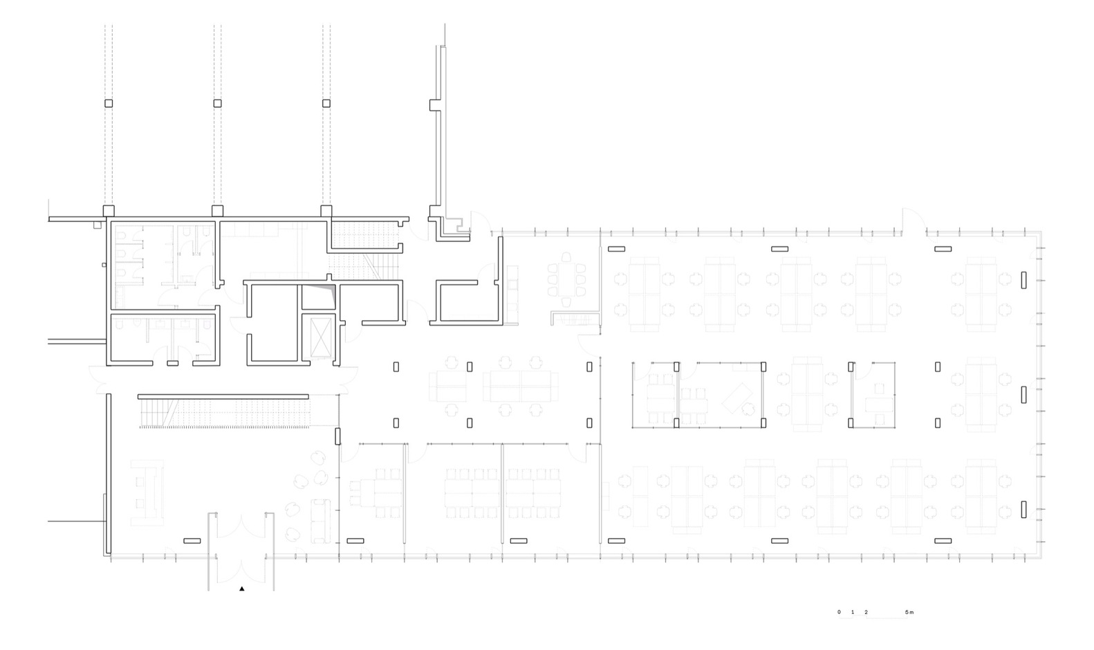
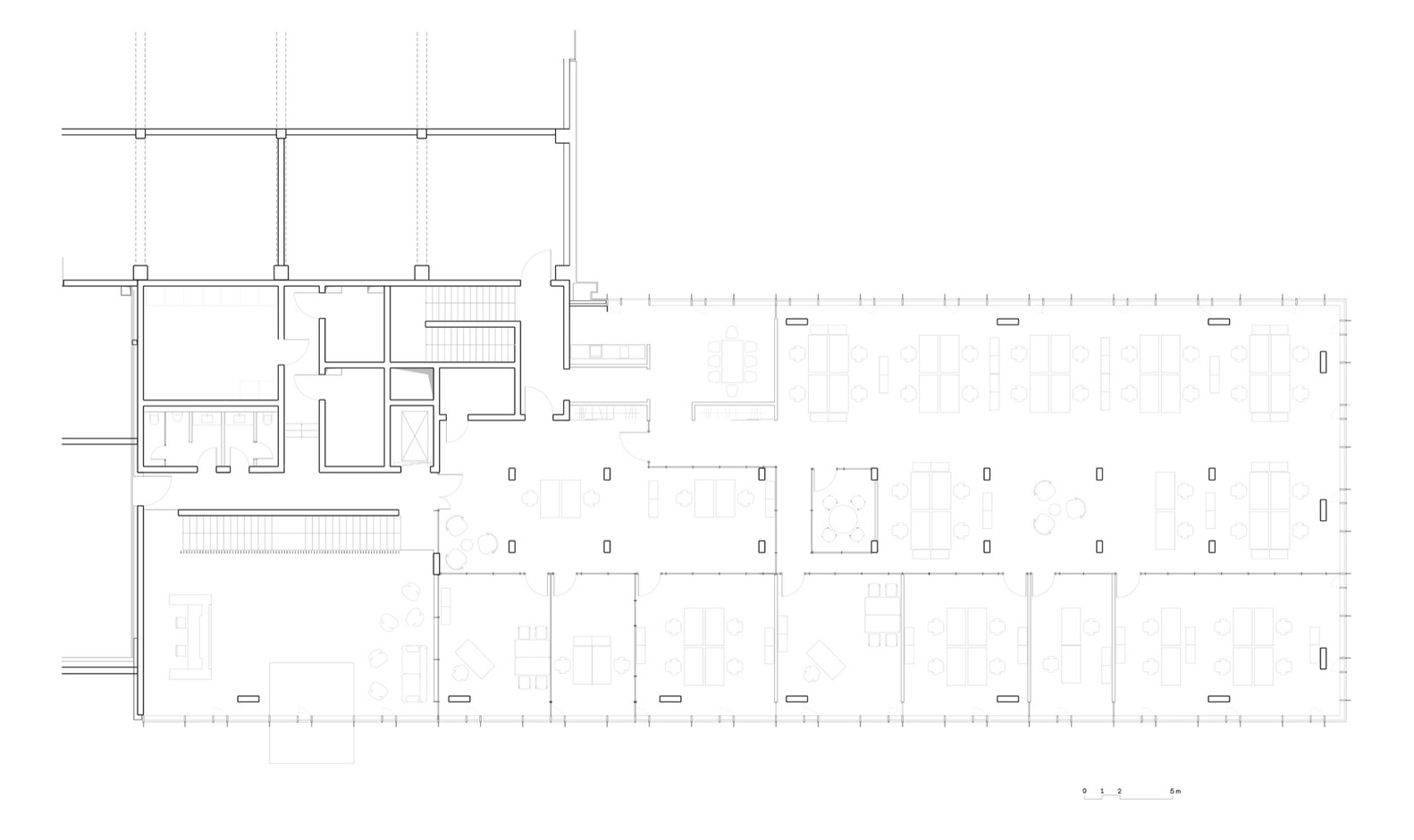
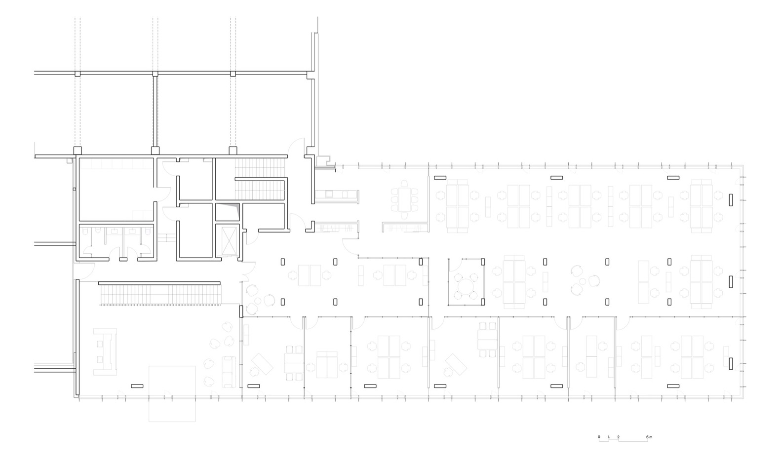
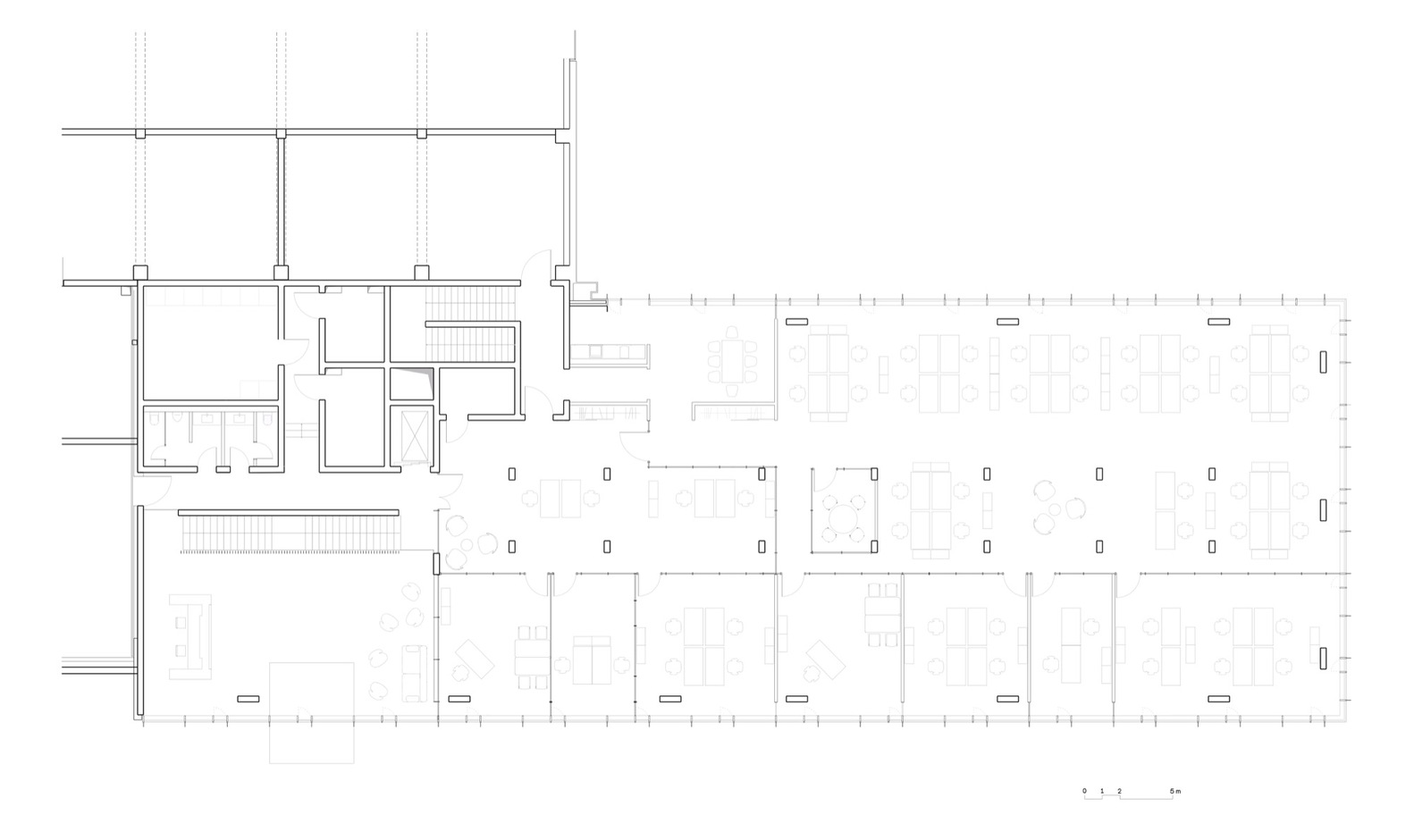
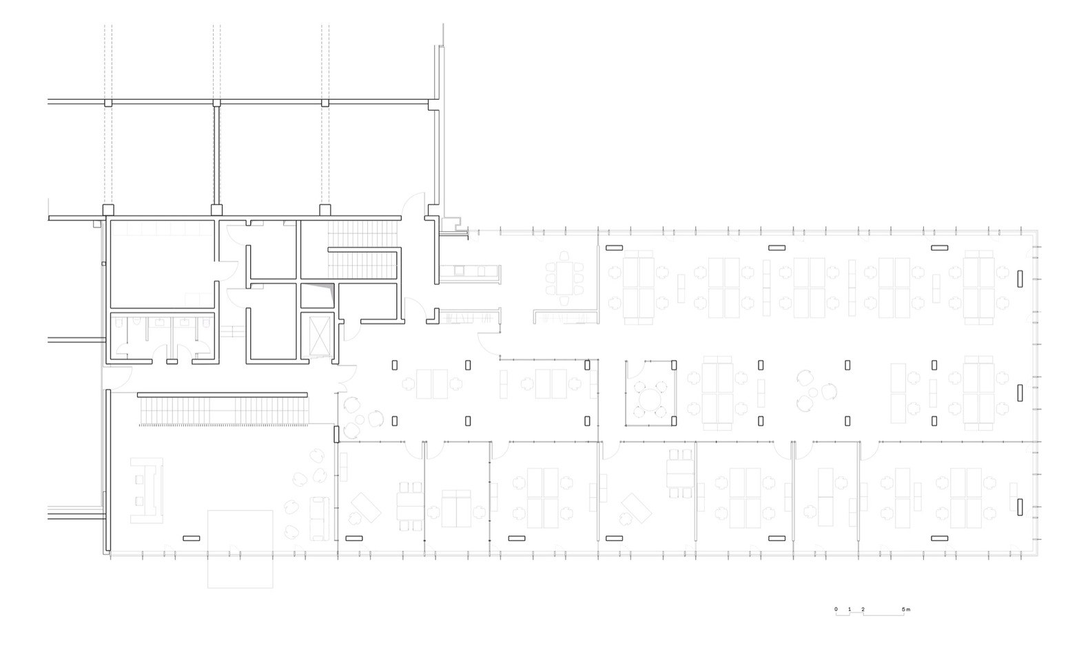
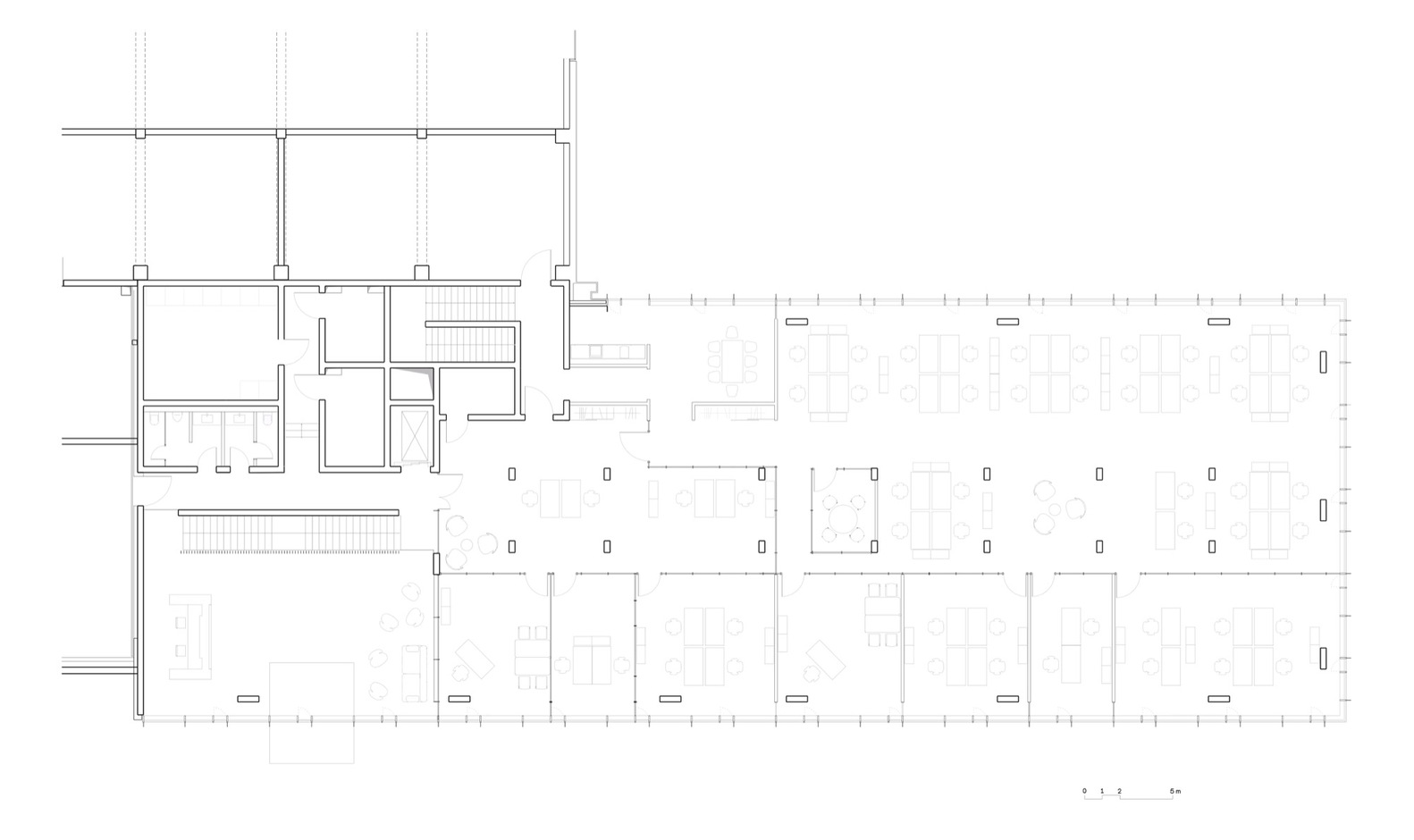
Barkow Leibinger-HAWE Office Building
After the opening of the HAWE plant in Kaufbeuren in 2014, the first expansion was completed at the beginning of 2021: an extension of the front building by an additional 1,000 square meters providing space for 70 employees at the company, which specialized in hydraulic systems. The new building, completed after just one year of planning and construction, houses staff from the areas of marketing, development, and experimentation who had previously worked at a site in Altenstadt, which is now closed.
The extension marks the office building even more clearly as a representative area and introduction to the expansive ensemble of production halls. The new building is attached to the existing building, which required some architectural interventions there as well. In the spirit of sustainability, the existing front wall was detached and reused, and the extensive green roof was also expanded.
The aluminum post and mullion façade with its extensive openings allows for a high degree of transparency and permeability in the interior spaces, and together with the glass walls continues the main feature of the existing building. External sun protection and ventilation flaps that can be opened manually ensure a comfortable working environment. The office spaces that can be used quite flexibly allow for different forms of working: from communicative open spaces to concentrated individual work or a private conversation in a phone box.






















from archdaily
'Office' 카테고리의 다른 글
| *바오롱 오피스 [ H.a + NQN. ] Bao Long Office (0) | 2023.07.03 |
|---|---|
| *프리미어 오피스 [ Tropical Space ] Premier Office (1) | 2023.07.02 |
| *인큐베이터 스페이스 [ IF_DO ] The Hithe Business Incubator Space (12) | 2023.06.09 |
| *타스트럽 시티홀 [ PLH Arkitekter-Høje ] Taastrup City Hall (52) | 2023.05.31 |
| *탈리에신 건축스튜디오 [ Taliesyn Design & Architecture ] Taliesyn 123 Office (0) | 2023.05.25 |


