
![]() |
![]() |
![]() |
Estúdio 41-Sede da Newe
이 프로젝트에 채택된 전략은 기존 공간의 기능을 개선하여 야외 환경과 효율적으로 통합하는 것이었습니다. 세로로 배치된 내부 박스의 도입은 공간에 대한 인식을 재정의하여 상호 작용과 회의를 위한 매력적인 장소로 탈바꿈시켰습니다. 투명하고 빛이 투과되는 소재의 선택은 밝고 통풍이 잘되는 내부 분위기를 조성하는 것을 목표로 하는 이 건축 컨셉의 주요 기둥 중 하나입니다. 지붕의 반투명 타일과 코보고 패널의 시너지 효과는 풍부한 자연 채광을 가능하게 할 뿐만 아니라 내부와 외부 공간 사이의 유동적인 관계를 설정하여 주변 정원과의 연결을 강화합니다.translate by DeepL































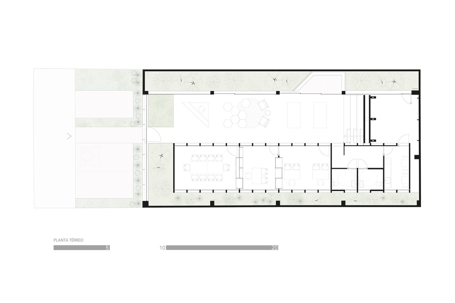
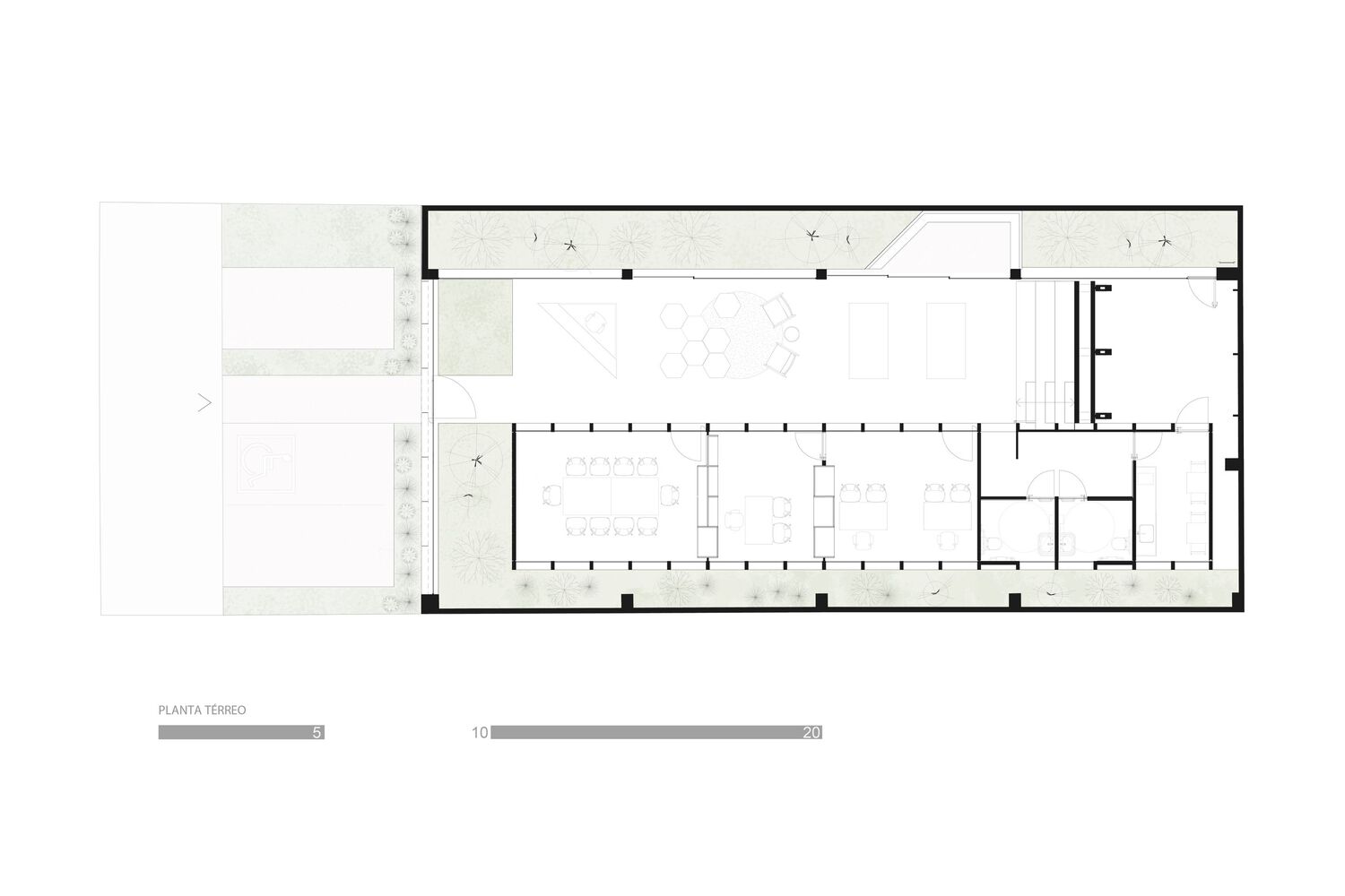
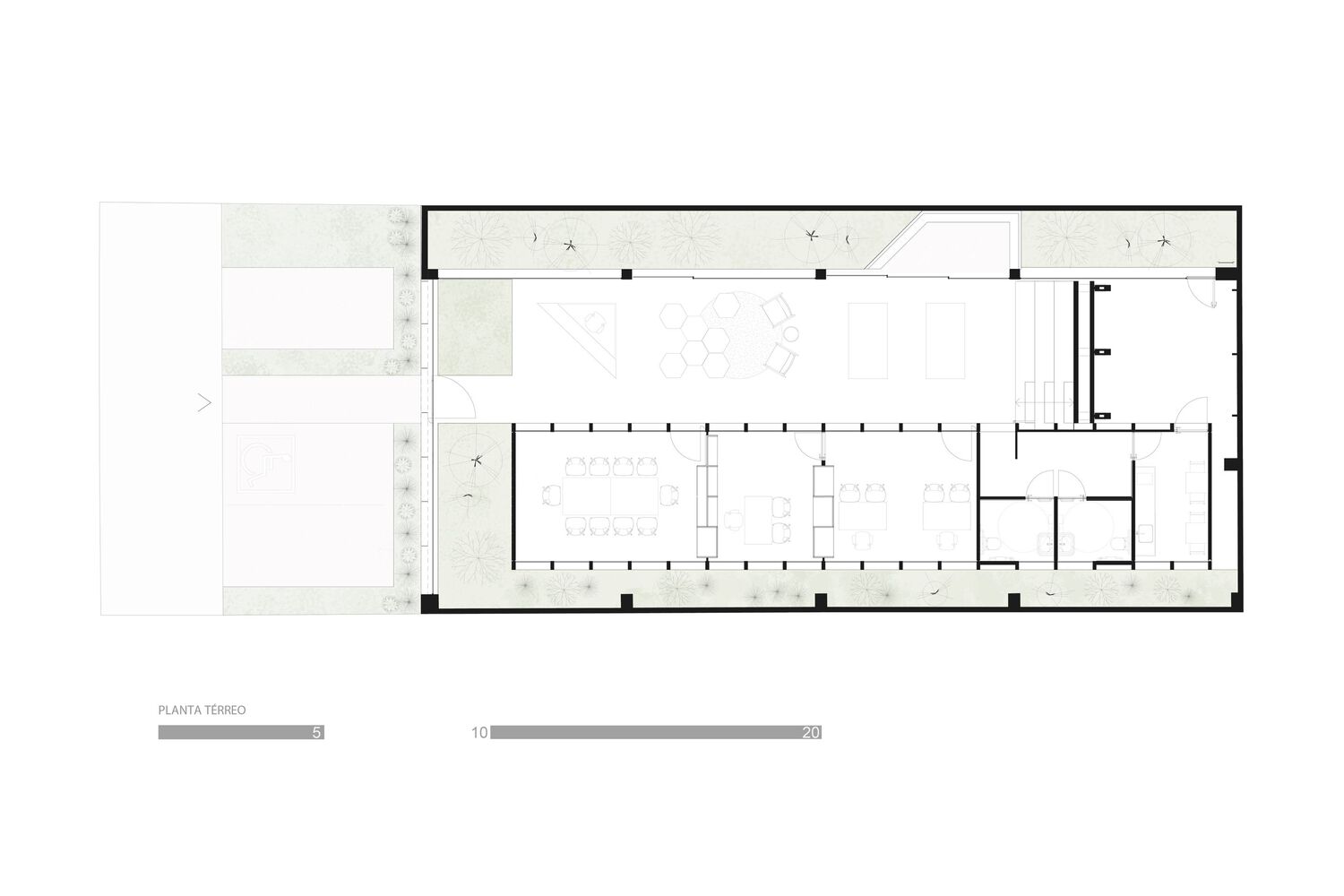
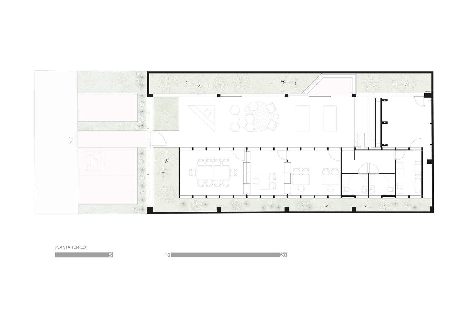
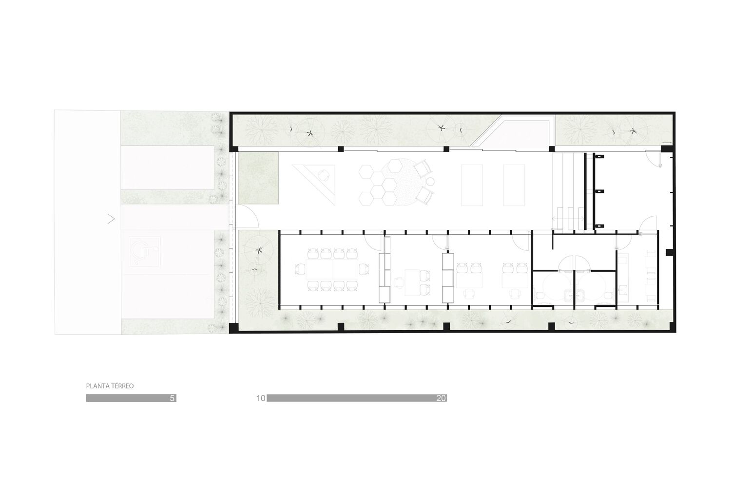
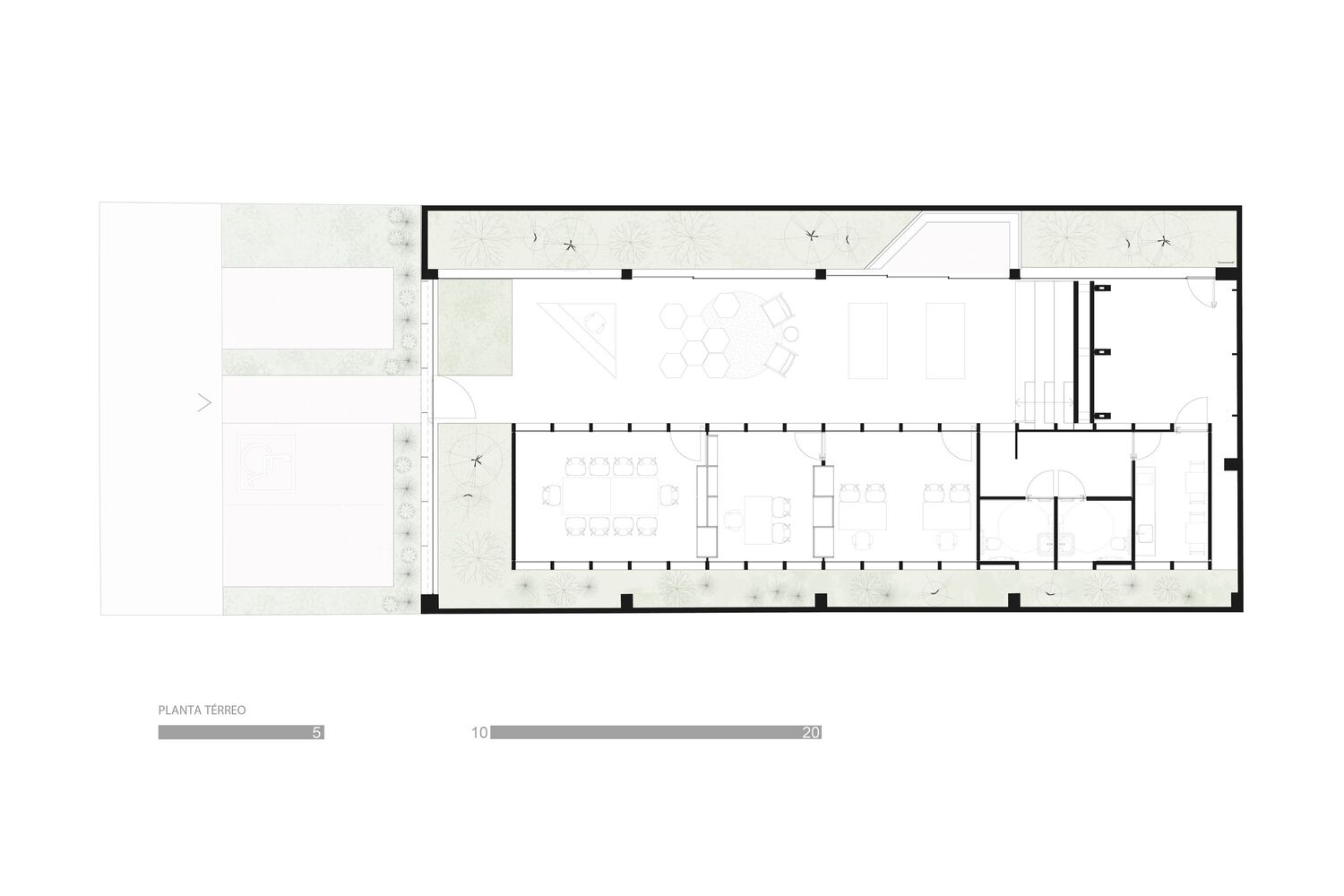
The redesign of the existing warehouse to house the Newe company headquarters stands out for the introduction of a new volume that encompasses all scheduled activities. It is a box inserted inside another, providing a unique spatial dynamic, characterized by a longitudinal format. This internal layout creates an environment of arrival, welcome and interaction. The architectural proposal incorporates the strategic use of translucent tiles on the roof, in addition to front and side panels made of cobogós. These elements are used with the aim of maximizing the entry of natural light onto the two main surfaces of the external box. This approach not only promotes natural lighting, but also facilitates connection with the adjacent gardens, present on the borders of the space.
The strategy adopted for this project is to improve the functionality of the existing space, integrating it efficiently with the outdoor environment. The introduction of the internal box, with its longitudinal arrangement, redefines the perception of space, transforming it into an inviting place for interactions and meetings. The choice of transparent and light-permeable materials is one of the main pillars of this architectural concept, aiming to create a bright and airy internal atmosphere. The synergy between the translucent tiles on the roof and the cobogó panels not only allows for abundant natural lighting, but also establishes a fluid relationship between internal and external spaces, strengthening the connection with the surrounding gardens.
from archdaily
'Office' 카테고리의 다른 글
| *오스파냐 헤드쿼터 [ Daniel Canda ] OSPAÑA Obra Social Headquarters_A Paradigm of Adaptive Architecture (0) | 2024.01.30 |
|---|---|
| *오피스디자인 [ CPLUS ] Beijing FUNS iTown H9 Office Design (1) | 2024.01.23 |
| *무주공간 오피스 [ Atsushi Tasaki Architecture and Design ] Office 2023 (0) | 2023.08.31 |
| *바오롱 오피스 [ H.a + NQN. ] Bao Long Office (0) | 2023.07.03 |
| *프리미어 오피스 [ Tropical Space ] Premier Office (1) | 2023.07.02 |


