
![]() |
![]() |
![]() |
Schemata Architects + Jo Nagasaka-Komaeyu Public Bathhouse
This project is the second public bathhouse Schemata Architects has designed. Originally, sento (public bathhouses) quickly sprang up in the Kanto region when there were no baths in homes, especially after World War II, to improve public sanitation. At that time, Mt. Fuji was painted on the walls of many sento in the Kanto region as a symbol of hope. And the daily routine of going to the bathhouse connected people, and the bathhouse functioned as a place for the local community.
More than half a century later, public bathhouses have become obsolete as every household has its bath, and showering in the morning has become a common practice under the influence of Western culture. Of course, some customers come to the bathhouse as part of their daily routine even though they have a bath at home, but this is not enough to carry on the bathhouse business to the next generation, and recently, bathhouses have been disappearing from the city in the blink of an eye.
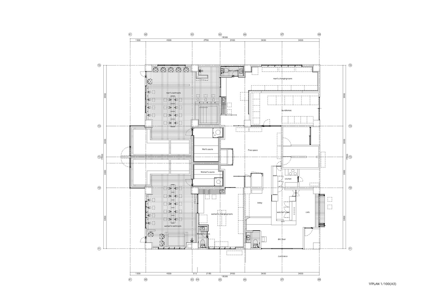
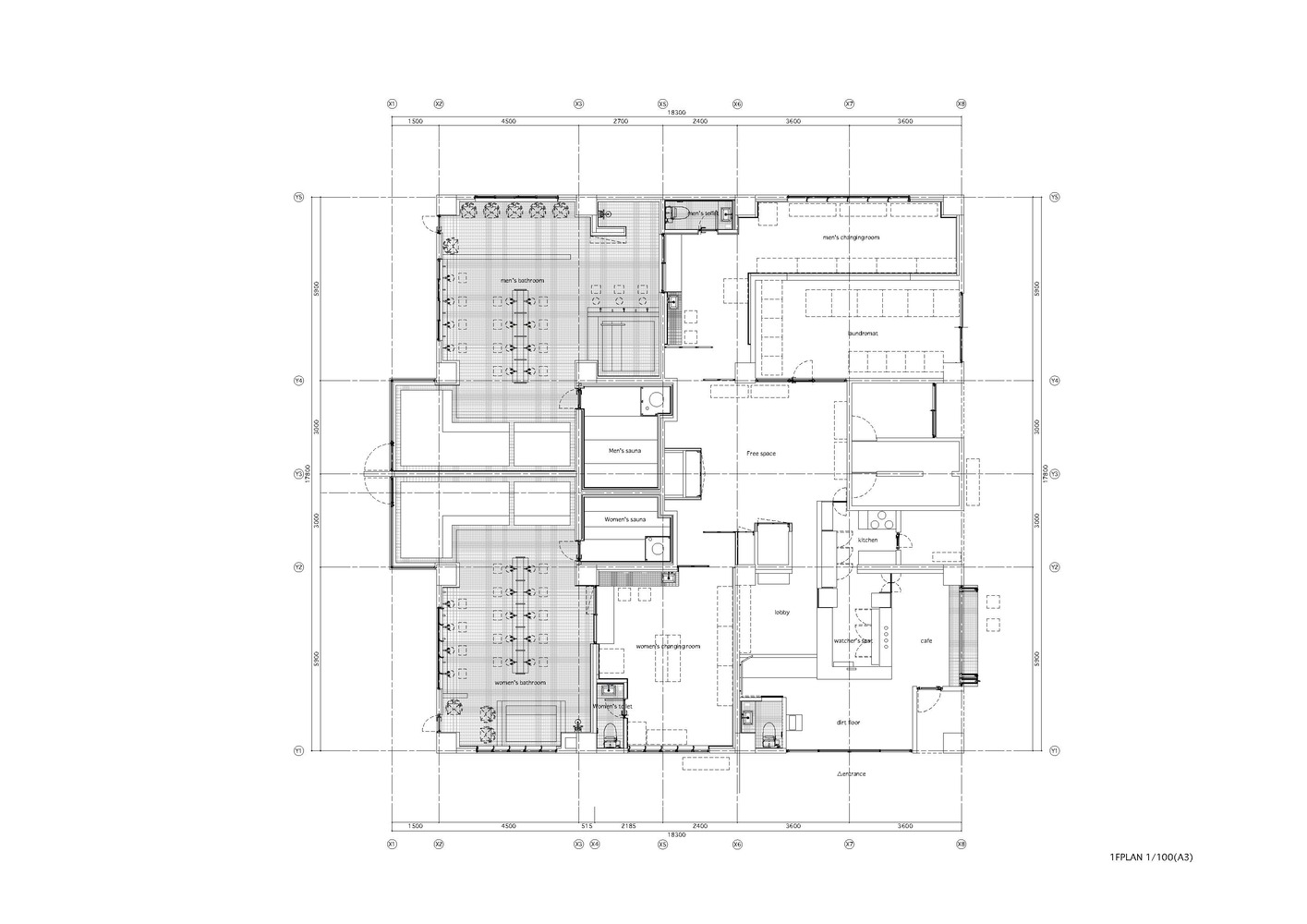
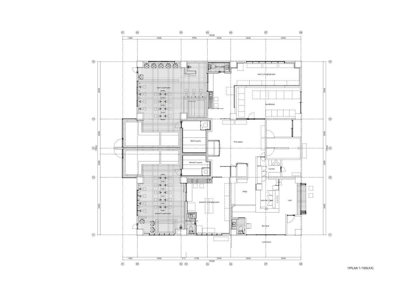
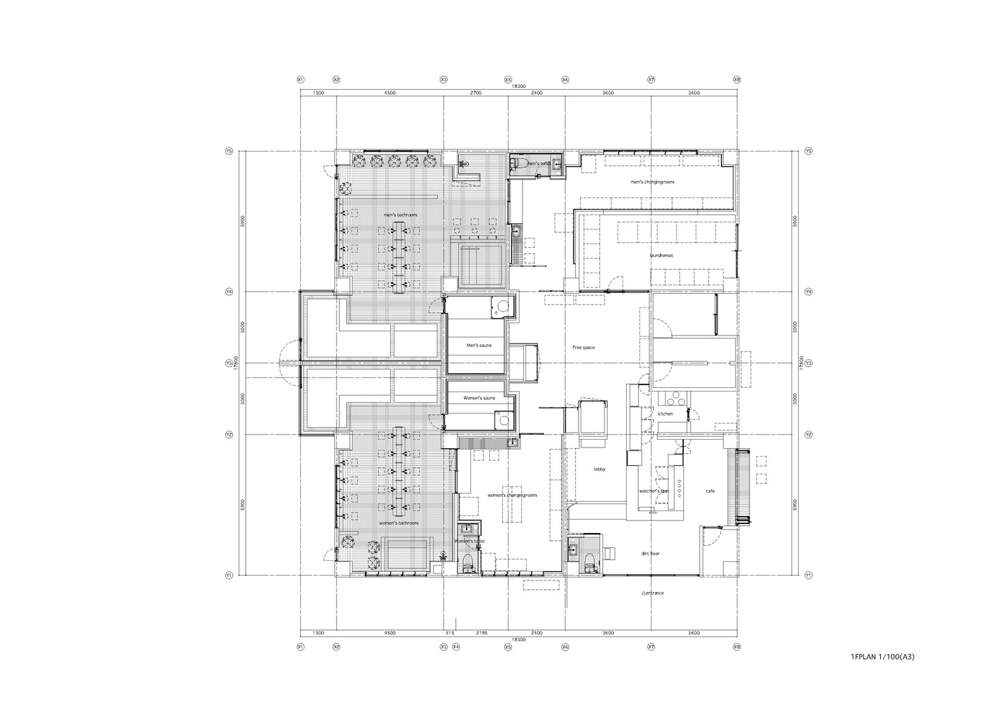
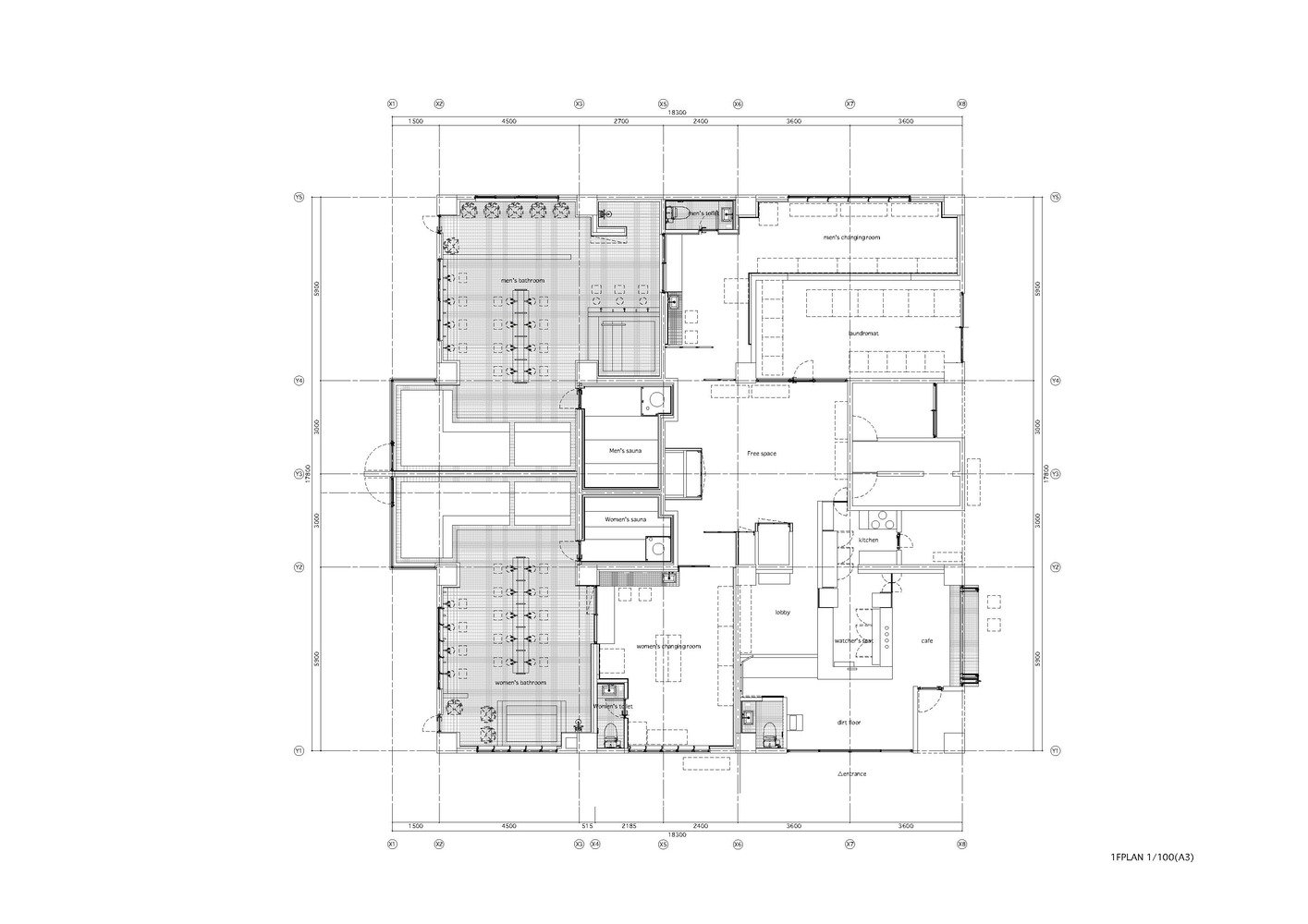
Komae-yu was one such example, but the owner, Mr. Nishikawa, wanted to preserve the bathhouse and decided to manage it himself as the successor. Meanwhile, he saw the Koganeyu, the first public bathhouse we had undertaken and approached us. At Kogane-yu, in the hope of offering a little extra refreshment, we provided a sauna and a "bandai" (reception counter) where you can drink beer, in addition to bath facilities. The same concept was used for this project. Since the location is only a 30-minute walk or a 15-minute train ride from where I live, I took on the design as if it were my go-to bathhouse and community.
Initially, like Kogane-yu, Komae-yu was a building type public bathhouse, part of a reinforced concrete building with living space on the upper floors. However, because the site is in the suburbs of Komae, there are many vacant lots nearby, and we decided to create a public bathhouse that would take advantage of the available space. We imagined how the vacant space would intertwine with culverts that have turned into green spaces over time and decided that we could create a public bathhouse that would incorporate such greenery, along with cozy saunas and a bar. We custom-made original green tiles in Tajimi to create an affinity with the greenery.

























from archdaily
'Commerce' 카테고리의 다른 글
| *벽돌 오피스 [ Mecanoo ] One Silk Street (0) | 2023.07.24 |
|---|---|
| *셀러도어 [ Lucy Clemenger Architects ] Delatite Cellar Door (0) | 2023.07.21 |
| *팩토리 리모델링 [ Mix Architecture ] Renovation of Nanjing Combat Machinery Factory (0) | 2023.07.07 |
| *비앤에이 워터프런트 [ StudioMAS ] The Ridge_V&A Waterfront (0) | 2023.07.06 |
| *바람길 태양길 [ Behet Bondzio Lin Architekten ] Watermoon Tea House (0) | 2023.04.18 |


