
![]() |
![]() |
![]() |
StudioMAS-The Ridge_V&A Waterfront
The design involved a close collaborative process between studioMAS and Arup. The result is a rational design in which architecture and engineering are thoroughly integrated, having been developed side by side from the earliest conceptual stage. The façade, executed using Cross Laminated Timber (CLT), gives the building its distinct identity.
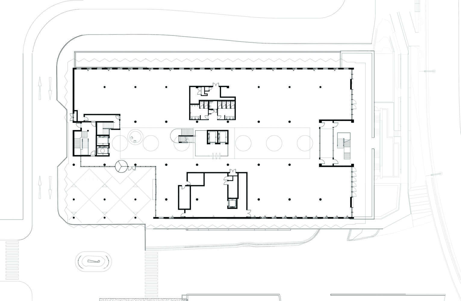
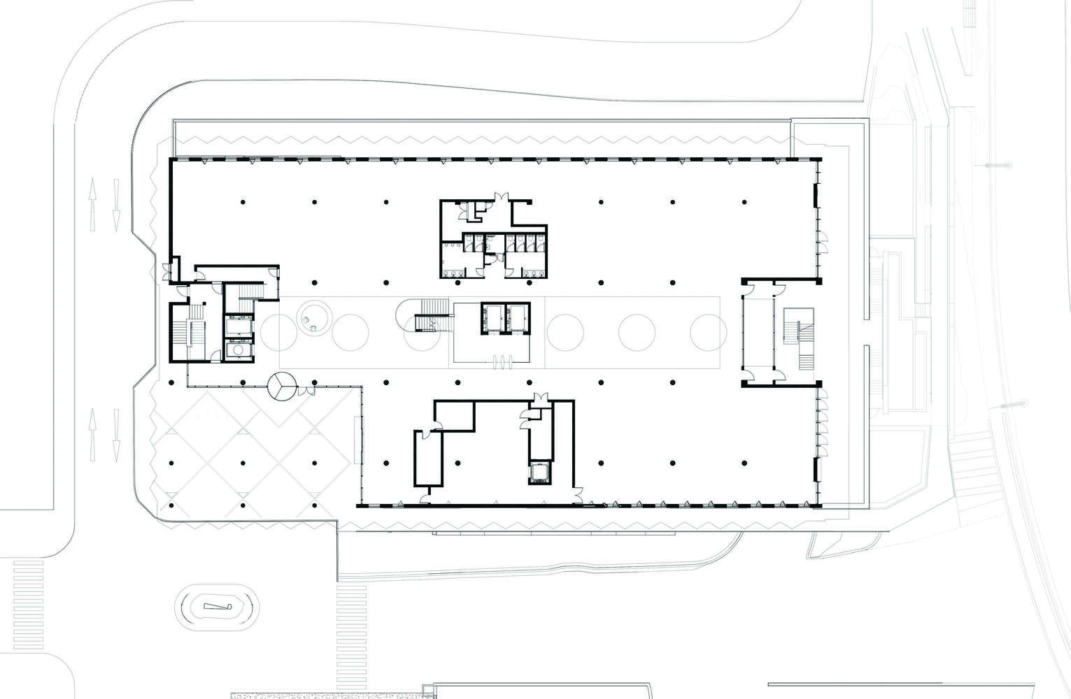
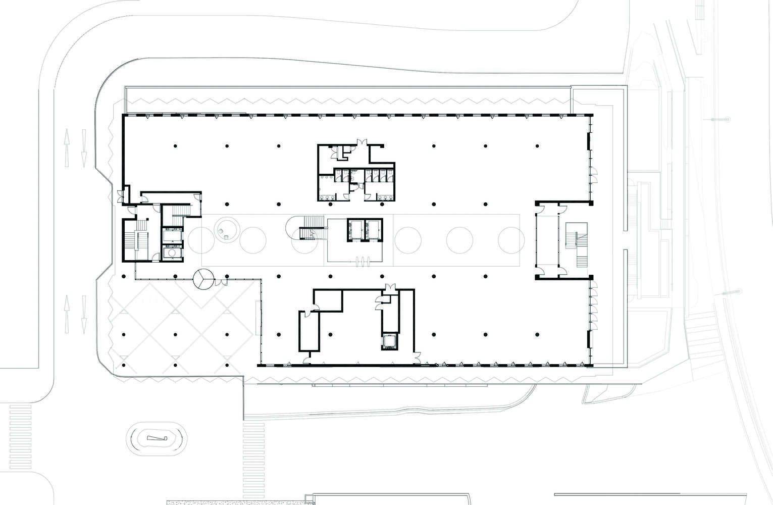
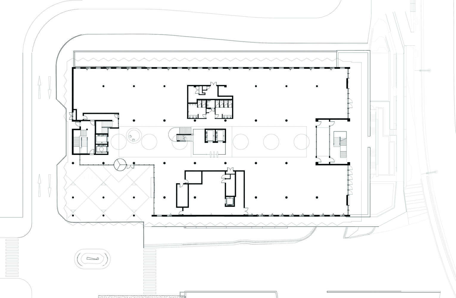
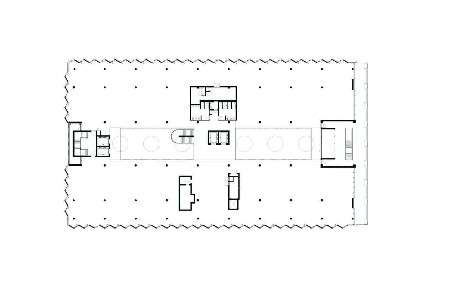
The site, previously a parking lot, is rectangular and orientated at a slight diagonal from north south. The pleated timber façade corrects this by folding the timber or glazing onto a direct north-south which assists with the sun control strategy. The carbon savings involved in the use of CLT are significant. It is local, renewable, and highly durable. It requires no additional finishes to the interior or exterior, no insulation, it’s a room temperature material, and ultimately it allows for the timber façade to improve with time as its weathers and ages.
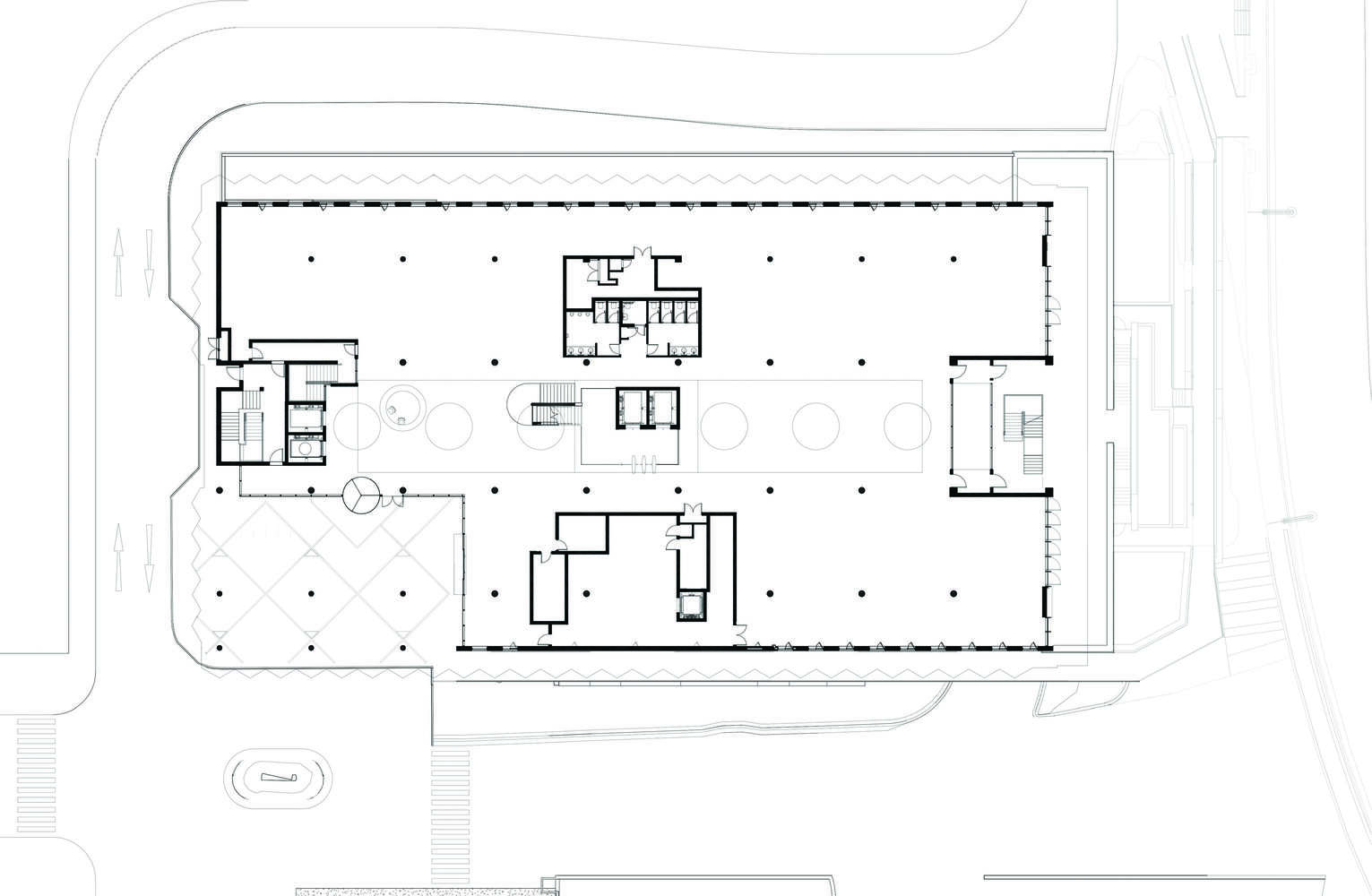
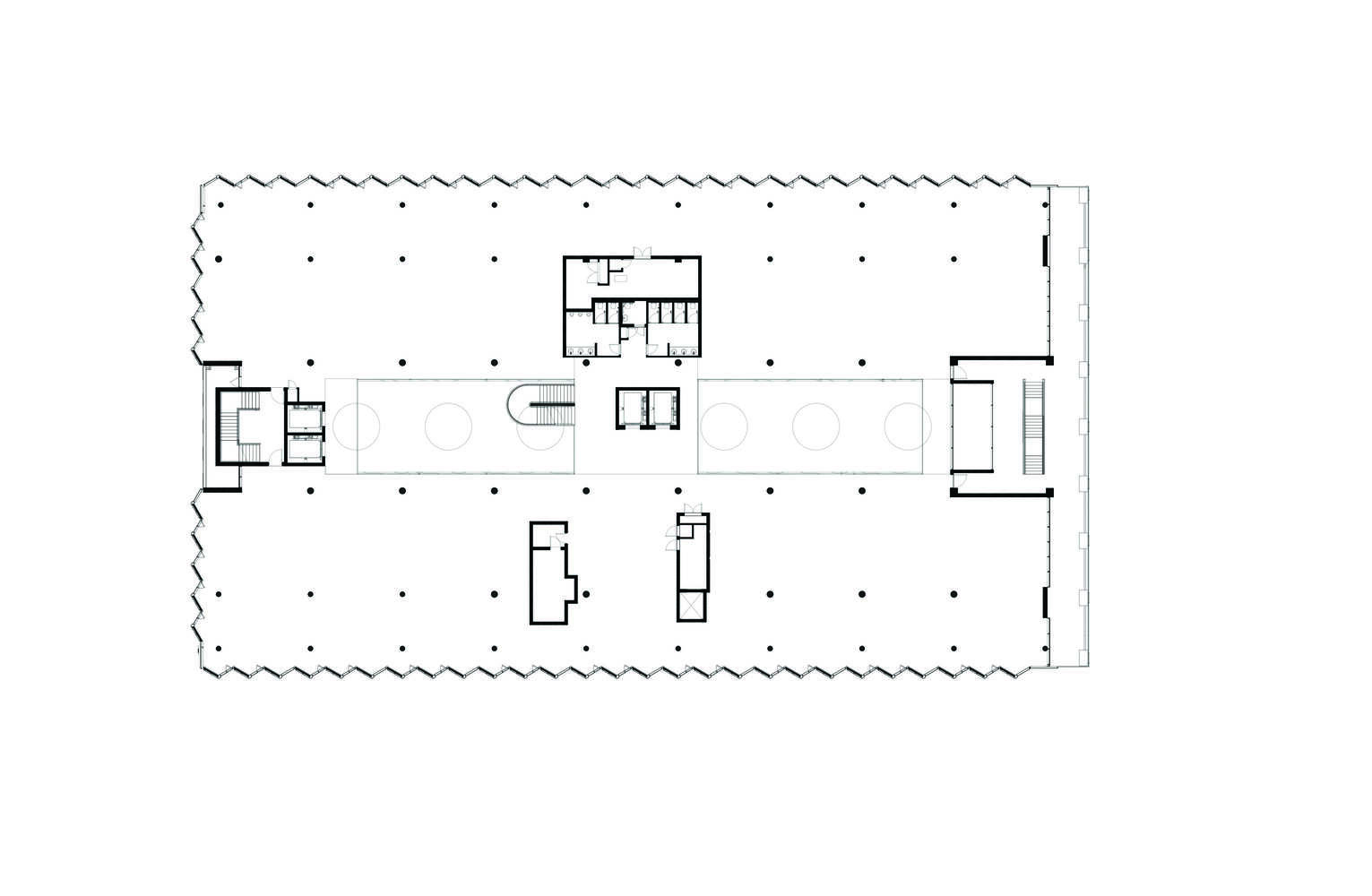
Cooling is achieved using primarily natural ventilation. Windows are either manually or automatically operated. The deep rectangular floor plates are centrally split with a naturally ventilated street/atrium which allows for cross ventilation and natural lighting. This central nat-vent street has a row of large high level drums that act as both chimneys and light scoops (automated windows at the roof level control air movement through drums). The dimensions of the floor plates, the central street, the façade design, and TABS (thermally activated building system i.e. chilled water pipes cast in floor slabs) make it possible to control the temperature of the building passively for approximately 82% of the year.
The drums and central street define the interior space: it’s where people circulate, meet, and interact. This street and entrance piazza also speak to the larger urban plan which will unfold as the precinct develops, which opens connections between the V&A Waterfront and Greenpoint and which will ultimately contribute to creating a more integrated connected city.












from archdaily
'Commerce' 카테고리의 다른 글
| *고매유 공중목욕탕 [ Schemata Architects + Jo Nagasaka ] Komaeyu Public Bathhouse (0) | 2023.07.20 |
|---|---|
| *팩토리 리모델링 [ Mix Architecture ] Renovation of Nanjing Combat Machinery Factory (0) | 2023.07.07 |
| *바람길 태양길 [ Behet Bondzio Lin Architekten ] Watermoon Tea House (0) | 2023.04.18 |
| *집속의 집 [ atelier tao+c ] ZIIN Beijing Store (0) | 2023.04.06 |
| *레드블럭+실린더 [ G+ Architects ] NAM Coffee (12) | 2023.03.15 |


