
![]() |
![]() |
![]() |
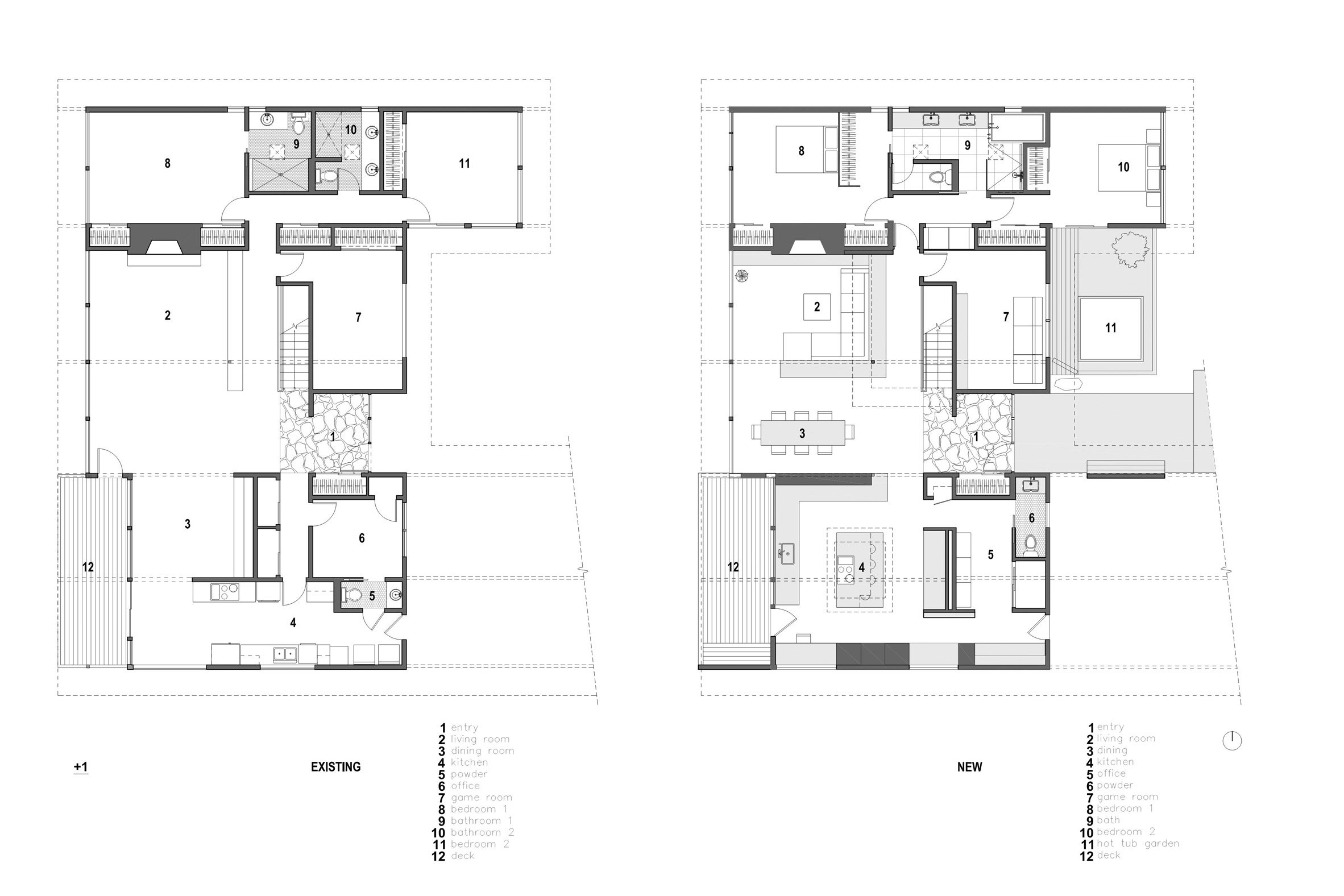
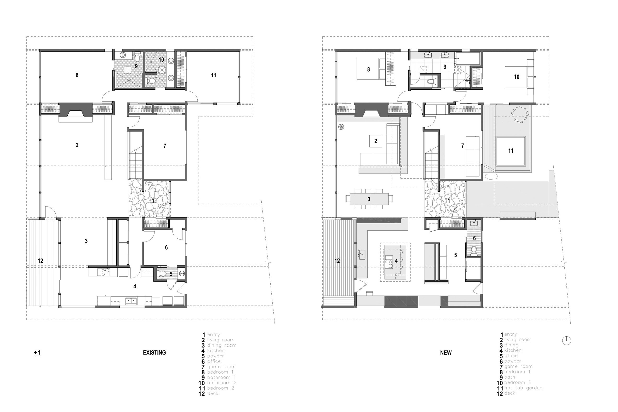
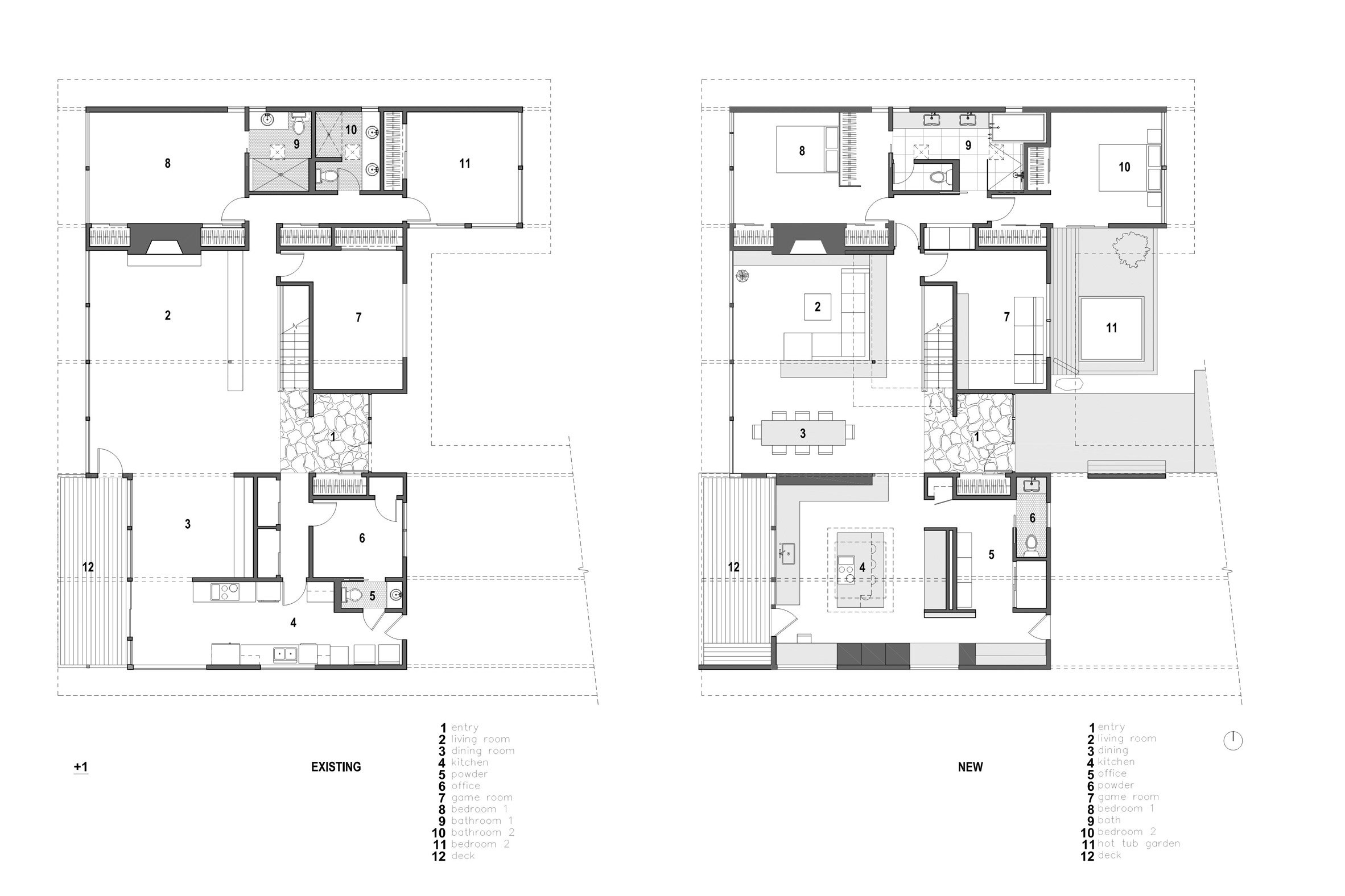
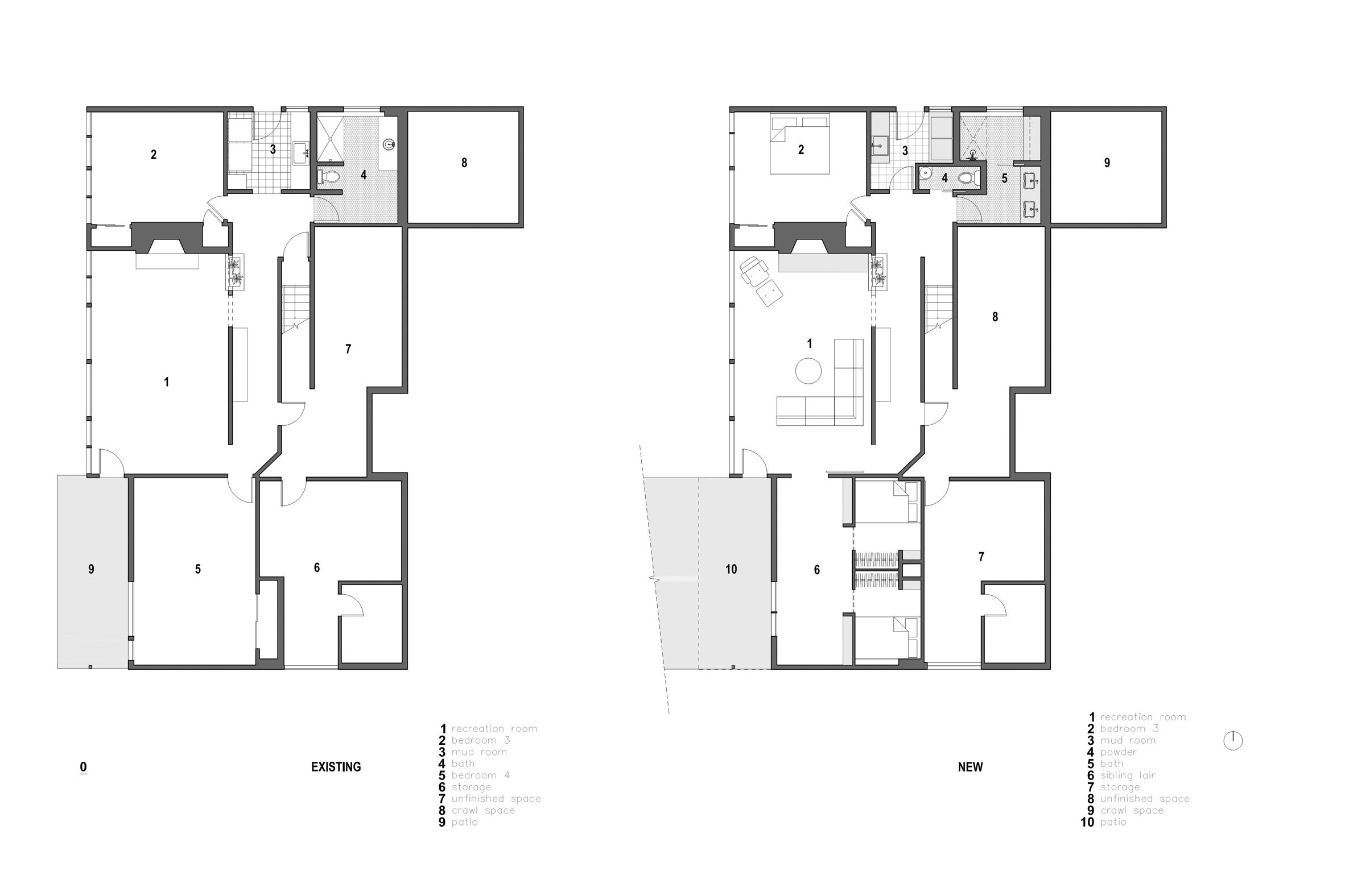
SHED gives mid-century Golden House in Seattle an extensive update
미국 지역회사 %%는 59년에 지어진 건물을 5명을 위한 단독주택으로 리노베이션 하였다. 디자인 컨셉은 미드센츄리 컨셉으로 따뜻하면서도 세련된 느낌을 전달하는 인테리어가 특징이다.





















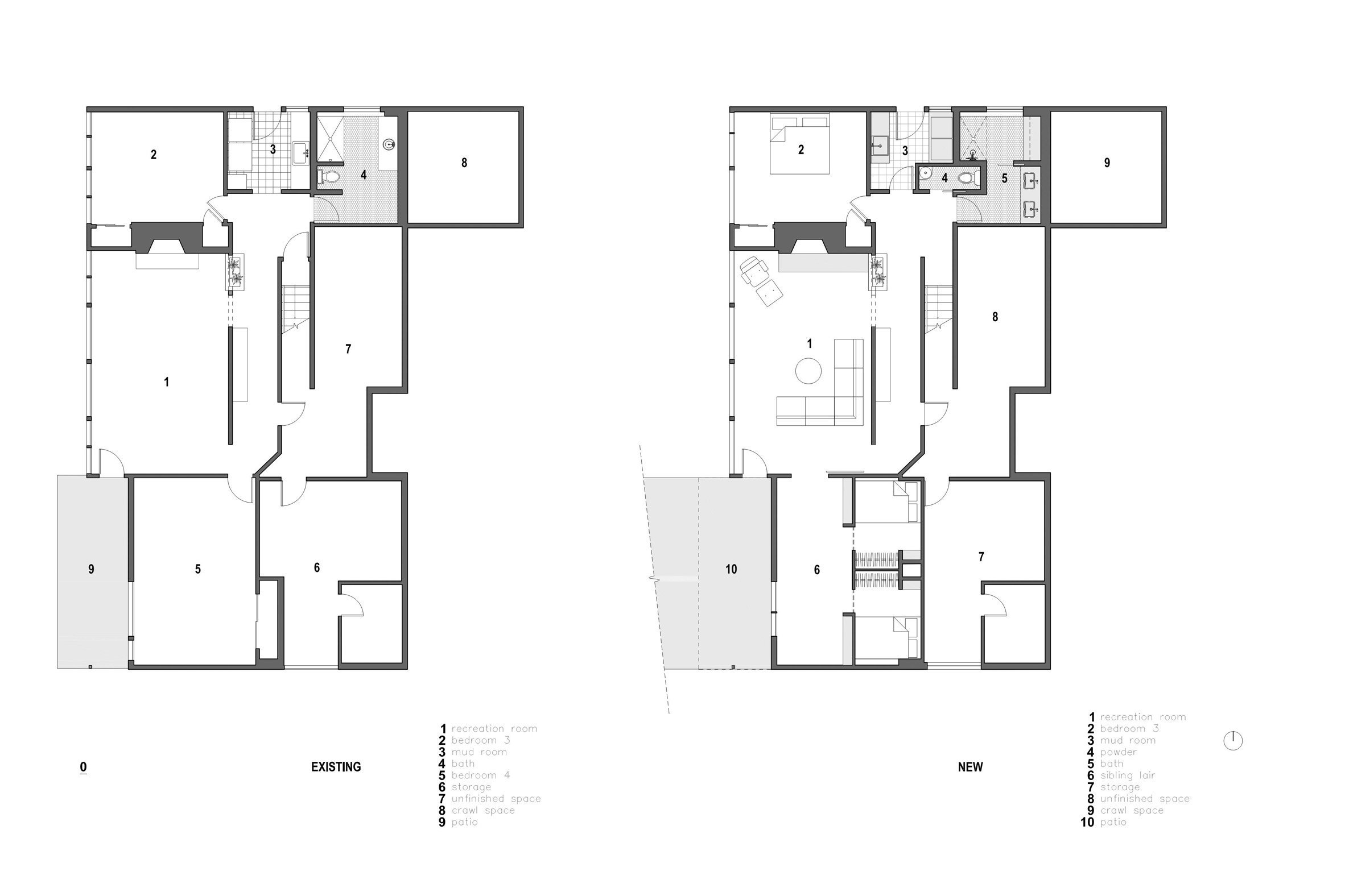
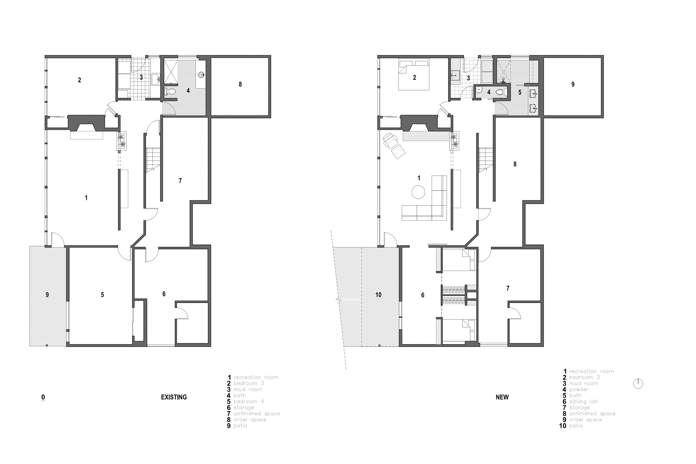
American firm SHED Architecture and Design has transformed a 1950s building that formerly served as an adult living facility into a contemporary home for a family of five.
The Golden House is located in Shoreline, a community just north of Seattle, and sits on a large lot with views of the Olympic Mountains and Puget Sound.
Designed by an unknown architect in 1959, the 4,080-square-foot (379-square metre) house was converted into an adult living facility years ago.
Local firm SHED Architecture and Design was charged with turning the two-storey building back into a single-family house for a couple and their three children.
from dezeen
'House' 카테고리의 다른 글
| *미나미마치 하우스 [ Jun Yamaguchi Architects ] House in Minami-machi (0) | 2023.09.08 |
|---|---|
| *와이너리 리노베이션 Faulkner Architects perches Big Barn house on Sonoma Valley hillside (0) | 2023.09.05 |
| *와이너리 하우스 개조 [ Studio Jil Bentz ] Domaine Claude Bentz (0) | 2023.08.30 |
| *교토 우드 미니멀 하우스 [ RYUE NISHIZAWA ] SHOCHIKUCHO HOUSE IN KYOTO (0) | 2023.08.29 |
| *모더니스트 마스터피스 [ Eileen Gray ] E.1027 Villa (0) | 2023.08.28 |


