
![]() |
![]() |
![]() |
Croxatto y Opazo Arquitectos-Lagunita House
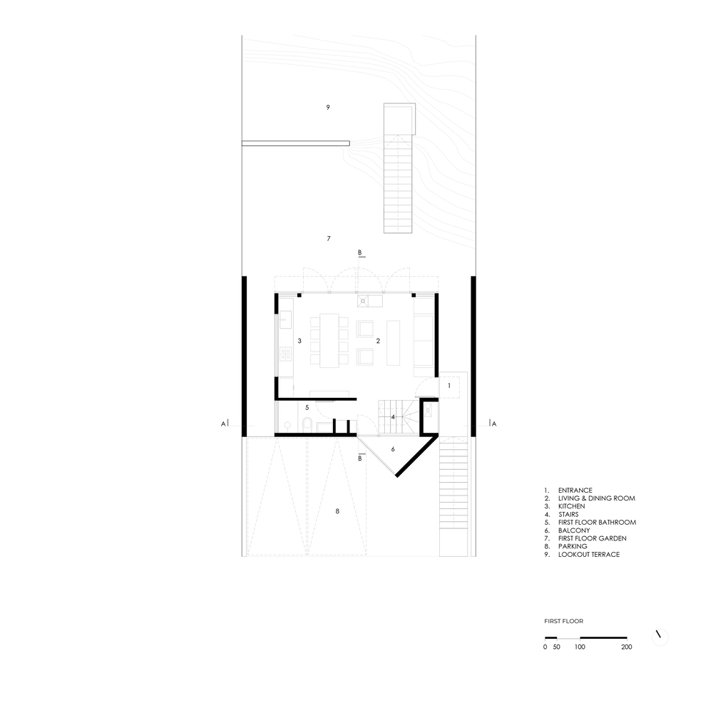
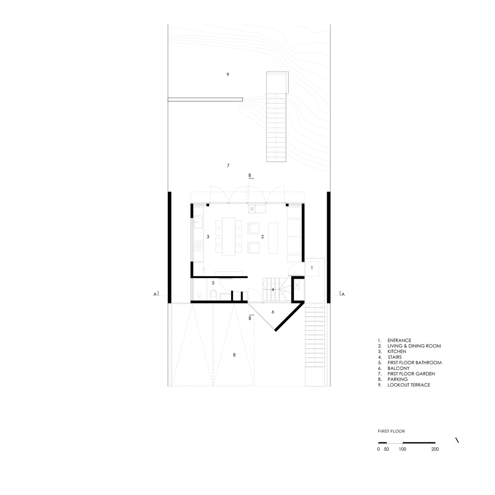
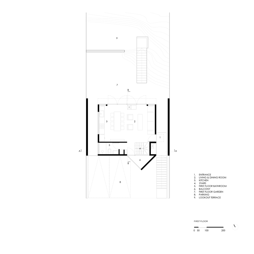
외부 목재 계단을 이용하여 거리에서 3미터 높이에 있는 2층으로 올라 갈 수 있다. 가로7* 세로7* 높이 5.5 크기의 심플한 백색 나무 큐브는 하우스 프로그램을 심플하면서도 경제적으로 구축할 수 있는 방법으로 제안된다. 3층은 대지의 가장 높은 곳에 위치하며 마이텐시요, 플라야 라구나, 라구나 마을을 내려다 볼 수 있는 테라스도 설치된다.

















The Lagunita House is a second home project located in Laguna Zapallar, Zapallar commune, 183km northwest of Santiago. The "Laguna de Zapallar" area is located on the north side of Maitencillo, divided by the estuary of the Catapilco River. It borders the Cachagua Spa to the north, "Playa La Laguna" to the west, and Ruta E-30 to the east.
The project is located on a 300m2 plot of land, with the north and south sides measuring 10m wide and the east and west sides measuring 30m long. The land has a 25° slope that rises from the south side, which borders the street, to the north side. The project's strategy aims to make use of the entire plot of land, dividing the surface into 3 main platforms contained by two concrete walls that shape and support the hillside. The first platform, or level 1, houses the arrival parking spaces, directly connected to the vehicular circulation.
An exterior wooden staircase allows for access to the second level, which is elevated 3 meters above the street. Here, a simple white wooden cube measuring 7m x 7m in plan and 5.5m high houses the entire housing program, allowing for a simple and economical structural solution. A third level is located at the highest part of the land, featuring a terrace with views towards Maitencillo, Playa Laguna, and the town of Laguna.
Upon entering the house, the living room, dining room, and kitchen program are integrated and completely covered in 1x4" raw insigna pine, treated with a soft white wash of paint. A large part of the south side becomes hermetic, providing privacy in its relationship with the exterior. Towards the north, six large Oregon pine windows open up, incorporating a small decorative patio, allowing for an expansion of the spatial sensation and dressing the interior with vegetation.
To connect the second level of the house, a mixed staircase was designed. It advances with a first section made of planed pine wood, both the structure and the envelope, and then fans out and connects to a second folded metal section that is 5mm thick, reinforced on its lower side with triangular metal ribs welded to the main body of the structure.
from archdaily
'House' 카테고리의 다른 글
| *체리밸리 [ StudioAC ] Cherry Valley (0) | 2023.12.06 |
|---|---|
| *그린하우스 Hayhurst and Co designs low-energy London home as "domestic-scale greenhouse" (0) | 2023.12.05 |
| *블럭블럭 [ Jorge Garibay Arquitectos ] Lujambio House (0) | 2023.11.27 |
| *하우스 리오 [ Krupinski/Krupinska Arkitekter ] House Rio (0) | 2023.11.22 |
| *루프테라스 공동주택 PSLA Architekten tops urban townhouse with cascading roof terraces (0) | 2023.11.20 |


