
![]() |
![]() |
![]() |
Bee Unit / SVET VMES-Kočevje Kindergarten
코체베예의 재개발 부지에 지어진 이 유치원은 이전에는 부적합한 건물에 분산되어 있던 프로그램을 한 곳에 모아 도시 일부를 재생시켰습니다. 350명의 어린이와 보호자를 위해 다양한 구석구석을 만들어 아이들의 선택의 자유, 은둔의 공간을 통한 프라이버시 권리, 관찰을 통한 학습의 가능성, 촉각적인 표면을 가진 건축 자재의 성실한 사용 등 다양한 공간 경험을 통한 공간 감수성 발달을 강조하는 새로운 학습 환경을 제공합니다.유치원 외피는 대지의 북쪽 도시 쪽을 향해 닫혀 하나의 외관을 형성하고, 남쪽 놀이터로 열리면 따뜻한 목재 내부가 드러나는 놀이방이 주변 환경과 대화를 나눕니다. 건물 자체는 '웅덩이'와 '언덕'이라는 두 개의 아트리아를 중심으로 유닛을 구성하여 빛이 깊은 1층 평면에 도달하고 공간적 경험을 더하며, 어린 아이들은 외부 놀이터와 직접 연결된 1층에 머무르고, 고학년 어린이 집 방은 옥상 놀이터와 직접 연결된 1층에 거주합니다. 이렇게 하면 건물의 면적을 최소화하면서 충분한 외부 놀이터 공간을 확보하고 모든 놀이방에 직접 접근할 수 있습니다.translate by DeepL


























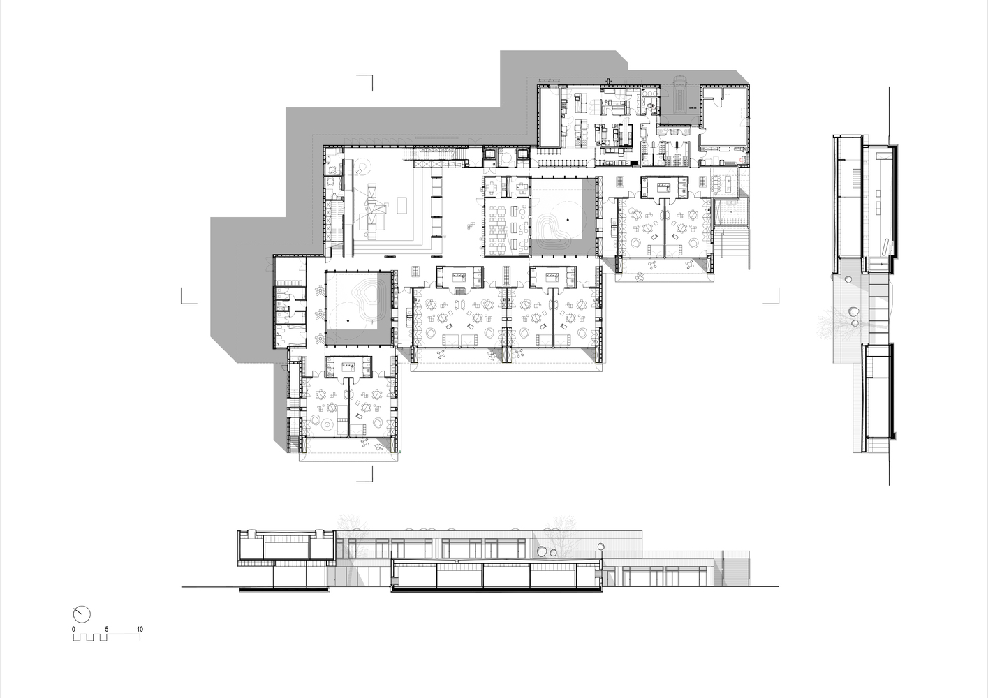
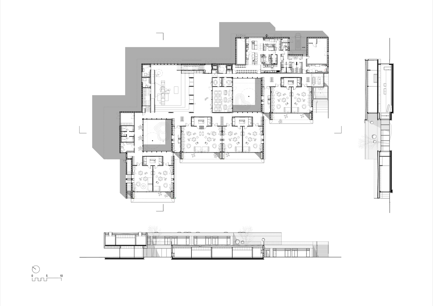
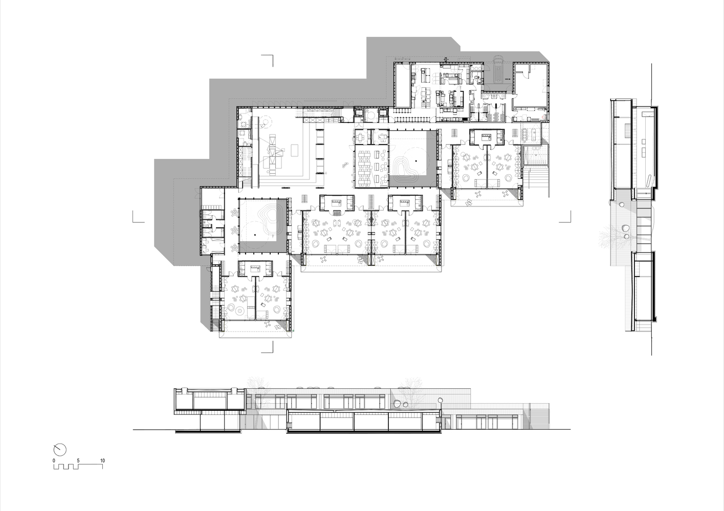
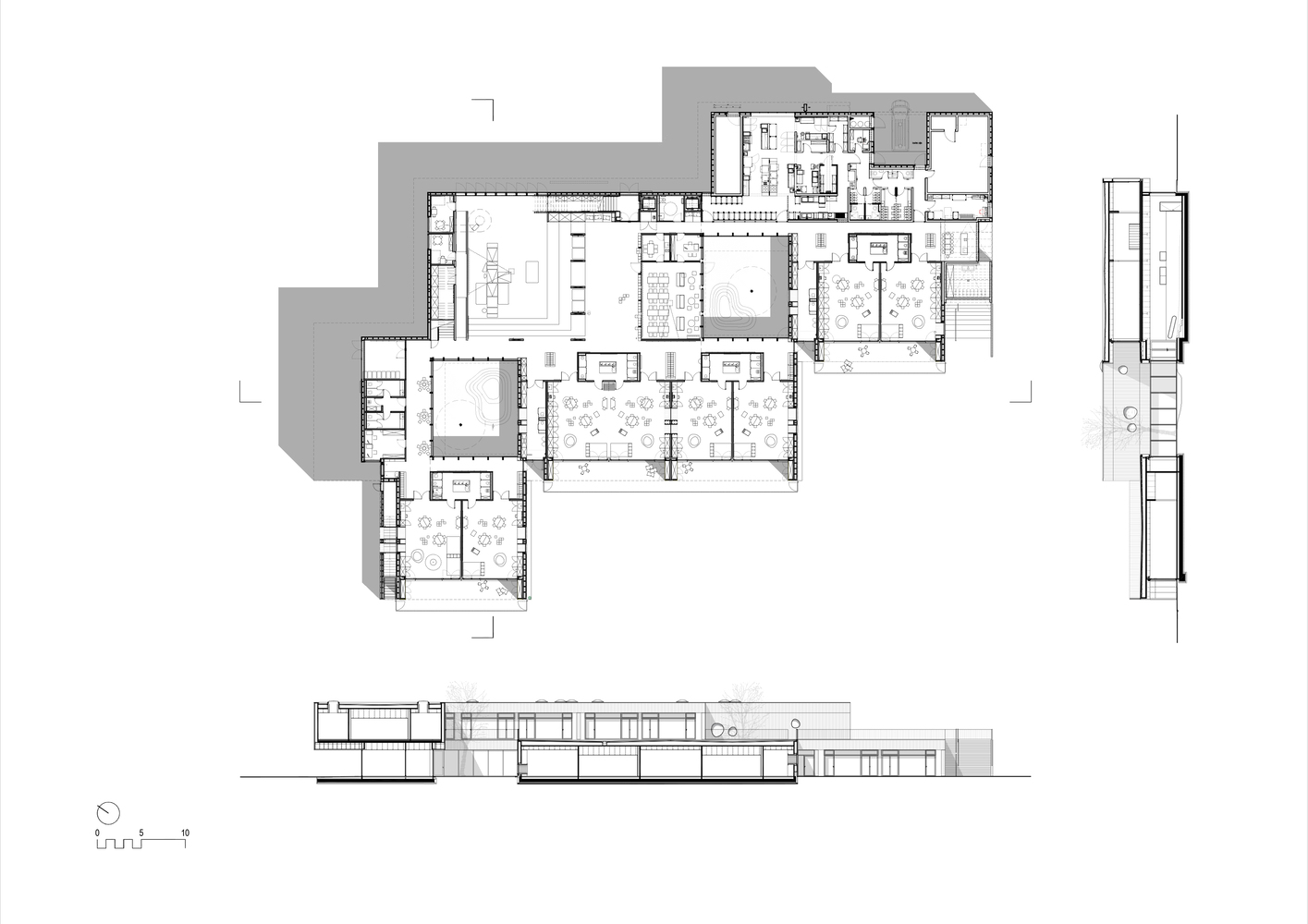
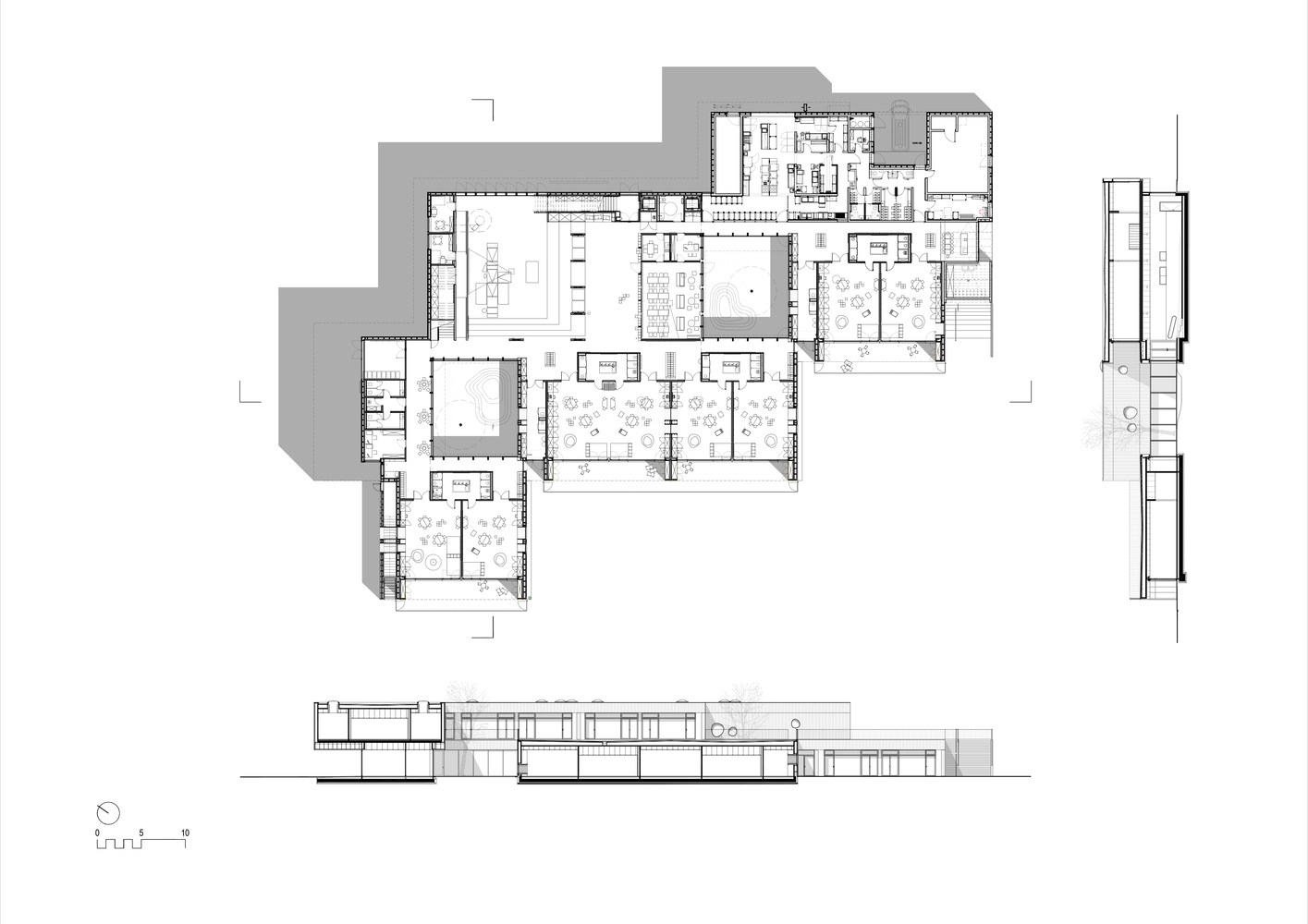
The kindergarten built in Kočevje on brownfield land regenerates part of town by condensing programme previously dispersed in unfit buildings. It provides a new learning environment that emphasizes the children’s freedom of choice by creating various nooks, the right to privacy with spaces of seclusion, the possibility of learning by observing, development of spatial sensitivity through diverse spatial experiences including sincere use of building materials with tactile surfaces for 350 children and their caretakers.
The kindergarten envelope closes towards the urban northern side of the plot, creating one appearance, and opens to the southern playground exposing the warm timber interior of the playrooms creating a dialogue with its context. The building itself organizes units around two atria - "puddle" and "hill" - that allow for light to reach the deep ground floorplan and add to the spatial experiences, with younger children staying on the ground floor with a direct connection to the exterior playground while the older children's home rooms inhabit the first floor with direct access to the roof playground. This way the footprint of the building is minimized while creating enough exterior playground area and direct access for all playrooms.
The irregularly shaped façade nooks, soften the building and place children as actors in the living façade everybody wants to play in windows. The building lives through the users and becomes a stage for the everyday life of children, their parents, their teachers, their cooks, and cleaners. The interior of the building shows off its wooden structure as much as possible, to give the interior a contrasting warmth. The interior thick playroom walls allow for storing of daybeds, toys, creations and form playful, upholstered nooks that allow children to peek into the outside world and observe their friends arriving in the morning or their grandparents in the afternoon to pick them up. The main stairs are doubled by a tunnel that only kids can use, to try and beat their parents to the top where a slide that disappears into the floor awaits.
from archdaily


