
![]()  | 
![]()  | 
![]()  | 
C.F. Møller + EFFEKT-Svendborg International Maritime Academy
시맥은 항구 산책로와 주변 도시 공간의 코스에 통합되어 있습니다. 건물의 평면도는 모서리에서 네 개의 정사각형을 이루는 십자형으로 설계되었으며, 개방형으로 설계되어 일반인이 공동 시설에 접근할 수 있습니다. 부두 자체는 학교의 업무와 해양적 미덕을 강조하는 야외 실험실이 됩니다. 건축 설계는 교육의 물리적 틀에서 개방성과 유연성을 극대화하는 모듈식 건축 그리드를 기반으로 합니다. 이 구조는 하중 지지 구조와 물류를 방해하지 않으면서도 작업실과 강의실의 레이아웃을 재구성할 수 있어 유연합니다. 이 설계는 넓은 공간 범위를 제공하여 큰 교실과 작업실 모두에 적합하지만 사무실의 경우 더 작은 단위로 세분화할 수도 있습니다. 건물 중앙에는 건물을 시각적으로나 물류적으로 여러 층에 걸쳐 연결하는 아트리움이 있습니다. 아트리움 주변에는 두 배 높이의 공간 4개가 도시와 항구를 향한 파사드의 내부와 외부를 표시하며 식당, 강당, 특별 워크샵과 같은 중심 기능을 포함하고 있습니다.translate by DeepL








































 The new SIMAC (Svendborg International Maritime Academy) is a beacon for future educational institutions that lights up through the integration of the city and the harbor. The new SIMAC in Svendborg will be Denmark's largest maritime education institution. With its flexible framework and utilization of the harbor, it becomes both a beacon for modern education and the transformation from a completely industrial area to a new living district with education, business, and recreational areas.
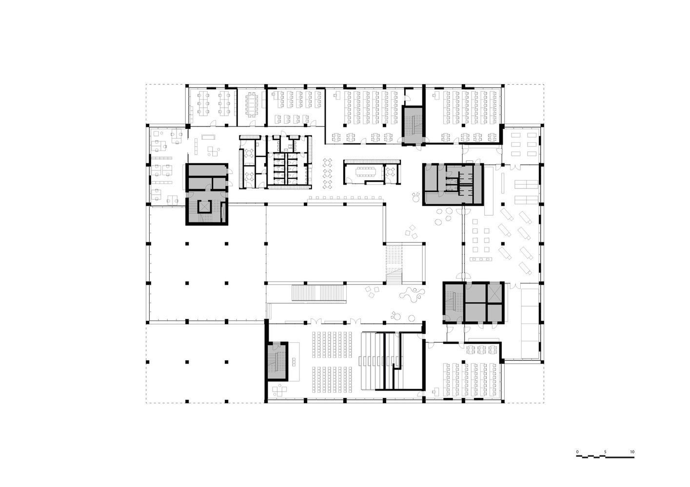
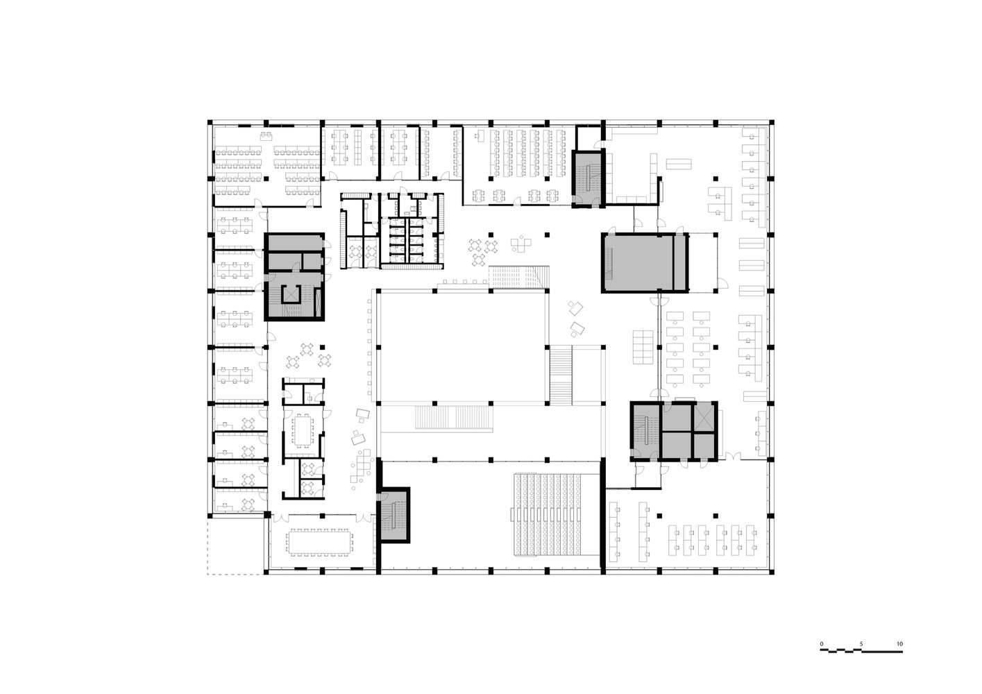
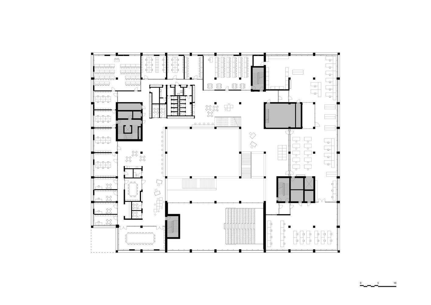
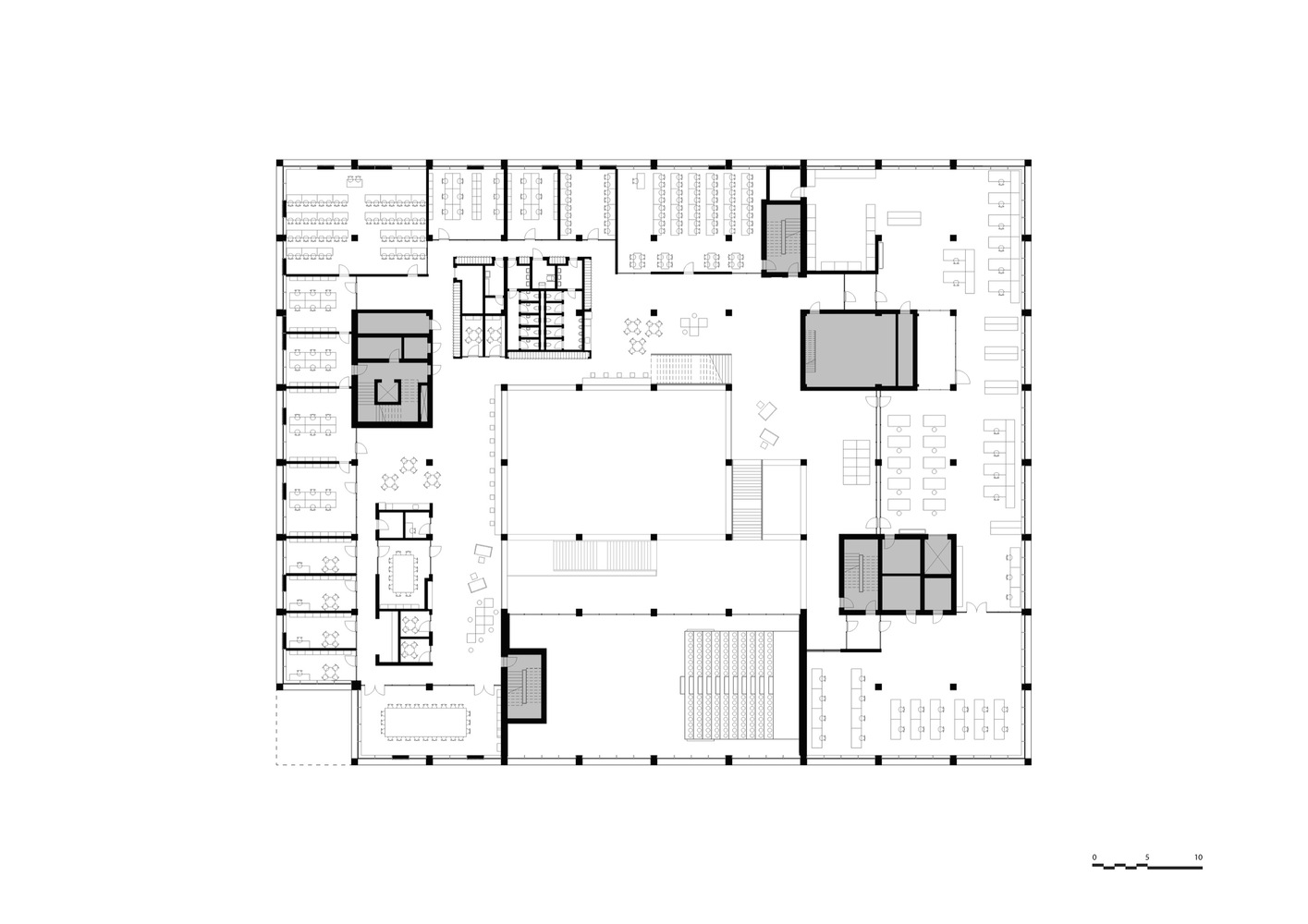
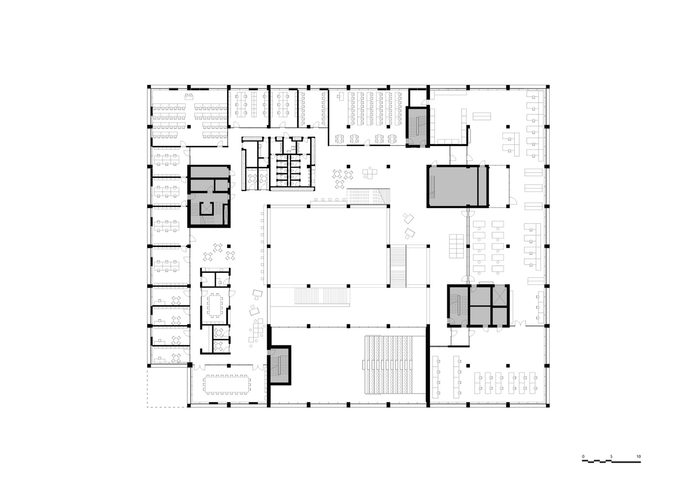
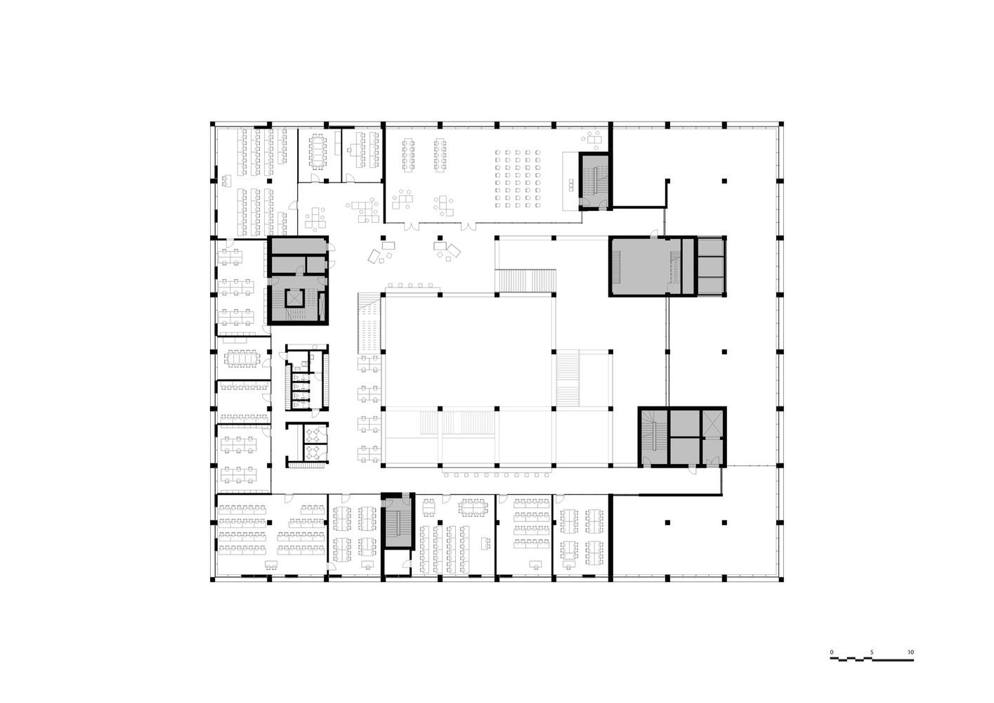
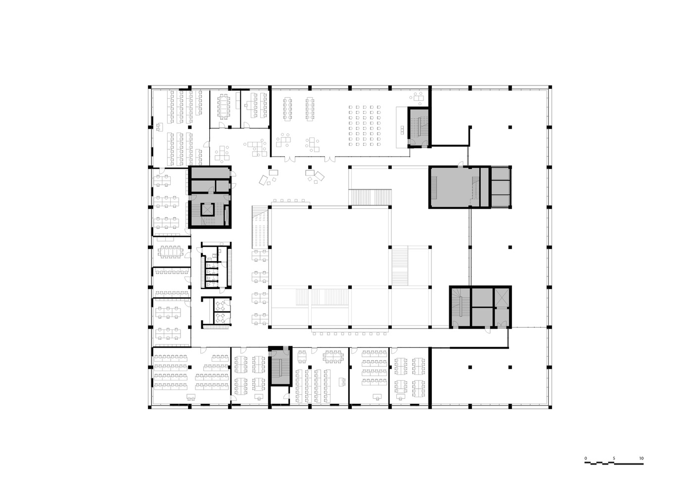
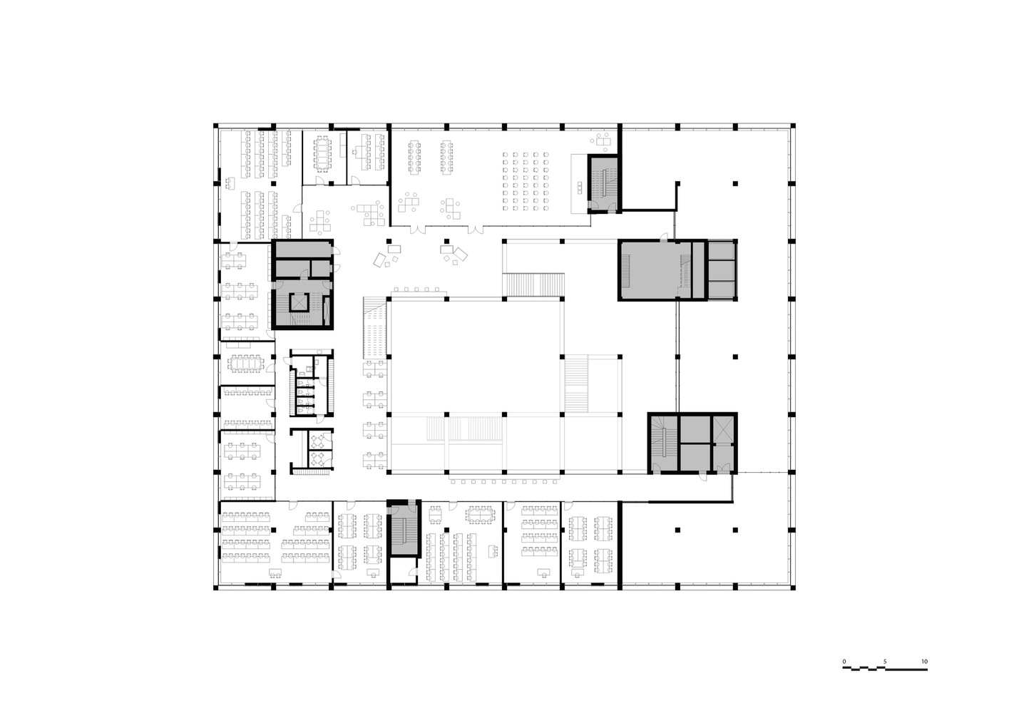
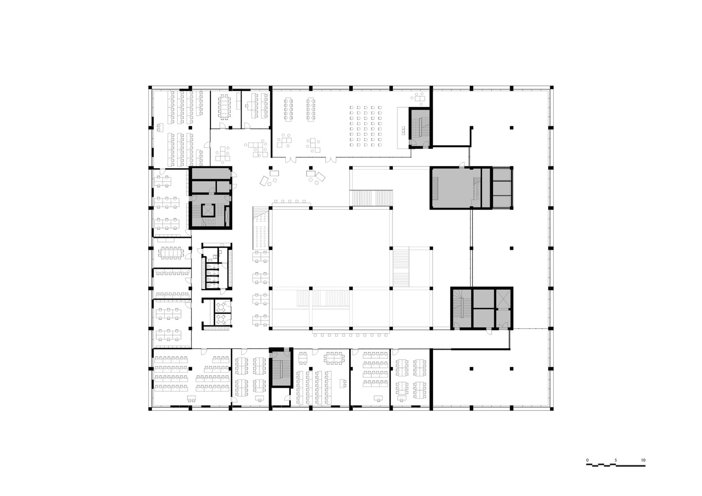
SIMAC is integrated into the course of the harbor promenade and the surrounding urban spaces. The building's floor plan is designed as a cross that forms a corner to four squares and opens up allowing public access to the communal facilities. The quay itself becomes an outdoor laboratory that highlights the school's work and maritime virtues.
The architectural design is based on a modular construction grid that maximizes openness and flexibility in the physical framework of education. The construction is flexible because it allows for reconfiguration of the layouts for workshops and teaching rooms, without disturbing the load bearing structure and logistics. The design provides a good spatial range, which can function for both larger classrooms as well as workshops, but can also be subdivided into smaller units for offices.
In the center of the building is an atrium that connects the building both visually and logistically across floors. Around the atrium, four double height spaces mark both the interior and exterior of the façade towards the city and the harbor and contain central functions such as a canteen, auditoria, and special workshops.
The staircase in the building follows these spaces, culminating on a communal roof terrace with views of the harbor, Svendborg Sund, and the city. The ground floor, the tall spaces, the atrium, and the roof terrace together form the building's social infrastructure, which makes it easy to find your way into the building, and becomes a meeting place for the many different activities in the building. 
from archdaily
'Culture' 카테고리의 다른 글
| *더 빅반 [ Atelier Deshaus ] The Big Barn (1) | 2024.02.23 | 
|---|---|
| *더 네스트 [ Delve ] The Nest Nursery (0) | 2024.02.20 | 
| *브루탈리즘 사이트 SMARIN’S NATURAL MATERIAL PALETTE ECHOES THE BRUTALIST SITE (0) | 2024.01.15 | 
| *로우카본 스쿨디자인 nordic influences shape up r2k architecte's low-carbon school design in france (0) | 2024.01.11 | 
| *킨더가든 [ Bee Unit / SVET VMES ] Kočevje Kindergarten (0) | 2024.01.03 | 


