
![]() |
![]() |
![]() |
CPLUS-Beijing FUNS iTown H9 Office Design
베이징 가오베이뎬에 위치한 펀스 아이타운의 H9 빌딩은 위스타 스튜디오와 싱후이 크리에이션이라는 두 개의 크리에이티브 조직이 공동으로 사용하고 있습니다. 1층의 공유 공간은 전시와 행사를 위한 공간으로, 위층은 두 단체의 사무실로 사용되고 있습니다. 건물의 남쪽은 여러 개의 화물 철로가 가로지르고 있으며, 때때로 지나가는 기차가 공원의 역사적 기억을 담고 있습니다. '연속적인 풍경'에서 영감을 받은 이 디자인은 사무실 공간의 물리적 경계를 허물고 산업 문명의 흔적과 바쁜 일상의 업무 현장을 결합하여 상상력을 자극하는 열린 사무실 환경과 유연한 공공 공간을 만들려고 시도했습니다. translate by DeepL























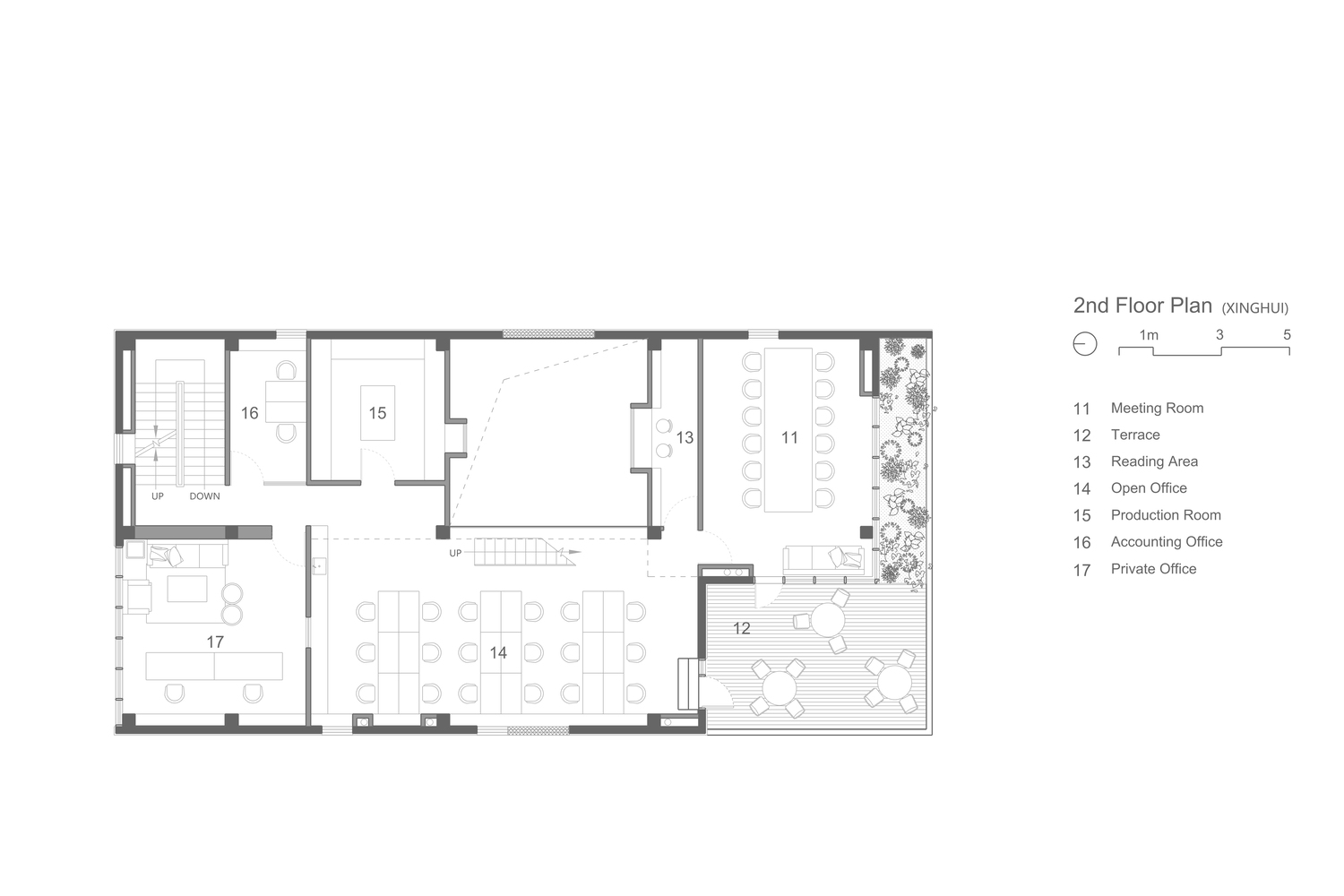
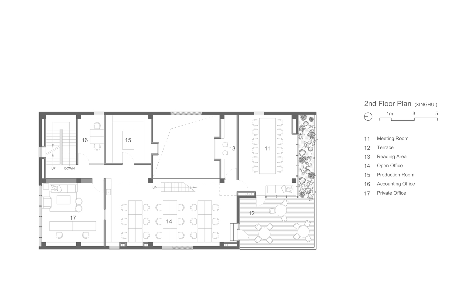
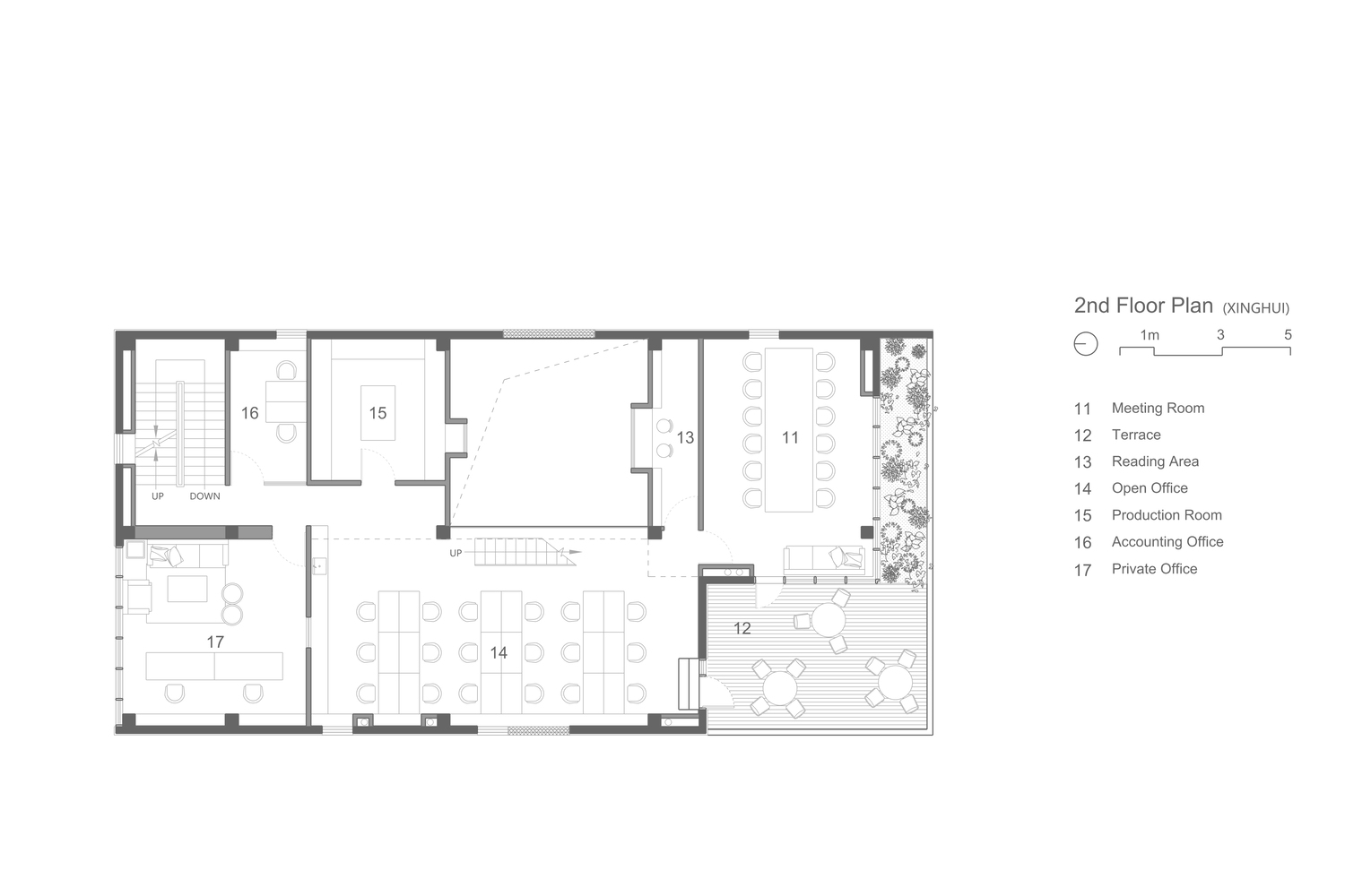
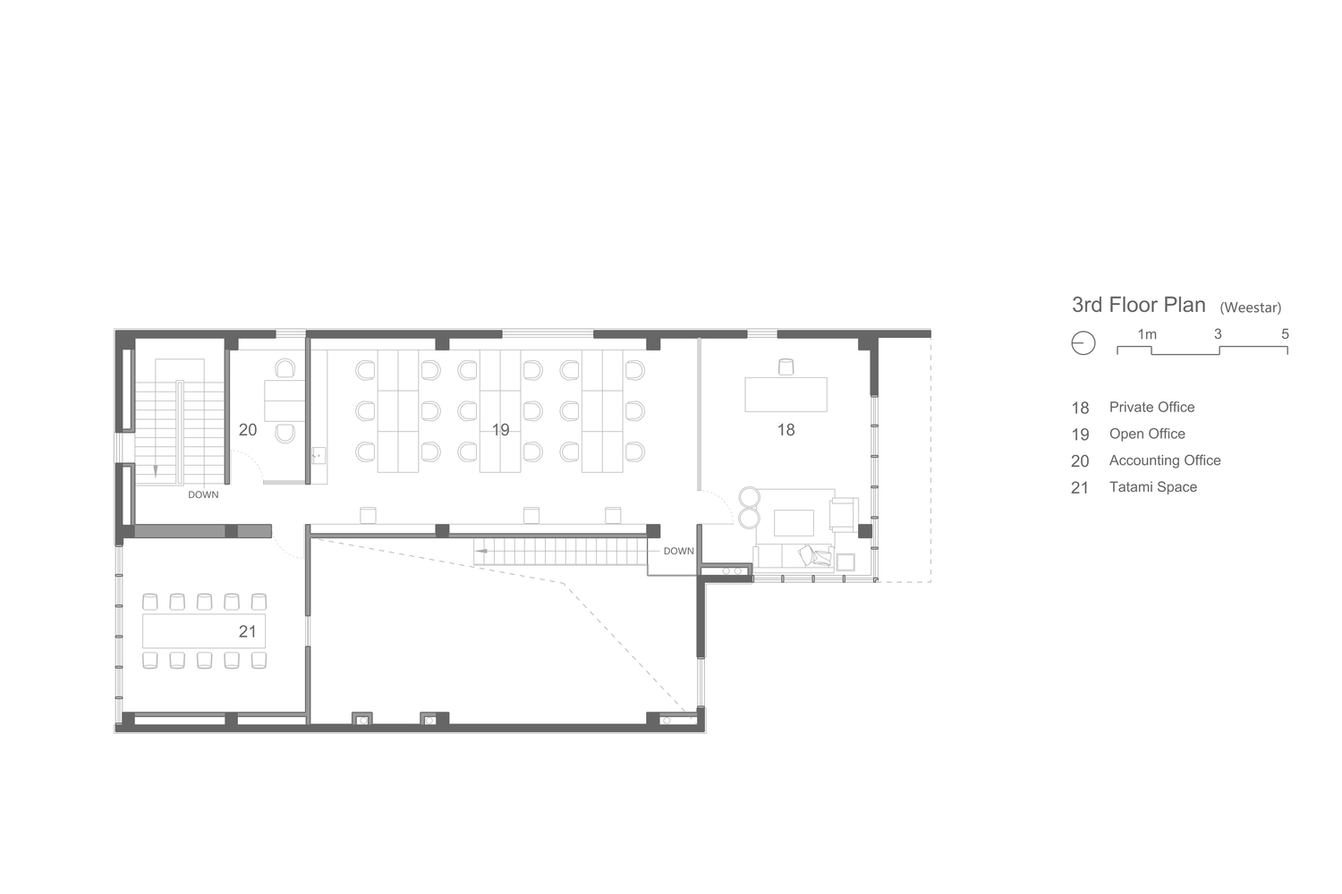
Beijing FUNS iTown H9 Office Design
Embracing the Passing Landscape
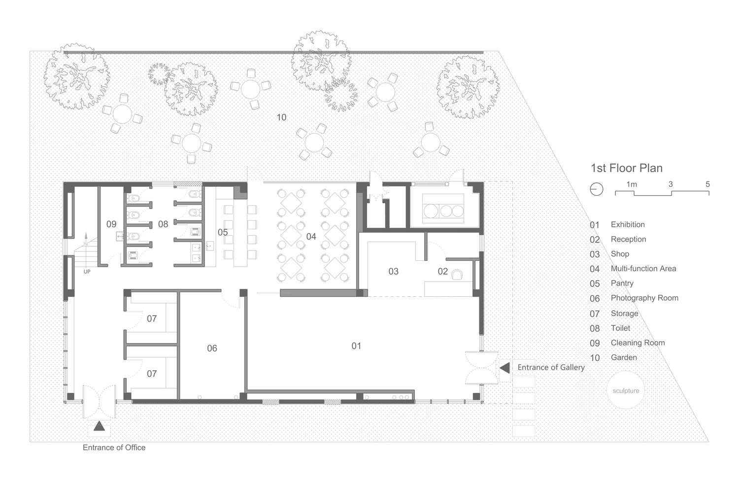
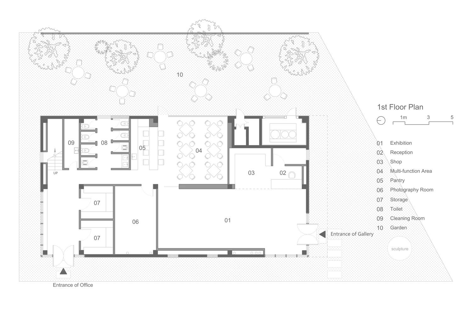
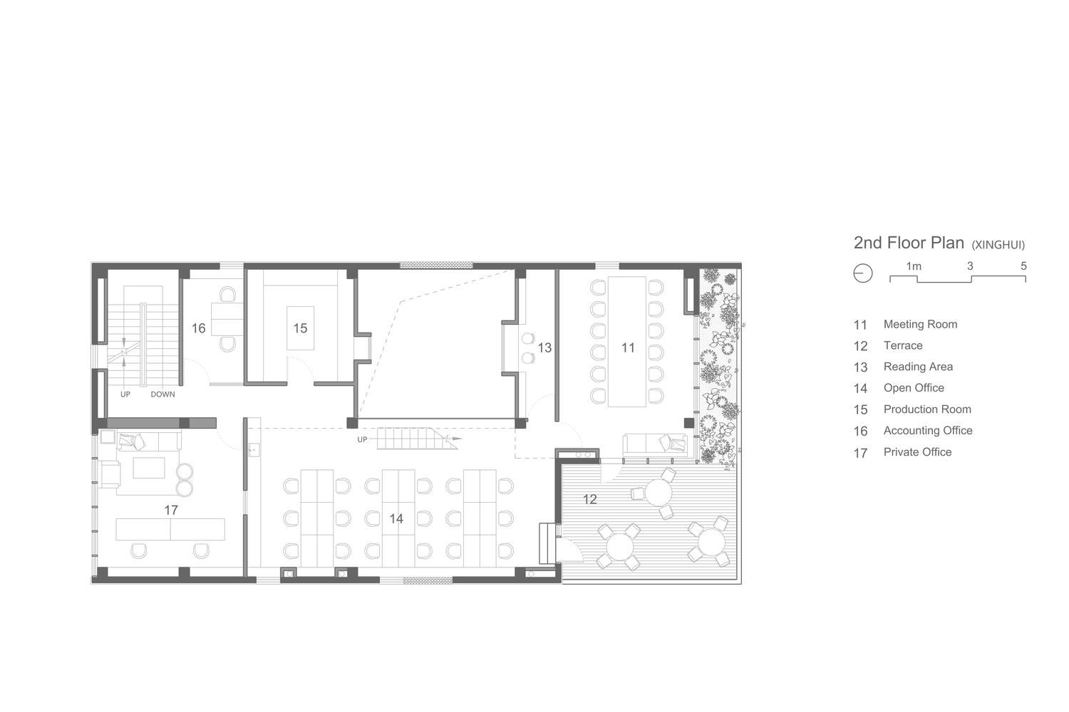
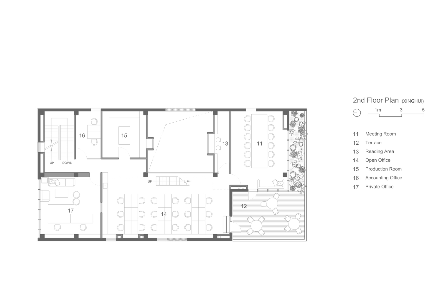
The H9 Building of FUNS iTown in Gaobeidian, Beijing, co used by two creative organizations, Weestar Studio and XINGHUI CREATIONS. The shared space on the first floor serves for exhibitions and events, while the upper floors accommodate the offices of the two organizations. The south side of the building is crossed by several freight tracks, and trains passing by from time to time carry the historical memory of the park. Inspired by the "Continuous Landscape", the design attempts to break down the physical boundaries of the office space, combining the traces of industrial civilization with the busy daily work scene to create an open office environment that can stimulate imagination and flexible public spaces.
Dialogue: Inside and Outside
When CPLUS took over the project, the entire building was in a rough state. According to the characteristics of the site and the needs of the client, the architects first made partial adjustments to the interface connecting the indoor and outdoor spaces. After renovation, a new open-ceilinged multi functional area was added to the east side. The lower part of its facade was changed from a solid wall to openings, while the original window above was closed. This change in elevation ensures an abundance of light in the interior and a closer visual connection to the garden view. The low wall of the south-facing outdoor terrace has been knocked down and replaced with glass panels, allowing for an open and continuous view of the passing train and a moment of leisure.
Dialogue: Vertical Spaces
The various scenes of use between floors penetrate into each other through the voids and window openings, making the interior space fluid and three-dimensional. After removing the second-floor slab over the multi functional area, an inner courtyard was released, forming a progressive space with outer garden. The staggered distribution of the inner courtyard and the original overhead space between the second and third floors on the west side allows people in the garden, multi-functional area and open office area to communicate with each other at different heights, and establishes a new spatial order.
In addition, the multi functional area, as the core space, is not only an extension of the gallery, but also a place for the staff to negotiate, rest and exchange ideas, where a rich variety of office scenarios unfold freely. A lightweight staircase hangs over the open office area on the second floor, serving as a convenient path for employees of the two companies, which is also visible through the inner courtyard. Three frame-like openings surround the top of the multi-functional area, which can be used as a display window for hot toy figures. People going up and down the stairs, working or reading by the window can naturally enter the frame.
from archdaily
'Office' 카테고리의 다른 글
| *웨어하우스 [ pbm ] Where’s House Warehouse (0) | 2024.02.22 |
|---|---|
| *오스파냐 헤드쿼터 [ Daniel Canda ] OSPAÑA Obra Social Headquarters_A Paradigm of Adaptive Architecture (0) | 2024.01.30 |
| *그리드 [ Estúdio 41 ] Sede da Newe (0) | 2024.01.01 |
| *무주공간 오피스 [ Atsushi Tasaki Architecture and Design ] Office 2023 (0) | 2023.08.31 |
| *바오롱 오피스 [ H.a + NQN. ] Bao Long Office (0) | 2023.07.03 |


