
![]() |
![]() |
![]() |
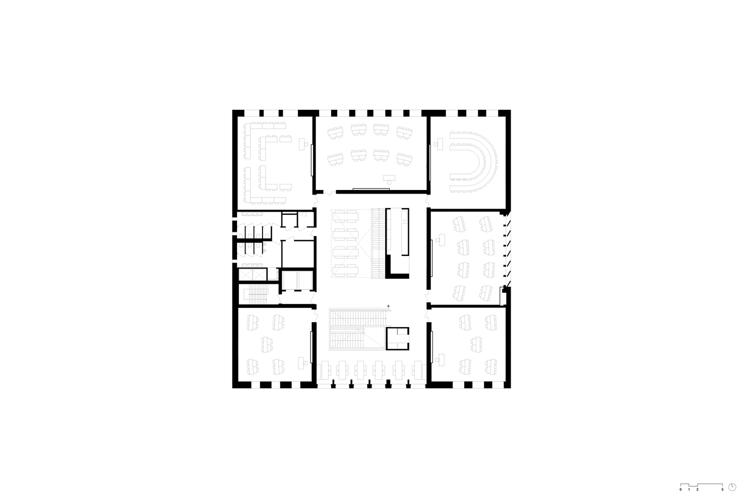
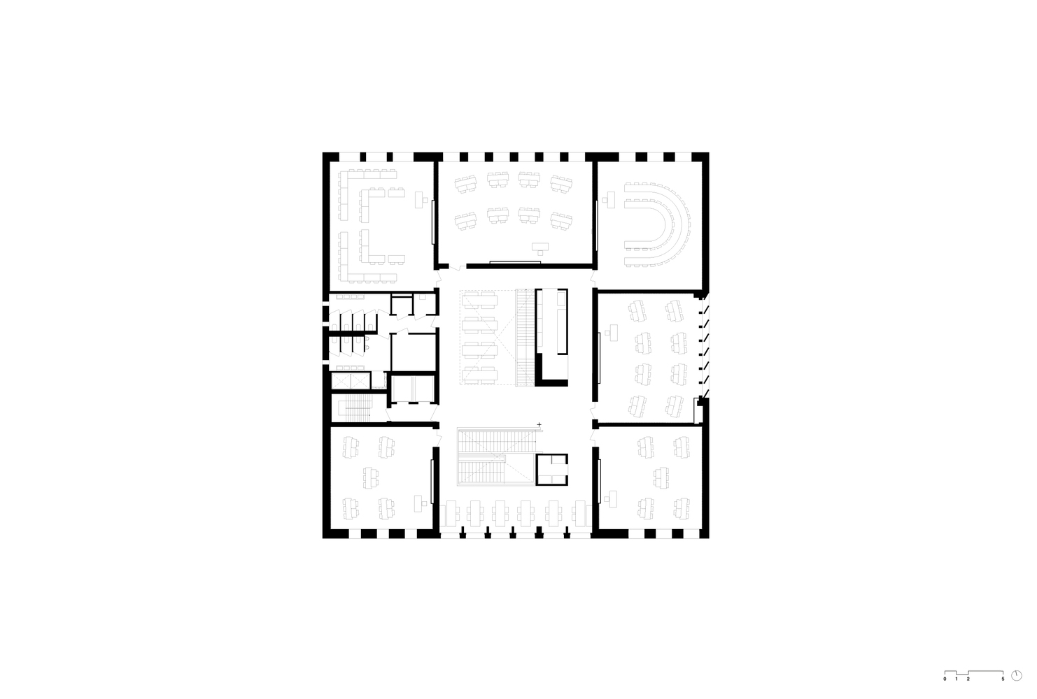
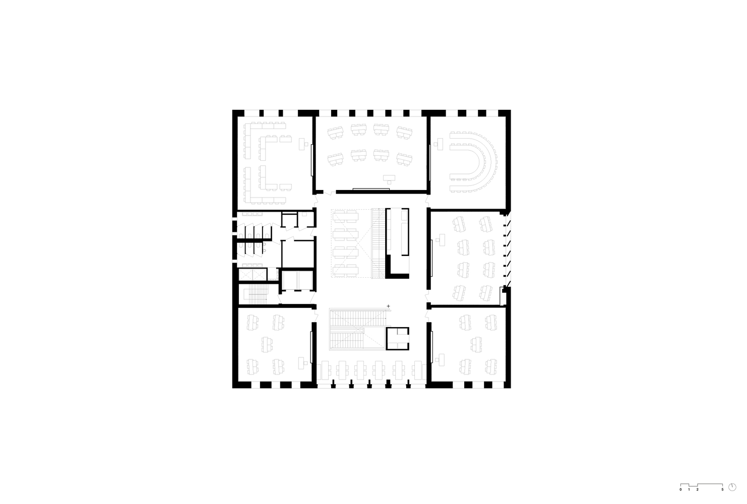
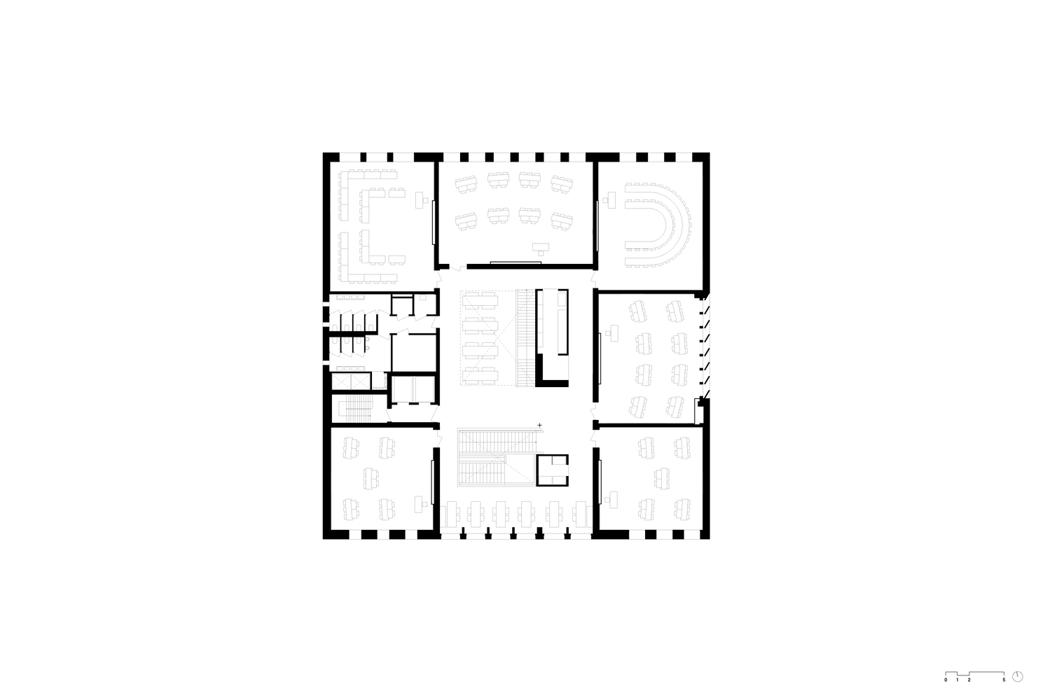
Powerhouse Company-Marga Klompé Building
파워하우스 컴퍼니가 설계한 마르가 클롬페 빌딩은 유럽 최초로 전체가 원목으로 건축된 대학 건물입니다. 에너지 중립에 가까운 이 새로운 복합 건물은 숲이 우거진 틸부르크 대학교 캠퍼스 내 33×33미터 크기의 부지에 자리하고 있습니다. 이 건물에는 로비, 강당 1개, 강의실 13개, 약 1,000명의 학생을 위한 자율 학습 공간이 마련되어 있습니다. 이 독특한 건축물은 캠퍼스의 기념비적인 코벤하겐 빌딩에 경의를 표하는 동시에 유럽 대학 캠퍼스의 지속 가능한 야망에 대한 모델 역할을 합니다. 마르가 클롬페 빌딩의 디자인은 틸뷔르흐 대학 캠퍼스의 모더니스트 건축물과 완벽하게 통합됩니다. 이 건물은 목조 구조, 벽, 바닥, 계단, 프레임 및 마감재의 재생 가능한 특성을 통해 순환적인 야망을 반영하고 있습니다. 빔으로 보강된 목재 골조 바닥 CTL 바닥을 활용하여 프로그램에 필요한 높은 음향 요구 사항을 충족하는 넓은 자유 스팬을 가능하게 하는 독특한 건식 건축 시스템이 구현되었습니다. 깊은 노출이 특징인 포르투갈산 천연석 외관은 1962년 Jos Bedaux의 상징적인 코벤하겐 빌딩을 직접적으로 참조했습니다. 수명이 길고 분해가 가능한 자연석은 원형에 대한 야망을 확인시켜 줍니다. 돌의 볼륨감이 주변 건축물과 조화를 이루며 울창한 숲이 우거진 주변 환경과 흥미로운 대조를 이룹니다. 모든 것을 아우르는 이 건물은 캠퍼스에 통합되어 있으며 역에서 입구를 표시합니다. translate by DeepL










































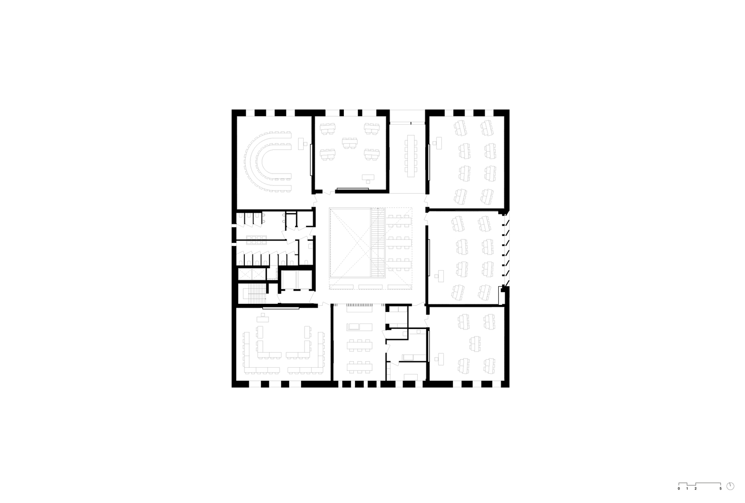
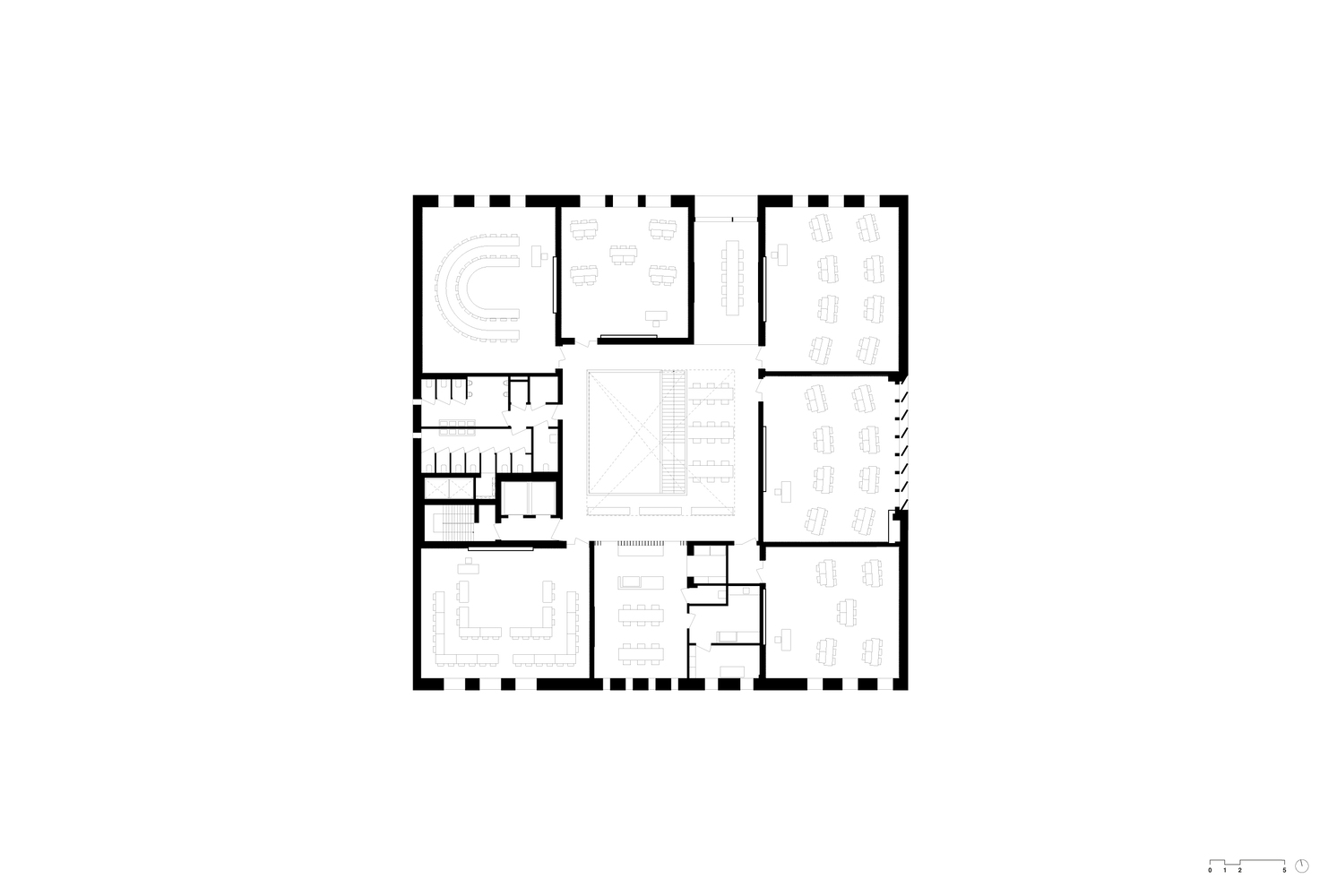
Marga Klompé Building, designed by Powerhouse Company, is the first college building in Europe to be entirely constructed from solid wood. The new, nearly energy neutral complex is situated on a plot of land measuring 33 by 33 meters, within the forested campus of Tilburg University. The building accommodates a foyer, 1 auditorium, 13 lecture halls, and self-study spaces for approximately 1,000 students. Its distinctive architecture pays homage to the monumental Cobbenhagen Building on the campus while also serving as a model for the highly sustainable ambitions of university campuses in Europe.
The design of the Marga Klompé Building seamlessly integrates with the modernist architecture of the Tilburg University campus. Its circular ambitions are reflected in the renewable nature of its wooden construction, walls, floors, stairs, frames, and finishes. A unique dry construction system has been implemented, utilizing wooden ribbed floors CTL floors reinforced with beams—that enable large free spans to meet the high acoustic requirements necessary for the program. The Portuguese natural stone facade, featuring deep reveals, directly references the iconic 1962 Cobbenhagen Building by Jos Bedaux. The natural stone, with its long lifespan and ability to be disassembled, confirms the circular ambitions. The stony volume harmonizes with the surrounding architecture, forming an intriguing contrast with the lush, wooded environment. The all-encompassing building is integrated into the campus and marks the entrance from the station.
Powerhouse Company took the Cobbenhagen Building as a starting point for spatial qualities but brought the design into the 21st century by opting for a palette of natural, circular materials such as wood, terrazzo, and plasterwork. These materials are prominently featured and contribute to a serene atmosphere, from the spacious lecture halls to the intimate alcoves by the windows. Additionally, wooden furniture has been used to enhance the tranquil study spaces.
from archdaily
'Culture' 카테고리의 다른 글
| *북스토어 [ SU Architects ] Hefei 1953 Juxing Grain Post Shanghai Sanlian Bookstore (0) | 2024.03.22 |
|---|---|
| *모스크 [ Studio Morphogenesis ] Zebun Nessa Mosque (0) | 2024.03.15 |
| *더 빅반 [ Atelier Deshaus ] The Big Barn (1) | 2024.02.23 |
| *더 네스트 [ Delve ] The Nest Nursery (0) | 2024.02.20 |
| *마린 아카데미 [ C.F. Møller + EFFEKT ] Svendborg International Maritime Academy (1) | 2024.01.18 |


