
![]() |
![]() |
![]() |
Kanozi Arkitekter-Natrium University Building in Gothenburg
나트리움은 메디나레베르게의 기존 경로와 정문이 메디나레렝간과 인접한 곳에 정박해 있습니다. 1950년대 건물의 일부가 개방되어 재건축되었으며, 새로운 점심 레스토랑이 기존과 새로운 건물의 연결에 기여하고 있습니다. 정문에서 나트리움의 중심부까지 가는 길은 다양한 경험과 통찰을 제공하는 여러 개의 방으로 이루어져 있습니다. 집중된 지식. 나트리움과 함께 메디케어버젯 북동부 지역의 밀집화가 시작됩니다. 목표는 일관된 캠퍼스를 조성하고 살그렌스카 아카데미의 과학 학부와 의학 교육 및 연구 간의 연계를 강화하는 것입니다. 이곳에는 과학 학부의 7개 학과 중 5개 학과가 한 지붕 아래 모이게 됩니다. 학생, 연구자, 교직원들이 서로 가까이에서 다양한 활동에 도움이 되는 자발적이고 계획적인 회의와 토론을 할 수 있게 됩니다.Translate by DeepL







































In August 2023, Natrium, a 32,000 m² lab and research building on Medicinareberget in central Gothenburg, was completed. One of the main ideas behind the building's design is to simplify interaction and promote collaboration within and between the Faculty of Science's various departments. Another idea is that the architecture should interact with the Medicinarelängan, which was designed by Klas Anshelm in the 1950s. In the work with Natrium, we have also focused a lot on creating a flexible research building that responds to the changing needs of the academic labs.
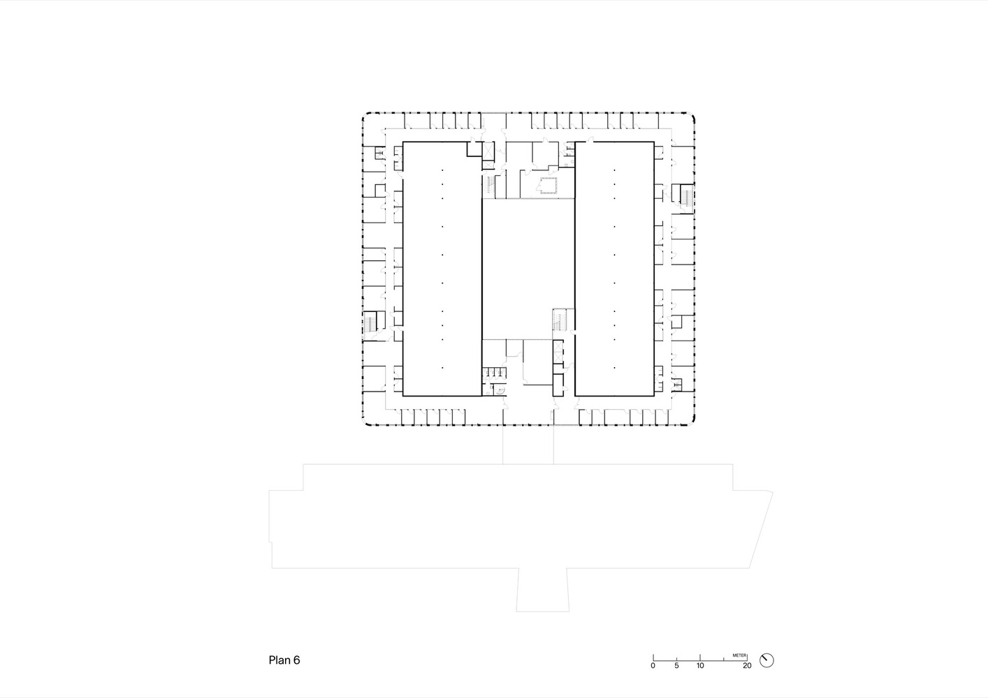
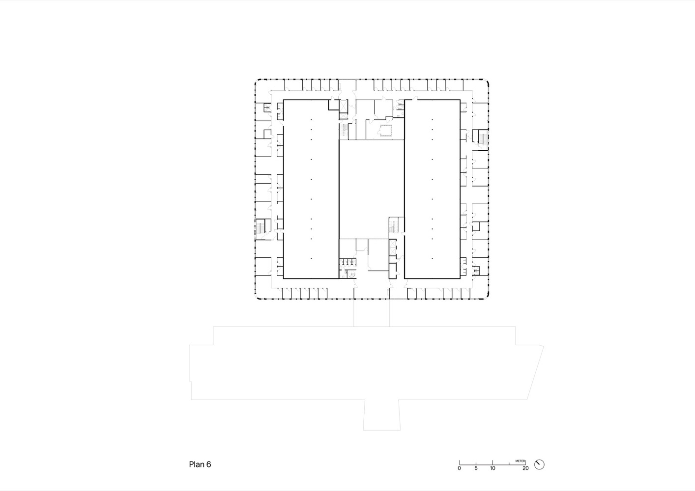
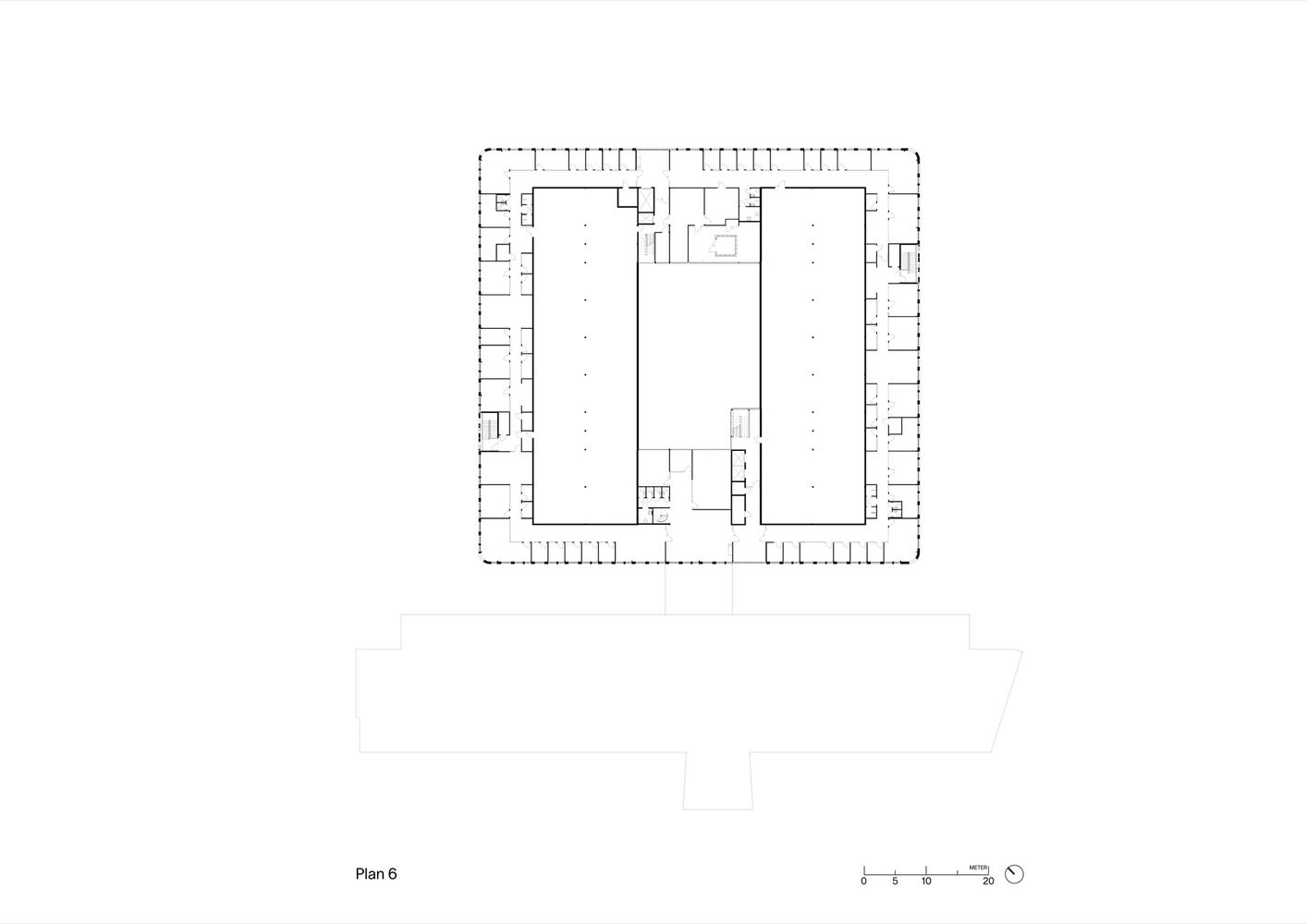
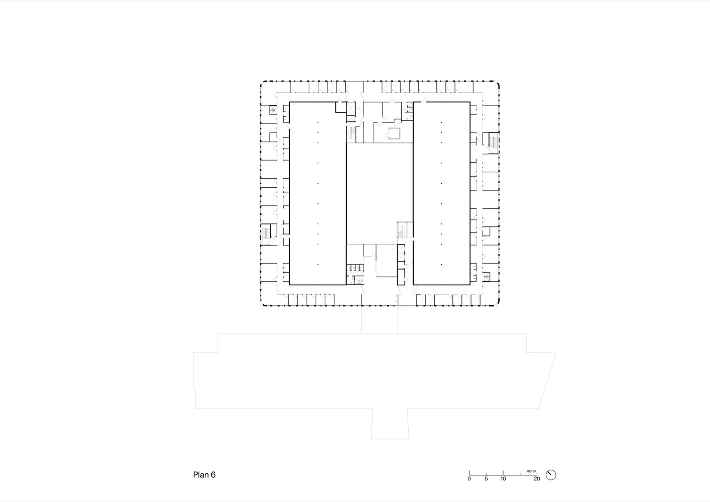
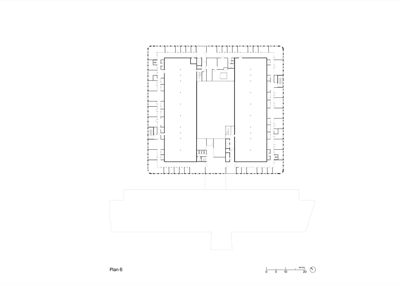
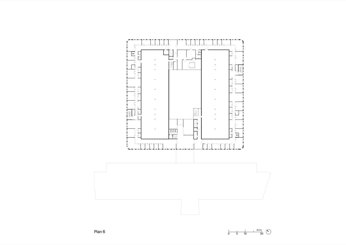
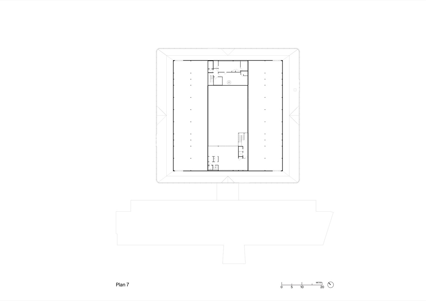
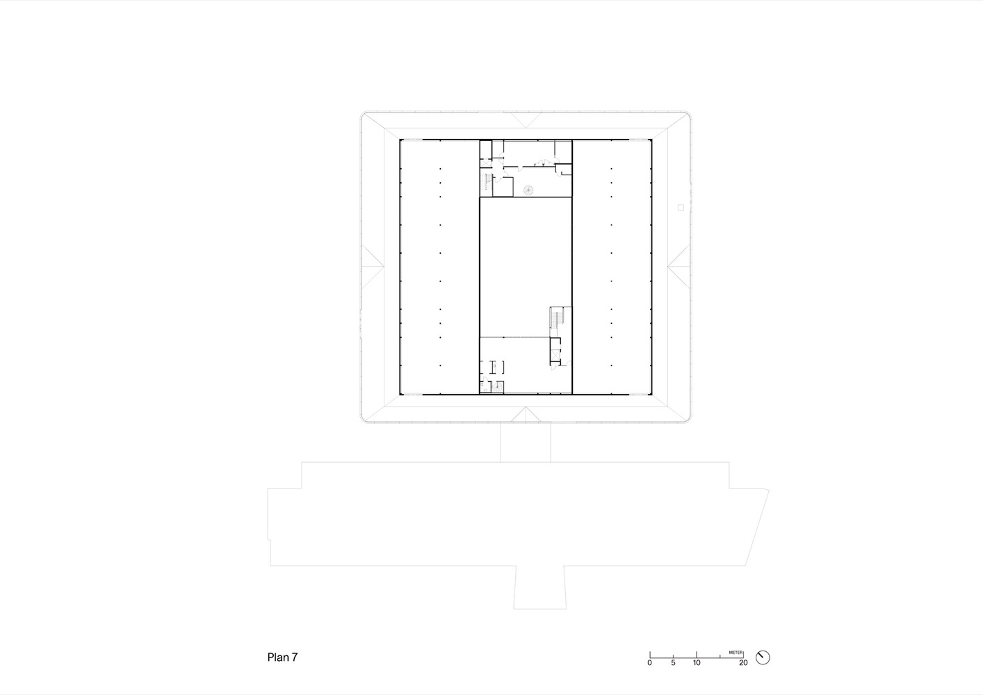
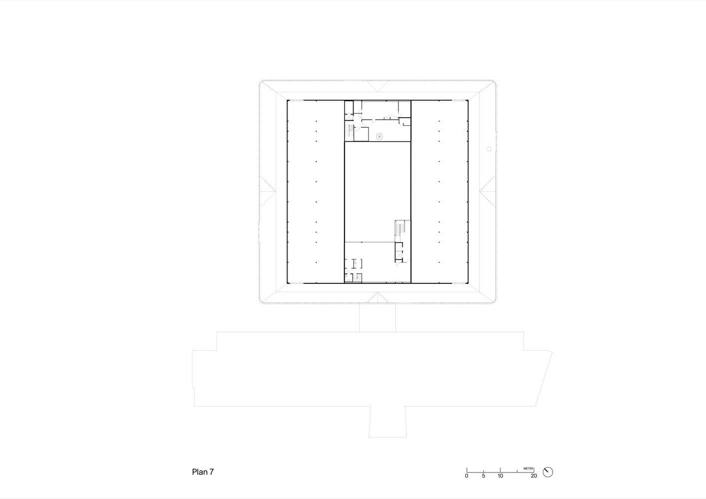
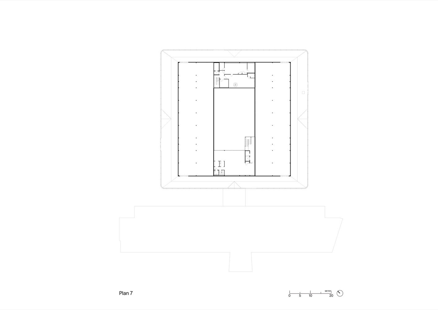
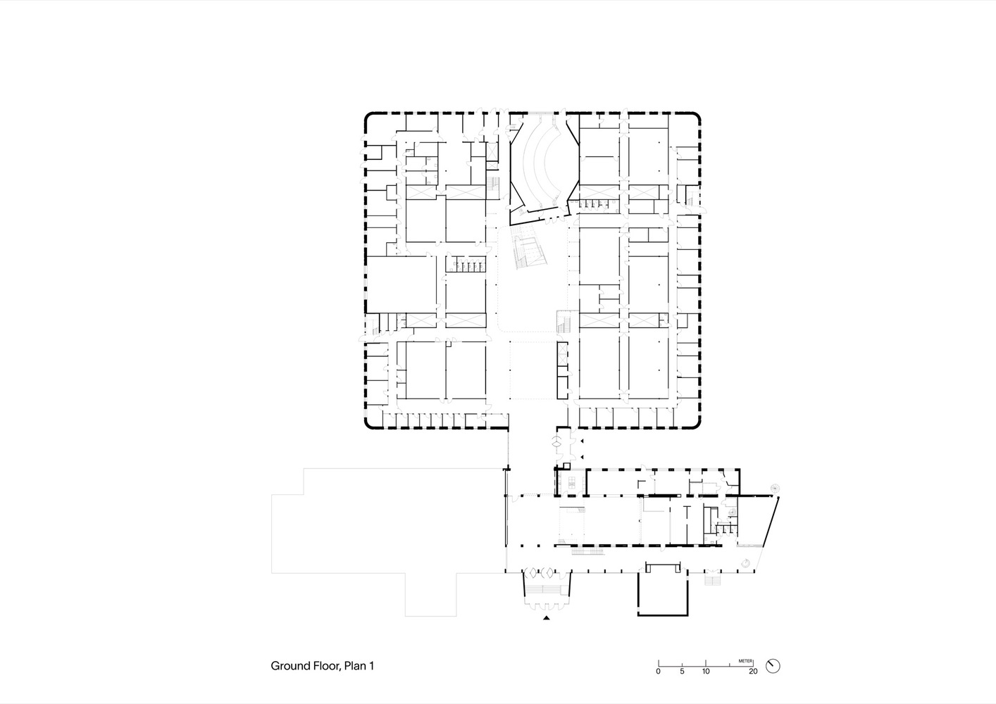
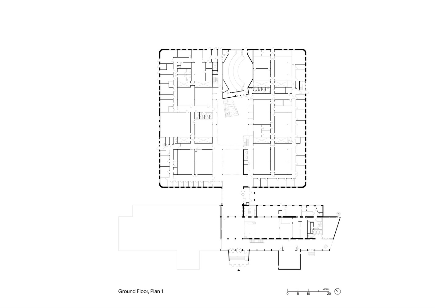
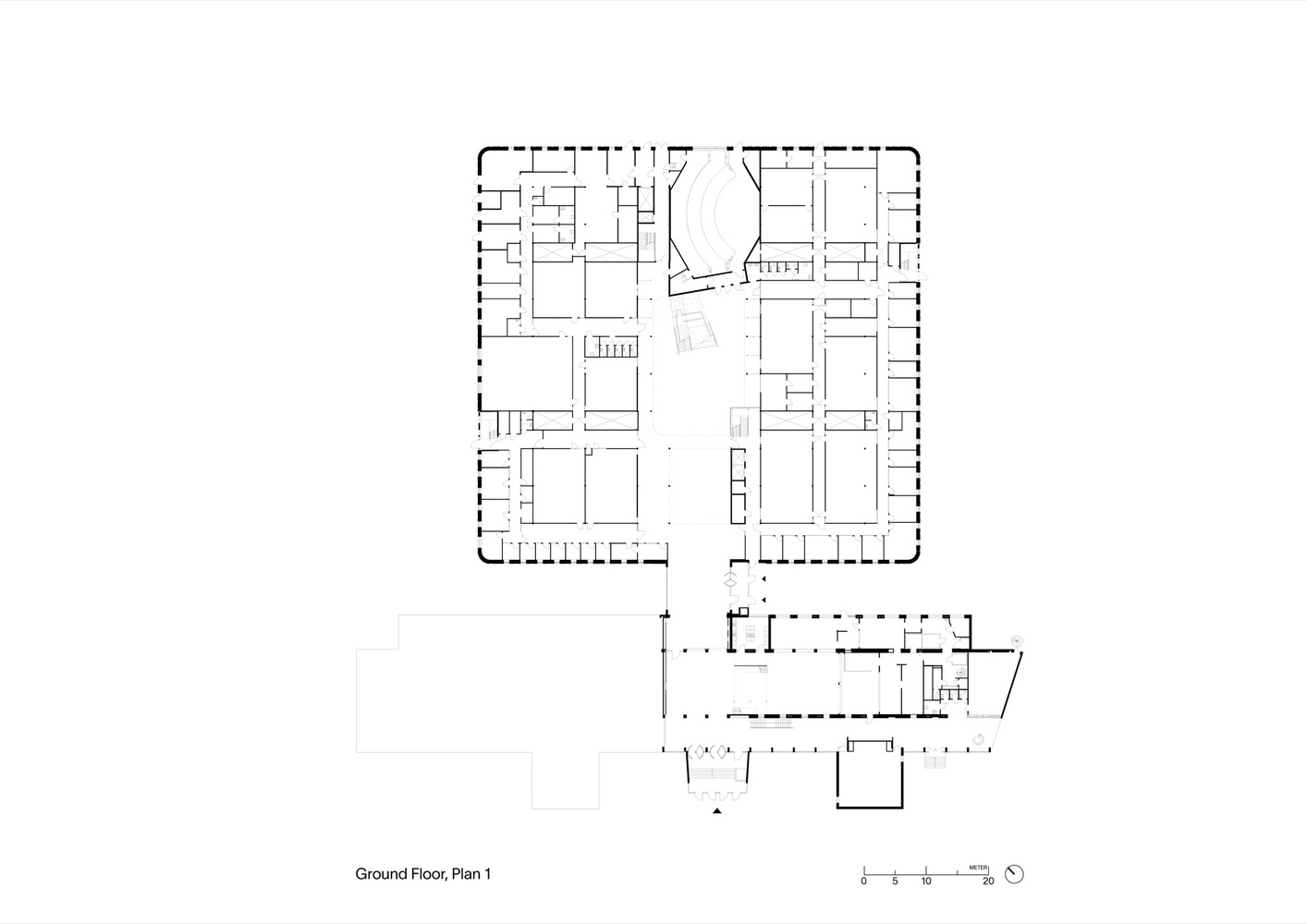
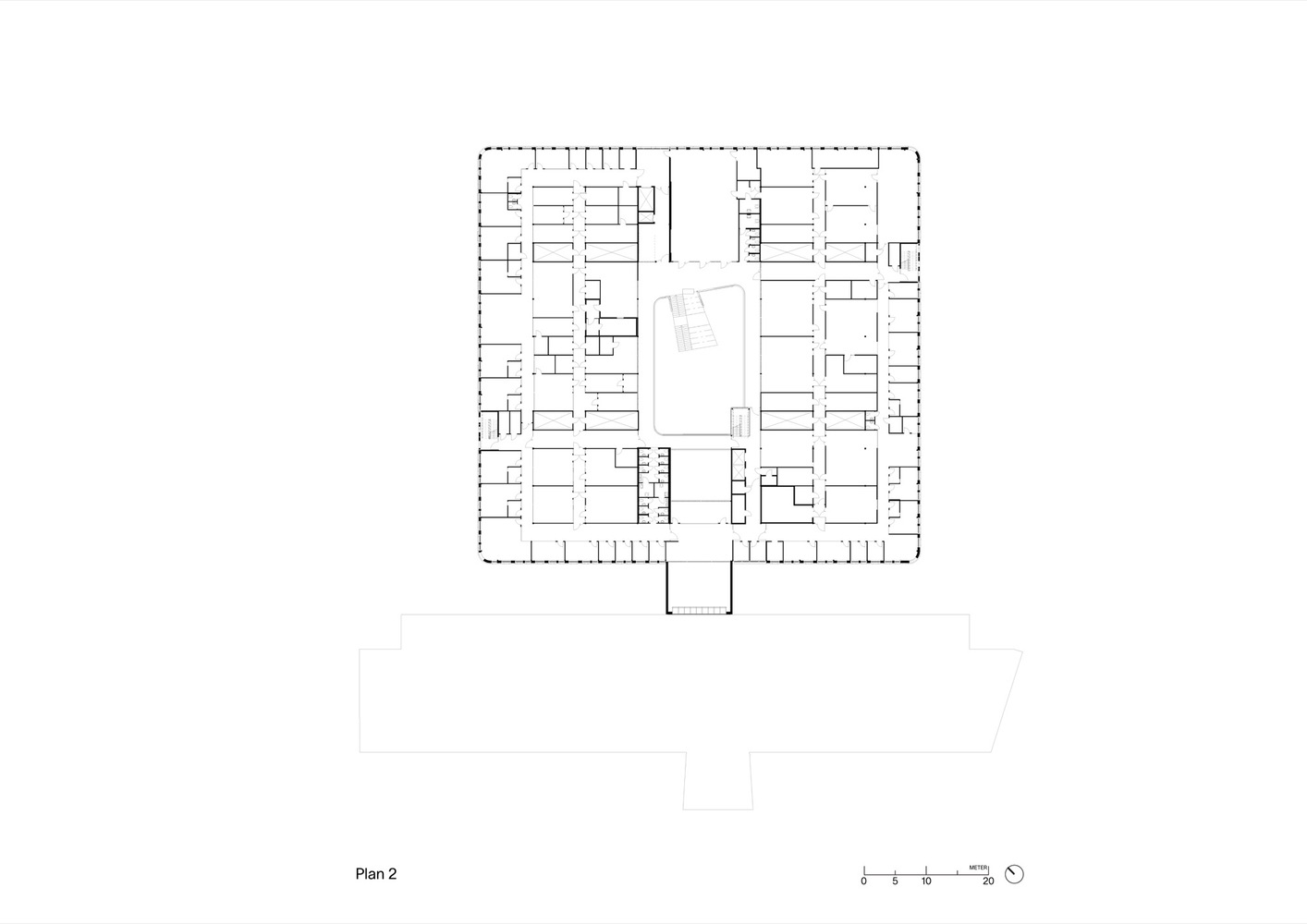
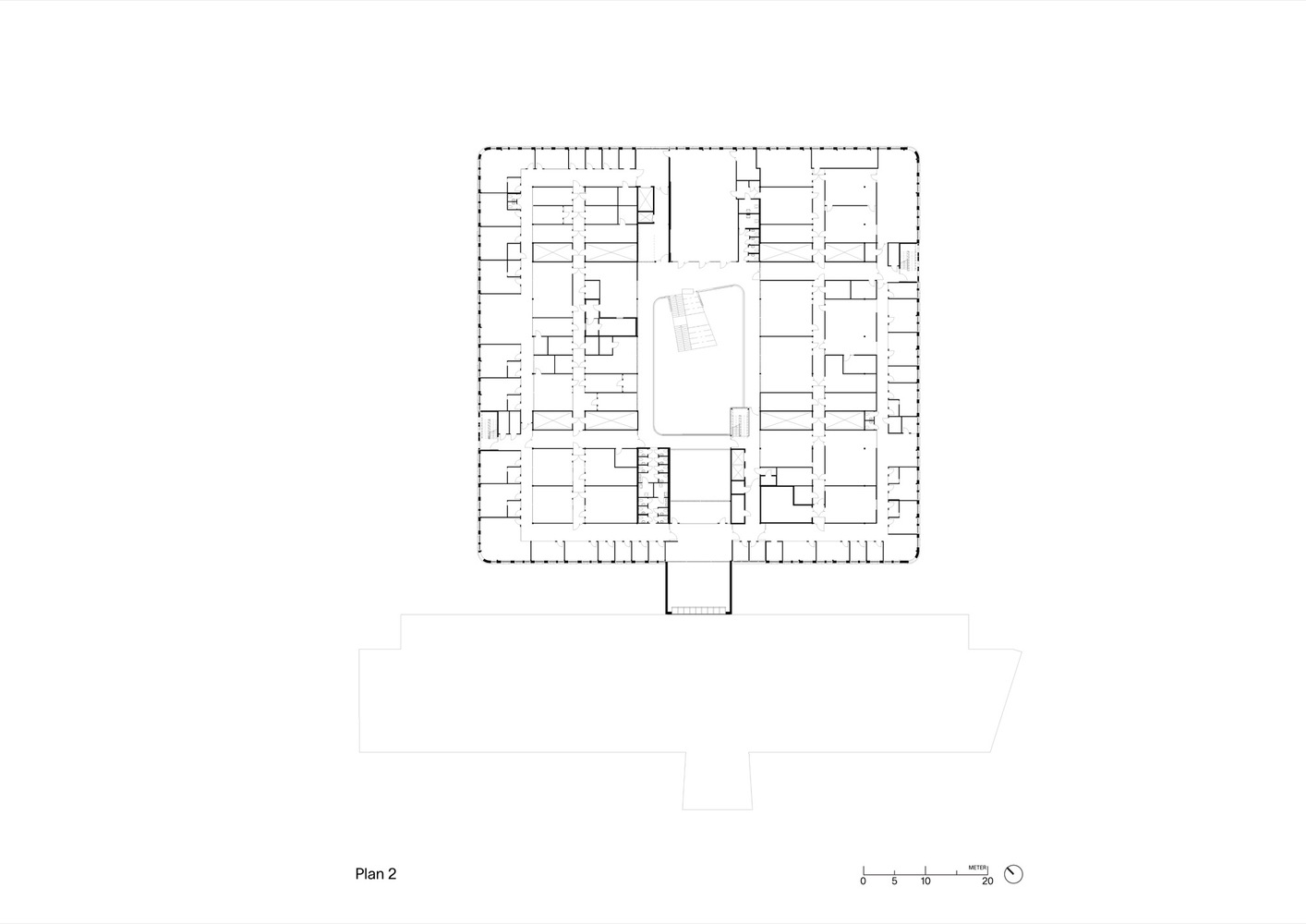
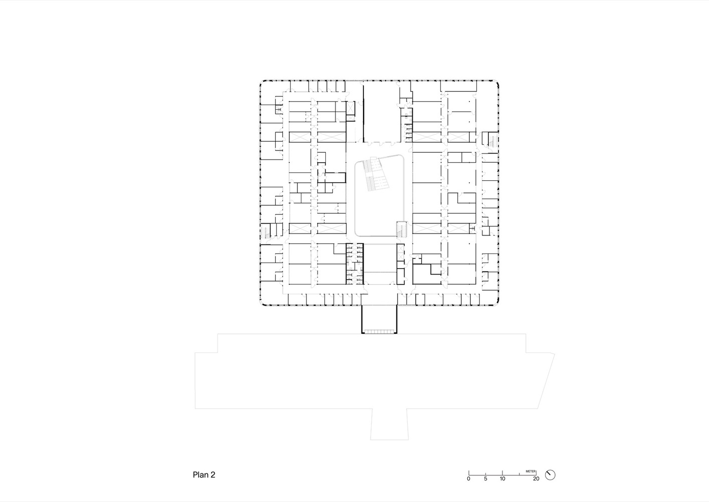
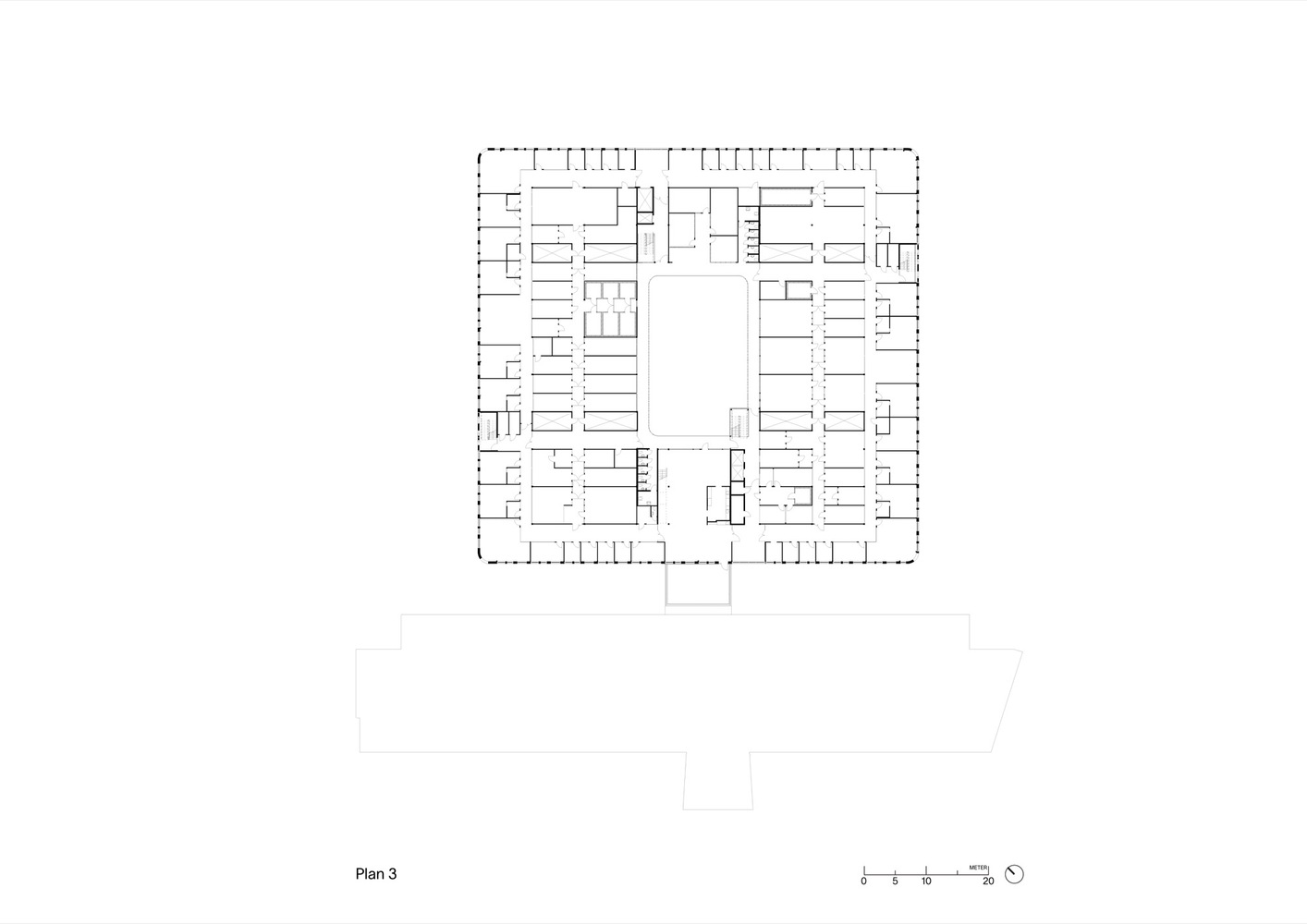
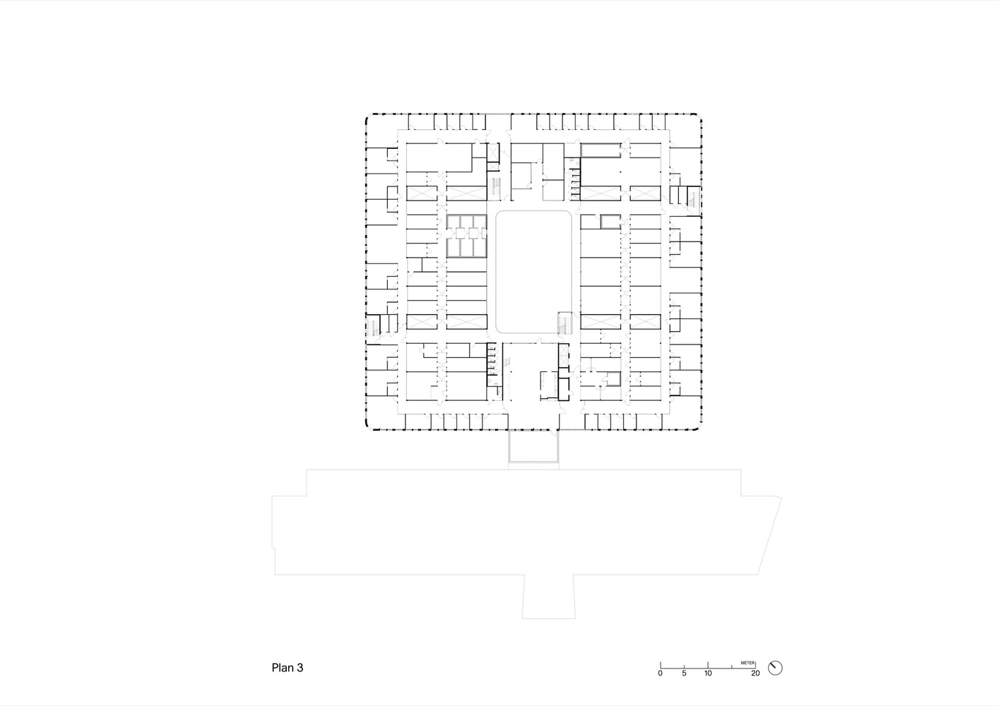
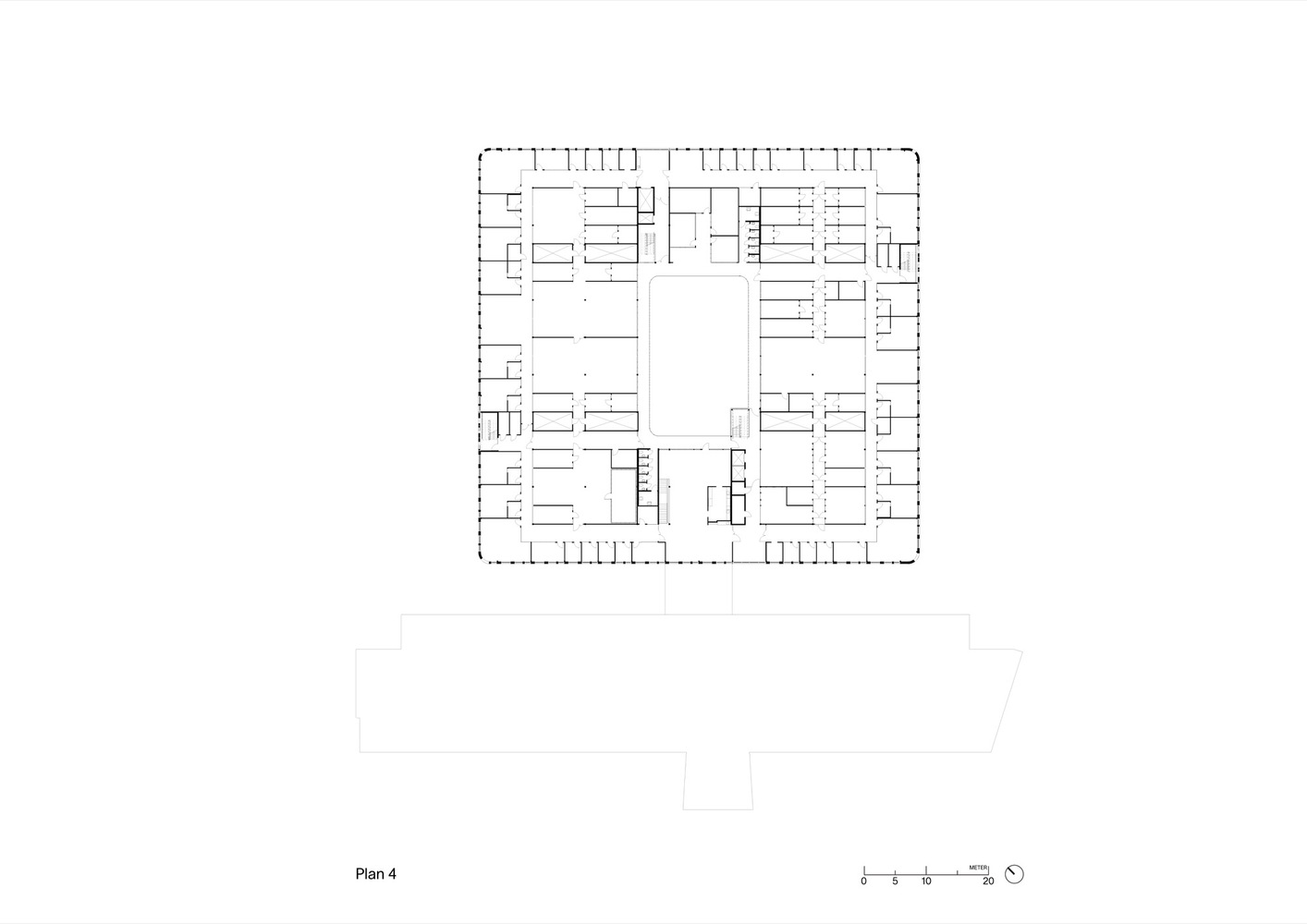
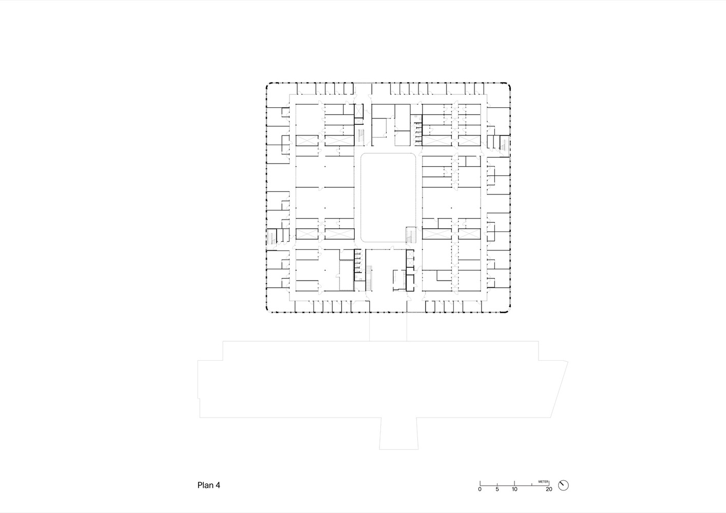
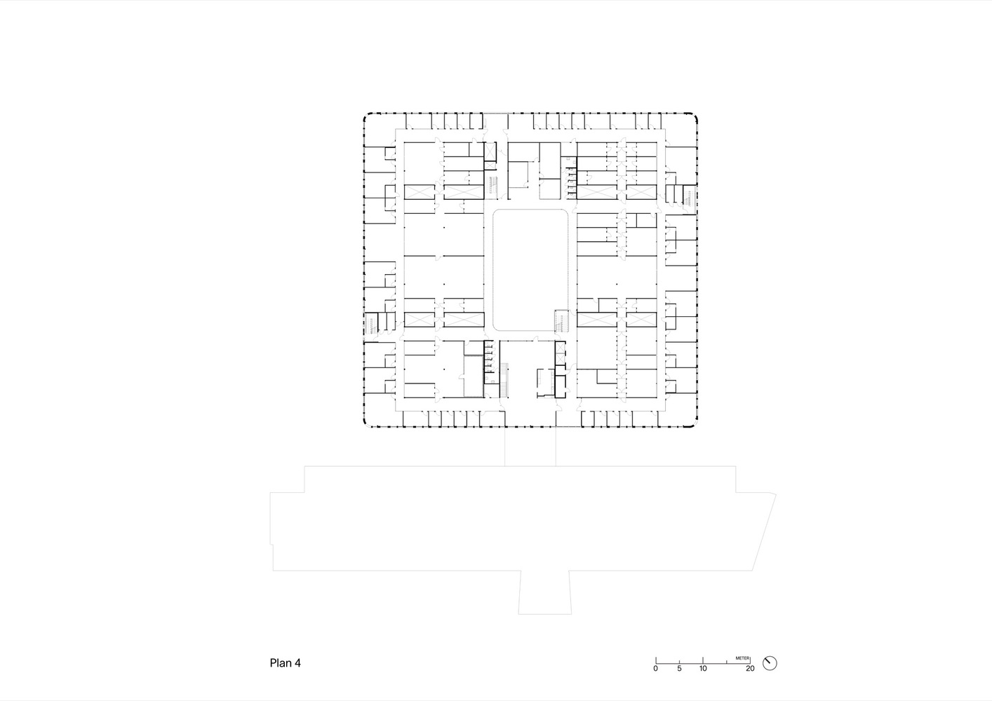
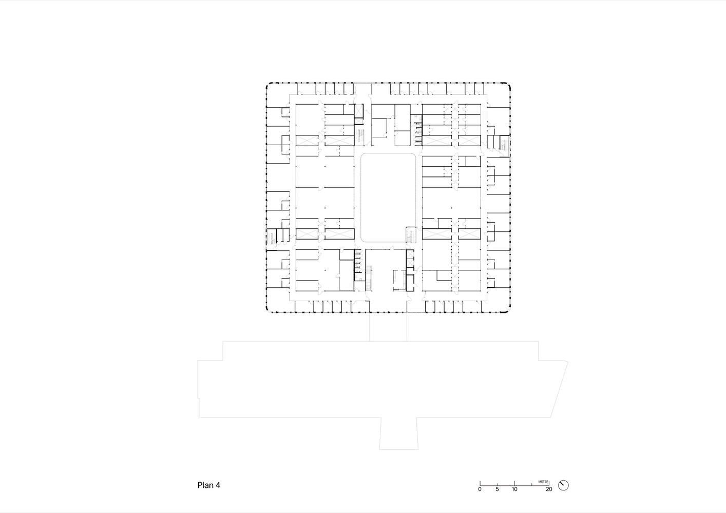
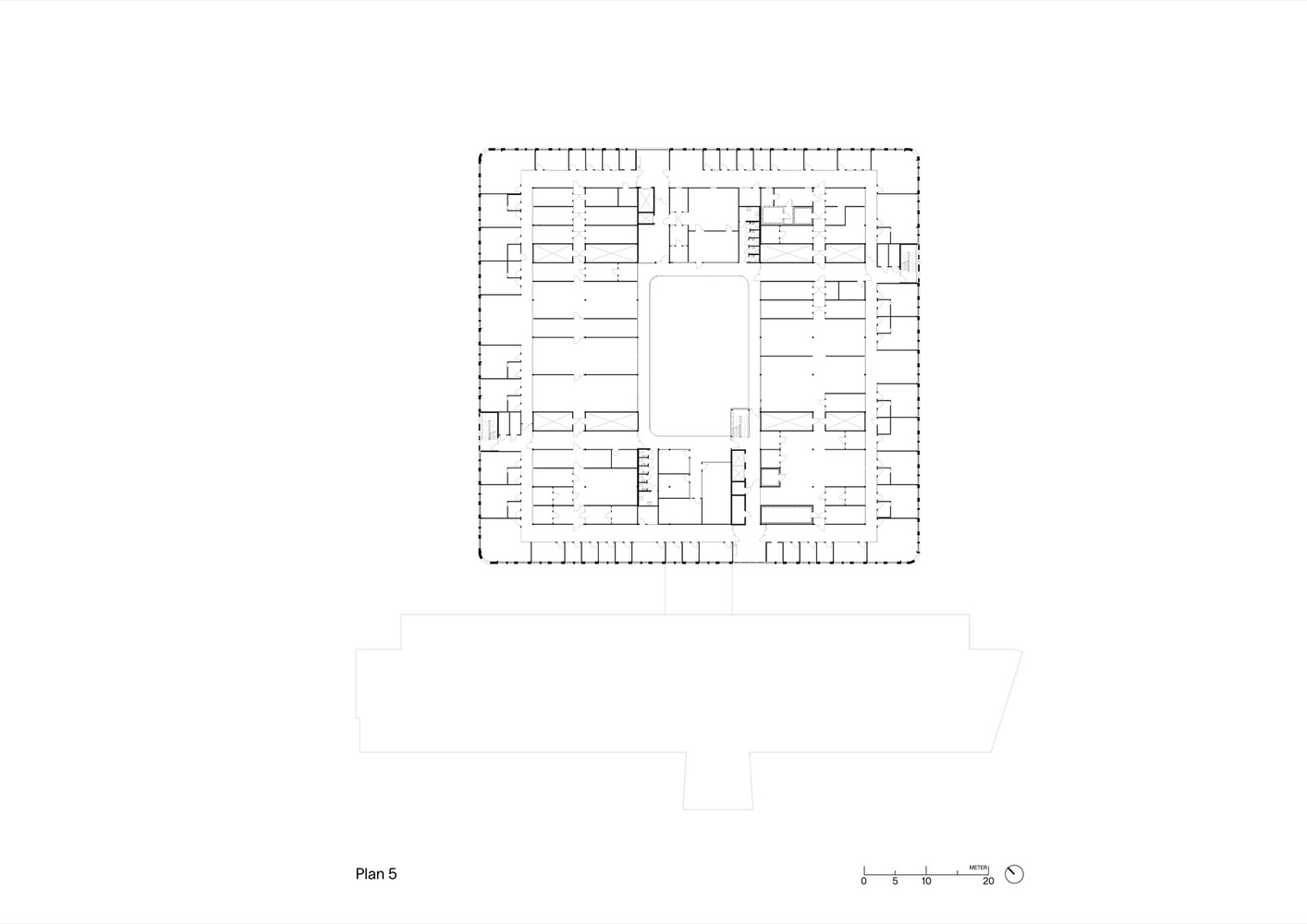
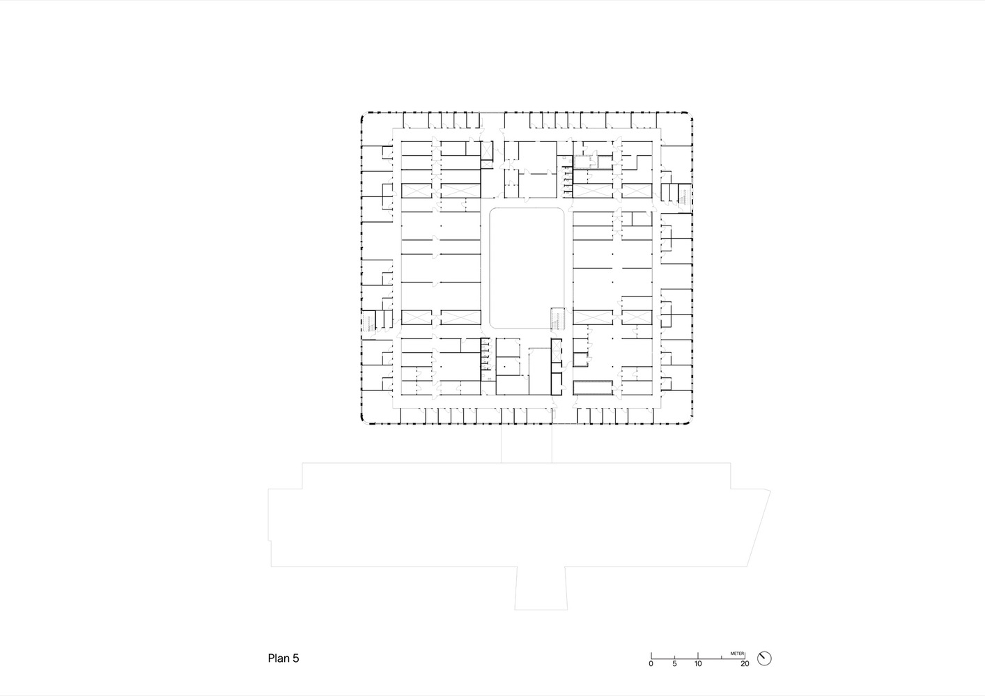
Natrium docks with the existing routes on Medicinareberget with the main entrance adjacent to Medicinarelängan. Here, parts of the 1950s building have been opened up and rebuilt, and a new lunch restaurant contributes to the connection between the existing and the new. The path from the main entrance to the core of Natrium is through a sequence of different rooms that offer varying experiences and insights.
Concentrated knowledge. With Natrium, a densification of the northeastern part of Medicinareberget begins. The aim is to create a coherent campus and to strengthen the links between the Faculty of Science and medical education and research at Sahlgrenska Academy. Here, five of the Faculty of Science's seven different departments will be gathered under one roof. Students, researchers, and staff will be close to each other, allowing for spontaneous and planned meetings and discussions that benefit the different activities.
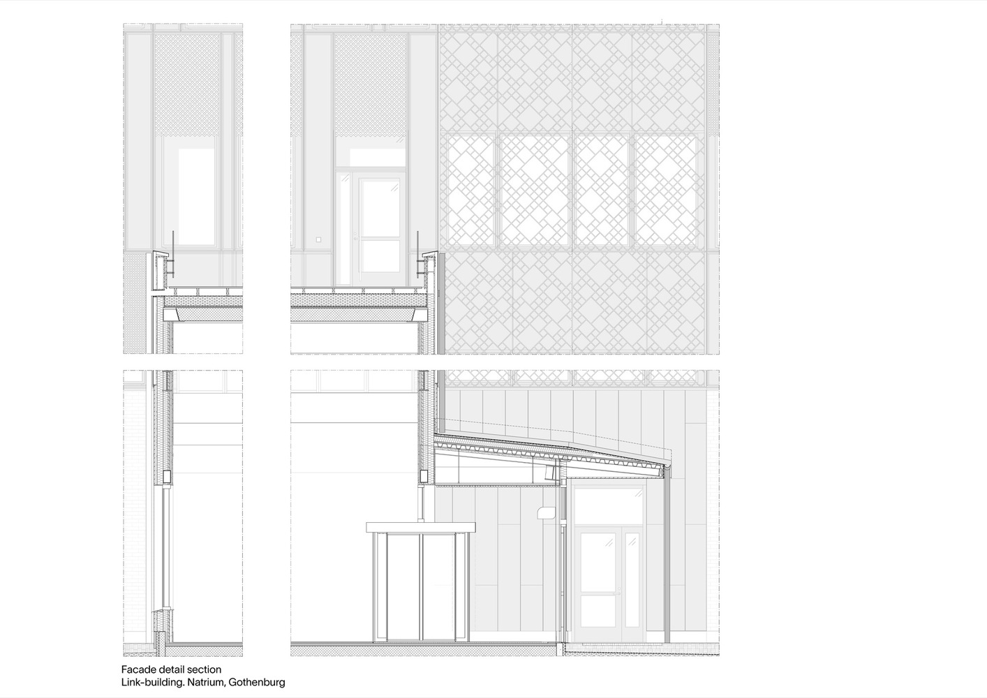
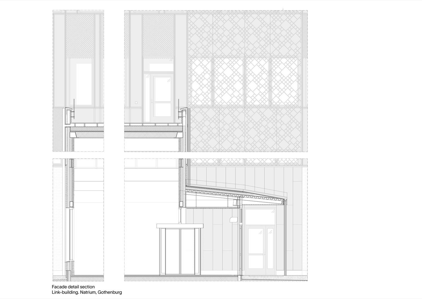
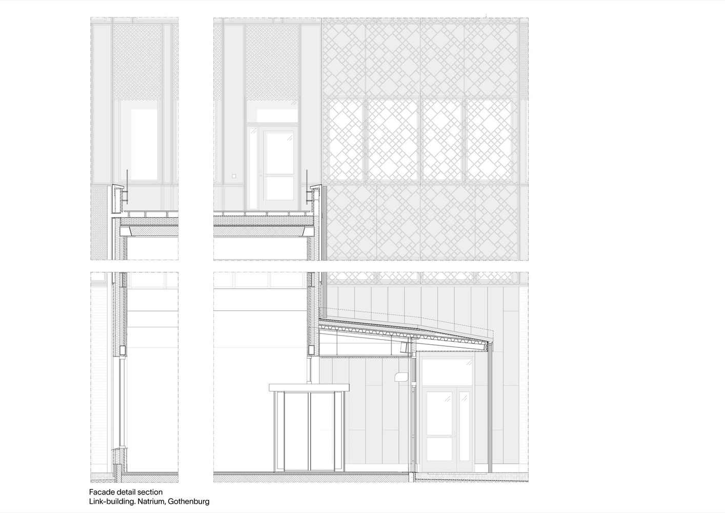
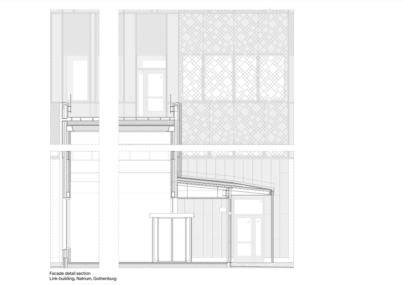
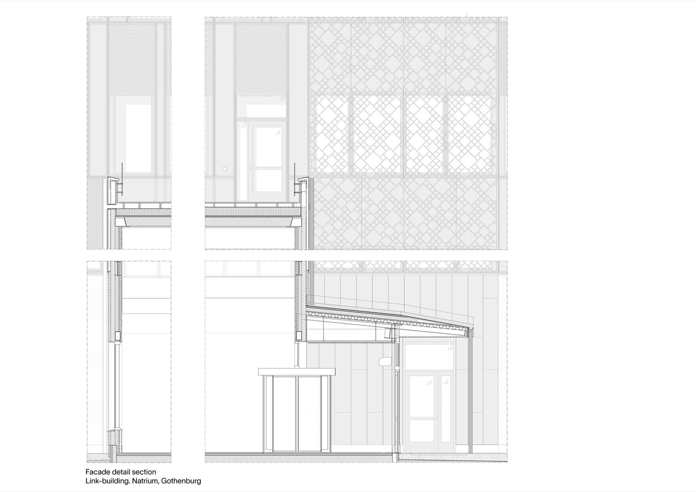
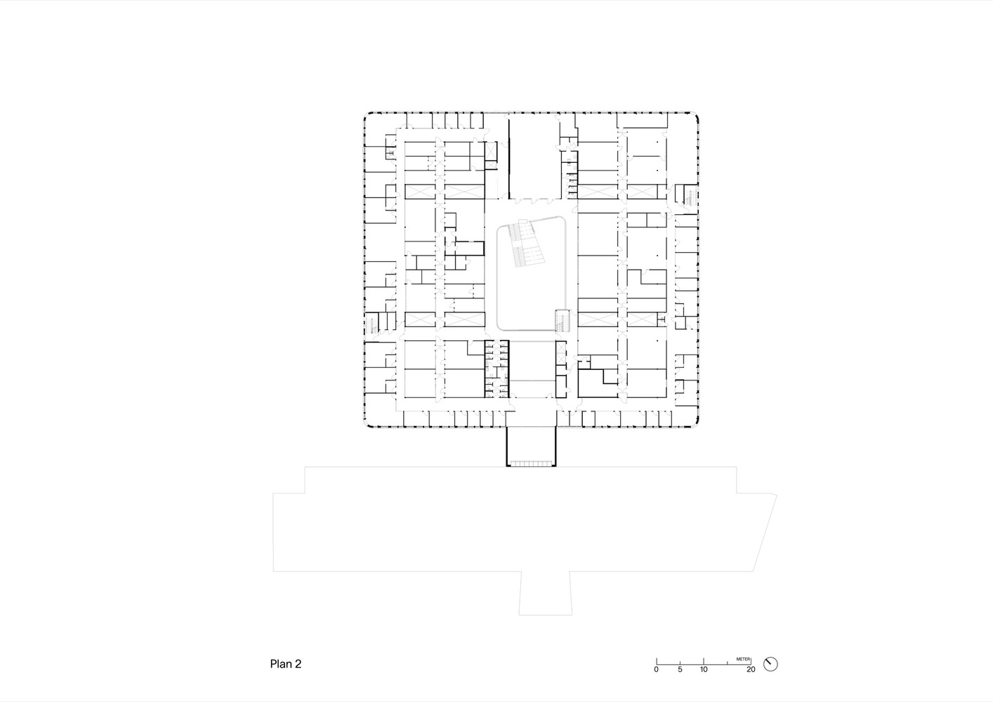
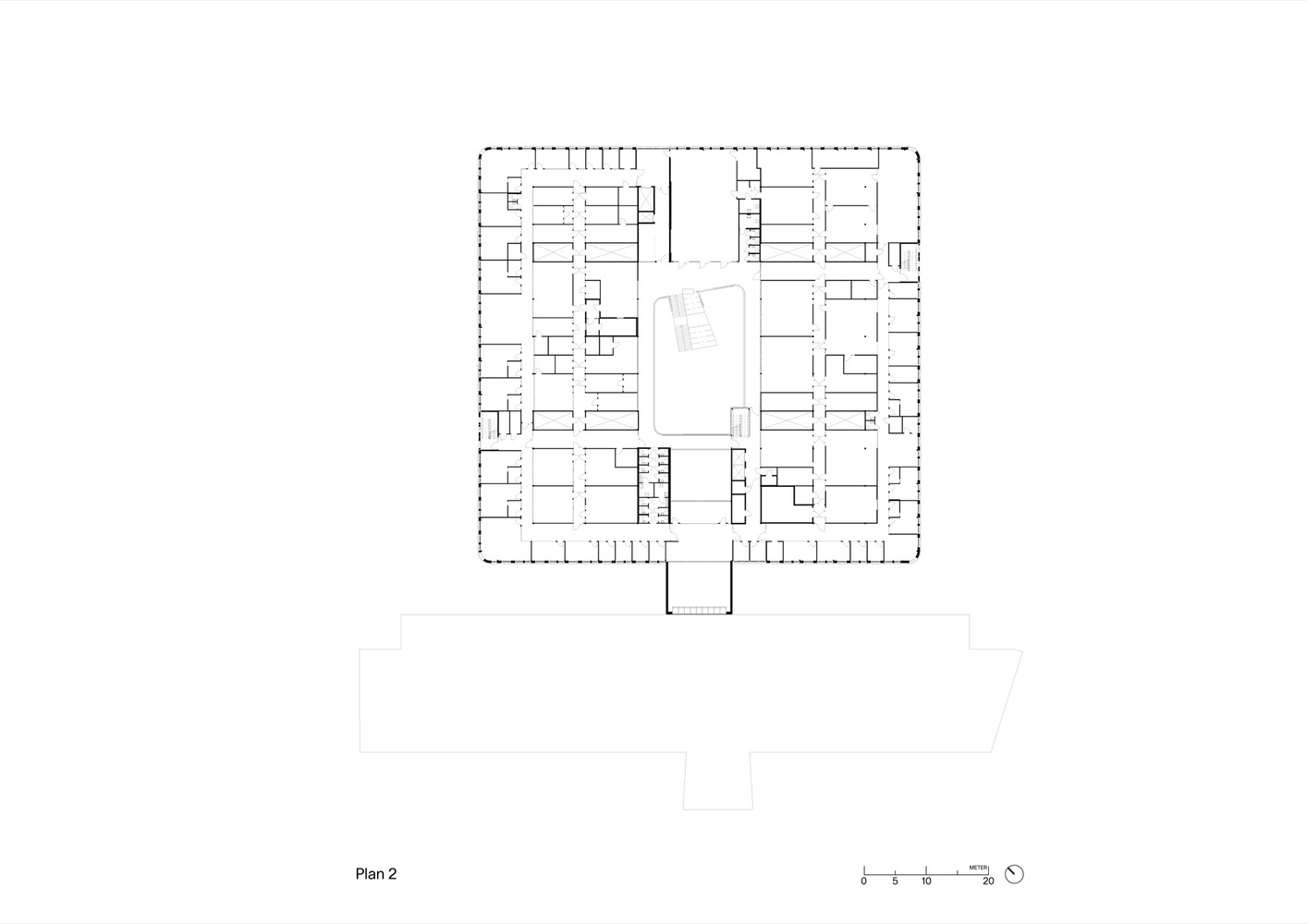
The architecture. Natrium consists of four buildings. They are connected by a bright and inviting atrium that becomes the natural center and social hub of the building. The facade, consisting of brick, bronze colored panels, and glass, is inspired by the existing buildings on Medicinareberget and interacts well with the surroundings.
The building is large, bright, and welcoming with plenty of space for spontaneous meetings. The labs and meeting rooms have glass walls and face inwards, towards the stairwell and the large open spaces surrounding it. This open and airy solution makes it easy both to orientate yourself in the building and to follow the people moving around in it, which has been a deliberate strategy from the start. Collaboration is a key ingredient in any research project and Natrium is designed to promote all forms of interaction.
from archdaily
'Office' 카테고리의 다른 글
| *픽셀우드 Collcoll hides stairs and seats in pixellated wooden structure at Pricefx office (0) | 2024.04.05 |
|---|---|
| *오구 오피스 [ V8 Architects ] PI59 Offices (0) | 2024.04.04 |
| *베를린 도조 오피스 [ UNDPLUS ] DOJO Office Headquarter Berlin (0) | 2024.03.19 |
| *본피글리올리 에이치큐 [ Peter Pichler Architecture ] Bonfiglioli HQ (0) | 2024.02.28 |
| *웨어하우스 [ pbm ] Where’s House Warehouse (0) | 2024.02.22 |


