
![]() |
![]() |
![]() |
V8 Architects-PI59 Offices
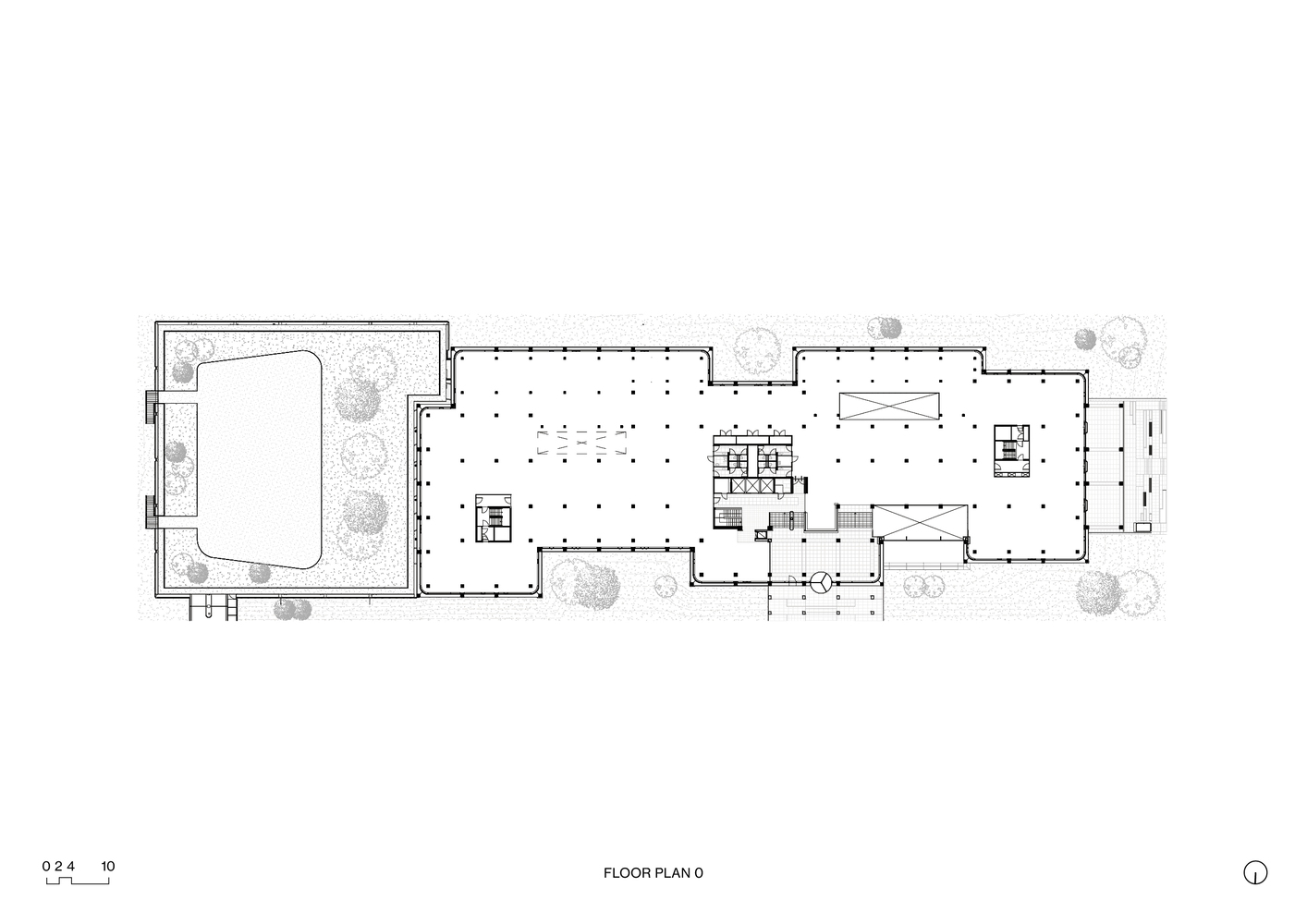
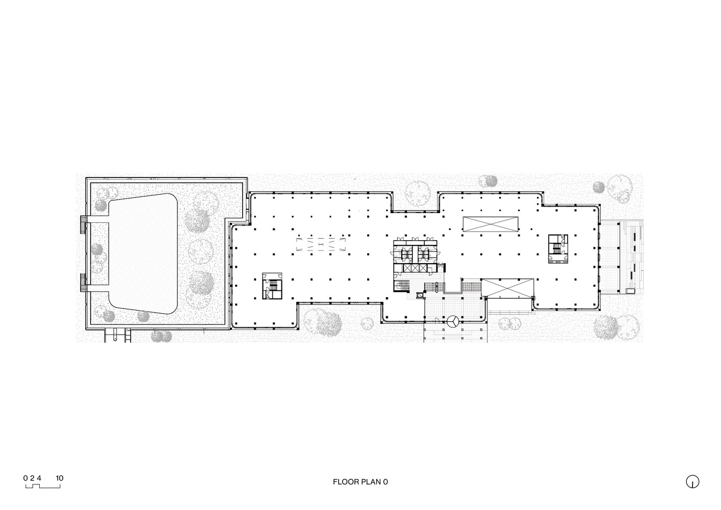
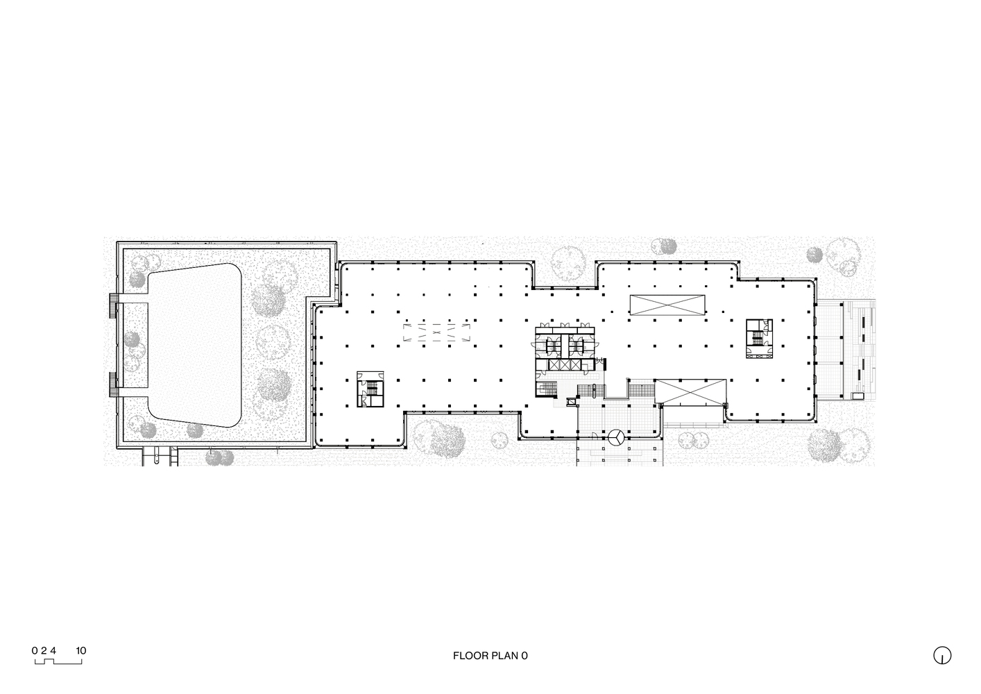
암스테르담의 주이다스는 이중적인 성격을 띠고 있습니다. A10의 남쪽에는 거대한 사무실이 있고 북쪽에는 계단식 주택이 있습니다. 가운데에는 1970년대에 사무실로 설계된 건물이 있는데, 현재는 학교로 사용되고 있으며 원래의 기능으로 되돌리고 있습니다. 하지만 도시, 이웃, 위치, 건물이 이를 요구하기 때문에 '최고 수준의 오피스 빌딩'이 될 것입니다. 저희는 이 일을 해야 할 의무가 있다고 느꼈습니다.
기존 건물은 대지 위에 독립적으로 서 있지만, 주이다스의 고층 건물과 북쪽의 저층 주거용 건물 사이의 선형 구역에 있는 큰 건물 군의 일부입니다. 각 건물마다 개성이 있지만 모든 건물을 둘러싸고 서로를 연결하는 녹색 띠라는 중요한 가치를 공유하고 있습니다. 더 큰 규모에서 이 띠는 두 도시 환경 사이에 녹색 완충지대를 형성하기도 합니다. 재개발을 통해 건물 주변의 여유 공간은 정원으로 설계되어 공원 속 별장이라는 PI59의 독특한 위치를 더욱 돋보이게 합니다.translate by Deeple















Amsterdam’s Zuidas has something of a dual character. Colossal offices on the south side of the A10, and terraced houses on the north side. In the middle, there is a building from the 1970s, designed as an office, that is used as a school and which we are bringing back to its original function. However, it will become the ‘best-in-class office building’, because the city, neighborhood, location and building demand this. We felt duty-bound to do this.
Although the existing building stands independently on its plot of land, it is part of a large family of buildings in the linear zone between the high-rise buildings of Zuidas and the low rise residential buildings on the north side. Although each building has its character, they share an important value, namely the green strip that surroundings all of the buildings and connects them to each other. On a larger scale, this strip also forms a green buffer between the two urban settings. With the redevelopment, the free space around the building is designed as a garden, which glorifies the unique position of PI59 as a villa in the park.
The existing concrete facade, with its pronounced brutalist character, is replaced with a facade that is the polar opposite in many respects. An open grid makes the building inviting instead of closed. Large windows with curved glass make the building transparent instead of dark. Bronze ornaments make the building refined instead of rough. Polished concrete with additional natural stone makes the building lively instead of dead. However, we use all of these elements to ensure that the solid character echoes its original character. Elegant brutalism.









from archdaily


