
![]() |
![]() |
![]() |
Yanfei Architects + Elepheno Architects-Haiyan Ke Tang
하이옌커탕은 쿤밍의 디안 호수 국립 관광 리조트 내 하이옌 마을에 위치하고 있습니다. 2008년 하이옌 초등학교가 문을 닫은 후 운동장에 간단한 창고 구조물이 세워져 마을 사람들이 결혼식이나 장례식 연회를 열 수 있는 공공 식사 공간이 되었으며, 현지에서는 “게스트 홀” 또는 “게스트 어페어 룸”이라고 부르는 전통을 이어가고 있습니다. 2024년 디안치 예술 시즌의 초청으로 케탕을 개조하고 업그레이드하게 되었습니다. 한편으로 하이옌 마을은 독특한 지리적 위치와 시시각각 변하는 아름다운 석양과 황혼의 하늘로 인해 팬데믹 이후 큰 인기를 얻었는데, 숭고한 천상의 풍경에서 촉발된 평등과 수변 공간에 대한 대중의 접근에 대한 갈망은 1960년대 두톈룽이 기록한 디안호 옆의 아름다운 삶을 반영하는 듯합니다. 한편, 다양한 시대의 건물이 병치되어 시간의 압축된 풍경을 만들어내고, 윈난성의 독특한 기후와 풍습으로 인해 밀폐된 열 관리를 소홀히 할 수 있는 조건을 제공하여 더욱 자유로운 건축 기법이 등장하게 된 중국의 많은 서민 마을을 대표하기도 합니다. 이러한 기록을 종합하면 자연스럽게 '캐노피의 깊이'에 대한 연구가 이루어지며, 일정 기간 동안 공간을 효과적으로 점유하는 것은 바로 '캐노피'의 경제성, 편리성, 일시성입니다. 수선 및 변경이라는 비시설 전략은 케탕의 리노베이션과 업그레이드를 논의할 때 시작점이 됩니다.translate by Deeple

























Haiyan Ke Tang is located in Haiyan Village, within the Dian Lake National Tourist Resort in Kunming. After the closure of Haiyan Primary School in 2008, a simple warehouse structure was erected on the playground, which became a public dining space for villagers to hold wedding and funeral banquets, a tradition locally referred to as "guest hall" or "guest affairs room." An invitation from the Dianchi Art Season 2024 prompted the renovation and upgrade of Ke Tang. For Haiyan Village, on the one hand, its unique geographical location and the breathtaking, ever changing sunsets and twilight skies have made it extremely popular post-pandemic—a longing for equality and public access to waterfront spaces, triggered by the sublime celestial landscapes, seems to reflect the beautiful life by the side of Dian Lake as recorded by Du Tianrong in the 1960s.
On the other hand, it is also representative of many common villages in China: the juxtaposition of buildings from various eras creates a compressed view of time, and the unique climate and customs of Yunnan provide conditions that allow for the neglect of airtight thermal control, resulting in more unrestrained construction methods. When these records are put together, they naturally form a study on the "depth of canopy": it is precisely the economy, convenience, and temporariness of "canopy" that brings effective occupation of space for a certain period. The non facility strategy of mending and altering becomes an initial point in discussing the renovation and upgrade of Ke Tang.
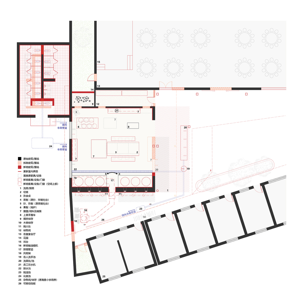
Therefore, the renovation goes hand in hand with repurposing the old. Necessary upgrades and purchases are made for parts involving structure, sanitation, and operational zoning. For example, leveling the kitchen roof structure, replacing the entire roof, adding exhaust and oil separation equipment, replacing overall lighting fixtures, etc.; adding outdoor canopies, and standardizing some of the kitchen area's traffic lines to prevent guests from passing through. In terms of materials and objects, as much as possible, old items are reused and refurbished. The flue, earth stove, and most of the wall tiles, floor, and furniture are all refurbished on the original basis, or simply patched up.
The original corroded roof of Ke Tang's main hall was cleaned and directly stabilized with a rust converter. Throughout the process, the economy has been the key factor in measuring this series of operations. Generally speaking, local guest affairs last for three to five days, and it is economical and convenient to hold banquets in Ke Tang. Over the years of use, a team formed spontaneously by the villagers has developed a complete set of procedures with a clear division of labor and orderly operation, capable of calmly handling banquets for seven or eight hundred people. This loose and continuous temporary work model, the so called "living together with a difference, each with its beauty," may be the most touching aspect of Ke Tang.









from archdaily
'Commerce' 카테고리의 다른 글
| *부띠크 샵 [ Knight Associates ] Lonely Melrose Boutique in LA (1) | 2024.05.22 |
|---|---|
| *더 리버 콰이 레스토랑 [ PHTAA ] Restaurant The River Kwai (0) | 2024.05.16 |
| *버티컬 우드 [ Snøhetta ] Vertikal Nydalen (0) | 2024.05.01 |
| *언클라우드 커피 [ Unknown Surface Studio ] Uncloud Coffee (0) | 2024.04.29 |
| *가든 컨셉 스페이스 [ Mountain Soil ] JIA GARDEN CONCEPT SPACE (0) | 2024.04.09 |


