"건축은 단지 형태가 기능을 따르는 것이 아니라, 아름다움을 따르는 것이다."
– Oscar Niemeyer

![]() |
![]() |
![]() |
자연이랑 팀 짜서 건축하다: 생 테오프리의 자연 친화적 변신!
프로젝트 개요
프로젝트명: Saint Théoffrey School and Restaurant
설계자: STUDIO90
위치: 프랑스, Saint Théoffrey
Saint Théoffrey School and Restaurant 프로젝트는 전통 농가의 건축적 요소를 현대적으로 해석한 건축물입니다. 이 프로젝트는 전통 농가의 형태적 코드와 알파인 목재를 활용해, 지역 환경과 조화를 이루는 디자인을 선보입니다.
녹지 공간과 자연스럽게 어우러지는 지속 가능한 접근 방식을 채택했으며, 저탄소 재료를 사용해 환경적 책임을 실현했습니다. 서론에서 독자의 흥미를 끌기 위해, 이 프로젝트가 주는 영감을 강조합니다.
이번 글에서는 설계 의도와 구현 과정을 살펴봅니다.
설계 컨셉 및 구현
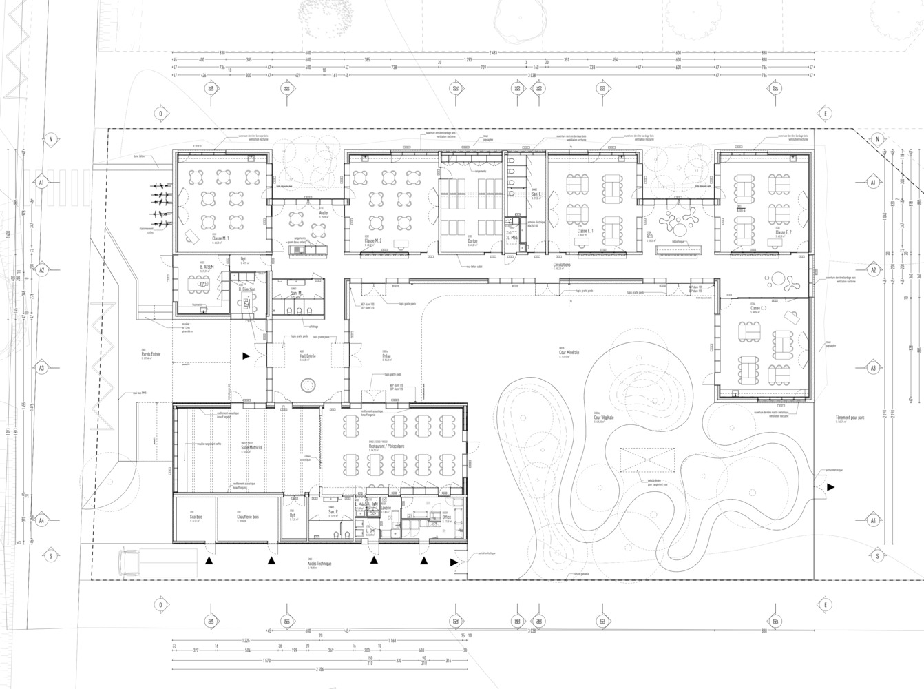
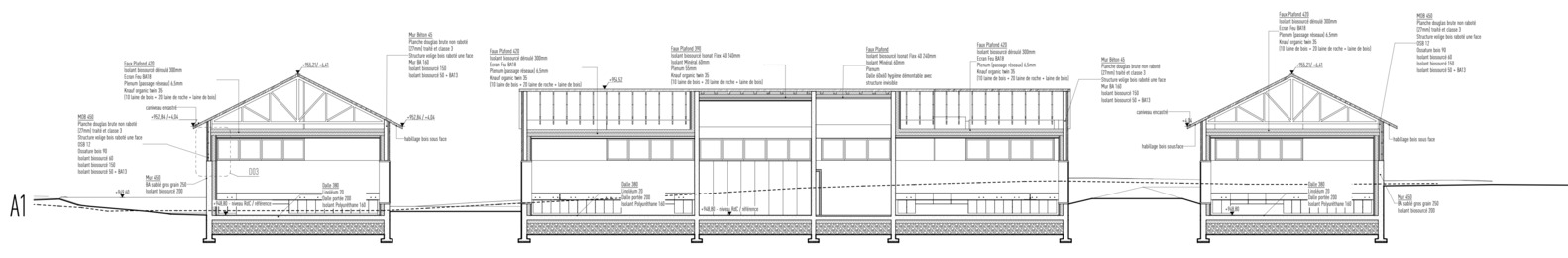
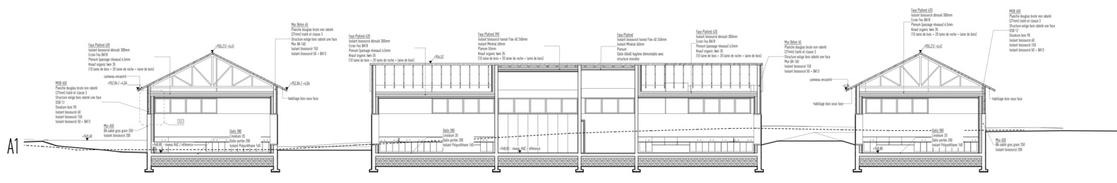
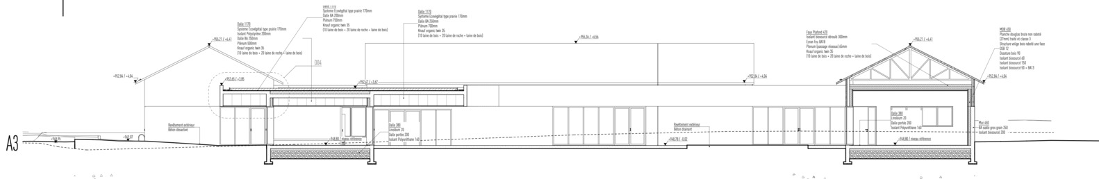
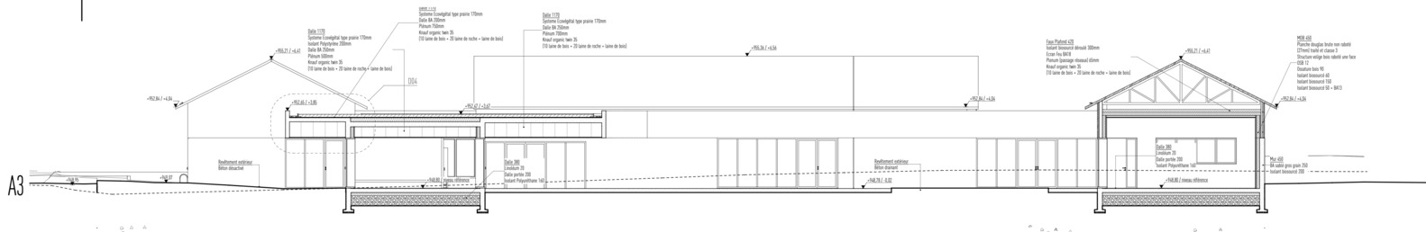
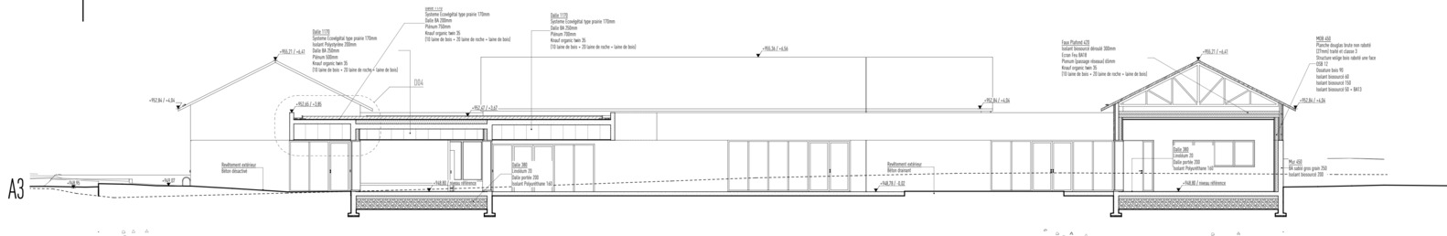
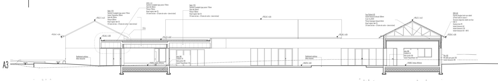
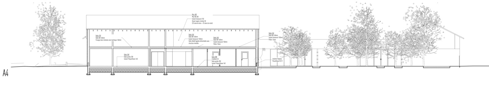
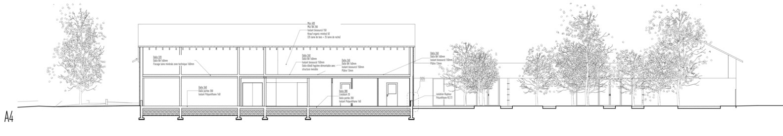
건물은 네 개의 볼륨으로 나뉘며, 각 볼륨은 전통 농가의 지붕 라인을 현대적으로 표현했습니다. 각 지붕은 방향이 달라 산악 지형과 자연스럽게 어우러집니다.
네 개의 볼륨이 교차 배치되어, 개별적으로 두드러지지 않으면서도 주변 환경과 조화를 이룹니다.
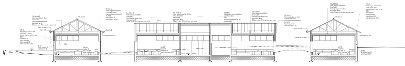
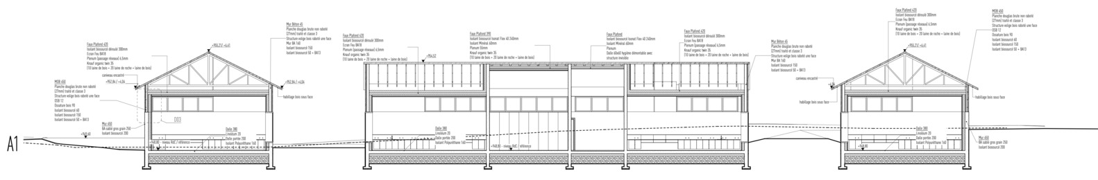
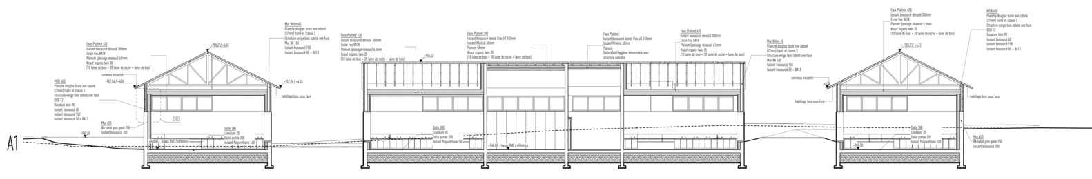
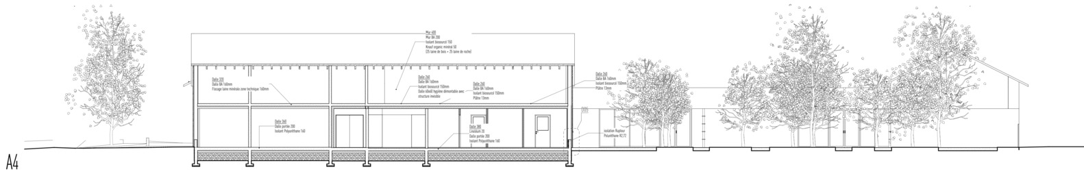
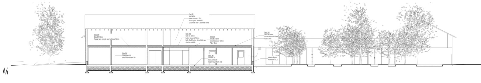
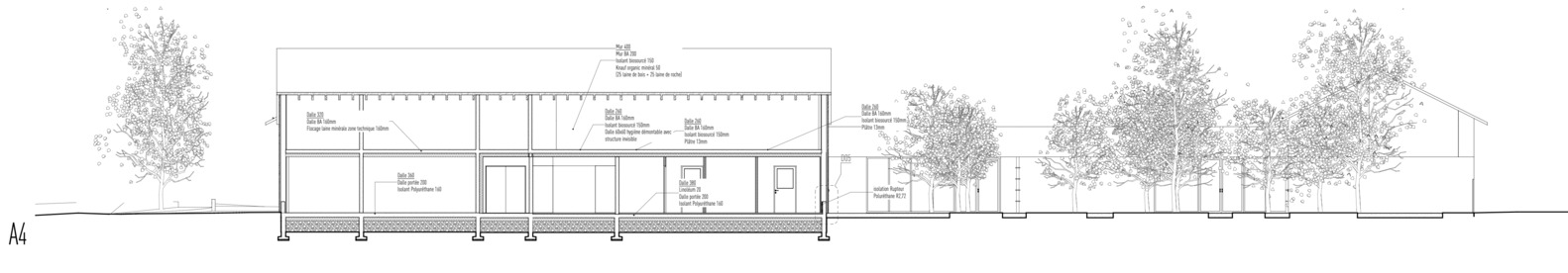
건축 재료로는 목재와 콘크리트를 사용했습니다. 콘크리트는 샌드블라스트 처리로 돌과 같은 질감을 표현했으며, 외장재로 사용된 다글라스 퍼 목재는 부분적으로 개방형으로 처리해 빛이 자연스럽게 내부로 유입되도록 했습니다.
이러한 재료 선택은 지속 가능한 건축 트렌드를 반영하며, 지역 환경과 조화를 이루는 데 중점을 두었습니다.
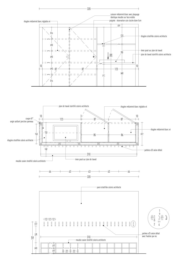
내부 및 외부 디자인
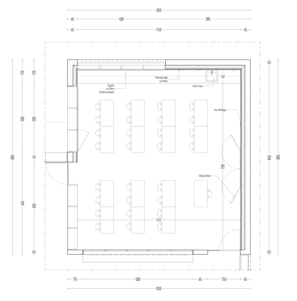
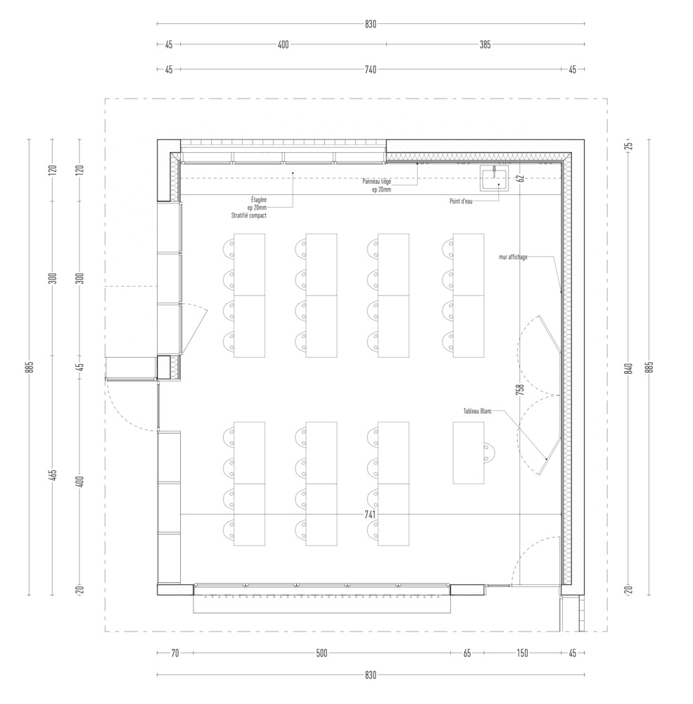
내부는 큰 창문을 통해 자연광을 최대한 받아들이며, 학습과 식사 공간이 유기적으로 연결되어 있습니다.
교실, 다목적실, 식당 등이 평면도 상에서 서로 긴밀하게 연결되어, 사용자가 공간의 연속성을 느낄 수 있습니다.
외부는 따뜻한 질감의 재료를 사용해, 방문자에게 시각적 편안함을 제공합니다.
독자의 이해를 돕기 위해 복잡한 전문 용어를 쉽게 풀이하고, 가독성을 높이기 위해 간결한 문장으로 수정했습니다.
글로벌 건축 트렌드와 비교
Saint Théoffrey 프로젝트는 지속 가능한 재료와 디자인을 강조한 글로벌 건축 트렌드와 일치합니다. 최근 건축계에서는 자연과 조화를 이루는 디자인이 주목받고 있으며, 이 프로젝트는 그러한 트렌드를 성공적으로 반영하고 있습니다.
대규모 건물을 여러 개의 볼륨으로 나누어 설계하는 방식은 글로벌 트렌드와 일맥상통하며, 자연과의 통합을 강조합니다. 저탄소 콘크리트와 지역 목재 사용은 지속 가능한 건축의 좋은 사례로 평가됩니다.
사용자 경험
이 건물의 사용자들은 연결된 공간과 풍부한 자연광 덕분에 편안함을 느낍니다.
큰 창문을 통한 자연광 유입과 공간의 유기적인 연결성은 사용자의 안락함을 극대화하며, 건축적 경험을 더욱 풍부하게 만듭니다.
감성적인 묘사를 통해 건축물이 주는 정서적 경험을 강조했습니다.
결론
Saint Théoffrey School and Restaurant는 전통적 형태와 현대적 지속 가능성을 성공적으로 결합했습니다. 재료 선택부터 공간 구성까지 환경에 대한 책임을 다하며, 현대 건축의 모범을 보여줍니다.
미래의 건축은 지속 가능성과 지역적 특성을 반영하는 방향으로 나아갈 것입니다. 이 프로젝트는 그러한 미래 건축의 중요한 사례가 될 것입니다.
Write by ChatGPT & 5osa











































The school is made up of 4 volumes, incorporating the morphological codes of traditional farmhouses, alternating the directions of the ridge. These elements are connected by circulation areas covered by a heavily green roof. In the mountains, the height gain is common: the fifth facade disappears, and the building is fragmented.
The project raises the question of the construction of almost 1000m2 in a locality. How to build such a surface, and make it a continuation of fragmented mountain urbanization.
The constructive principle is a wood/concrete mix. The concrete is sandblasted, in order to give it that telluric character specific to stone constructions. The MOBs are clad with unplanned Douglas fir boards. Sometimes openwork, this cladding lets light filter into the spaces, like a forest edge. Low carbon concrete, Alpine wood, wood wool, wood boiler room.
from archdaily


