명언: 렘 쿨하스: "건축은 우리가 사는 시대와 연결되어 있다. 건축은 역사를 기록하고 현재를 반영한다."

![]() |
![]() |
![]() |
콘크리트, 커피, 그리고 건축가의 유머: 헤르타 모어 빌딩의 재탄생 De Zwarte Hond-Herta Mohr Building Leiden University Renovation
네덜란드 라이덴 대학교의 헤르타 모어 빌딩은 역사적 건축물 보존과 지속 가능한 건축의 새로운 기준을 제시하는 리노베이션 프로젝트로, 과거와 현대를 조화롭게 결합한 사례로 평가받고 있습니다. 이 프로젝트는 1970년대 Joop van Stigt가 설계한 구조주의적 건축물을 현대적 기능성과 사회적 상호작용을 고려한 공간으로 재탄생시켰습니다. 11,400㎡의 면적과 700여 개의 학습 공간을 제공하는 이 건물은 현대 교육 공간의 새로운 지표가 되고 있습니다.
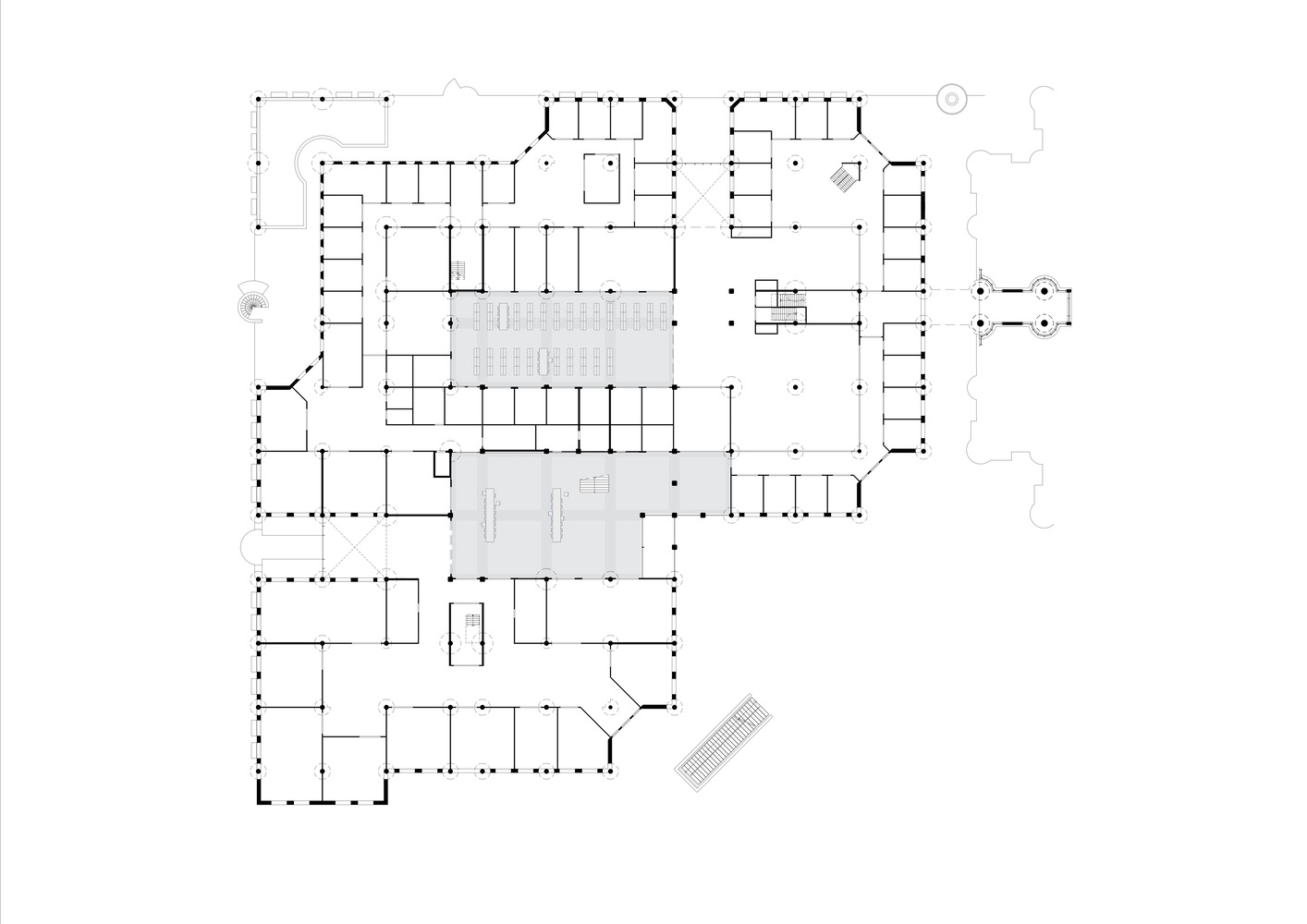
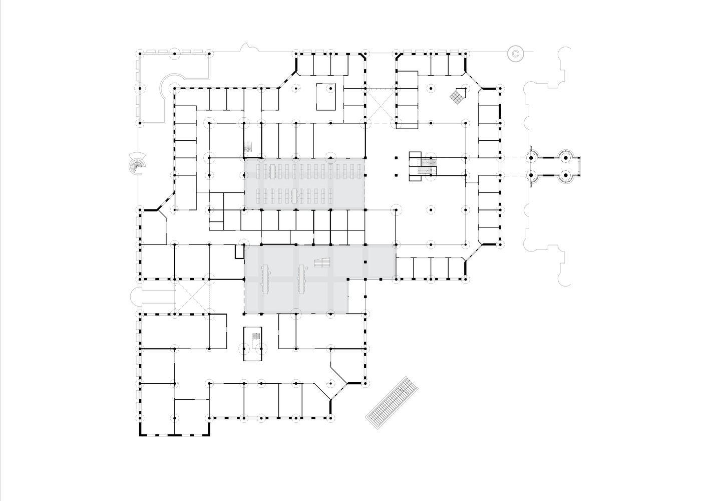
구성 및 배치
헤르타 모어 빌딩의 가장 두드러지는 변화는 중앙 아트리움입니다. 기존 7개의 독립된 ‘집’ 중 하나를 철거하고 생긴 이 공간은 유리 지붕을 통해 자연광을 최대한 활용하며, 방문객들이 중심에서 건물의 여러 구역으로 쉽게 이동할 수 있도록 유도합니다. 이로써 건물 전체가 하나의 통일된 공간으로 연결되어 있으며, 사회적 상호작용과 공간의 개방성을 촉진하는 역할을 합니다.
이 아트리움은 단순한 공간의 연결을 넘어서 기능적이며 미적인 조화를 이루는 중요한 설계적 요소로 자리잡았습니다.
소재 및 질감
리노베이션 과정에서 사용된 주요 재료들은 콘크리트, 목재, 그리고 유리로 이루어져 있습니다. 콘크리트는 건물의 구조적 안정성을 강조하며, 목재는 따뜻한 질감을 통해 공간에 따뜻함을 더해줍니다. 세쿼이아 레드우드 천장 패널은 재활용되어 벽 마감재로 사용되었으며, 이로 인해 역사적 유산을 보존하는 동시에 지속 가능한 자원 사용을 극대화했습니다.
이러한 재료 선택은 미적 측면뿐만 아니라 건물의 에너지 효율성을 높이는 중요한 역할을 하였습니다.
빛과 색채
이 건물에서 자연광의 활용은 설계의 중요한 부분을 차지합니다. 유리 천장을 통해 아트리움으로 유입되는 빛은 내부 공간을 밝고 개방감 있게 만듭니다. 목재와 콘크리트의 중립적인 색조는 공간에 차분한 분위기를 더하며, 자연광과 조화를 이루어 사용자들에게 쾌적한 경험을 제공합니다.
자연광의 사용은 단순한 밝기 확보를 넘어 건물 전체의 지속 가능한 디자인을 실현하는 데 중요한 역할을 했습니다.
건축적 보존과 현대적 조화
리노베이션 과정에서 Joop van Stigt의 원래 설계를 존중하면서도 현대적 필요를 반영하여 설계된 이 건물은 건축적 유산을 보존하는 동시에 지속 가능한 기능성을 더한 대표적인 사례로 꼽힙니다. 콘크리트 기둥과 원형 발코니는 건물의 역사적 매력을 그대로 유지하면서 현대적인 설계 요소들과 조화를 이루었습니다.
기존 건축물의 미적 요소를 유지하는 동시에, 내부 공간을 현대적 요구에 맞게 재구성한 점을 통해 건물의 디자인적 성공을 보여주는 중요한 요소입니다.
기능성과 사회적 상호작용
새로운 중앙 아트리움은 학생들과 교직원들이 자연스럽게 모일 수 있는 개방적 공간으로, 다양한 학습 활동과 사회적 상호작용을 촉진하는 역할을 합니다. 커피 코너와 같은 공용 공간은 비공식적인 만남과 토론의 장을 제공하며, 이로 인해 건물 전체가 학습과 교류를 위한 커뮤니티 허브로 기능하고 있습니다.
이러한 공간 설계는 사용자들이 공간을 보다 편안하고 효율적으로 사용할 수 있도록 최적화되었습니다.
지속 가능한 설계와 기술적 세부 사항
헤르타 모어 빌딩은 BREEAM 엑설런트 인증을 획득하며, 지속 가능성을 중심으로 한 건축적 성과를 인정받았습니다. 단열, 태양광 패널, 열/냉기 저장 시스템 등의 최신 기술이 도입되어 에너지 소비를 최소화했으며, 이 과정에서 기존 건축물의 재사용을 통한 자원 낭비 최소화가 이루어졌습니다.
이러한 기술적 세부 사항은 리노베이션의 성공적 요소로서 지속 가능한 건축을 실현하는 데 중요한 역할을 했습니다.
결론
헤르타 모어 빌딩 리노베이션은 지속 가능성과 역사적 보존이라는 두 가지 목표를 성공적으로 결합한 사례입니다. Joop van Stigt의 원래 설계를 존중하면서도, 현대적인 에너지 효율성 및 사회적 상호작용을 고려한 공간 설계는 이 건축물을 미래 건축의 모범 사례로 자리잡게 했습니다. 이 프로젝트는 지속 가능한 건축의 방향성을 제시하며, 라이덴 대학교에서 새로운 상징적 공간으로 자리잡았습니다.
Write by ChatGPT & 5osa





















Commissioned by Leiden University, De Zwarte Hond has completed the circular renovation and extension of the former Cluster Zuid building of the Faculty of Humanities. Architect Joop van Stigt designed Cluster Zuid for the Faculty of Humanities of Leiden University in the late 1970s. This impressive example of structuralist architecture was re inaugurated on 8 October as Herta Mohr. It now offers 11,400 m² of space, plus car parking, with more than 700 teaching spaces and self study places, two lecture theatres, work and meeting rooms, and common rooms. The building also houses the libraries of Leiden's African Studies Centre and the Middle Eastern Studies program.
Better orientation and light boost unity -Cluster Zuid originally consisted of seven separate 'houses'. Orientation in the building was difficult: the two courtyards were very similar and the narrow alleyways made the interior spaces dark. In addition, the dark ceilings and small windows, some with wired glass, created a closed and gloomy atmosphere. To improve this, the central house was demolished and replaced by a new large central heart with lots of daylight. This makes it easier for visitors to better orient themselves from the central space, and the bright atrium creates a cohesive whole. New diagonal sightlines have been created from the existing houses to the heart. The second floor was completely renovated and an eighth house with an anodized aluminum façade was added on the Maliebaan side. Van Stigt's original design also included a house here, but it was never built.
Due to the protected cityscape, which means that Van Stigt's original structure is a listed building, the changes to the façade have been kept to a minimum. Particularly striking are the prefabricated concrete columns with conical tops, some with round balconies, which are left fully visible in the renovated building. The welcoming building opens up to the city: the entrance connects the square outside with the square inside, creating interaction with the environment. There is more space for people to meet, both inside at the coffee corner and outside around the seating elements in the square. The building is part of the Humanity Campus, which will be improved in the coming years to better connect with the city and the Green Canal Park. This building is the first step in this process.
A renovation that prioritizes reuse and sustainability -During the development of this building, 72% more sustainable measures were implemented than were required by the building regulations. By selecting high-quality materials with low emissions of unhealthy substances throughout the building, Herta Mohr now has a BREEAM Excellent certification. Insulation, solar panels, and a heat/cold storage system were also added. In addition, new, efficient installations were installed to meet the high sustainability requirements. However, the existing structure could not support these changes, so the second floor was removed and a completely new structure was built on top of the building. This intervention has combined the separate 'houses' into one whole, with the technical installations fully integrated.
Reuse The reuse of most of the original building and façade is a notable achievement. Concrete columns from the demolished central house were reused in the extension. Other materials were also given a new life. For example, the old Sequoia redwood ceiling panels were transformed into wall cladding in the atrium. These slats were carefully worked on, stripped of nails, and milled in collaboration with the social workshop BWRI. The specific pattern of the slats meant that everything could be prefabricated and installed, minimizing waste.
Respect for the existing -The renovation of the Cluster Zuid building complements and reinforces the existing design. The refurbished building reflects the spirit of Joop van Stigt as well as that of the present. By opting for renovation and sustainability, Herta Mohr has gained a new place in the collective memory of Leiden. The project was carried out in collaboration with Combinatie Cluster Zuid, consisting of Constructif and Koninklijke Kuijpers. The project also included excellent cooperation from Aronsohn, Buro Bouwfysica, BWRI, KCAP, C2N, Fokkema & Partners Architecten, Harryvan, Nelissen Ingenieursbureau, New Horizon, and Pieters Bouwtechniek.
archdaily


