"우리가 사용하는 공간은 그 자체로 문화의 축적물이다." – 렘 쿨하스

![]() |
![]() |
![]() |
“도자기를 집으로 – UCCA 클레이 박물관에서 전통과 현대의 달콤한 충돌” Kengo Kuma & Associates-UCCA Clay Museum
시간에 따라 색채가 변하는 도자기 패널과 곡선형 외관이 어우러진 중국 이싱의 UCCA 클레이 박물관은 전통과 현대를 연결하는 감각적 건축물입니다. 이 박물관은 도자기의 온기와 질감을 표현한 독특한 외관과, 빛과 시간의 변화에 따라 색채가 달라지는 도자기 패널로 방문객들에게 감각적 경험을 제공합니다. 세계적인 건축가 Kengo Kuma가 설계한 이 건축물은 인근의 Shushan 산과 600년 역사를 가진 용가마에서 영감을 받아, 전통과 현대가 융합된 공간으로 재탄생했습니다. UCCA 클레이 박물관은 방문자들에게 전통과 혁신이 공존하는 아름다움을 선사하며, 중국 이싱의 도자기 문화가 어떻게 현대적 감각으로 재해석될 수 있는지를 보여주는 상징적인 사례입니다.
위치: 중국 이싱
설계자: 건축가 Kengo Kuma
목적: 전통 도자기 문화를 보존하고 현대적 건축을 통해 그 가치를 확장하려는 문화 공간
박물관의 목적을 달성하기 위해, 건축가는 특별한 설계 컨셉을 적용했습니다.
설계 컨셉
핵심 개념: 박물관의 외형은 인근 Shushan 산과 600년 역사를 자랑하는 용가마(Dragon Kiln)에서 영감을 받아 설계되었습니다. 산을 닮은 곡선형 외관과 목재 격자 구조는 도자기 문화를 현대적으로 해석하여, 자연과 전통이 공존하는 공간을 창출합니다. Kengo Kuma는 도자기 도시 이싱의 역사와 자연 환경을 반영하여, 건축물이 주변 경관과 조화롭게 융합되도록 설계했습니다.
박물관의 설계 요소들은 이러한 개념을 바탕으로 구체화되었습니다.
주요 설계 요소
자연 통합과 조화:
박물관의 외형은 산을 닮은 곡선 형태로, 주변 자연과 유기적으로 연결됩니다. 이 곡선형 외관과 내부 동선은 방문객들이 자연스럽게 건축물의 흐름을 느끼며 이동할 수 있도록 설계되었습니다.
재료 사용과 질감:
박물관 외관의 도자기 패널은 전통 도자기처럼 따뜻하고 거친 질감을 가지고 있으며, 시간과 빛의 변화에 따라 색감이 미묘하게 달라집니다. 이는 도자기 공예의 감각을 현대적으로 해석한 것입니다.
빛과 색채의 활용:
빛과 색채의 변화는 건축물의 시각적 매력을 높이는 중요한 요소입니다. 자연광이 도자기 패널 표면을 부드럽게 감싸며, 시간에 따라 다른 색조와 그림자를 연출하여 시각적 리듬을 형성합니다.
박물관의 외관과 내부는 이러한 요소들이 어우러져 유기적인 공간을 형성합니다.
내부 및 외부 디자인
외부 디자인: 외관은 도자기 공예의 질감을 재현한 도자기 패널로 구성되어 있으며, 곡선적 디자인은 빛과 색채 변화로 건물 외관에 다양한 표정을 부여합니다.
내부 디자인: 내부는 곡선형 동선과 목재 격자 구조를 통해, 방문객들이 마치 강물이 흐르듯 자연스럽게 이동할 수 있도록 유도합니다. 목재 격자의 곡선미는 시각적으로도 공간에 깊이감을 부여하며, 외부와 일관된 감각적 경험을 제공합니다.
사용자 경험
방문객들은 시간에 따라 색이 변화하는 도자기 패널을 통해 하루의 흐름을 시각적으로 느낄 수 있습니다. 공간을 거닐며 도자기의 온기를 경험할 수 있도록 설계된 이 박물관은 전통 도자기 문화를 현대적으로 재해석한 감각적 공간입니다.
이러한 사용자 경험은 전통과 현대의 융합을 체감할 수 있게 합니다.
결론:
UCCA 클레이 박물관은 중국 이싱의 전통 도자기 문화를 현대적 건축 언어로 재해석한 공간으로, 전통과 현대가 조화를 이루는 독창적인 사례입니다. 건축가 Kengo Kuma의 설계 철학을 반영한 이 박물관은 빛과 색채 변화에 따라 표정이 달라지는 도자기 패널과 산을 닮은 곡선형 외관을 통해, 전통적 재료와 형태가 어떻게 현대적 감각으로 탈바꿈할 수 있는지를 보여줍니다. 방문객들은 이 박물관에서 시간과 공간의 흐름을 느끼며, 건축물과 함께 살아 움직이는 도자기 문화의 본질을 체감할 수 있습니다.
이 박물관은 건축물 자체가 지역의 문화적 정체성을 상징하는 동시에, 현대 건축에서 전통을 어떻게 유지하고 재해석할 수 있는지에 대한 인사이트를 제공합니다. UCCA 클레이 박물관은 곡선형 외관과 도자기 패널의 독창적 활용을 통해 앞으로도 문화와 건축이 융합된 공간으로서, 지속 가능한 건축의 미래 트렌드를 선도할 것으로 기대됩니다.
Write by ChatGPT & 5osa

































We designed an art museum to showcase the ceramic culture in Yixing, known as the "ceramic capital" and renowned for its production of pottery using purple clay. The site was once the center of Yixing's ceramic culture, with its numerous pottery factories and ateliers. This project aligns with the master plan to redevelop the area and envisions a cultural center for ceramics, incorporating ateliers and workshops while preserving the remnants of decommissioned factories.
The volume resembling a mountain of pottery is inspired by Shushan Mountain, located near the project site and cherished by the Northern Song dynasty writer Su Dongpo, as well as by the dragon kiln, a climbing kiln that has been in continuous use for 600 years. The mountain-shaped volume was punctured to connect with the pottery factory and the canal, seamlessly integrating the building with the site's axis and the surrounding factory complex.
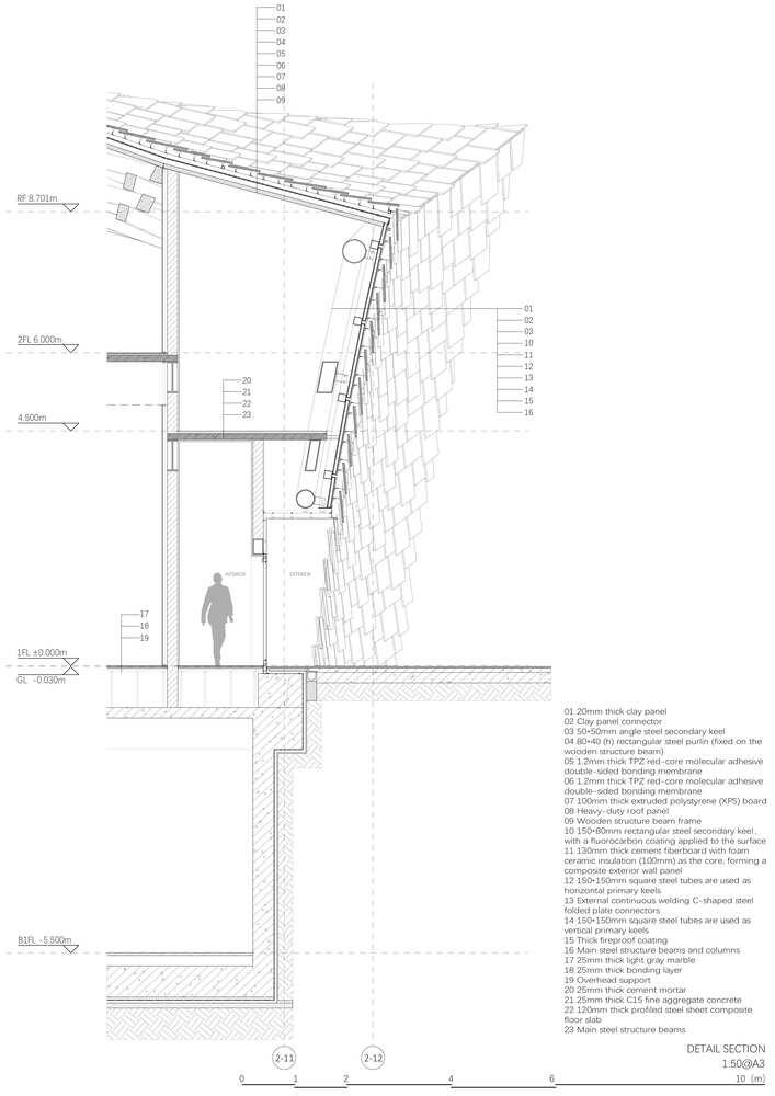
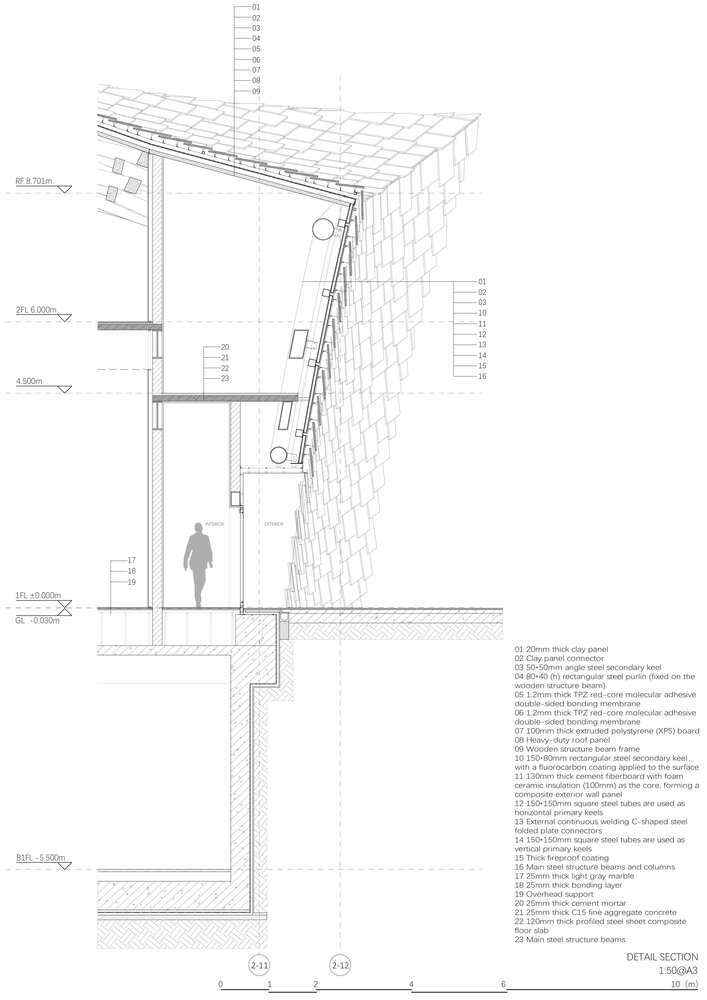
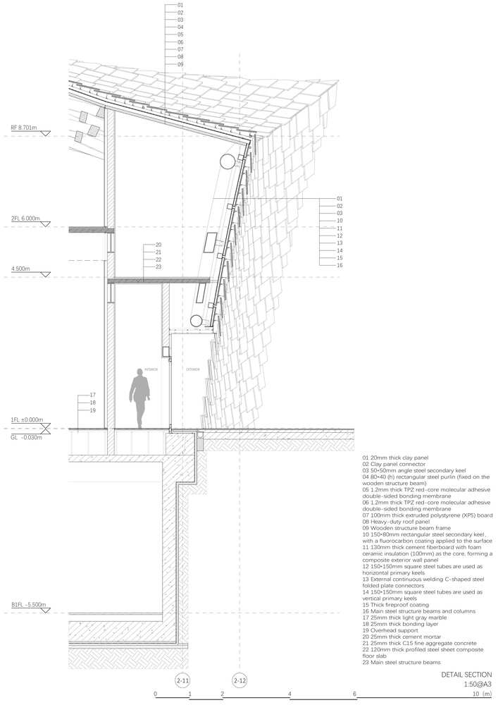
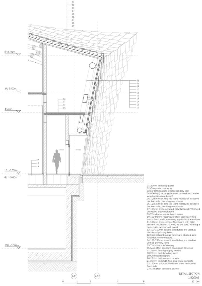
The roof, an inverted shell structure carved by virtual spheres, is supported by four layers of wooden lattice beams. This light yet strong wooden structure brings dynamic changes to the interior space and draws the line of sight and circulation flow deeper into the building.
The facade, which evokes the "temperature" of pottery in the manufactory, was developed in collaboration with local artisans. Its uneven surface is glazed with varying color gradations, creating different expressions depending on the time of day and season. Warm and slightly coarse to the touch like Chinese tea ware, these ceramic panels embody the history and culture of the ceramic city, which has been passed down through the generations for more than 1,000 years.
from archdaily


