"건축은 단순한 공간이 아니다. 그것은 삶을 담는 그릇이다." – 프랭크 로이드 라이트 (Frank Lloyd Wright)

![]() |
![]() |
![]() |
빛과 그림자의 무한한 대화 – Restelo MGR House
과거와 현재가 교차하는 공간
Restelo MGR House는 1950년대 중반 지어진 쌍둥이 주택을 개조하고 확장하는 프로젝트로, 현대적 감각을 덧입힌 건축적 대화의 결과물이다. 기존 건물의 중후한 역사적 요소를 유지하면서도, 공간의 기능성과 미적 완성도를 극대화하는 방식으로 설계되었다.
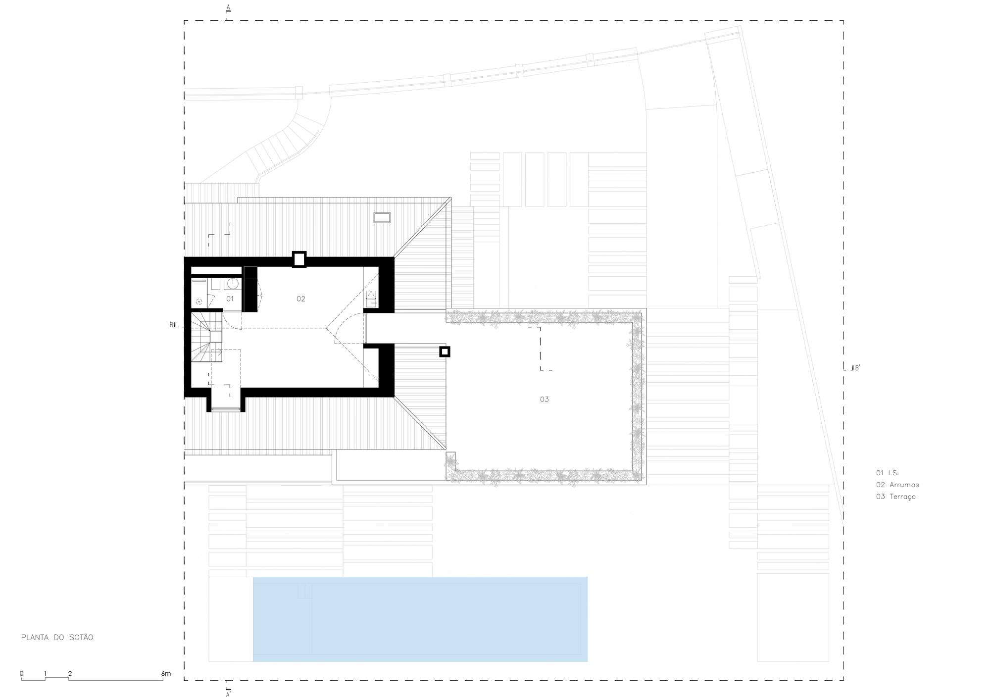
새롭게 추가된 다락층은 단순한 공간 확장을 넘어, 리스본의 탁 트인 전경을 조망하는 또 다른 차원의 생활 공간으로 기능한다. 외관은 화이트 슬랫 알루미늄 패널을 사용하여 기존의 클래식한 파사드와 현대적 조형미를 조화롭게 연결하며, 빛과 그림자가 만들어내는 시각적 효과를 극대화했다.
빛과 그림자의 리듬
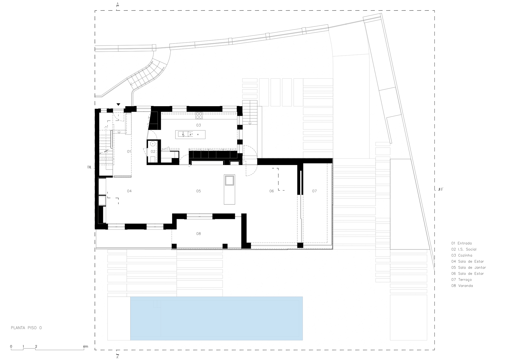
Restelo MGR House의 디자인은 자연광의 활용에 초점을 맞춘다. 대형 개구부와 슬라이딩 패널을 통해 실내로 들어오는 빛은 하루의 흐름에 따라 공간을 다채롭게 변화시킨다. 특히, 거실과 주방 공간은 유리창과 테라스를 통해 실내외의 경계를 허물고, 시간이 흐름에 따라 빛과 그림자가 춤추듯 변화하는 공간감을 제공한다.
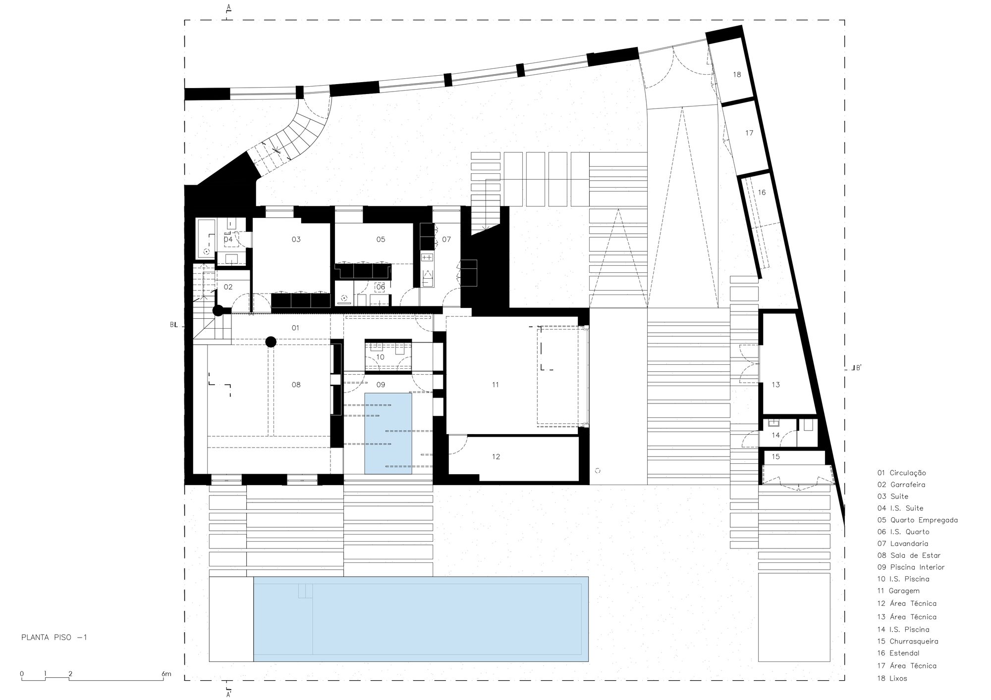
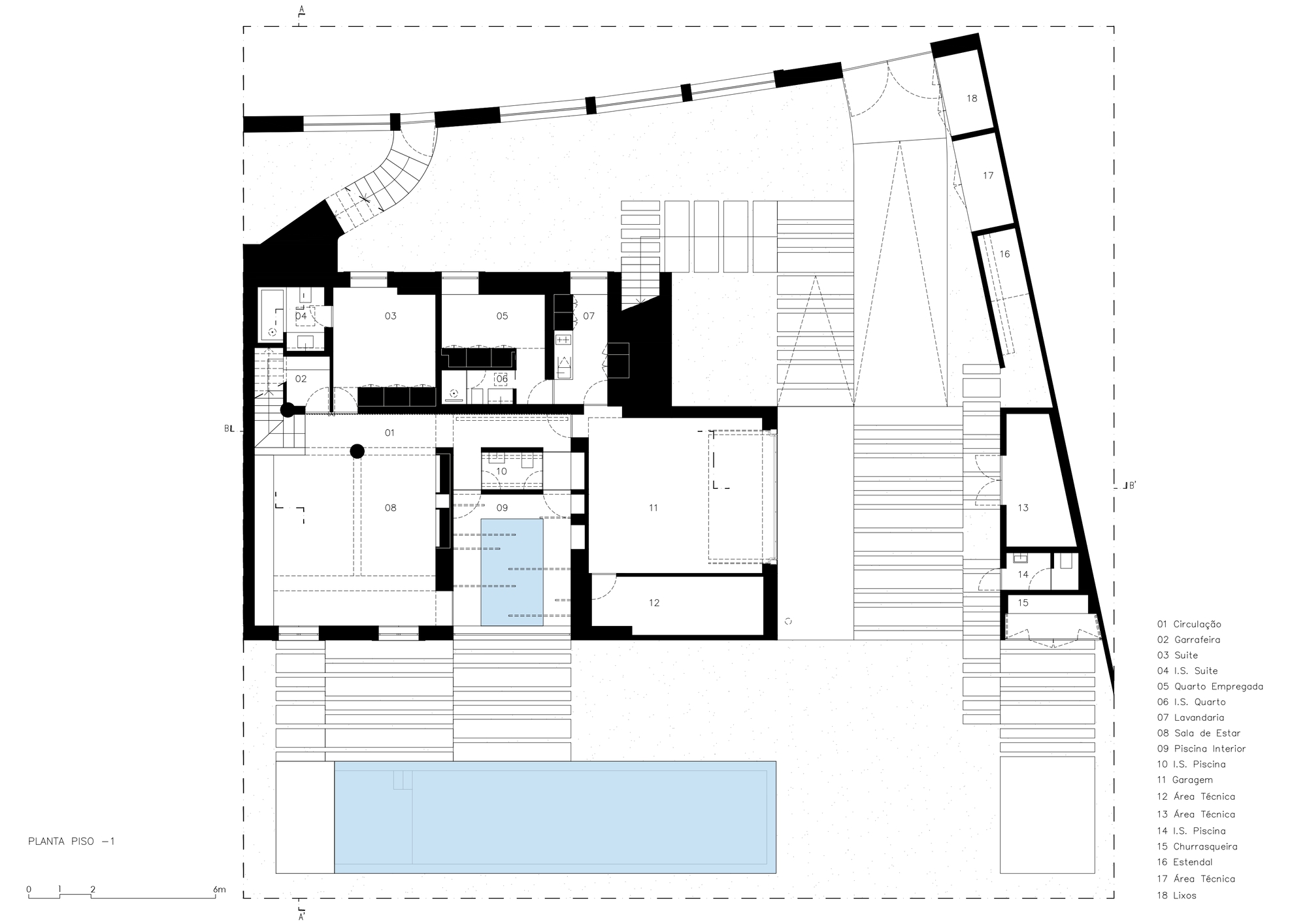
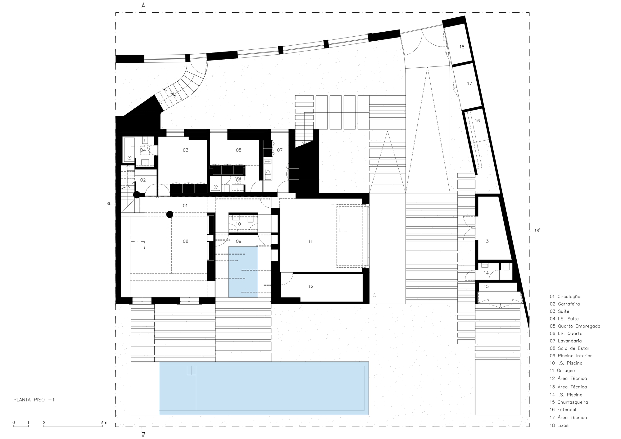
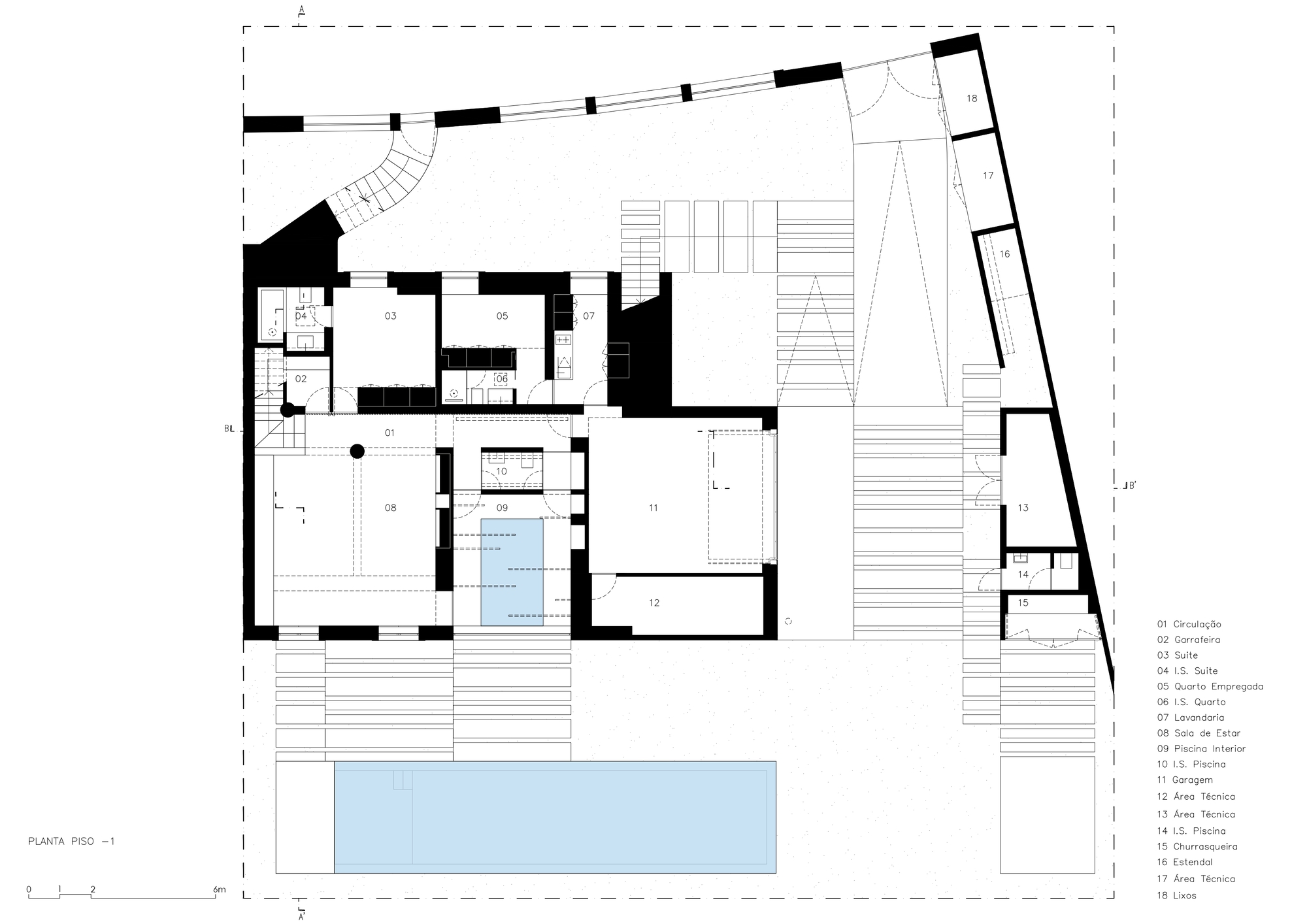
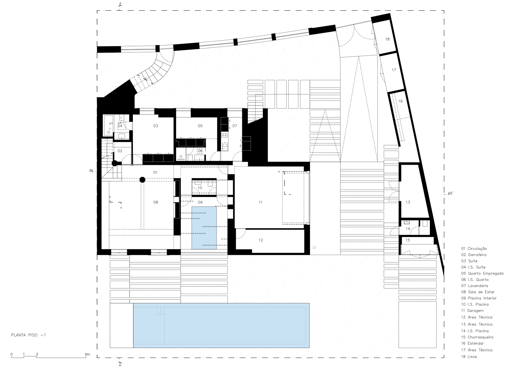
지하층은 단순한 보조 공간을 넘어, 홈시네마와 와인 셀러, 실내 수영장까지 포함한 엔터테인먼트 공간으로 변모했다. 조명과 반사되는 소재의 조합을 통해 어둠 속에서도 깊이감 있는 공간을 연출하며, 기능성과 감각적 디자인을 조화롭게 담아냈다.
현대적 감각과 유산의 조화
이 프로젝트의 핵심은 기존 건물의 역사성을 존중하면서도, 현대적인 라이프스타일을 반영하는 데 있다. 자연석과 반수제 타일, 목재 등의 질감 있는 소재를 적극적으로 활용하여 따뜻하고 포근한 분위기를 유지하는 동시에, 미니멀한 디자인과 첨단 기술이 결합된 주방, 욕실 등은 세련된 실용미를 보여준다.
가장 상징적인 변화는 마스터 스위트룸이다. 새롭게 추가된 공간은 프라이빗한 발코니와 워크인 클로짓을 갖추고 있어, Restelo 지역의 풍경을 조망할 수 있는 안락한 휴식처로 완성되었다. 이 공간에서 창을 통해 들어오는 빛은 마치 시간이 흐름에 따라 변화하는 예술 작품처럼 벽면과 가구 위를 서서히 이동하며, 하루 종일 다른 감각적 경험을 제공한다.
결론: 빛과 그림자로 완성된 건축의 언어
Restelo MGR House는 단순한 주택 개조가 아닌, 빛과 그림자의 리듬을 통해 공간을 재해석한 건축적 실험이다. 과거와 현재, 전통과 현대가 조화롭게 어우러진 이 공간은 새로운 시대의 라이프스타일을 제안하며, 시간이 지나도 변치 않는 건축적 가치를 담고 있다.
Write by ChatGPT & 5osa














































João Tiago Aguiar, Arquitectos-Restelo MGR House
The refurbishment and extension of a late 1950s twin house in Restelo is a measured architectural intervention that combines midcentury modernist sensibilities with contemporary design principles. Situated on an unassuming urban plot, the project reconfigures the property to maximize spatial efficiency, natural light, and connections to the surrounding environment while preserving key elements of its original character.
The intervention included the addition of a new attic level to the existing basement and two story structure, enhancing vertical functionality and opening the home to panoramic views. To distinguish the new extension from the original structure while maintaining harmony, the extended parts of the house were clad with slatted white lacquered aluminium sliding panels. These panels integrate functional elements such as louvers and railings into a cohesive and streamlined design, creating a modern contrast to the original façade and establishing a thoughtful dialogue between past and present.
Noble materials, including natural wood, natural stone, and semi handmade tiles, were carefully selected throughout the project to give the house a distinctive character. These materials imbue the spaces with warmth and texture while ensuring a timeless design that respects the home’s heritage and elevates its modern aspirations.
The basement underwent a complete transformation, introducing a blend of practical and leisure-focused spaces. Alongside parking for two vehicles, a technical room, and a laundry area, the level now includes a maid’s ensuite bedroom, an indoor counter current swimming pool, and a guest ensuite bedroom. Leisure spaces include a cinema and pool table area, complemented by a temperature-controlled wine cellar—a nod to both luxury and practicality.
The ground floor is designed to emphasize spatial openness and seamless functionality while incorporating subtle transitions between distinct areas. Upon entering the large entrance hall, visitors are greeted by a bespoke piece of furniture that serves as both a welcoming feature and a practical surface for everyday items such as keys, wallet, etc. The hall also provides direct but discreet access to the kitchen, with its entrance cleverly integrated within the surrounding cabinetry. Additional concealed elements include a wardrobe and a guest toilet, ensuring that utility remains unobtrusive.
The kitchen itself combines functionality with a sense of conviviality. It features an island and an informal dining area, complemented by a concealed storage compartment for added practicality. Adjacent to the dining room is an open office, outfitted with a few shelves and its own fireplace, which uses pallets for a more rustic and sustainable touch. The dining area is anchored by a large table and flanked by integrated shelving and storage, creating a balance between aesthetics and utility. This space transitions into the main living area, which is separated by a striking suspended fireplace. Positioned in the southwest corner of the house, the living area maximizes natural light and takes full advantage of the sweeping views over the Tagus River estuary. Large pocket windows blur the boundary between the indoors and the surrounding landscape, while a preserved rear veranda enhances the connection to the garden, extending the social and living areas outdoors.
Originally, the first floor housed three bedrooms and two bathrooms. The redesign restructured this level into two ensuite bedrooms and a spacious master suite. The master suite occupies much of the expanded footprint, offering a walk-in closet and large southwest-facing windows to capitalize on the scenic vistas. A new veranda mirrors the outdoor connection established on the groud floor, emphasizing continuity in the vertical arrangement.


