“공간, 빛, 질서. 그것은 인간이 빵과 잠자리만큼이나 필요로 하는 것들이다.” – 르 코르뷔지에

![]() |
![]() |
![]() |
Villa Shodhan: 르 코르뷔지에의 열대 건축 실험 Le Corbusier-Villa Shodhan
Completed in 1956, Villa Shodhan, designed by Le Corbusier, stands as a monumental testament to the architect’s innovative vision. Nestled within the heart of Ahmedabad, India, this villa seamlessly harmonizes Corbusier’s architectural philosophy with the unique requirements of a tropical climate. Upon meticulous examination, the design unravels an intricate interplay of form, function, and symbolism. It’s this rich amalgamation that continues to fascinate and engage the architectural fraternity worldwide.
1956년, 인도 아메다바드(Ahmedabad)의 한적한 녹지 속에 완공된 빌라 쇼단(Villa Shodhan)은 르 코르뷔지에(Le Corbusier)의 건축 철학과 열대 기후에 대한 깊은 이해가 결합된 대표작이다. 기능과 형태, 그리고 지역적 맥락이 조화를 이루는 이 건축물은 현대 건축과 전통 요소를 융합한 독창적인 공간 구성을 보여준다.
빌라 쇼단은 단순한 주거 공간을 넘어, 빛과 공기의 흐름을 통제하고 자연과 교감하는 방식으로 설계되었다. 이곳은 실험적인 건축 기법과 지역적 감성이 어우러진 공간이며, 오늘날까지도 건축계에서 연구와 영감을 불러일으키고 있다.
---
자연과의 조화 – 열대 기후 대응
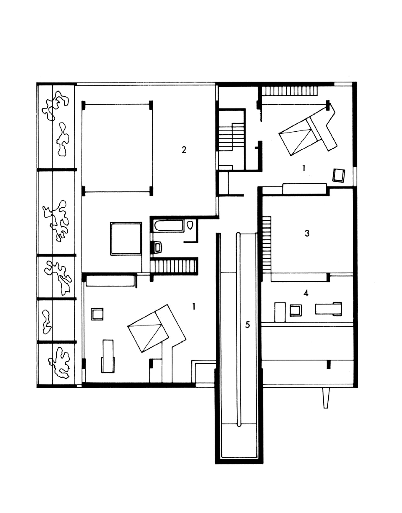
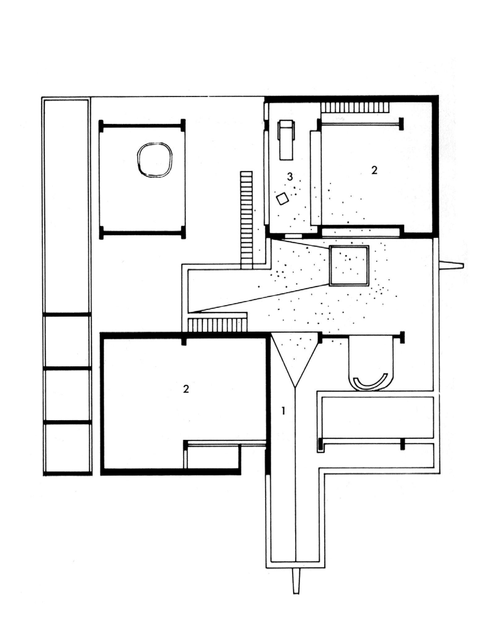
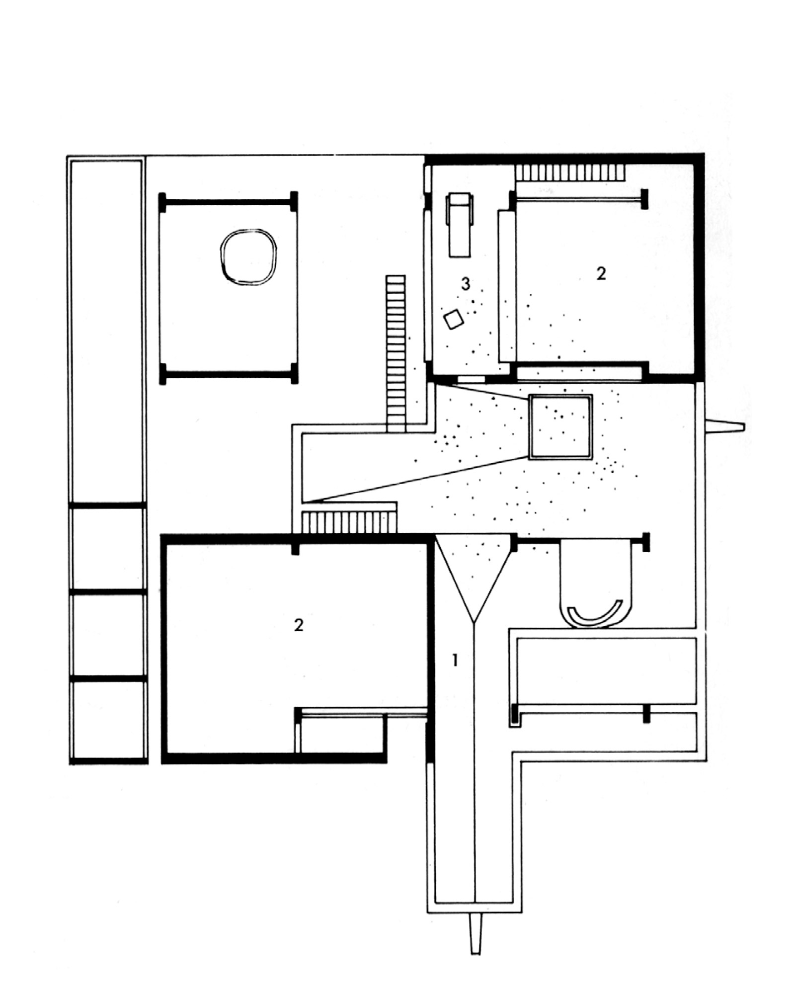
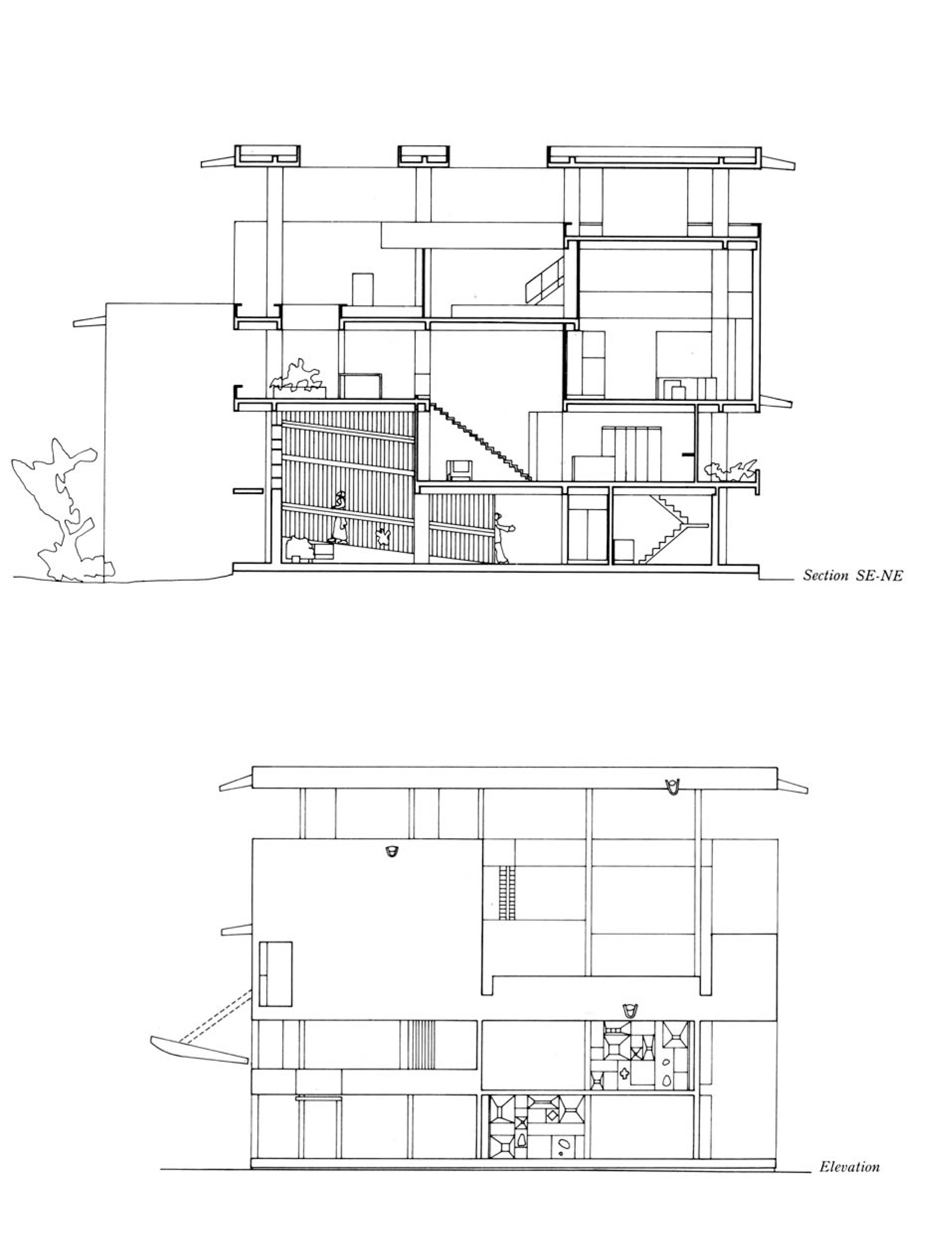
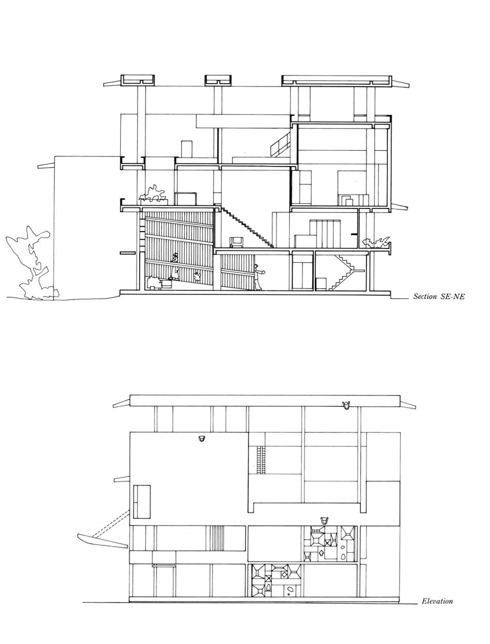
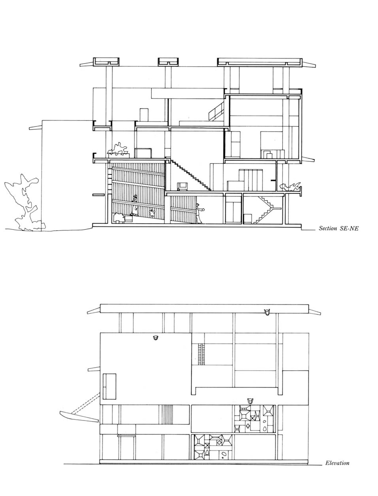
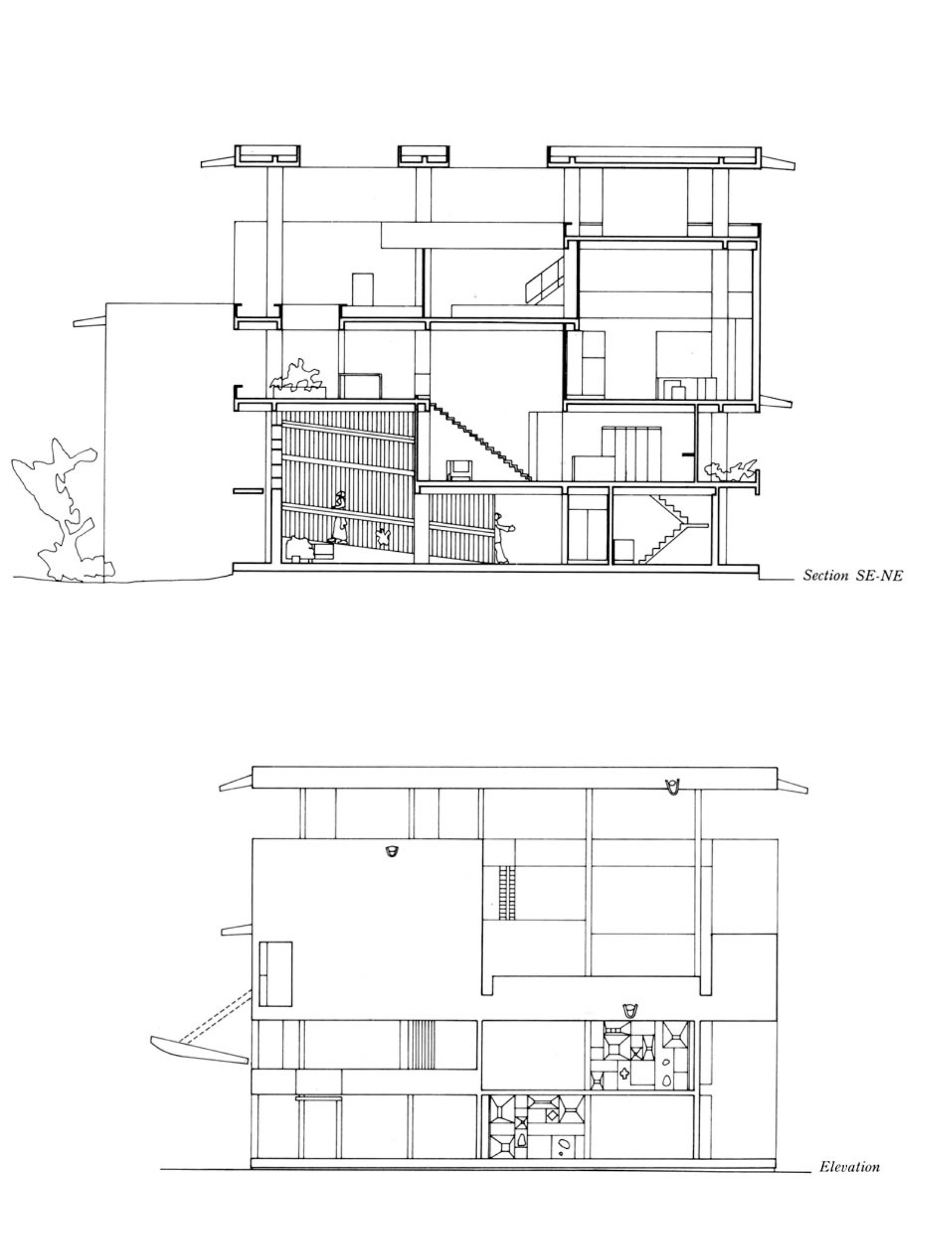
빌라 쇼단은 *근대 건축 5원칙’을 바탕으로 설계되었다.
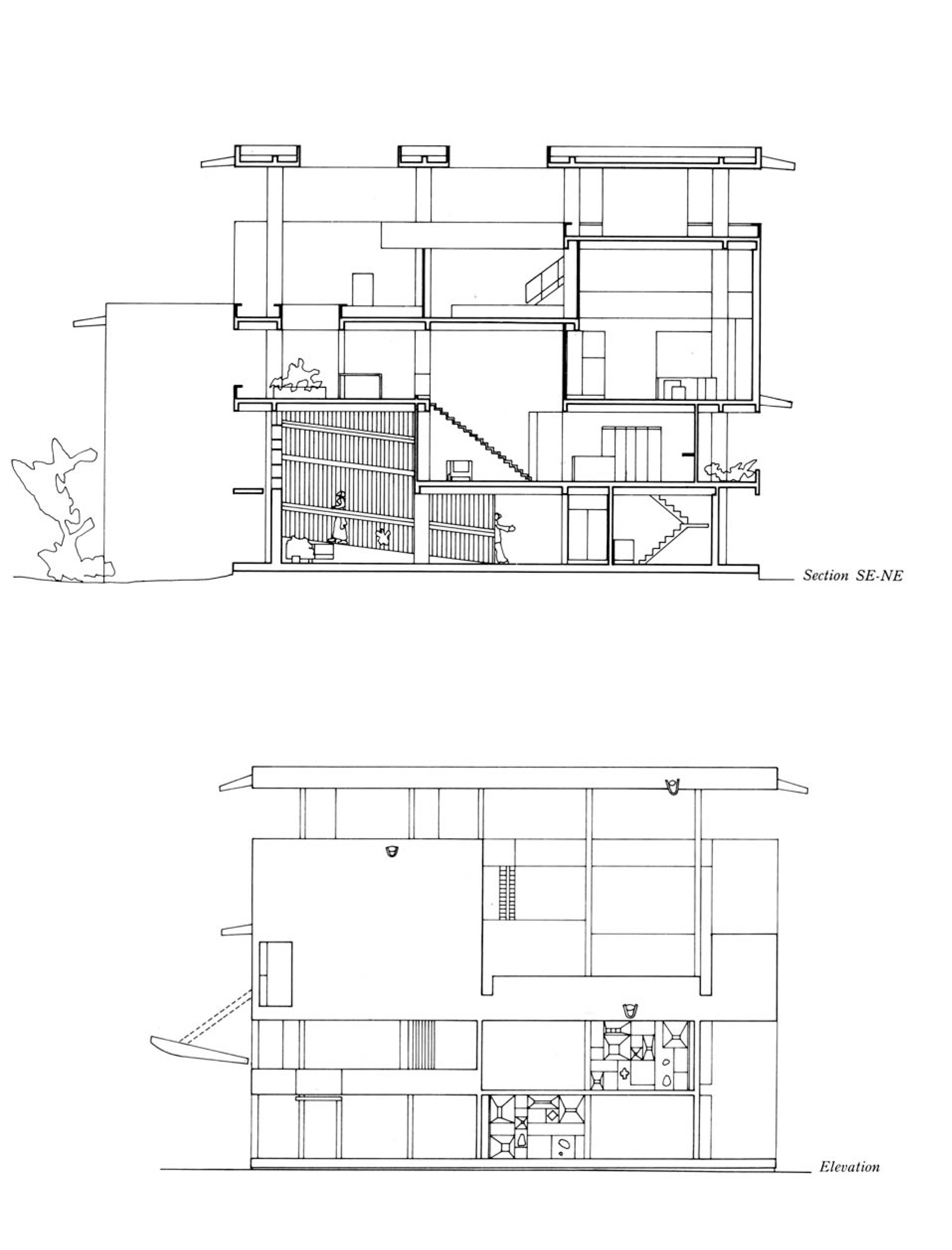
-필로티(Pilotis, 기둥 구조) 활용
건물을 지면에서 띄워 개방감을 확보하는 동시에 바람이 자유롭게 흐르도록 하여 실내 온도를 조절하는 효과를 낸다. 이 방식은 전통적인 인도 주택의 구조와도 맞닿아 있다.
-옥상 정원(Roof Garden)과 미기후 조절
옥상 정원은 단순한 녹지 공간이 아니라, 건물의 단열 효과를 극대화하고, 자연 환기를 촉진하는 기능적 요소다. 이는 르 코르뷔지에가 지속적으로 탐구했던 도시 속 자연과의 연결을 반영한 결과다.
-수평형 창문(Horizontal Windows)의 기후 대응
창문의 크기와 배치를 통해 자연광을 실내로 끌어들이면서도 과도한 열기 유입을 방지하는 세심한 설계가 적용되었다.
---
공간 혁신 – 유연한 구조와 조형적 표현
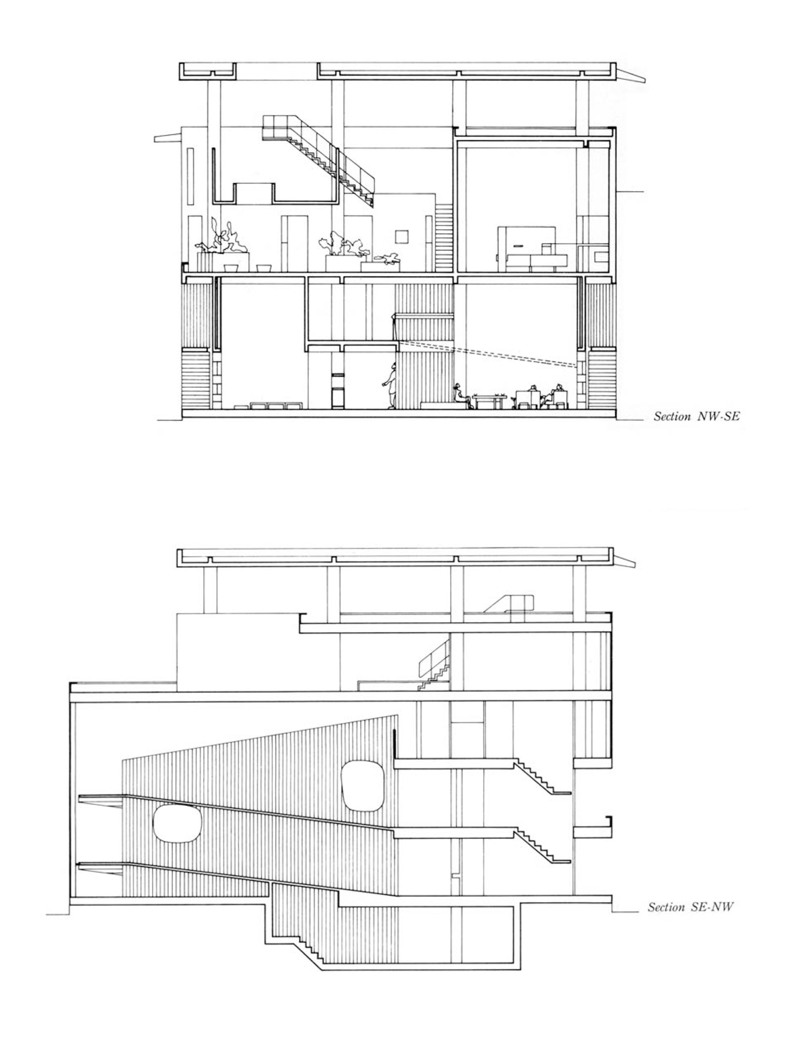
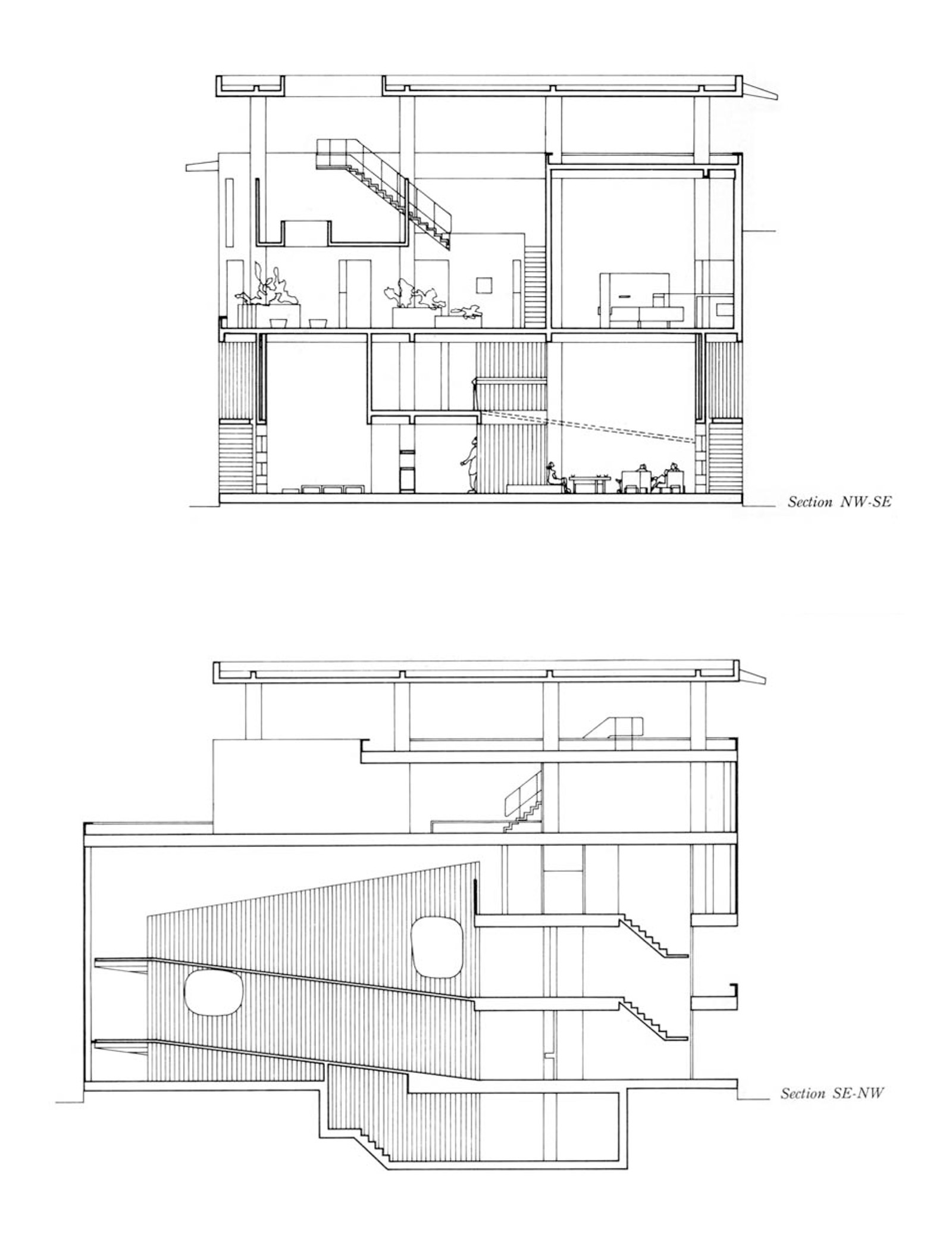
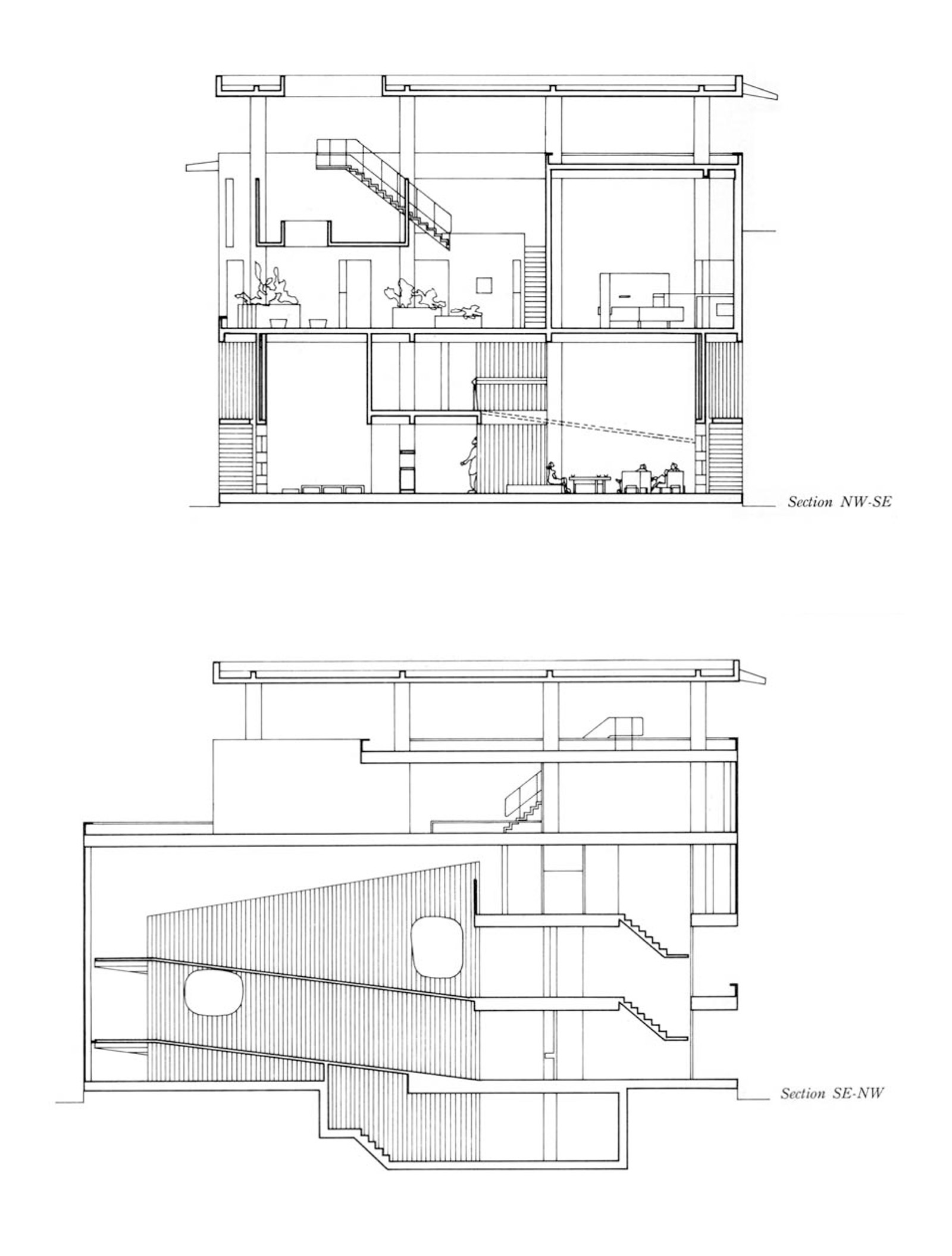
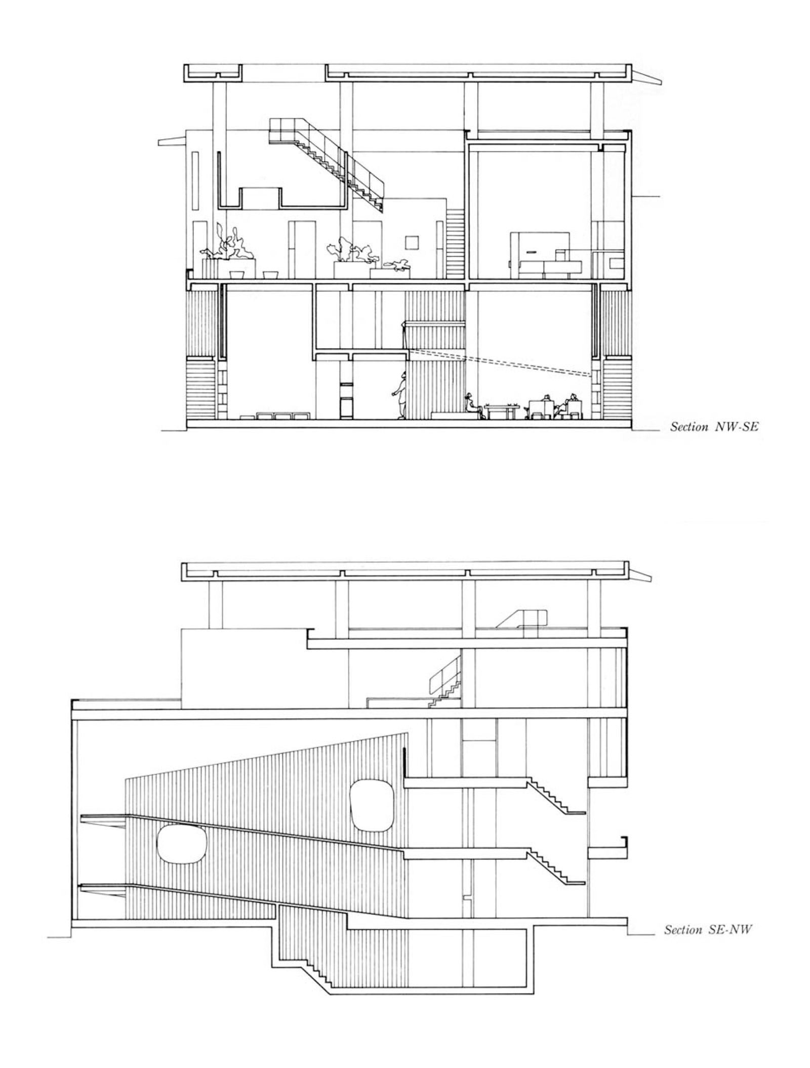
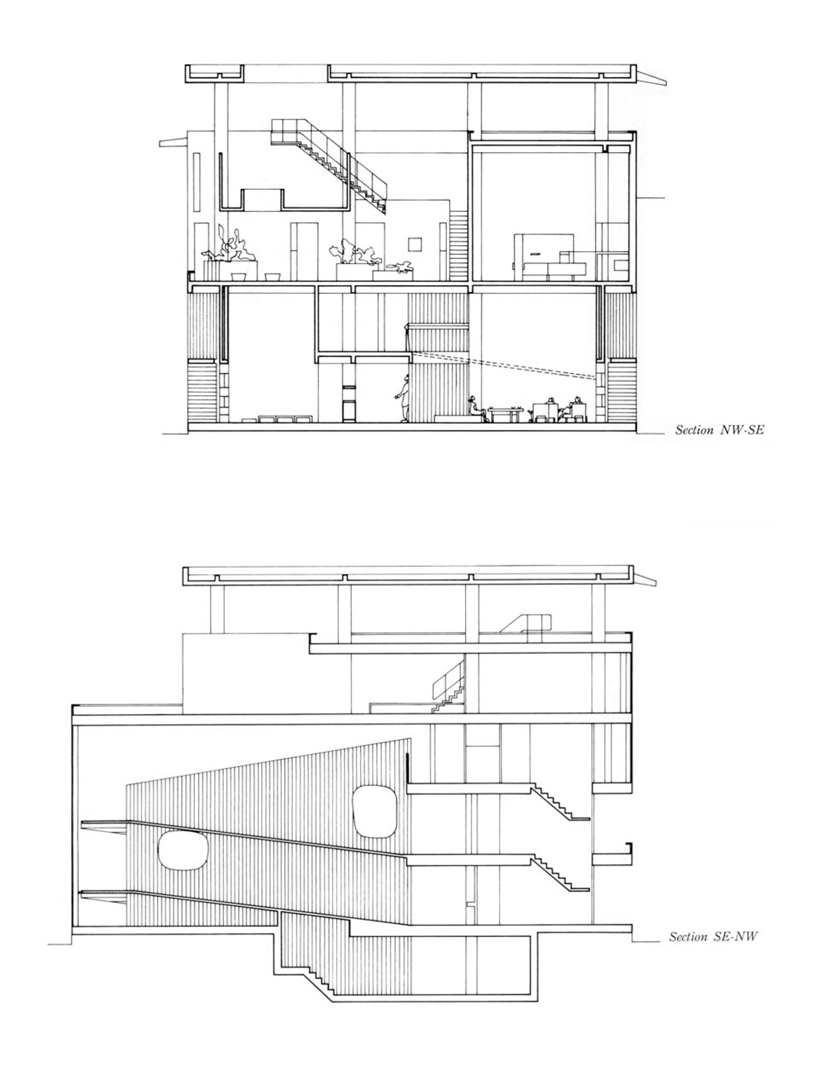
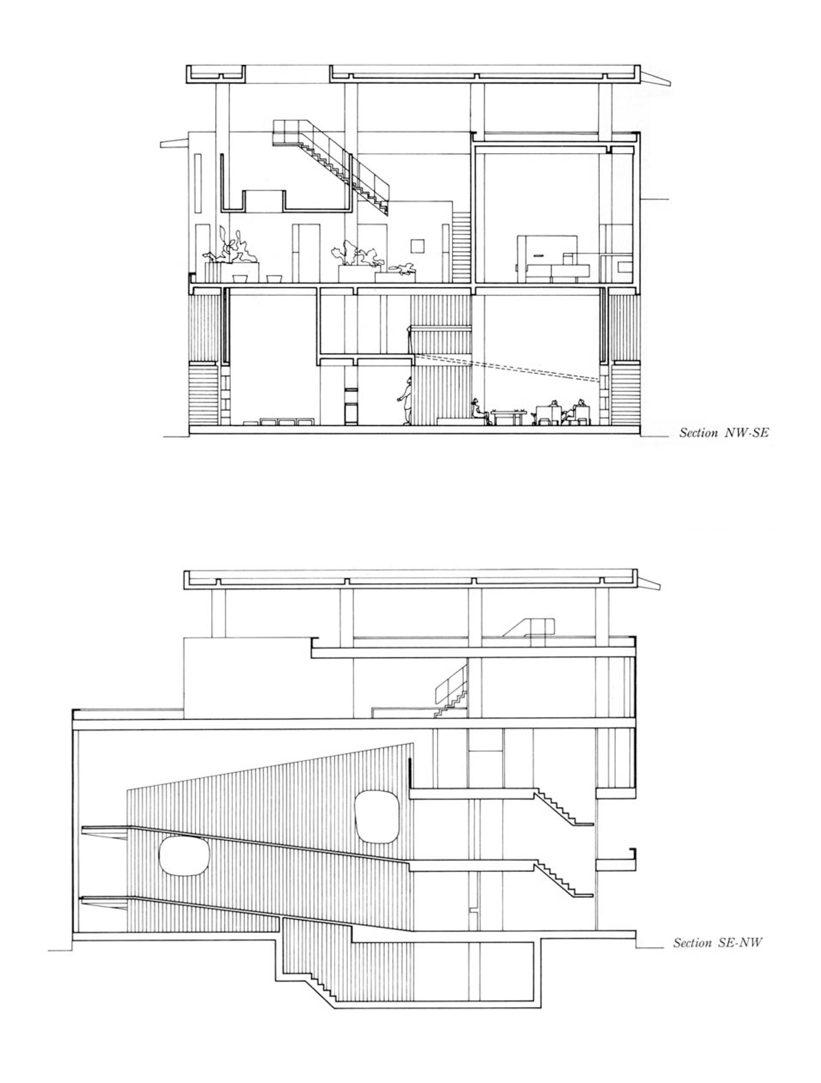
-램프(Ramps)의 활용
빌라 쇼단은 전통적인 계단 대신 완만한 경사의 램프를 적용했다. 이는 공간을 이동하는 과정 자체가 하나의 경험이 되도록 의도된 것으로, 르 코르뷔지에의 건축에서 자주 볼 수 있는 조형적 요소이자 공간적 흐름을 강조하는 장치다.
-내·외부 공간의 유기적 연결
건물 내부와 외부는 단절 없이 자연스럽게 이어지도록 설계되었으며, 이는 전통적인 인도 주택의 개방형 구조와도 맞닿아 있다.
-자유로운 입면(Free Facade)
구조적 제한 없이 창과 개구부의 디자인이 자유롭게 구성되어 실내외의 관계를 유연하게 만들고, 개방감을 극대화했다.
---
빛과 그림자의 건축 – 브리즈 솔레이와 전통 패턴
-브리즈 솔레이(Brise-Soleil)의 기능적 디자인
태양빛을 효과적으로 차단하면서도 실내로 유입되는 자연광을 조절하는 브리즈 솔레이(Brise-Soleil)는 빛과 공기의 흐름을 조절하는 핵심 요소다.
-전통 잘리(Jali) 패턴의 활용
인도의 전통적인 잘리(Jali, 격자무늬 석조 장식) 패턴을 적용하여, 지역적 맥락과 현대 건축이 조화를 이루도록 설계되었다. 이는 르 코르뷔지에가 전통과 현대의 경계를 허무는 방식으로 건축을 접근했음을 보여준다.
---
빌라 쇼단이 주는 의미
빌라 쇼단은 기후 적응형 건축, 공간 혁신, 그리고 문화적 융합의 대표적 사례로 남아 있다.
지금도 아메다바드의 녹지 속에서, 빌라 쇼단은 자연과 하나가 되어 살아 숨 쉬고 있다.
Write by ChatGPT & 5osa













Villa Shodhan Technical Information
Architects: Le Corbusier
Location: Ahmedabad, Gujerat, India
Client: Surottam Hutheesing (original), Shyamu Shodhan (later)
Topics: Concrete, Tropical Architecture, Ramps
Project Year: 1951-1956
Photographs: © John Gollings, Flickr Users: © Des Hill, © Arnout Fonck
Space, light and order. Those are the things that men need just as much as they need bread or a place to sleep. – Le Corbusier
Villa Shodhan: Architectural Innovations and Interaction with Nature
Villa Shodhan, built between 1951 and 1956, showcases Le Corbusier’s trademark style, highlighting his five points of architecture: pilotis (stilt like supports), roof garden, open plan, long horizontal windows, and free façade. It is in this beautiful structure that one can witness these principles merging into a harmonious whole.
Intertwining Nature and Architecture
Le Corbusier had a profound appreciation for the interplay between architecture and nature. Villa Shodhan was designed to leverage the benefits of its tropical environment while providing a comfortable and aesthetically pleasing space for its occupants.
The roof garden is a prime example of how Le Corbusier intertwined nature and architecture. These gardens serve a dual purpose: they are recreational areas that create an outdoor living space and a natural insulating layer for the building, helping maintain interior temperatures. This brilliant design consideration enhances the villa’s sustainability while also providing a lush, green retreat for the residents.
The use of pilotis allows the villa to blend seamlessly with its natural surroundings. By elevating the structure off the ground, Le Corbusier created a sense of openness and continuity with the surrounding landscape. This feature not only affords fantastic views but also promotes natural ventilation, keeping the interiors cool in Ahmedabad’s warm climate.
The villa’s extensive use of large horizontal windows demonstrates Le Corbusier’s desire to flood the interior spaces with natural light. These windows are carefully positioned to invite an abundance of daylight while mitigating direct solar heat gain, once again reflecting the architect’s sensitivity to the local climate.
The Innovations in Spatial Design
Villa Shodhan is a symphony of spatial innovations. Le Corbusier’s open-plan design allows for free-flowing spaces that adapt to the needs of the occupants. This design choice is particularly significant given the Indian cultural context, which often emphasizes communal living and interaction. The open plan also facilitates better air circulation, mitigating the need for mechanical air conditioning.
The free façade, another element of Le Corbusier’s five points, is evident in the villa’s design. This feature allows for an unrestricted layout of the interior spaces since the walls do not bear the load of the structure. In Villa Shodhan, the free façade is employed to create dynamic interior and exterior spaces that engage with the surroundings while maintaining the privacy of the occupants.
Le Corbusier also employed a series of ramps in the villa’s design, which serve both functional and aesthetic purposes. The ramps are a means of vertical circulation that enhances the spatial experience of the occupants. They also contribute to the sculptural quality of the villa, further solidifying its status as a piece of architectural art.
Le Corbusier was a master at embedding symbolic elements within his designs. Villa Shodhan is a reflection of not just the Indian socio-cultural context but also the wider philosophical underpinnings of the architect’s practice. The brise-soleil, or sun breaker, a prominent feature of the villa, is not just a practical response to the harsh tropical sun, but also a design element embodying Le Corbusier’s philosophy of light and shade. His use of the brise-soleil is a testament to the careful balance he maintained between functionality and aesthetics.
The incorporation of a traditional Indian “jali” (latticed screen) pattern into the brise soleil is another stroke of genius that shows Le Corbusier’s sensitivity towards local traditions and craftsmanship. This element further connects the villa to its cultural context and adds an extra layer of richness to its design.
from archeyes


