“건축이란, 사람에게 의미 있는 공간을 만드는 일이다.”— 피터 춤토어 (Peter Zumthor)

![]() |
![]() |
![]() |
곡선을 품은 기억의 건축 Shahed Saleem shields Island Gardens cafe with maritime-motif screens
A set of rolling metal shutters with maritime motifs protect the glass front of this cafe by architect Shahed Saleem on London's Isle of Dogs.
Built to replace a 1980s brick building, the cafe was designed by Saleem for the Island Gardens park, which is at the southern tip of the Isle of Dogs peninsula and is famous for its views across the river to Greenwich's Old Royal Naval College.
"Island Gardens is located in the heart of Britain's maritime and colonial history, so it's a weighty and exciting challenge to design a building that responds to this heritage," said Saleem.
장소를 품은 건축의 시작
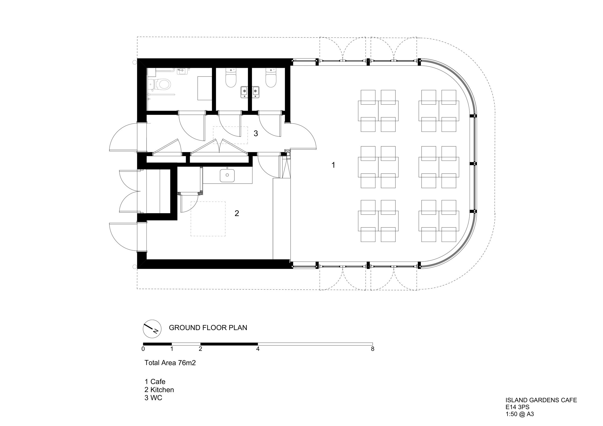
런던 아일 오브 독스의 남단, 템스강을 따라 펼쳐진 아일랜드 가든스 공원에는 하나의 곡선형 건물이 부드럽게 자리를 잡고 있다. 샤헤드 살림이 설계한 이 카페는 단순한 편의 시설을 넘어, 지역의 역사와 도시의 흐름, 풍경과의 관계를 건축적으로 풀어낸 공간이다.
이 카페는 1980년대의 벽돌 건물을 대체하며, 공원의 대표적 시각 자산인 그리니치의 올드 로열 네이벌 칼리지를 조망하는 위치에 자리한다. 인근에는 연간 약 150만 명이 오가는 그리니치 풋 터널이 있으며, 벽돌로 지어진 원형 벽체와 돔형 지붕을 갖춘 터널 입구는 카페의 형태와 재료 구성에 직접적인 영향을 주었다.
재료와 구조로 이어진 역사
살림은 터널의 물리적 요소뿐 아니라 상징적 가치까지 읽어내 건물 전면에 곡선 유리 파사드를 적용하고, 상부에는 어두운 녹색 파이언스 타일로 마감된 패시아를 더했다. 19세기 런던에서 펍과 인프라에 자주 쓰이던 파이언스 타일은 도클랜드의 물질적 역사와 연결되며, 블랙번의 다윈 테라코타에서 전통 방식으로 제작되었다.
건물 내부는 구조 자체가 공간의 언어다. 엔지니어 Corbett & Tasker가 설계한 목재 지붕 프레임은 하중을 균등하게 분산시키며, 유리 파사드는 자연광이 가득한 개방적인 공간을 형성한다. 그리드 천장은 구조적 질서를 강조하며, 각 구획마다 정사각형 조명 유닛이 배치되어 리듬감 있는 빛의 패턴을 만든다.
바닥은 공원의 자연에서 따온 색감의 테라조 타일로, 벽면은 유약 처리된 오프 화이트 타일로 마감되어 빛과 그림자가 은은히 어우러진다. 실내 마감은 기능성과 감성을 모두 고려하며, 자연과의 조화, 역사와 재료의 연결성을 공간 안에 담아낸다.
풍경과 장소의 감각적 연결
살림은 “곡선형 유리와 전면 개방감을 통해 실내에서도 공원과의 연결성을 느낄 수 있으며, 올드 로열 네이벌 칼리지와 커티 사크를 조망하는 것이 설계의 핵심 의도 중 하나였습니다.”라고 설명했다. 이러한 시각적 연계는 단지 풍경을 바라보는 것을 넘어, 도시의 시간과 장소를 경험하는 방식 그 자체를 건축화한다.
운영이 종료되면 유리 파사드를 보호하는 병녹색 금속 셔터가 작동된다. 셔터는 루버 아래와 지면에 숨겨진 레일을 따라 움직이며, 낮에는 접혀 벽면에 정돈되고 밤에는 전면을 따라 펼쳐진다. 도클랜드의 해운과 조선업 관련 유물의 윤곽이 컷아웃 장식으로 새겨져 있으며, 이는 런던 박물관 소장품에서 영감을 받은 것이다. 건물은 문이 닫힌 순간에도 장소의 이야기를 시각적으로 이어간다.
과거를 품은 오늘의 풍경
아일랜드 가든스는 1895년 런던 카운티 의회에 의해 조성되었으며, 도크와 공장이 밀집한 지역 속에서 근로자에게 쉼과 녹지를 제공하기 위한 공공 공간이었다. 기존 카페는 2021년 폐쇄되었고, 현재의 건물은 개발자 기여금인 Section 106과 지역 기반시설 부담금(Neighbourhood CIL)으로 조성되었다.
건축, 장소의 언어가 되다
이 카페는 단순한 구조물이 아니다. 장소의 기억을 건축 언어로 풀어낸 해석이자, 과거와 현재, 기능과 아름다움, 공공성과 상징성이 조화를 이루는 도심 속 하나의 풍경이다.
Write by ChatGPT & 5osa



























Located near the entrance to the Grade II listed Greenwich Foot Tunnel a passageway used by 1.5 million people a year to cross underneath the river Thames – the cafe responds to the circular foot tunnel entrance buildings, with their brick walls and domed roofs.
The architect incorporated the curved form into the cafe's frontage and also added a dark green faience fascia around the top of the building to reference the ceramic tiling that lines the tunnel walls.
With faiences commonly used in 19th century London on pubs and infrastructure, the tiling is also a nod to the Dockland's role in London's industrial growth.
"Using faience tiles as the fascia wrapping around the cafe was a way to connect the building to this material history," said Saleem.
The tiles were made by Darwen Terracotta, a Blackburn-based company that still manufacturers faience traditionally.
The cafe was wrapped in a curved glass facade to create a light-filled space for those eating indoors.
This facade was made possible through use of a timber structure designed by engineer Corbett & Tasker for the roof frame so that the load could be spread across equal sized timber columns.
"The curved and front glazing achieve a feeling of openness and connection from inside the cafe to the park, and there are clear views to the Old Royal Naval College and Cutty Sark, which was one of the original intentions of the project," added Saleem.
To protect the glass when the cafe is closed, the architect designed a set of bottle green metal screens that were installed on runners hidden in the ground and behind the louvres projecting from the roof.
These protective shutters can be pushed back and stacked on top of each other in front of the brick walls during the day and then wheeled into place around the front of the cafe at night.
The screens were decorated with cut outs depicting the outlines of historic objects connected to shipping and ship building in the Docklands, and have all been sourced from the collection of the London Museum.
Inside the cafe, the building's timber structure created a ceiling with a gridded layout of glulam joists, prompting the architect to include square lighting units within each square to fit the design.
The flooring was made from terrazzo tiles using colours from nature found in the park while off white tiling was also used on the walls with an uneven surface and glaze to give a subtle reflection of light and shadow.
Island Gardens was opened to the public in 1895 by the London County Council and offered green space for workers in an area dominated by docks, warehouses and factories.
The former Island Gardens cafe was closed in 2021 and the replacement was funded using Section 106 and Neighbourhood CIL, funds collected by the council from developers through the planning process.
from dezeen


