"건축은 빛과 그림자의 지혜로운 게임이다." - 르 코르뷔지에

![]() |
![]() |
![]() |
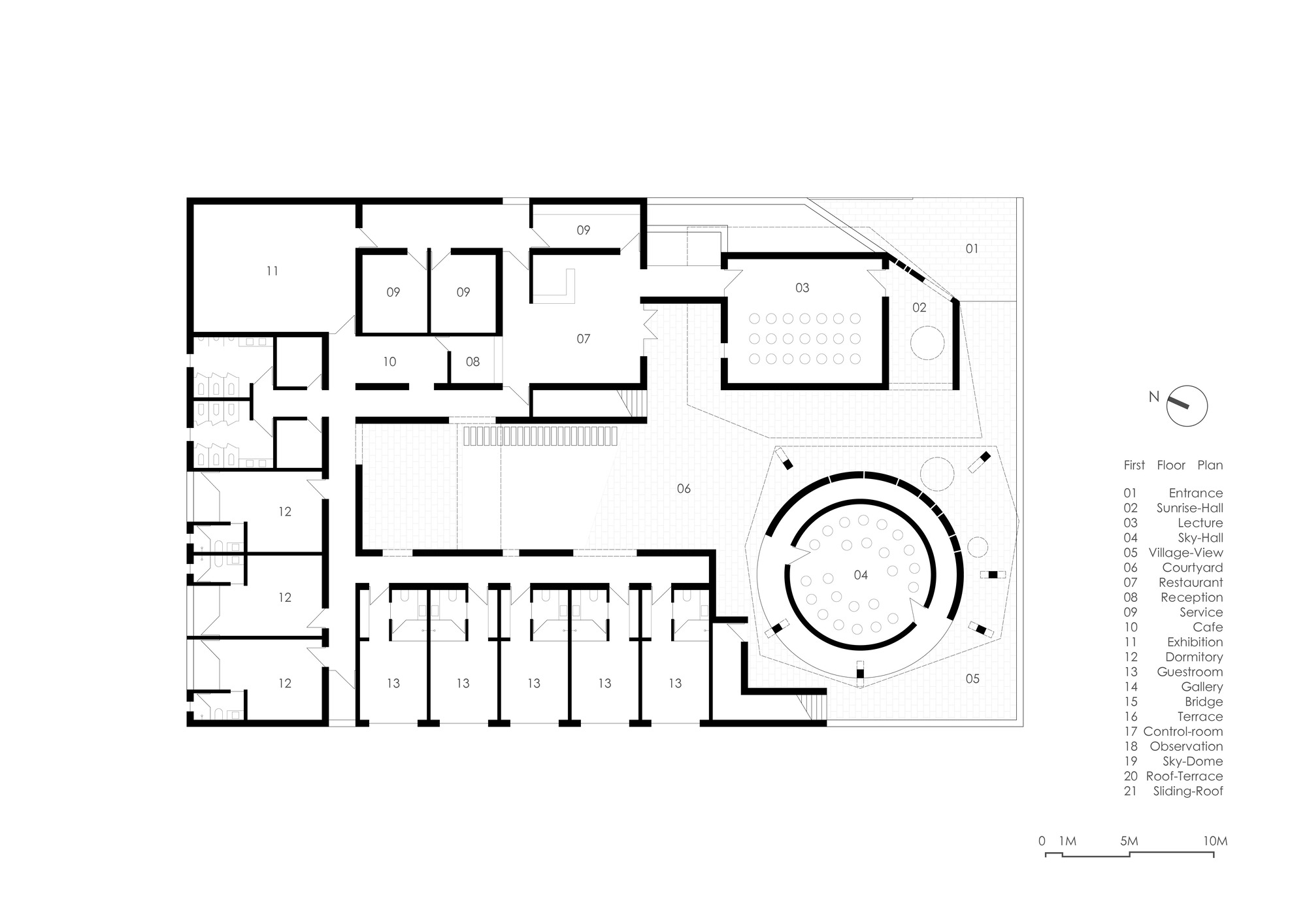
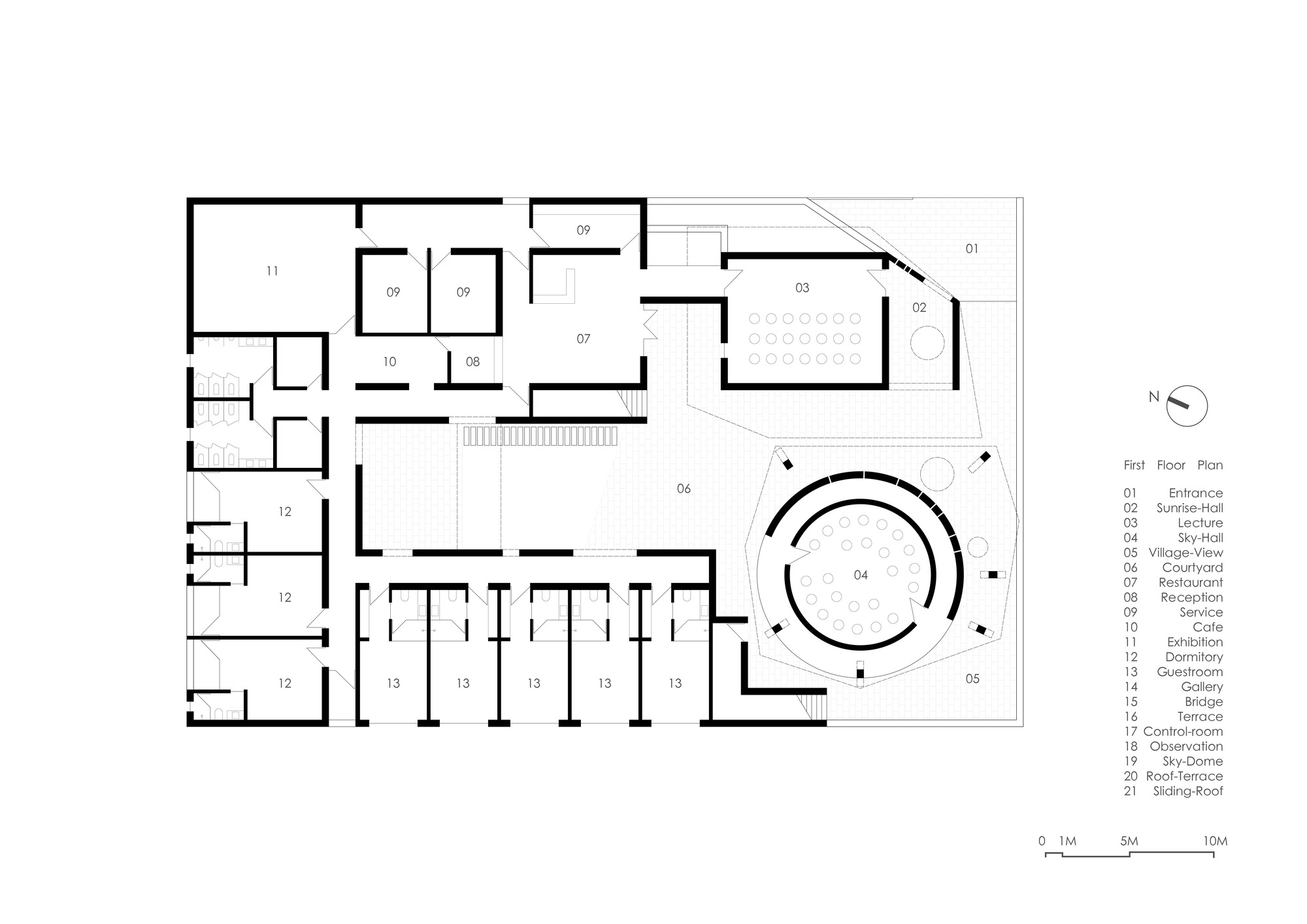
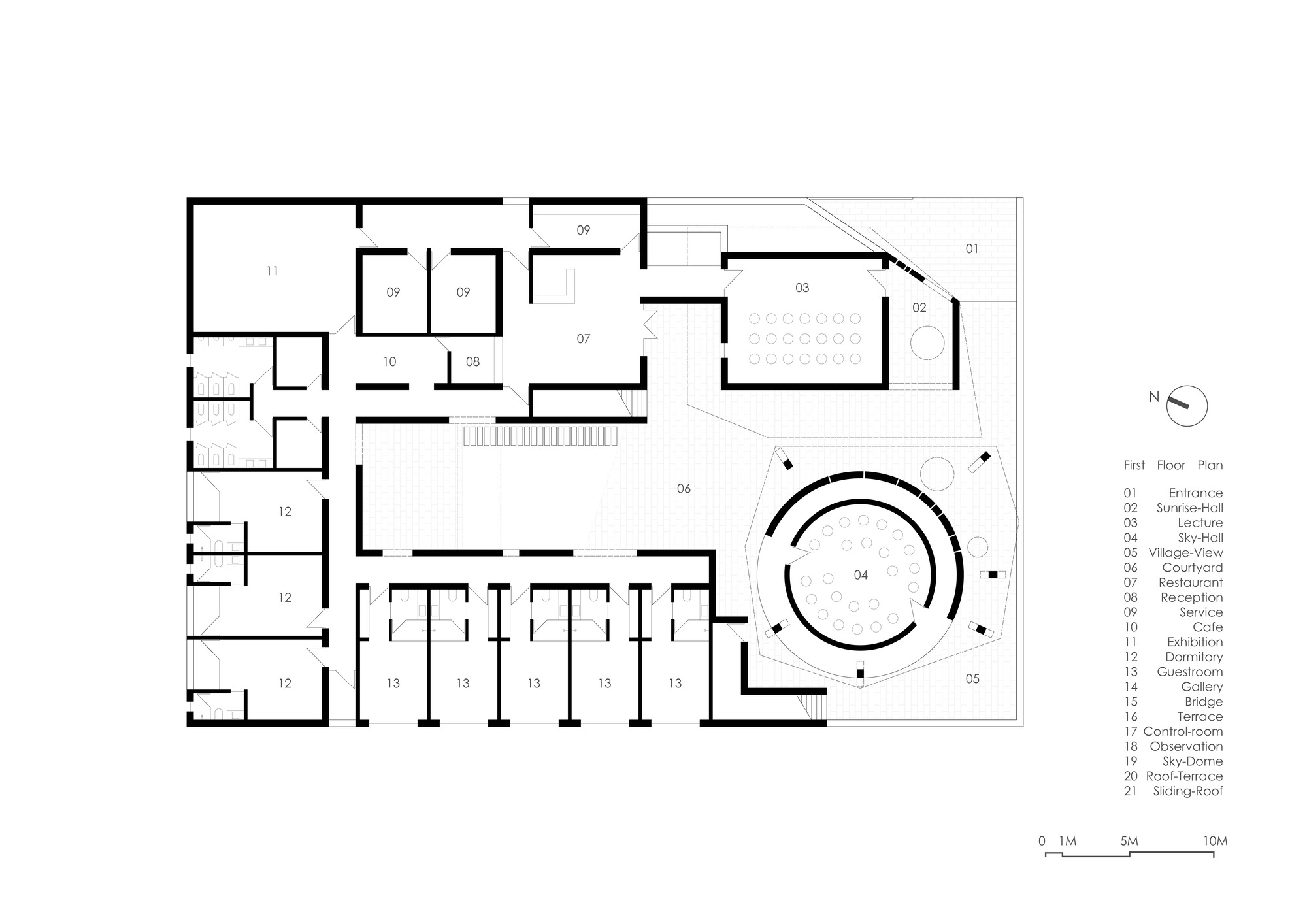
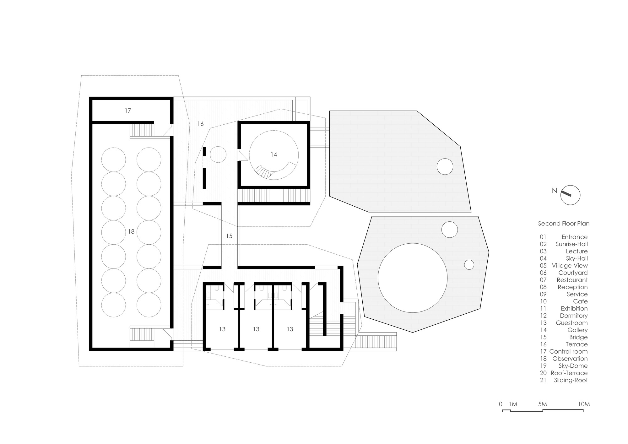
붉은 마을의 천문대 - 빛과 대지의 서사, TAG-Red Village Observatory
대지의 맥락을 담아낸 천체 관측소
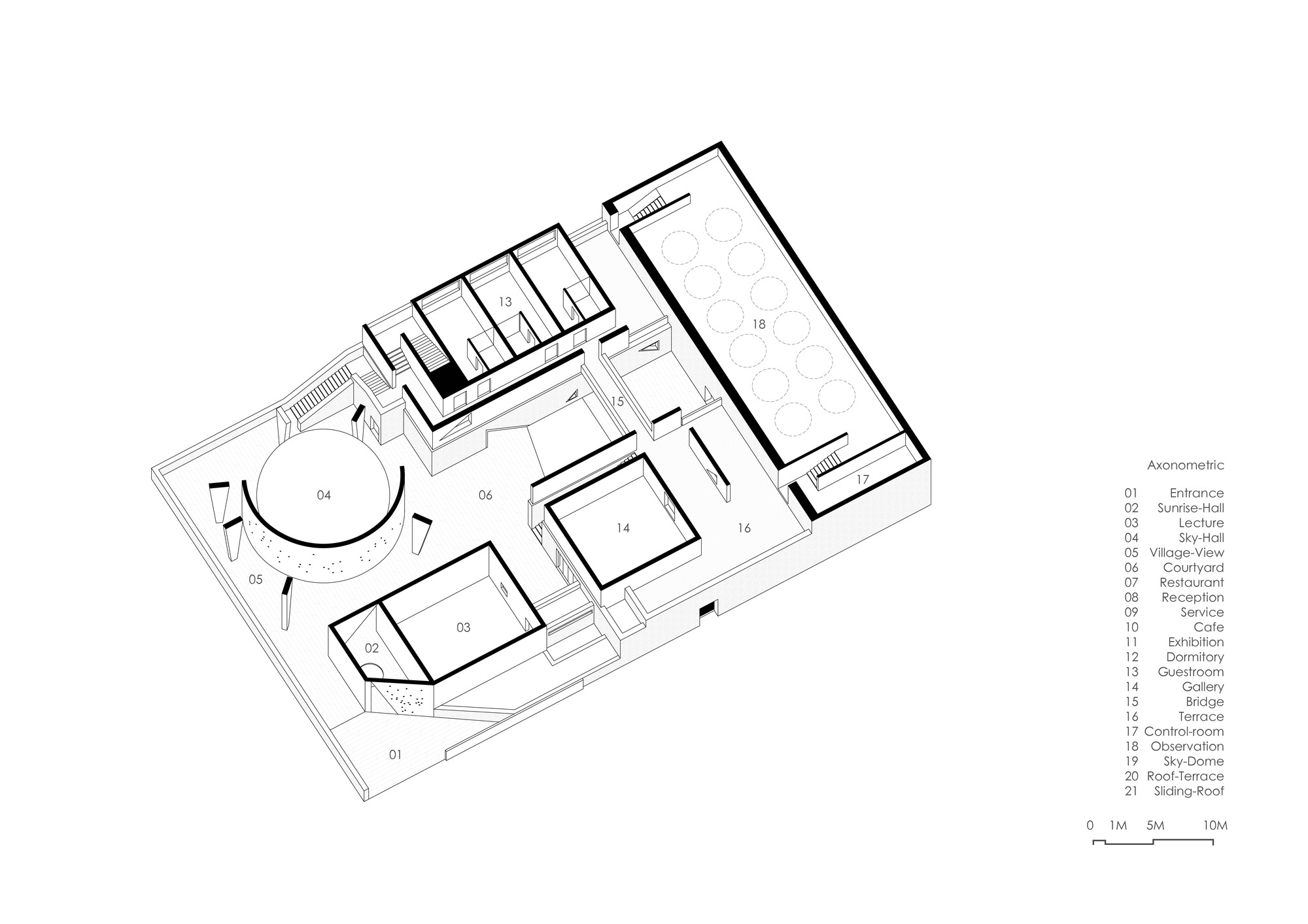
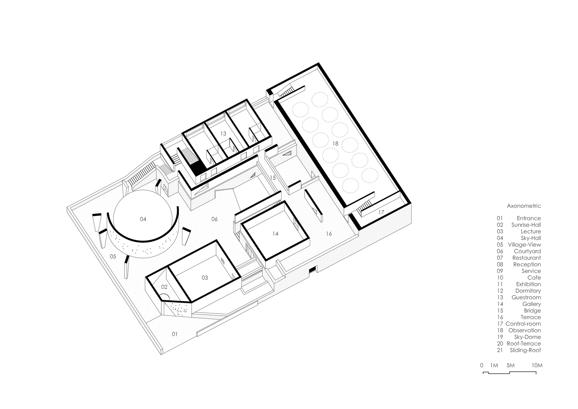
이샬라 마을 외곽에는 자갈돌로 쌓아 올린 계단식 밭이 층층이 넓게 펼쳐져 있으며, 마을 내부에는 산의 윤곽을 따라 지은 중정형 주거가 자리합니다. 판시 계곡의 강렬한 햇빛이 지붕 사이의 틈새로 스며들어, 좁고 구불구불한 마을 골목에 뚜렷한 기하학적 빛과 그림자를 드리웁니다. 천문대 디자인의 모티브는 이샬라에 들어섰을 때 마주한 인상적인 장면에서 시작됩니다.
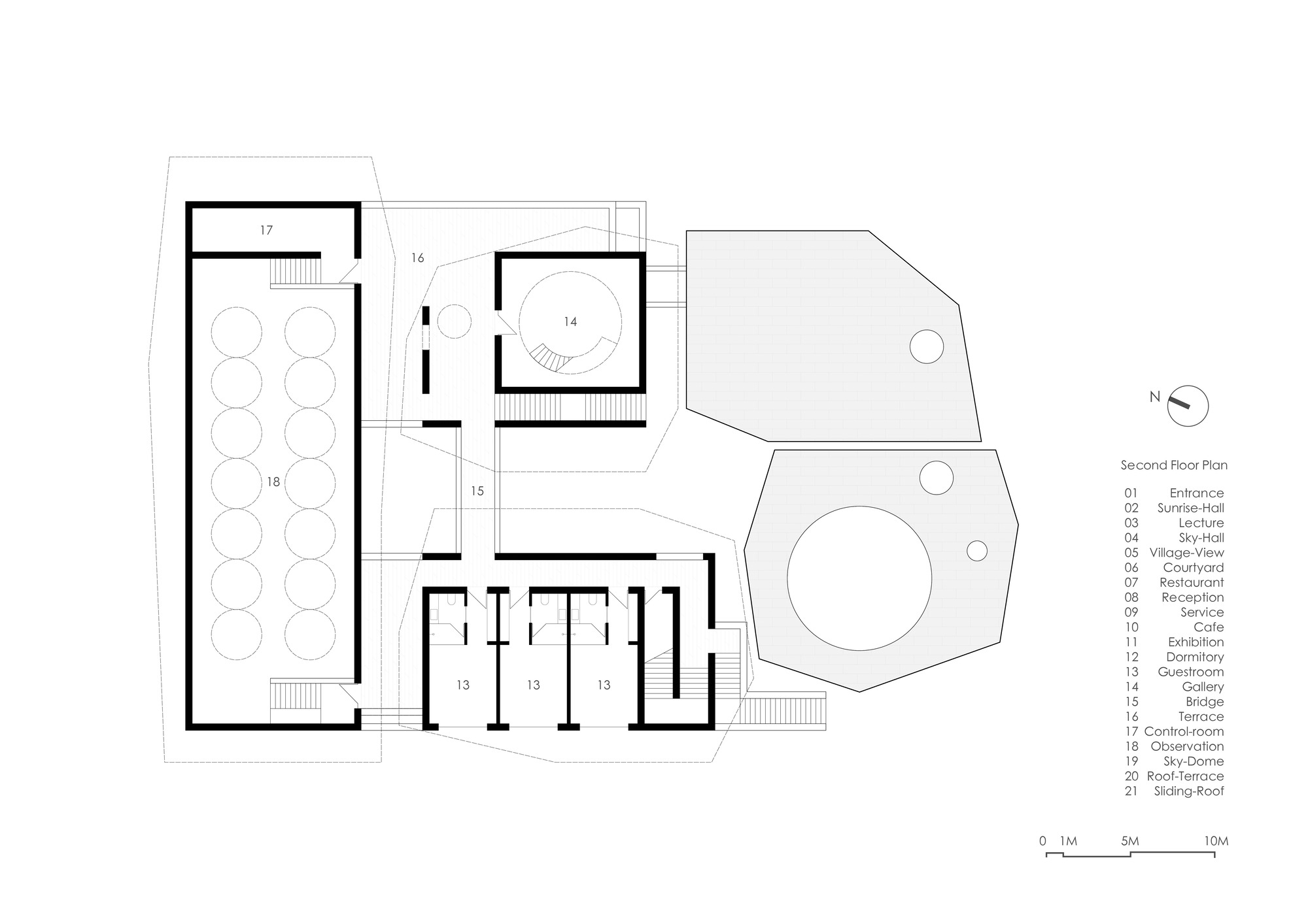
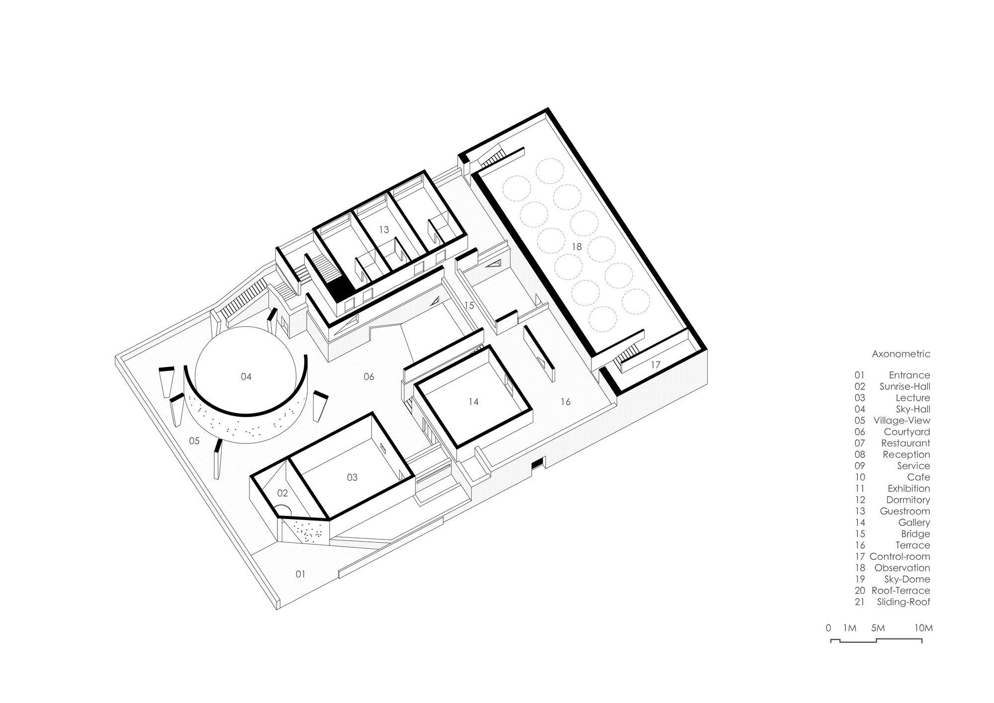
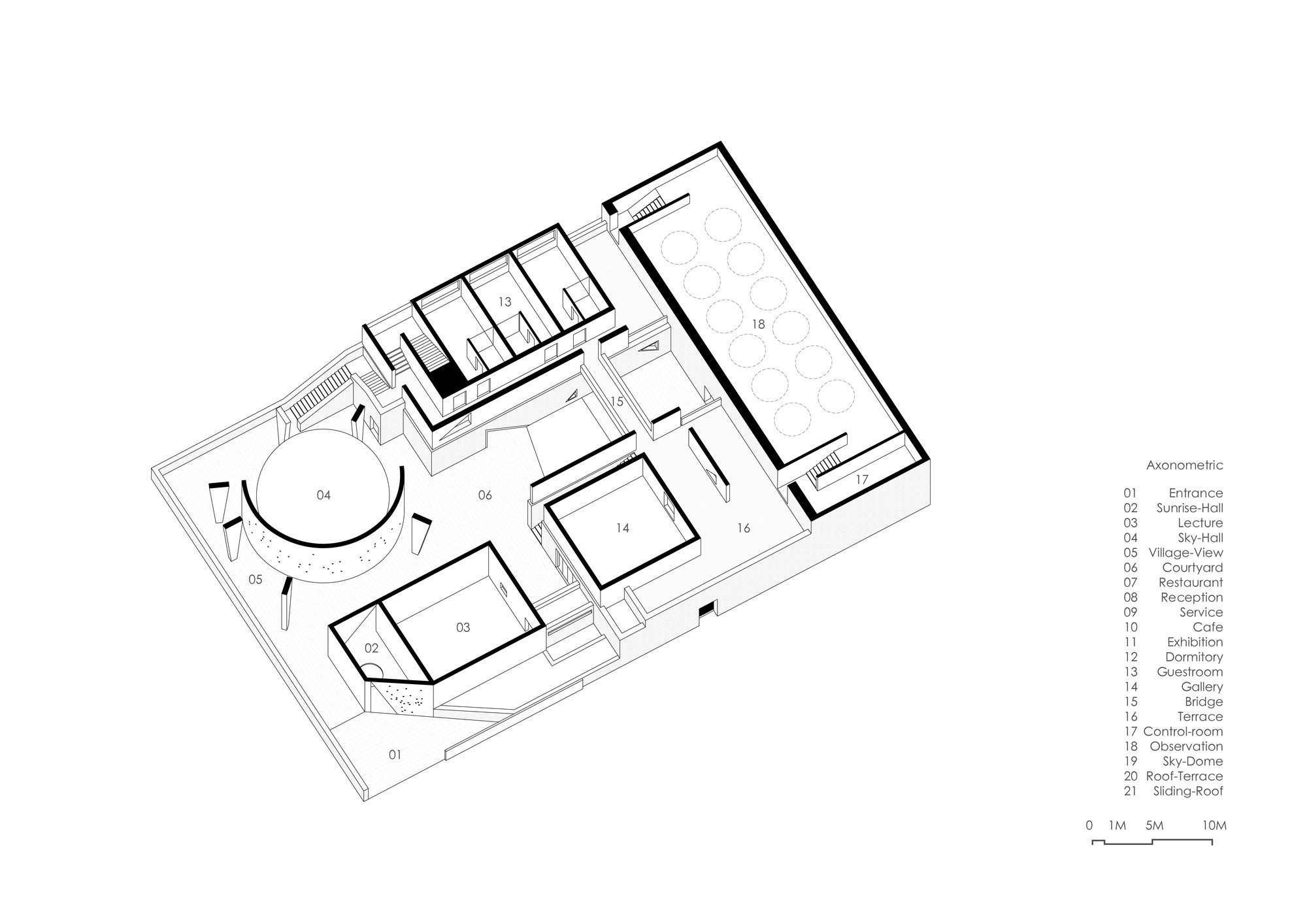
설계자는 먼저 사무실, 화장실, 설비실과 같은 지원시설을 건물 뒤편에 집약적으로 배치하고, 지형의 높낮이에 맞춰 '되메우기' 작업을 진행했습니다. 이는 기존 지형을 최대한 보존하면서도 건축물을 자연스럽게 대지에 안착시키는 방법이었습니다. 이후 계단을 전략적으로 배치해 주변 산악 지형의 높이 차이를 그대로 건축 경험에 반영했습니다.
핵심 기능인 전시, 관측, 교육, 휴게 공간은 네 개의 독립된 소규모 유닛으로 분리하여 지형에 따라 엇갈리게 배치했습니다. 이렇게 분산된 유닛들은 계단, 옥외 복도, 공중 다리를 통해 유기적으로 연결됩니다. 방문객들은 이 연결 경로를 따라 움직이며 마치 전통 마을의 좁은 골목길을 탐험하는 듯한 경험을 하게 됩니다. 이러한 구성은 전통 마을의 공간적 특성과 경험을 현대적 건축 언어로 재해석한 결과입니다.
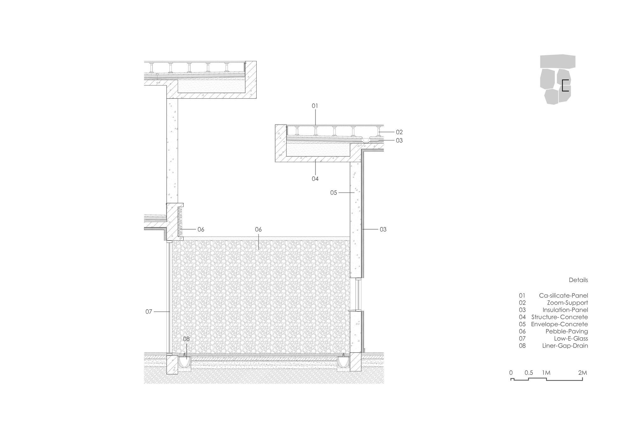
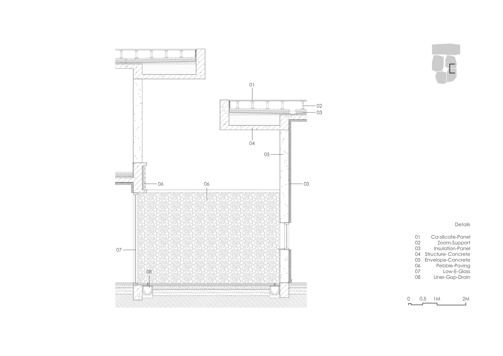
거친 아름다움을 품은 붉은 콘크리트
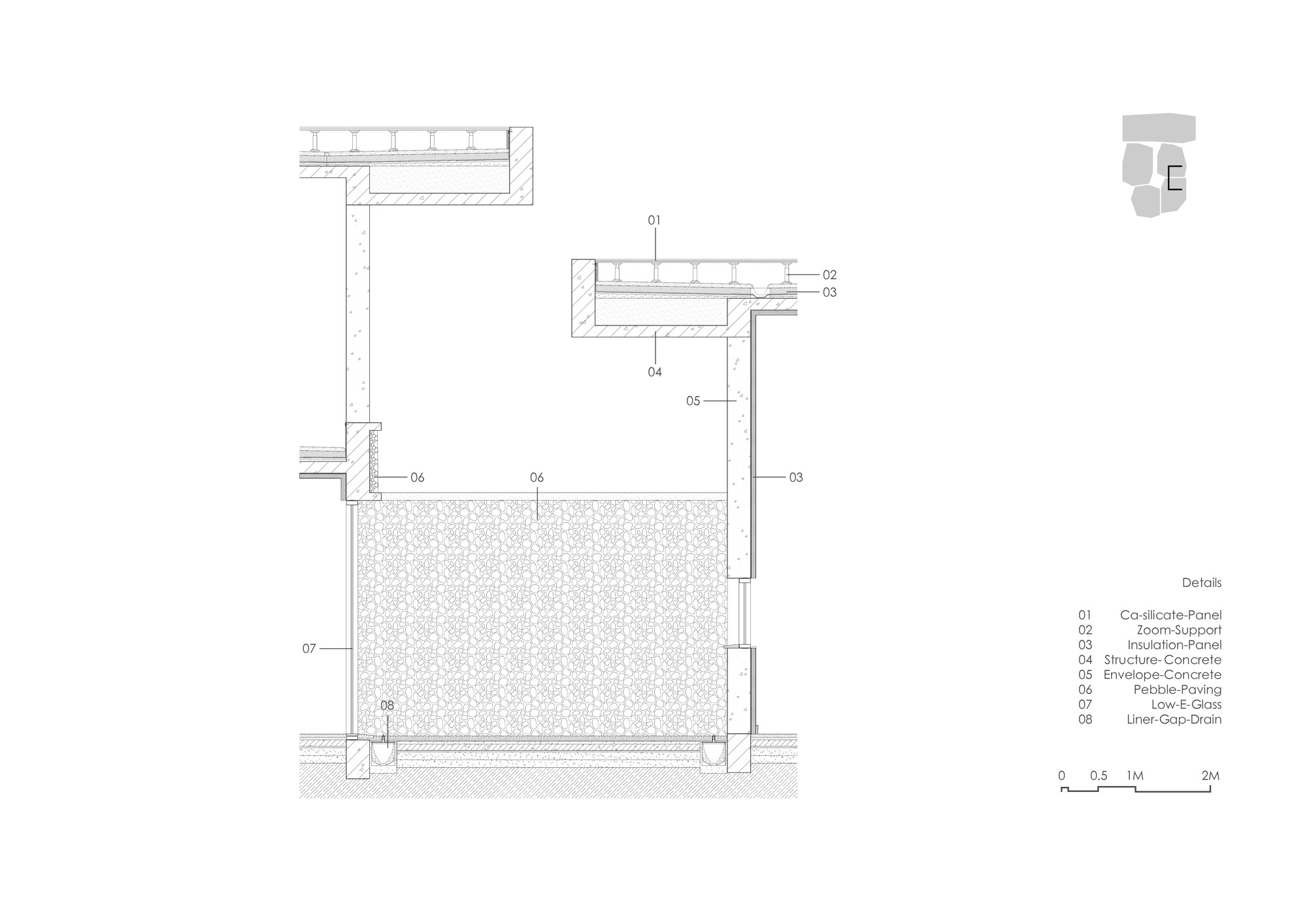
노출 콘크리트 시공은 상대적으로 높은 수준의 기술을 요구합니다. 중국의 대부분 프로젝트에서는 정교하고 세련된 효과를 얻기 위해 노출 콘크리트 전문 시공팀에게 별도로 의뢰합니다. 그러나 이 마을 천문대는 제한된 예산으로 인해 전문가 팀 고용이 어려워, 현지 건설팀이 직접 시공할 수밖에 없었습니다.
예산 제약으로 완벽한 마감을 포기하는 과정에서 오히려 건축가는 근본적인 질문을 던지게 되었습니다. 과연 콘크리트가 꼭 완벽하게 매끈해야 하는가? 왜 콘크리트라는 '거친 사나이'를 '소녀'처럼 꾸며야 할까요? 따라서 색상 차이, 불균일한 이음새, 작은 표면 결함과 같이 구조적 안전에 영향을 주지 않는 사소한 결함들은 수리 없이 그대로 남겼습니다. 투박한 붉은 콘크리트는 마치 판시 계곡에서 태어난 듯 자유롭고 고집스러운 매력을 지닙니다.
빛이 만드는 건축적 공간감
천문대 외벽의 콘크리트 벽은 햇빛을 위한 완벽한 캔버스가 됩니다. 지붕은 불규칙하게 바깥쪽으로 돌출됩니다. 지붕과 벽 사이의 각도 차이를 통해 외벽에 선명한 그림자가 생깁니다. 지붕들은 서로 수평으로 분리되어 틈을 만들고, 이 틈은 공간 높이 차이를 활용해 수직으로 확장됩니다. 틈에 의해 윤곽이 드러나는 빛의 띠가 벽과 바닥에 투영되며, 그 형태는 시간이 흐름에 따라 변화합니다.
천문대 공용공간은 대부분 반외부로 구성됩니다. 이 공간들은 창문이 아닌 개구부만 필요합니다. 따라서 설계자는 불규칙한 개구부를 사용하여 이것이 창문이 아닌 열린 공간임을 강조합니다. 다기능 전면 홀의 벽은 동쪽을 향한 전체 높이의 개구부로 찢어져 있으며, 단단한 콘크리트 벽 내부에는 많은 작은 원형 구멍들이 박혀 있습니다. 이른 아침, 개구부를 통해 방문객들은 햇빛이 달량산맥을 가로질러 이샬라 마을을 비추는 모습을 봅니다. 햇빛이 작은 원형 구멍들을 통과하며 붉은 콘크리트 벽에 춤추는 빛의 점들을 만들어냅니다.
대지와 문화의 대화
이 천문대는 단순한 관측 시설을 넘어 지역의 문화적 맥락과 대화하는 건축물입니다. 현대적 형태 속에 전통 마을의 공간 경험을 담아내며, 주변 자연과의 조화를 세심하게 고려했습니다. 거친 콘크리트의 질감은 산악 지형의 투박함을 반영하고, 시간에 따라 변화하는 빛의 유희는 방문객들에게 자연의 순환과 우주의 움직임을 상기시킵니다.
밤이 되면 내부에서 흘러나오는 조명이 건물을 따뜻하게 밝히며, 별이 빛나는 하늘 아래 또 다른 풍경을 만들어냅니다. 이곳에서 사람들은 천체를 관측할 뿐만 아니라, 건축을 통해 자신이 서 있는 대지와 우주 사이의 관계를 경험합니다.
붉은 마을 천문대는 현대 건축 기술과 지역 문화의 정신이 조화롭게 만나는 공간으로, 방문객들에게 깊은 인상을 남기는 건축적 서사를 완성합니다.
Write by Claude & 5osa










































New Growth of Red Village Outside Yishala Village are layers of terraced fields piled up with cobblestones, and inside the village are courtyard dwellings built according to the envelope of the mountains. The intense sunlight in the Panxi Valley passes through the gaps between the roofs, casting distinct geometric light and shadows in the narrow, winding, and undulating village alleys. This is the first visual impression upon entering Yishala, and it serves as the design prototype for the observatory space. Firstly, the design compresses and "backfills" the auxiliary spaces, and restores the height differences of the mountainous terrain in the environment by steps. Then, the functions are disassembled into four small-scale units distributed in a staggered pattern. These units are connected in series through stairs, corridors, and bridges, translating the vivid charm of tradition with modern architectural language.
Rough Concrete -The construction requirements for plain concrete are relatively high. Most domestic projects are subcontracted to professional teams to achieve a delicate and refined effect. Unfortunately, the limited investment in the village observatory makes it difficult to subcontract again, so it can only be managed by the local construction team. The unattainable refinement has instead given rise to doubts about refinement: why does this "rough guy" of concrete have to be dressed up like a "little girl"? Therefore, minor flaws that do not affect structural safety, such as different coloration, uneven joints, and small surface defects, are all retained as they are without repair. The rough red concrete looks as if it was born from the Panxi Valley, being willful, free, and rugged.
Sunlight is Material -The concrete walls on the facade of the observatory are the perfect canvas for sunlight. The roofs overhang irregularly outward. Through the angular misalignment between the roof and the wall, a sharp shadow forms on the facade. The roofs are horizontally separated from each other forming gaps, and then the gaps are vertically extended by taking advantage of the space height differences. The light bands outlined by the gaps are projected onto the walls and floors, and their shapes change as time passes.
Most of the public spaces in the observatory are semi-outdoor environments. The spaces only need openings, not windows. Therefore, the design uses irregular openings to emphasize that these are openings rather than windows. The wall of the multi-function front hall is torn open with a full-height opening facing east, and many small round holes are embedded inside the solid concrete wall. In the early morning, through the opening, visitors can see the sunlight crossing the Daliang Mountains and shining onto Yishala village. The sunlight passes through the small round holes and forms dancing light spots on the red concrete wall.
from archdaily


