"건축은 공간에 질서를 부여하는 것이 아니라, 공간이 스스로 질서를 찾아가도록 돕는 것이다." - 막스 두들러(Max Dudler)

![]() |
![]() |
![]() |
수직으로 펼쳐진 정원: 막스 두들러의 막스 타워 Max Dudler-Max Towers
새로운 도시 주거의 실험장
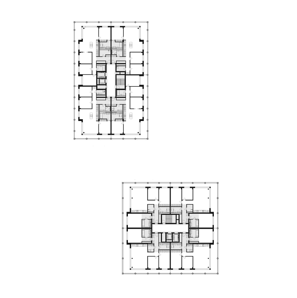
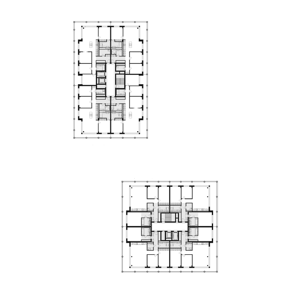
바젤 남부, 라이나흐(Reinach)와 아에쉬(Aesch) 사이에 자리한 구 슈퇴클린(Stöcklin) 산업지구. 이곳에 막스 두들러가 설계한 막스 타워 두 동이 새로운 주거·상업 복합단지 '아에레(Aere)'의 중심축으로 우뚝 솟아 있다. 높이 약 40미터에 이르는 이 타워들은 기존 고층 주거의 고정관념을 뒤흔드는 과감한 건축적 제안을 담고 있다.
띠를 두른 수직 마을
막스 타워의 가장 인상적인 특징은 1층을 뒤로 후퇴시킨 뒤, 그 위로 각 층을 둘러싸며 연속적으로 펼쳐지는 발코니 띠다. 이는 단순한 조형적 장치가 아니라, 고층 아파트 거주자에게 단독주택의 정원이 주는 풍요로운 외부 공간을 선사하는 건축적 발명이다.
우리나라의 일반적인 아파트가 작은 베란다나 발코니에 만족해야 하는 현실과 달리, 막스 타워는 각 층마다 건물을 한 바퀴 도는 넉넉한 외부 공간을 제공한다. 거주자들은 수직으로 쌓인 도시 주거에 살면서도 마치 정원이 딸린 집에 사는 듯한 경험을 누릴 수 있다.
두 겹의 표피가 만드는 공간의 깊이
구조적으로는 일체형 천장에 통합된 코니스를 가진 견고한 콘크리트 기둥들이 외피를 이루며 장엄한 구축적 질서를 보여준다. 이 기둥들은 건물의 뼈대 역할을 하면서 동시에 시각적 리듬감을 연출한다.
그 뒤편의 내부 파사드는 제2의 표피로서 앞뒤로 미묘하게 굴곡지며 효율적인 평면 구성을 가능하게 한다. 이렇게 두 겹으로 구성된 파사드 시스템은 단순히 기능적 효율성만을 추구하는 것이 아니라, 거주자에게 풍부한 공간적 경험을 선사한다.
중간 영역이 선사하는 여유
발코니 공간은 완전한 실내도 완전한 실외도 아닌 중간 영역으로서, 거주자들에게 유연한 생활의 무대를 제공한다. 날씨가 좋은 날에는 야외 거실로, 비가 오는 날에는 반실내 공간으로 활용할 수 있는 이 굽이치는 발코니 구역은 내부와 외부를 부드럽게 연결하는 완충 공간이자 숨 쉬는 여백이 된다.
특히 목재 바닥재와 황동색 금속 난간의 조합은 차가울 수 있는 콘크리트 구조물에 따뜻함과 인간적 스케일을 부여한다. 이러한 소재의 선택은 막스 두들러 특유의 섬세한 디테일 감각을 보여주는 대목이다.
커뮤니티의 중심이 되는 진입 공간
타워 2동의 진입 홀은 세심하게 설계된 도착의 경험을 연출한다. 천장에 규칙적으로 배치된 원형 조명과 곡선형 카펫이 만들어내는 부드러운 분위기는 거주자들을 따뜻하게 맞이한다.
이 공간은 외부의 공개된 도시 공간과 새로운 지구의 중심에 자리한 정원을 자연스럽게 연결하며, 열린 공간이면서도 보호받는 느낌을 주는 커뮤니티의 거실 역할을 한다.
새로운 수직 주거의 가능성
막스 두들러는 막스 타워를 통해 고층 주거의 새로운 가능성을 제시한다. 효율성만을 추구하며 획일화된 아파트 단지와는 달리, 이 프로젝트는 수직으로 쌓아 올린 집합 주거에서도 개별성과 공동체성을, 도시성과 자연성을 동시에 구현할 수 있음을 보여주는 설득력 있는 실험작이다.
발코니 띠라는 하나의 건축적 아이디어가 어떻게 거주자의 삶의 질을 근본적으로 변화시킬 수 있는지, 그리고 건축가의 철학적 사유가 어떻게 구체적인 공간 경험으로 번역될 수 있는지를 명확히 보여주는 작품이다.
Write by Claude & Jean Browwn


















The two Max Towers are the centerpiece of the residential and commercial quarter Aere, taking shape in the former industrial district of Stöcklin, which spreads between Reinach and Aesch south of Basel. The tower volumes, roughly 40 meters high, are striking for the continuous balconies that surround each level over a recessed ground floor. The girdle of balconies merges the urban flair of high rise living with the qualities of generous garden space associated with a family house.
The tectonic arrangement is completed on the outside by a mantle of solid columns with cornices integrated into monolithic ceilings. The inner façade behind these constitutes a second skin, benefiting from greater liberty as it steps forward and back to generate an efficient footprint. This meandering balcony zone enlivens the relationship between indoors and outdoors while serving as a filter and as a layer of flexible space.
The entrance hallways in Tower 2 create an arrival zone and link the public space outside with the central garden that forms an open yet shielded hub for the new quarter.
from archdaily


