"건축은 시간을 담는 그릇이다. 과거의 흔적을 지우지 않으면서 현재의 삶을 품어야 한다." - 안도 다다오(Tadao Ando)

![]() |
![]() |
![]() |
시간의 지층 위에 새겨진 현재: 오이마치 하우스 ROOVICE-Ōimachi House
도시의 이면에서 피어나는 건축적 대화
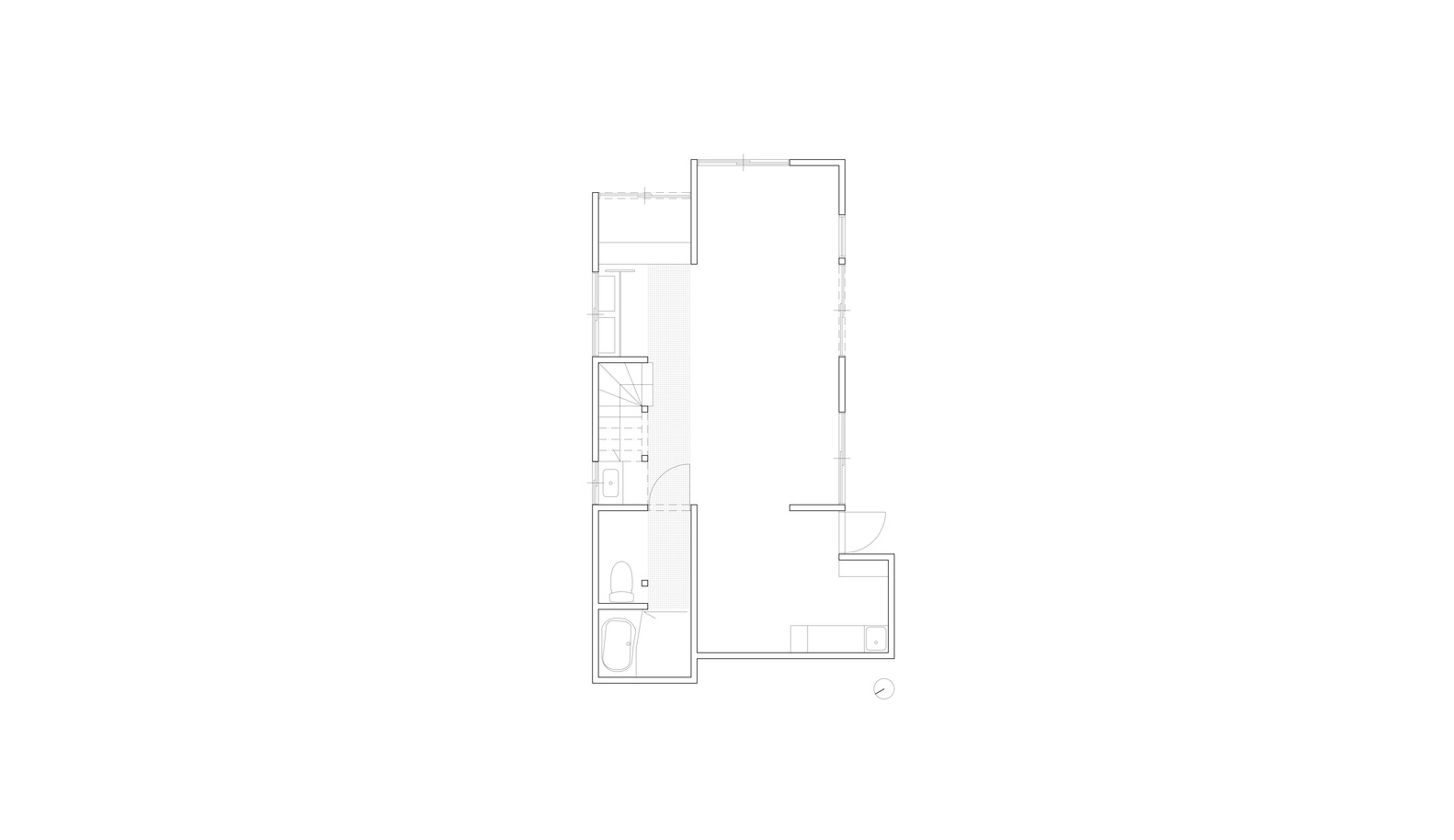
오이마치 역에서 도보 5분, 도쿄의 상업 중심가 뒤편에 자리한 조용한 주거지역. 이곳에서 73년의 세월을 품은 목조 주택 하나가 새로운 이야기를 시작했다. 전후 복구기의 빽빽한 목조 건축물들 사이에서 한때 평범한 일상을 담았던 이 집은 이제 현대적 업무 공간으로 거듭나며, 시간과 기능의 변화가 만들어내는 건축적 풍부함을 보여준다.
ROOVICE가 설계한 이 리노베이션은 단순한 용도 변경을 넘어선다. 명확성과 보존, 적응성 사이의 절묘한 균형을 통해 과거의 흔적과 현재의 필요가 자연스럽게 공존하는 공간을 만들어냈다. 고층 빌딩과 인간적 스케일의 건축물이 나란히 서 있는 도쿄의 독특한 도시 맥락 속에서, 이 작은 목조 주택은 도시 건축 유산의 지속가능한 활용 방안을 제시한다.
경계의 재정의: 사적 공간에서 공적 업무로
거리에서 마주하는 첫 인상부터 변화는 시작된다. 새롭게 설계된 출입구와 외벽 마감재는 깔끔한 표면을 제공하여 상업적 용도를 명확히 드러낸다. 간판 설치가 가능하도록 계획된 이 외관은 주거에서 업무로의 기능 전환을 거리에서도 직관적으로 인식할 수 있게 한다.
문을 열고 들어서면 새로운 칸막이가 입구와 주 업무 공간 사이에 시각적, 공간적 완충 역할을 한다. 이는 단순한 분리가 아닌 공간의 위계를 만드는 건축적 장치다. 고객 방문이나 회의를 위한 적절한 프라이버시를 확보하면서도, 벽걸이 옷걸이와 선반은 일반적인 사무실의 딱딱한 수납과는 대조되는 부드럽고 친근한 분위기를 연출한다.
동선이 만드는 공간의 리듬
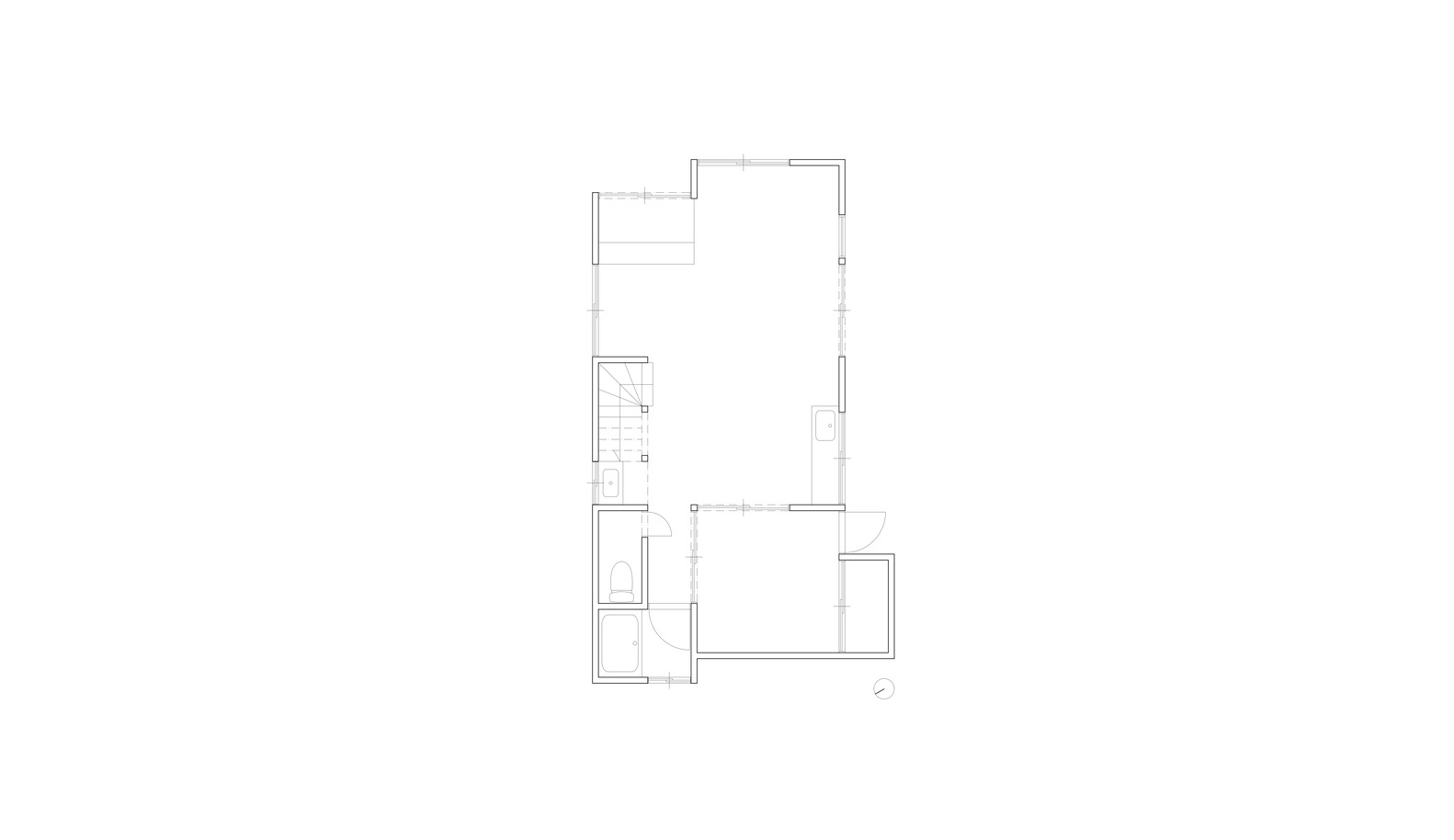
1층 전체를 관통하는 오렌지색 타일 라인은 이 프로젝트의 가장 인상적인 요소 중 하나다. 입구에서 시작되어 화장실과 유닛 배스를 지나 건물 뒤쪽까지 이어지는 이 선은 단순한 장식이 아닌 공간의 방향성을 제시하는 건축적 언어다. 상부의 천장 패널과 매입형 다운라이트가 같은 궤적을 따라 설치되어, 수직과 수평이 만드는 공간의 리듬을 완성한다.
기존의 모조 목재 PVC 바닥을 대신한 회색 마감재는 내구성과 함께 중성적 배경을 제공한다. 이 절제된 바탕 위에서 오렌지 라인은 더욱 선명하게 부각되며, 열린 공간에 명확한 동선과 시각적 흥미를 부여한다.
유연성이 만드는 새로운 업무 문화
과거 다다미 방이었던 공간에 설치된 컴팩트한 스테인리스 스틸 주방은 현대 업무 환경의 변화를 반영한다. 이동 가능한 아일랜드와 플러그인 IH 쿡탑으로 구성된 이 주방은 팀 점심, 워크숍, 캐주얼한 모임 등 다양한 상황에 유연하게 대응한다.
전기 콘센트의 세심한 배치는 예상되는 책상과 장비 위치를 고려한 결과다. 벽에 통합된 커튼 레일은 기존 알루미늄 창틀을 은밀히 감추면서도 필요에 따른 시선 조절을 가능하게 한다. 이러한 디테일들은 기능적 필요와 미적 완성도를 동시에 추구하는 설계자의 섬세한 배려를 보여준다.
시간을 드러내는 수직 공간
2층의 변화는 더욱 극적이다. 천장과 비구조적 칸막이를 모두 제거하여 완전히 열린 공간으로 재구성한 이곳에서는 원래의 목재 골조가 고스란히 드러난다. 노출된 지붕 구조는 이 건물의 73년 역사를 가장 직접적으로 보여주는 건축적 증거다.
상부에 새롭게 추가된 단열재와 지붕은 수직적 개방감을 해치지 않으면서도 현대적 쾌적성을 확보한다. 원래의 상량식에서 나온 상징적 장식물을 그 자리에 보존한 것은 단순한 센티멘탈리즘이 아닌, 건축이 담고 있는 시간성에 대한 존중이다.
불필요한 시각적 혼란을 피하고 재사용된 문들과 절제된 벽 색상, 그리고 하나의 오렌지색 펜던트 조명만으로 공간의 분위기를 정의한 것은 '덜어내기'를 통한 풍부함의 구현이다.
새것과 옛것이 만드는 건축적 시학
이 리노베이션의 가장 중요한 성취는 새로운 것과 기존 것 사이의 대화 방식이다. 양층의 바닥과 지붕은 완전히 새로 구축되었지만, 이전 천장과 벽 마감재의 흔적은 새로운 표면 아래나 옆에서 여전히 보인다. 이러한 이중성은 단순한 설계 전략을 넘어 하나의 건축적 원칙이 된다.
새로운 건축의 보이는 '이면'은 이전에 존재했던 것들에 대한 조용한 상기 역할을 한다. 과거를 지우지 않으면서 현재의 필요에 응답하는 이러한 접근은 시간의 축적이 만들어내는 건축적 풍부함을 증명한다. 프로젝트의 공간적 정체성은 바로 이러한 과거와 현재 사이의 층위적 관계에 의해 형성된다.
도시 건축 유산의 지속가능한 미래
건물의 고유한 성격을 압도하지 않으면서도 새로운 기능을 명확히 정의하는 것. 오이마치 하우스는 이러한 균형점을 찾아낸 모범적 사례다. 급속히 변화하는 도시에서 노후 목조 주택들이 단순히 철거의 대상이 아닌, 지속가능한 활용이 가능한 도시 자원임을 증명한다.
특히 고층 건물과 인간적 스케일의 구조물이 혼재하는 도쿄의 도시 맥락에서, 이 작은 목조 주택은 도시의 다층적 구조와 시간성을 보여주는 중요한 역할을 한다. 우리나라의 도시 한옥 활용이나 근대 건축물 보존 논의에도 시사하는 바가 크다.
결론: 시간과 공간이 만드는 건축적 풍요로움
오이마치 하우스는 단순한 공간 변화를 넘어, 시간의 축적과 변화가 만들어내는 건축적 풍부함을 구현한 작품이다. 73년이라는 시간의 무게를 지우지 않으면서도 현재의 삶에 유용한 공간으로 재탄생시킨 이 프로젝트는 건축이 과거와 현재, 그리고 미래를 연결하는 매개체임을 다시 한번 확인시켜준다.
기존의 것과 새로운 것 사이의 절묘한 균형, 기능성과 감성의 조화, 그리고 도시 건축 유산에 대한 새로운 관점. 이 모든 것이 하나의 작은 목조 주택 안에서 조화롭게 어우러지며, 현대 건축이 나아가야 할 하나의 방향을 제시하고 있다.
Write by Claude & Jean Browwn



































Oimachi Office Renovation: Reframing a 73-Year-Old Wooden House for New Work Life Located just five minutes from Oimachi Station, this 73-year-old wooden house has been transformed into a contemporary workspace through a renovation that balances clarity, preservation, and adaptability. The building is part of a dense cluster of postwar wooden structures situated behind the area's more prominent commercial and mid-rise office developments. This house, once a typical home in that quieter layer of the city, now takes on a new role as a functional and character-rich office.
The entrance was redesigned with a new door and exterior wall finish, offering a clean surface where signage can be installed making its commercial use immediately legible from the outside. Just beyond the door, a new partition was added to provide visual and spatial separation between the entry and the main working area, offering a layer of privacy appropriate for client visits or meetings. A wall-mounted coat rack and shelving unit are positioned here, designed with a softness and informality that contrast with typical office storage.
On the first floor, all existing flooring—previously a faux-wood PVC was replaced with a grey, durable finish throughout. A single line of orange tiles now stretches from the entrance toward the back of the space, passing through the toilet and leading to the unit bath. Overhead, a corresponding strip of ceiling panels with integrated downlights subtly traces the same line, giving orientation and rhythm to the otherwise open space.
In the area that once housed a tatami room, a compact stainless steel kitchen has been installed. Designed with flexibility in mind, it features a movable island and plug-in IH cooktop, making it easy to adapt for team lunches, workshops, or more casual use. Electrical outlets have been positioned thoughtfully throughout the space, based on projected desk and equipment placement. Curtain rails are integrated into the walls to allow visual control while keeping the original aluminum window sashes discreetly hidden.
The second floor was entirely opened up by removing the ceiling and non structural partitions. The exposed roof structure reveals the original timber framework, while new insulation and a newly built roof were added above to ensure comfort and energy performance without sacrificing vertical openness. A symbolic ornament from the original jōtōshiki (ridgepole-raising ceremony) was left in place—preserving a subtle but meaningful historical element. The design avoids unnecessary visual noise, instead allowing reused doors, muted wall colors, and a single orange pendant light to quietly define the mood.
The renovation respects the contrast between the new and the existing. The floors of both levels and the roof have been rebuilt, while traces of the former ceilings and wall finishes remain visible beneath or beside these new surfaces. This duality becomes a design principle: the visible "underside" of the new architecture serves as a quiet reminder of what came before. The project's spatial identity is shaped by this layered relationship between past and present.
By clearly defining new functions without overwhelming the building's inherited character, the Oimachi Office demonstrates how Tokyo's aging wooden homes can continue to serve meaningful roles in the urban landscape, especially in places where high-rise and human-scale structures stand side by side.
from archdaily


