"건축은 빛과 그림자의 놀이이다. 그것은 공간에서 펼쳐지는 시간의 춤이다." - 르 코르뷔지에(Le Corbusier)

![]() |
![]() |
![]() |
투명성과 층위: 스튜디오프랙티스의 남부 캘리포니아 비치 하우스 studiopractice-Southern California Beach House
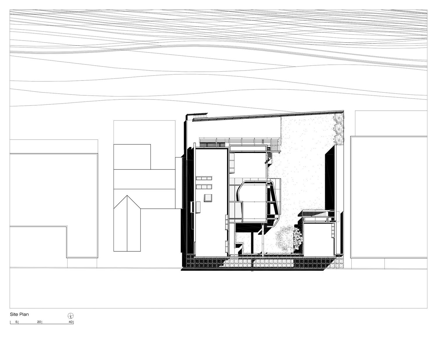
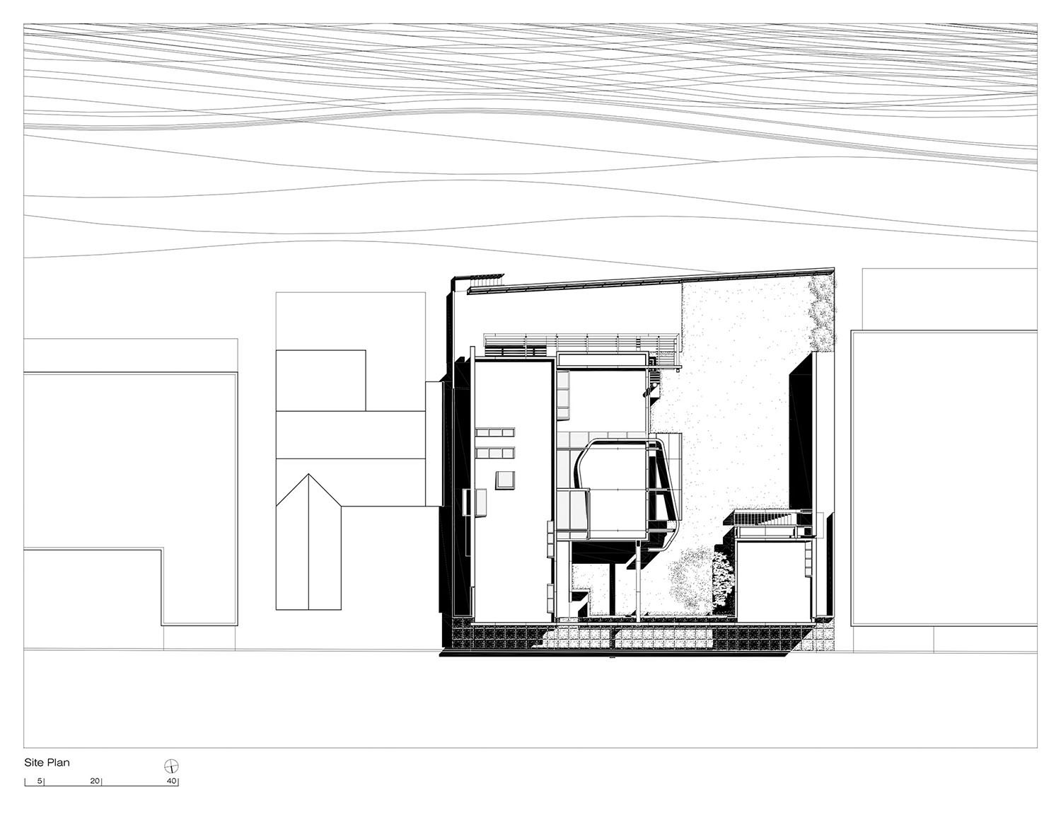
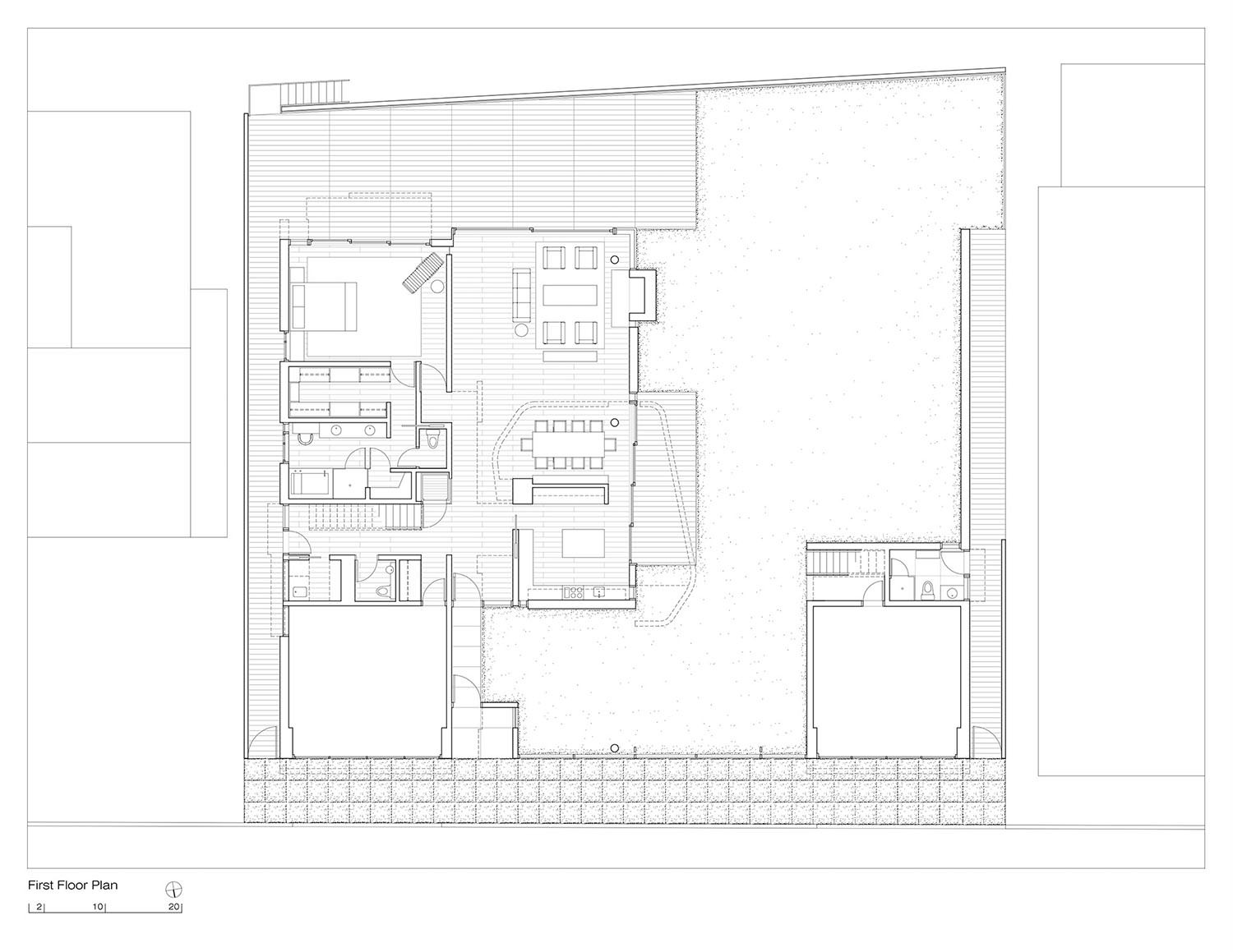
입지와 배치: 세 개의 풍경을 품다
태평양 연안 고속도로의 조밀한 건축 구간에 자리한 이 주택은 세 방향의 서로 다른 풍경을 마주한다. 남쪽으로는 끝없이 펼쳐진 태평양을, 서쪽으로는 정갈하게 구획된 중정을, 북쪽으로는 도시의 활기가 흐르는 고속도로를 바라본다. 이러한 입지적 특성은 건축가에게 하나의 명제를 제시했다. 어떻게 도시의 소음과 바다의 고요함 사이에서 균형을 찾을 것인가?
스튜디오프랙티스는 이 질문에 중정이라는 고전적 해법으로 답했다. 중정은 단순한 빈 공간이 아니라 입구와 바다를 시각적이고 공간적으로 연결하는 매개체 역할을 한다. 한국의 전통 가옥에서 마당이 내외부를 자연스럽게 이어주듯, 이곳의 중정은 남부 캘리포니아 중정 건축의 전통을 따라 하나의 외부 거실로 기능한다.
동선과 중정: 공간 경험의 시작
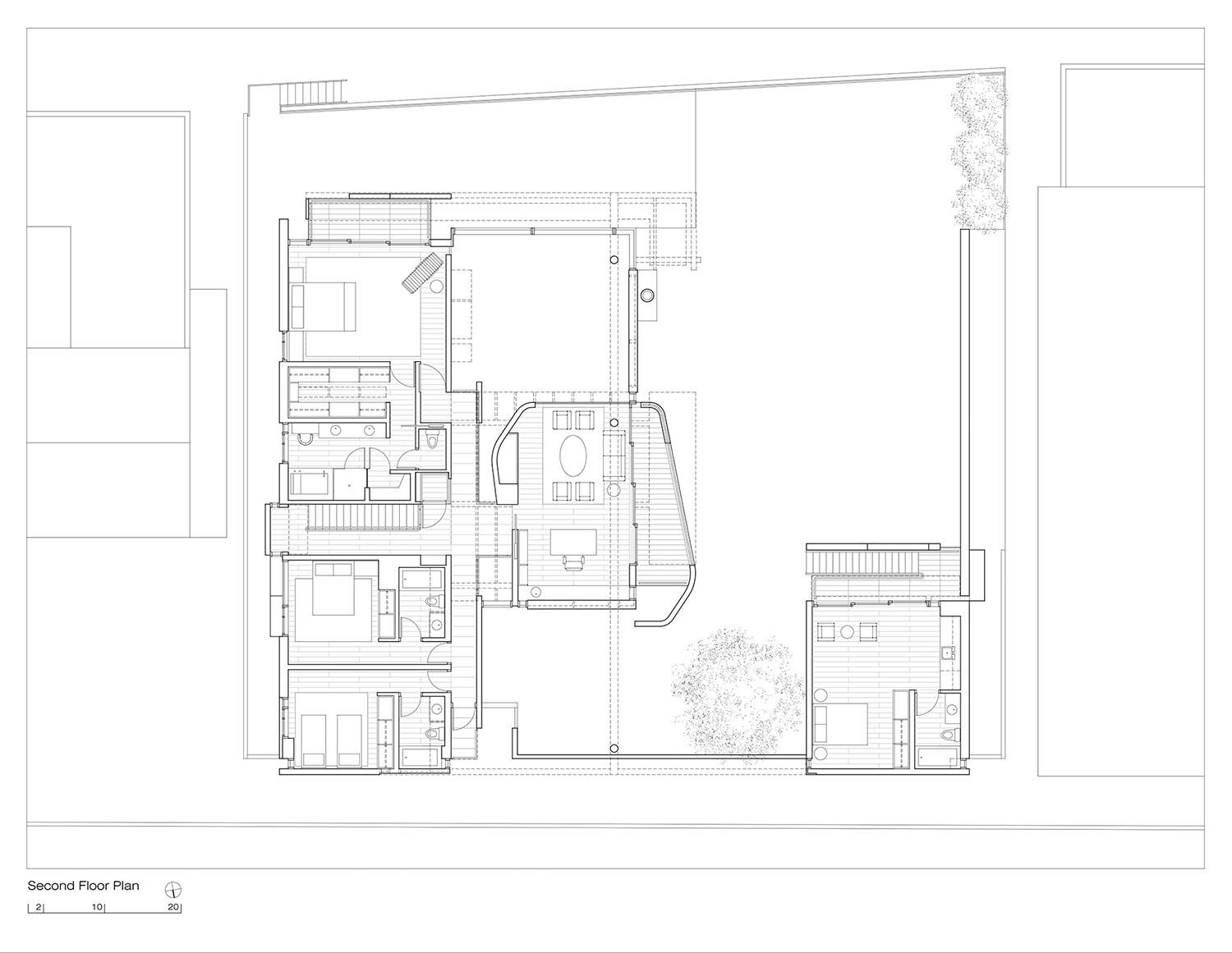
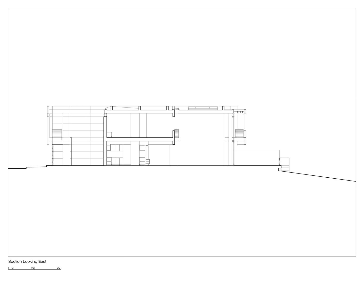
주택을 관통하는 동선은 하나의 서사를 구성한다. 반투명 유리로 마감된 북쪽 입구벽에서 시작된 여행은 본채와 게스트하우스 사이의 중정으로 이어진다. 이 순간, 방문자는 2층 높이의 입구공간에서 거실을 통해 바다까지 이르는 액자식 전망과 마주하게 된다. 마치 한 폭의 그림을 들여다보듯, 공간의 깊이가 한눈에 펼쳐진다.
특히 인상적인 것은 2층의 유리 브리지와 보행로가 이 시선을 가로지르며 만들어내는 공간적 층위다. 수평과 수직, 투명과 불투명의 요소들이 교차하며 단순할 수 있는 공간에 복합적인 깊이를 선사한다. 입구와 보행로 동쪽에는 침실과 서재 등 사적 생활공간들이 자리하고, 서쪽에는 중정으로 열리는 공용 영역들이 배치되어 공간의 성격에 따른 명확한 구분을 보여준다.
거실 공간: 내외부 경계의 해체
이중 높이의 거실은 이 주택의 심장부다. 여기서 내부와 외부의 경계는 완전히 흐려진다. 전면을 가득 채운 유리벽과 슬라이딩 도어는 밀폐된 실내 공간을 데크와 바다로 자연스럽게 확장시킨다. 이는 단순한 개방감을 넘어서, 거주자가 계절과 날씨에 따라 생활공간의 영역을 능동적으로 조절할 수 있게 한다.
차양과 루버는 파사드와 일체화되어 두 가지 기능을 동시에 수행한다. 하나는 주택과 테라스 사이의 전이공간을 조성하는 것이고, 다른 하나는 강렬한 캘리포니아의 햇빛으로부터 유리면을 보호하는 것이다. 이러한 디테일은 건축가의 세심한 배려를 보여준다. 아름다운 전망을 확보하면서도 거주자의 실제적 편안함을 놓치지 않은 것이다.
구조적 표현과 재료의 조화
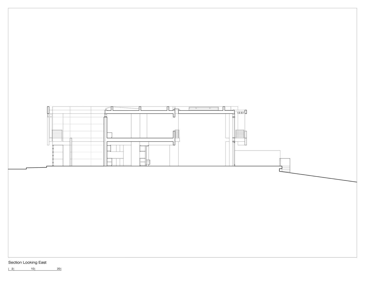
이 주택에서 구조는 숨겨지지 않는다. 오히려 적극적으로 드러나며 건축적 언어의 일부가 된다. 지붕의 보는 수평 프레임 상부에 배치되어 구조적 리듬과 구성 요소들의 층위를 명확히 드러낸다. 이러한 운율은 도장 알루미늄 외벽 패널과 모듈러 창호의 접합부에서도 일관되게 반복되어, 건물 전체에 통일감 있는 질서를 부여한다.
재료의 선택과 배치에서도 건축가의 의도가 명확히 읽힌다. 외부 회벽의 견고한 매스감은 투명한 유리 파사드와 절묘한 대조를 이룬다. 이는 단순한 시각적 효과를 넘어서 공간의 성격을 정의하는 역할을 한다. 무거운 재료는 프라이버시가 필요한 영역에, 투명한 재료는 개방이 요구되는 영역에 배치되어 기능과 형태의 완벽한 일치를 보여준다.
층위의 건축학: 공간의 깊이
이 주택의 가장 큰 성취는 재료의 층위화와 투명면이 관통하는 벽체의 평면성을 통해 내부와 외부의 경계를 자연스럽게 흐리게 만든 것이다. 이는 단순히 벽을 허물어 개방감을 확보하는 차원을 넘어선다. 각각의 재료와 구조적 요소가 고유한 역할을 수행하면서도 전체적으로는 하나의 통합된 공간 경험을 만들어내는 것이다.
방문자는 이 주택을 경험하며 공간이 어디서 시작되고 어디서 끝나는지 명확히 구분하기 어려움을 느낄 것이다. 이는 혼란이 아닌 풍요로움이다. 중정에서 거실로, 거실에서 테라스로, 테라스에서 바다로 이어지는 공간의 흐름은 거주자에게 끊임없이 변화하는 풍경과 빛의 변화를 선사한다.
스튜디오프랙티스는 이 프로젝트를 통해 현대 건축이 추구해야 할 방향을 명확히 제시한다. 그것은 기술적 혁신이나 형태적 실험을 위한 건축이 아닌, 거주자의 일상과 자연환경이 조화롭게 만나는 무대로서의 건축이다. 이 주택에서 건축은 배경이 되어 삶과 자연이 주인공이 될 수 있도록 겸손히 물러서 있다.
Write by Claude & Jean Browwn




















Situated along a densely built section of the Pacific Coast Highway, this house fronts the Pacific Ocean to the south, a courtyard to the west, and the highway to the north. The courtyard provides a visual and spatial link between the entry and the ocean beyond. Like many courtyard buildings in southern California, the open space defines an exterior living room.
The path through the house begins at the glazed translucent north entry wall and into the courtyard between the Main House and Guest House. The two-story entrance provides a framed view through the living room to the ocean beyond and is transected by a second level glazed bridge and walkway.
On the east side of the entry and walkway are the private living areas. To the west, the public areas which open onto the courtyard. The double-height living room is the house’s pith, linking the enclosed spaces with the deck and ocean via a full-height wall of glass and sliding doors. Sunscreens and louvers are integrally designed with the façade to provide both transitional space between the house and terrace, and to shade the glazed surfaces from the sunlight.
The beams at the roof, located above the horizontal framing, express the structural rhythm and layering of components. This cadence is repeated with the joinery of the painted aluminum exterior wall panels and modular windows. The mass of the exterior plaster walls is juxtaposed to the transparent glazed facades, creating a mosaic of layers and materials. It is through this use of layering of materials and the enclosure walls as planes intersected by transparent surfaces, that the separation between inside and outside is blurred, and the spaces are linked.
FROM architizer


