"건축은 자연을 정복하는 것이 아니라, 자연과 조화를 이루며 인간의 거처를 만드는 일이다." - 하산 파티

![]() |
![]() |
![]() |
레드록 하우스: 사막에 뿌리내린 현대 주거의 새로운 전형 faulkner architects designs red rock house to withstand extreme desert climate
사막의 혹독함을 받아안은 건축
네바다주 서머린의 모하비 사막 가장자리, 라스베이거스의 화려한 스카이라인과 레드록 캐니언의 장엄한 사암 절벽 사이에 폴크너 아키텍츠가 설계한 레드록 하우스가 자리한다. 이 주택은 사막이라는 극한 환경이 제시하는 모든 조건에 정면으로 응답한다. 건조한 겨울과 작열하는 여름, 거센 바람과 예측 불가능한 계절성 몬순까지, 이 모든 기후적 변수들이 설계의 출발점이 되었다.
건축가들은 단순히 혹독한 환경을 견뎌내는 것을 넘어서, 사막의 본질적 아름다움을 거주 공간으로 승화시키는 방법을 모색했다. 거주자의 사생활 보호와 건물의 내구성을 확보하면서도, 도시와 자연을 향한 시각적 연결을 놓치지 않는 섬세한 균형이 이 프로젝트의 핵심이다.
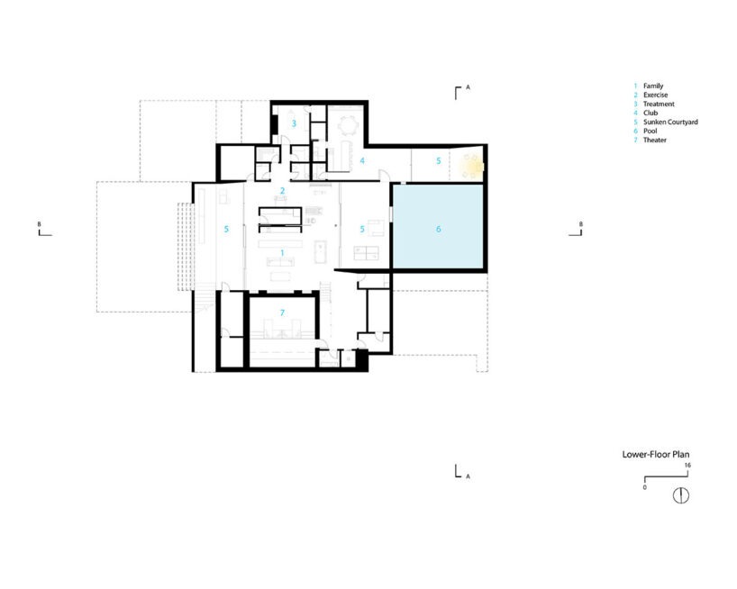
땅에서 시작하는 공간의 조각
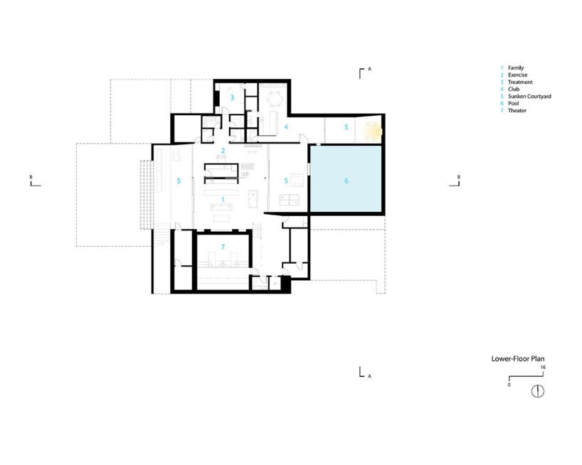
3/4에이커 규모의 대지에서 건축가들은 빼기 방식의 설계 전략을 구사했다. 마치 조각가가 돌덩이에서 불필요한 부분을 제거하여 형상을 드러내듯, 대지에서 공간을 조각해내어 동쪽에 보호받는 안뜰을 만들어냈다. 이 중정에는 거실 공간과 동일한 규모의 리플렉팅 베이신이 자리한다. 얕은 수면은 단순한 장식 요소가 아니라, 사막의 빛과 그림자를 실내로 끌어들이는 건축적 장치다.
한국 전통 건축에서 좁은 대문을 지나 넓은 마당으로 이어지는 공간 경험과 유사하게, 이 집의 진입 과정 역시 압축과 해방의 극적 대비를 통해 이루어진다. 리플렉팅 베이신은 거주자에게 잠시 머물며 사색할 수 있는 명상적 공간을 제공하는 동시에, 사막의 강렬한 햇빛을 부드럽게 반사하여 실내에 은은한 광환경을 조성한다.
압축에서 해방으로, 진입의 드라마
방문자는 나무 거푸집의 결이 그대로 새겨진 콘크리트 둘레벽의 좁은 수직 통로를 지난다. 이 아늑하게 압축된 공간은 기대감을 증폭시키며, 곧이어 도달하게 될 개방감을 더욱 극적으로 만든다. 그늘진 경사로를 따라 올라가면 사적인 중정이 나타나고, 베이신 수면과 눈높이가 맞춰진 이 순간 방문자는 잠시 숨을 고르게 된다.
이러한 진입 시퀀스는 단순히 기능적 동선을 넘어서, 사막이라는 광활한 외부 공간에서 친밀한 거주 공간으로의 심리적 전환을 돕는다. 압축과 해방, 어둠과 밝음, 좁음과 넓음의 대비를 통해 건축가는 공간 자체가 하나의 서사를 갖도록 설계했다.
땅과 하늘을 잇는 이원화된 구조
레드록 하우스의 재료 전략은 철저히 지역성에 기반한다. 현장에서 직접 배합하여 타설한 콘크리트는 현지 모래, 자갈, 플라이애시로 구성되어, 주변 사암 절벽과 시각적으로 조화를 이루는 연한 황갈색을 띤다. 이 콘크리트는 바닥과 벽면에 모두 노출되어, 사막의 극심한 온도 변화를 자연스럽게 흡수하고 완화시키는 열적 완충재 역할을 한다.
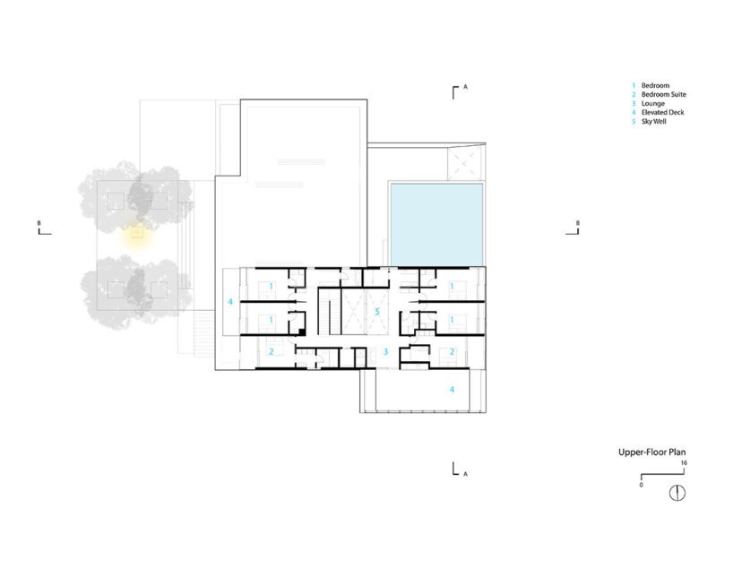
8,500평방피트 규모 중 절반 이상이 지하에 묻혀 있어, 기계적 냉방 장치 없이도 시원한 환경을 유지한다. 이는 현대 건축에서 지속가능성을 추구하는 패시브 디자인의 모범적 사례다. 지상의 거실과 침실 공간들은 시간이 흐르며 깊어지는 풍화강으로 마감된 구조물 안에 자리한다.
관통형 스크린 시스템이 직사광선과 강풍으로부터 내부를 보호하면서도, 부드럽게 걸러진 빛과 자연 통풍을 허용한다. 이러한 이중적 보호막은 아래로는 무거운 콘크리트 매스, 위로는 가벼운 강철 구조라는 대조적 구성으로 건물의 성격을 명확히 드러낸다.
수평선과 조우하는 건축
건물은 대지 전체에 걸쳐 낮게 엎드린 자세를 유지하며, 동서축에 맞춘 긴 형태로 배치되었다. 이러한 수평적 확장은 거주자로 하여금 사막의 무한한 지평선과 일체감을 느끼도록 한다. 수영장과 그늘진 데크는 방향성 있는 산들바람을 받아들이도록 정교하게 배치되어, 자연 통풍만으로도 쾌적한 외부 생활공간을 조성한다.
공중에 떠 있는 듯한 캔틸레버 구조는 위층 공간과 그 아래 주차 영역을 동시에 보호하며, 바깥으로 확장되어 레드록 캐니언의 극적인 실루엣을 메아리처럼 되울린다. 이는 건축물이 자연 환경과 경쟁하는 것이 아니라, 풍경의 일부가 되어 조화를 이루려는 건축가의 의지를 보여준다.
사막 파노라마를 품은 내부 공간
컨셉 라이팅 랩이 완성한 인테리어는 건축적 의도를 공간 경험으로 승화시킨다. 거실에서 거주자는 거대한 사막 파노라마와 마주하게 되며, 이때 느끼는 감동은 압축된 진입 과정을 거쳐왔기에 더욱 강렬하다. 나무 거푸집의 거친 질감이 남아있는 콘크리트 벽면과 풍화강의 따뜻한 색조가 어우러지며, 시간에 따라 변화하는 사막의 빛이 만들어내는 그림자 패턴이 공간에 생동감을 부여한다.
침실에서는 사막의 광활함을 바라보며 잠들고 깨어날 수 있으며, 목재 루버천장이 만들어내는 은은한 그림자가 휴식 공간의 평온함을 더한다. 곳곳에 배치된 현대 예술 작품들은 자연스럽게 건축 공간과 대화하며, 미술관 같은 품격을 선사한다.
현대 사막 건축의 새로운 지평
레드록 하우스는 극한 기후에 대한 건축적 대응이 단순한 기술적 해결책을 넘어, 장소의 본질과 깊이 결합된 시적 경험을 창조할 수 있음을 증명한다. 지역 재료의 창의적 활용, 정교한 패시브 디자인 전략, 그리고 사막 풍경과의 시각적 대화는 21세기 지속가능한 주거 건축이 나아갈 방향을 제시한다.
이 집이 보여주는 것은 건축이 자연을 정복하거나 차단하는 것이 아니라, 자연의 조건 안에서 인간다운 삶의 공간을 조각해내는 일임을 명확히 한다. 모하비 사막의 혹독함 속에서도 거주자에게 안식과 경이로움을 동시에 선사하는 이 주택은, 현대 건축이 추구해야 할 진정한 가치가 무엇인지 성찰하게 만든다.
기후 변화와 자원 고갈이라는 전 지구적 과제에 직면한 현재, 레드록 하우스가 제시하는 지역 적응적 설계 철학과 에너지 절약형 공간 구성은 단순한 사례 연구를 넘어 미래 건축의 나침반 역할을 할 것이다.
프로젝트 정보
프로젝트명: 레드록 하우스
건축가: 폴크너 아키텍츠
위치: 네바다주 서머린
인테리어 디자인: 컨셉 라이팅 랩
사진: 조 플레처
설계팀: 그렉 폴크너, 오웬 라이트, 제나 슈롭셔, 브리앤 펜로드
시공: RW 버그비 앤드 어소시에이츠
조경 설계: 우고 산체스 파이사헤, 뱅슨 컨설팅
구조 설계: CFBR 구조 그룹
토목: 쇼 엔지니어링
기계/전기/배관: 에너지-1
측량: 다이아몬드백 랜드 서베잉
지반: 지오 텍 레지덴셜
조명 디자인: 컨셉 라이팅 랩
수영장 설계: 오지 크래프트 풀스
Write by Claude & Jean Browwn

























red rock: contemporary home lands in mojave desert
Red Rock is a newly built residence by Faulkner Architects, located in Summerlin, Nevada, on the edge of the Mojave Desert. Set between the Las Vegas city skyline and the sandstone formations of Red Rock Canyon, the house is shaped by the region’s demanding climate — dry winters, intense summer heat, high winds, and seasonal monsoons. The architecture is informed by these conditions, along with the client’s need for privacy and durability.
passive design by faulkner architects
Located on a three-quarter acre site, Faulkner Architects’ Red Rock residence contends with the Mojave Desert’s extreme climate, which sees high summer temperatures, monsoon rains, and constant winds. The design team shows a deliberate and controlled response to this context. The structure is oriented to minimize solar exposure and create privacy while maintaining visual access to the city and canyon beyond. A subtractive process in the plan carves out a sheltered courtyard to the east and introduces a raised reflecting basin that mirrors the living space in scale.
Leading toward interiors designed by Concept Lighting Lab, the entry is calibrated and sequential. Visitors pass through a tight vertical opening in the board formed concrete perimeter wall, arriving at a shaded ramp that leads to a private court. At eye level with the basin’s surface, this moment compresses and frames the transition from the desert exterior to the interior architecture.
context-driven materials
The Red Rock structure is composed of locally-sourced sand, gravel, and fly ash concrete, which is mixed on-site and cast in place by the team led by Faulkner Architects. The result is a pale buff surface that visually connects to the surrounding geology. Exposed in both floor and wall surfaces, the concrete absorbs and modulates the desert’s thermal fluctuations. Over half of the 8,500-square foot residence is built into the earth, where passive cooling and daylighting strategies allow the home to remain breezy and energy efficient.
Above ground, living areas and bedrooms occupy structures articulated in weathering steel. A perforated screen system shields the interiors from direct sun and wind while allowing filtered light and airflow. This layered strategy is expressed as a heavy mass below, and a lightweight envelope above.
The house maintains a low profile across the landscape. Its elongated geometry aligns with the east west axis, situating the pool and shaded deck to receive directional breezes and controlling solar gain. The cantilevered steel framework shelters the upper level and cars beneath, extending outward to echo the silhouette of Red Rock Canyon.
name: Red Rock
architect: Faulkner Architects | @faulknerarchitects
location: Summerlin, Nevada
interior design: Concept Lighting Lab | @studio_cll
photography: © Joe Fletcher | @joefletcherphoto
design team: Greg Faulkner, Owen Wright, Jenna Shropshire, Breanne Penrod
general contractor: RW Bugbee & Associates
landscape architects: Hugo Sanchez Paisaje and Vangson Consulting
structural: CFBR Structural Group
civil: Shaw Engineering
MEP: Energy-1
surveyor: Diamondback Land Surveying
geotechnical: Geo Tek Residential
lighting designer: Concept Lighting Lab
pool designer: Ozzie Kraft Pools
from designboom
'House' 카테고리의 다른 글
| * 사막에 피어난 미래 돔 하우스 Anastasiya Dudik-HATA (5) | 2025.08.18 |
|---|---|
| * 사트구루 랑데부: 뭄바이 스카이라인을 재정의하다 [ Nudes ] Satguru’s Rendezvous (5) | 2025.08.14 |
| * 브루니 아일랜드의 현대적 농가 [ FMD Architects ] Coopworth (3) | 2025.07.31 |
| * 메이커스 반 [ HUTCH ] The Makers Barn (4) | 2025.07.30 |
| * 청록빛 나선이 만든 시간여행 Casa Sofia의 재탄생 AMASA Estudio infuses teal metalwork into Mexico City dwelling (2) | 2025.07.29 |


