"건축은 돌로 쓴 시다. 그것은 시간과 공간 속에서 사람들의 삶을 담아낸다."- 루이스 바라간 (Luis Barragán)

![]() |
![]() |
![]() |
시간의 켜를 품은 붉은 안뜰 Casa Alicia, 멕시코 코미탄 ALTOVA-Alicia Hous
멕시코 남동부 치아파스주의 작은 도시 코미탄 데 도밍게스. 이곳 역사지구 한복판에 카사 알리시아가 자리한다. 에어비앤비 숙박 시설로 설계된 이 건축물은 전통 건축 어휘를 현대적으로 재해석한 사례다. ALTOVA가 설계를 맡았고, 기후 적응형 설계 전략을 통해 효율성과 미학, 낮은 유지 관리를 동시에 달성했다. 코미탄은 멕시코 정부가 지정한 푸에블로 마히코, 즉 문화재 보존 마을이다. 식민지 시대부터 이어진 도시 조직 속에서, 이 건물은 과거와 현재의 대화를 시도한다.
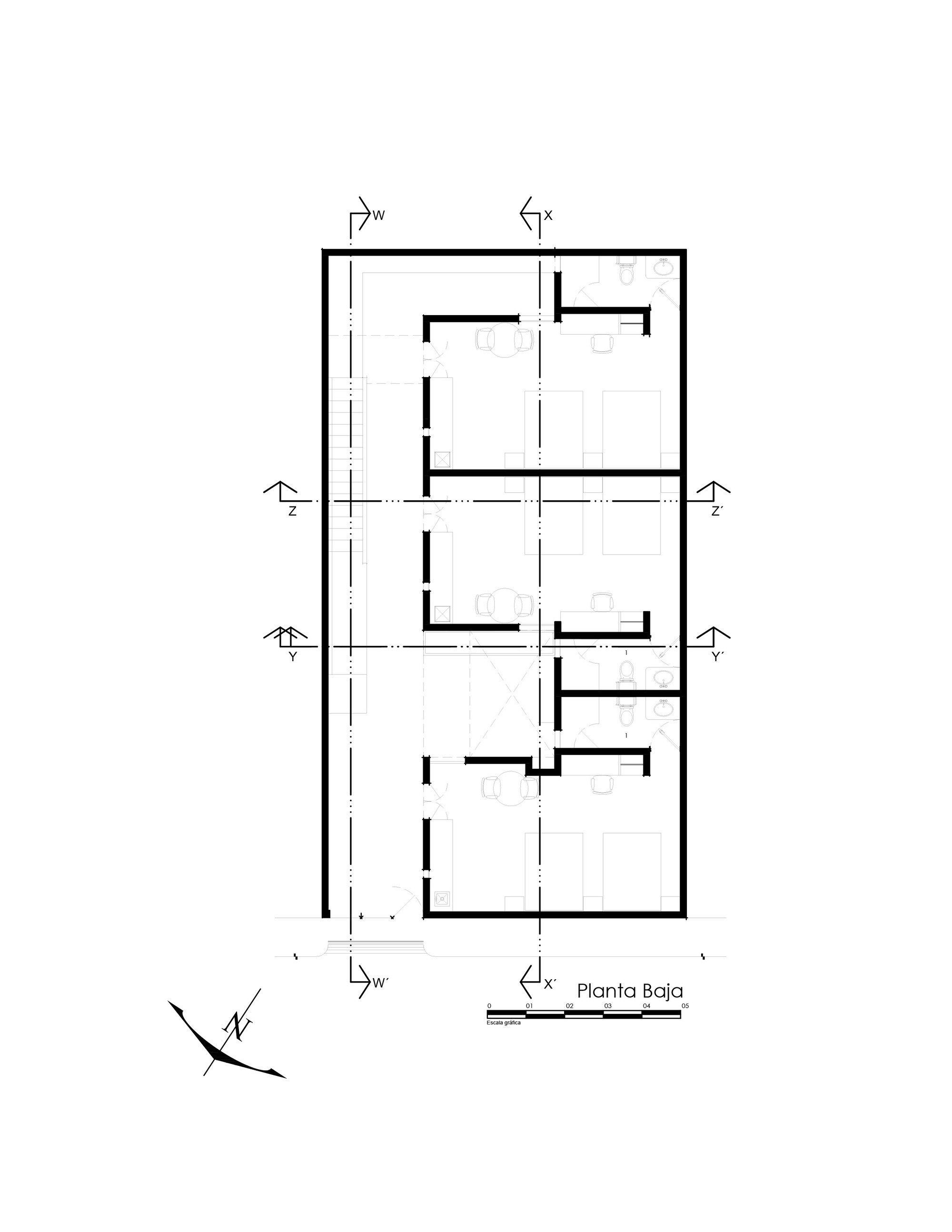
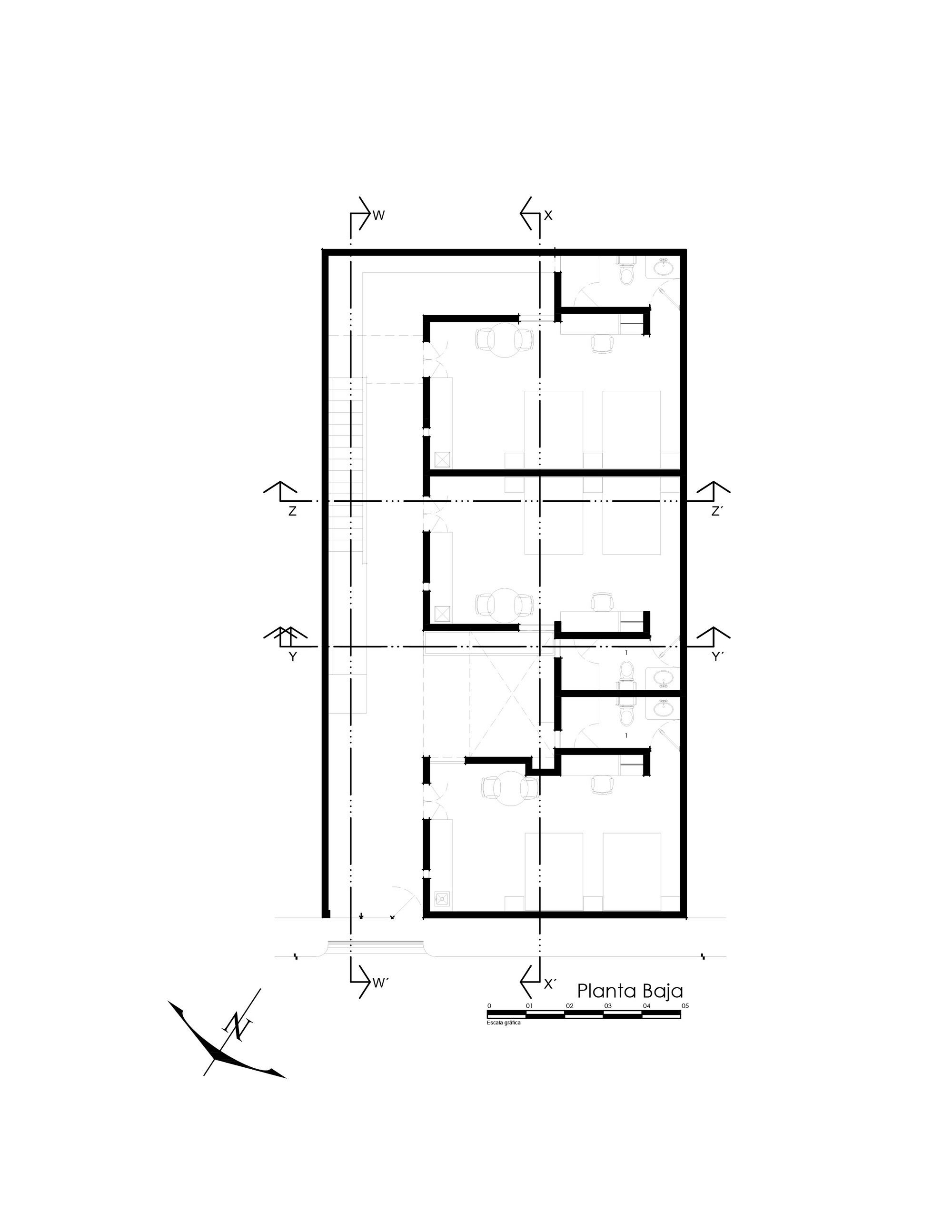
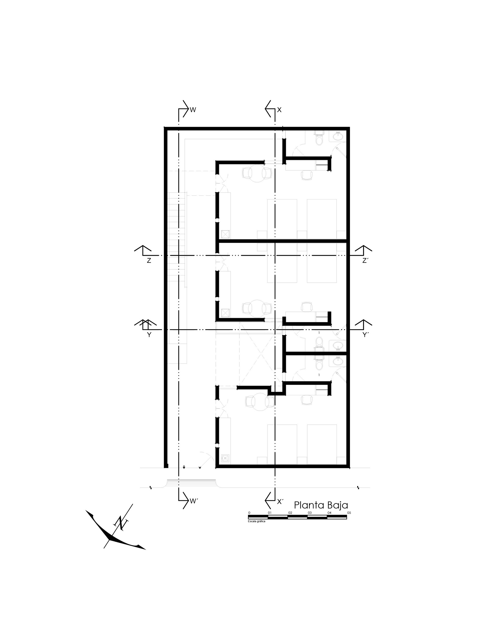
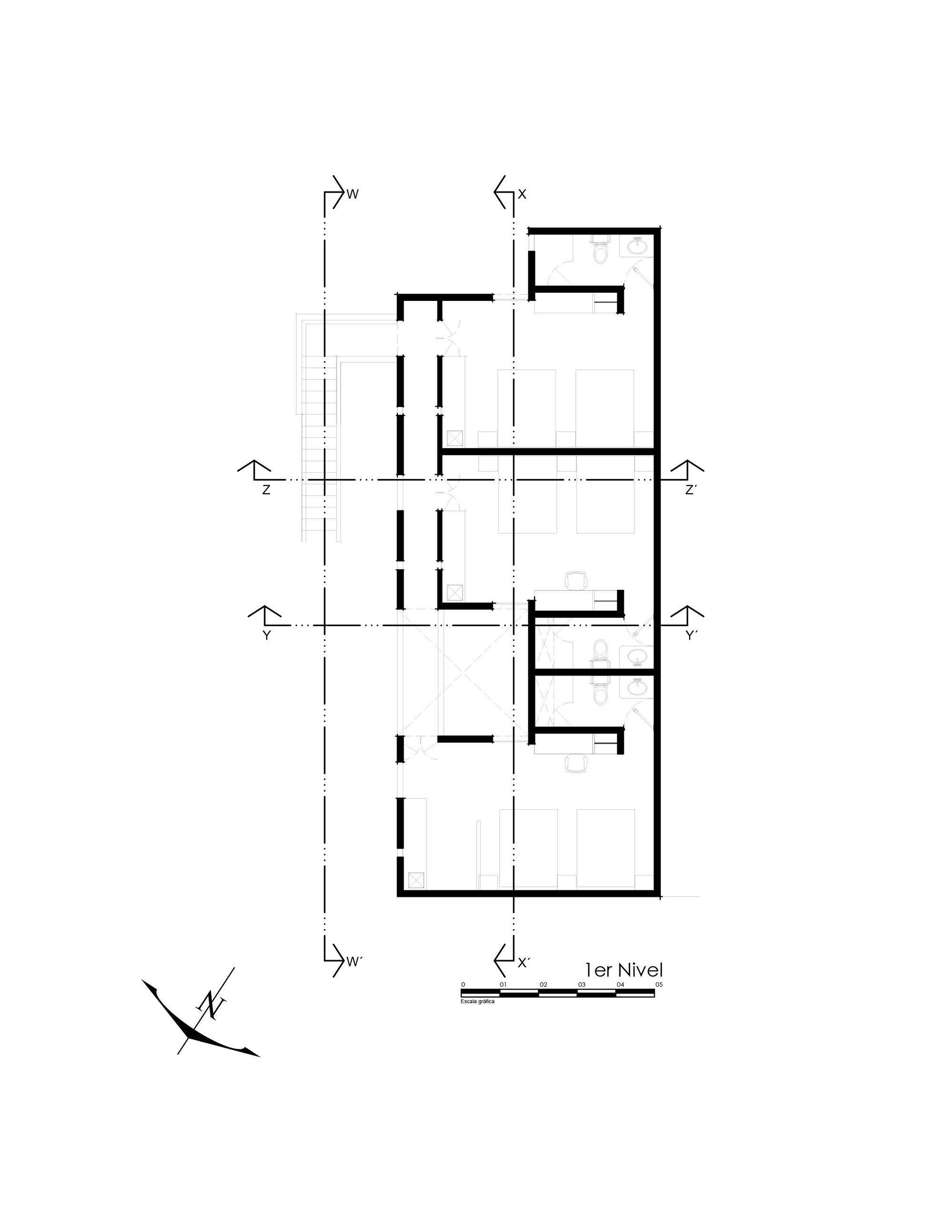
거리를 향한 얼굴은 과묵하다. 박공지붕을 얹은 두 개의 매스가 하나의 덩어리를 이룬다. 거리 쪽으로는 꽁꽁 닫혔지만, 안으로 들어서면 중앙 정원이 시원하게 펼쳐진다. 이 내향적 구조는 멕시코 전통 주거의 파티오 개념을 계승한 것이다. 동시에 뜨거운 기후와 소음 많은 도심 환경에 대응하는 합리적 선택이기도 하다. 두 동을 연결하는 중앙 브릿지는 단순한 통로가 아니다. 이 구조물은 수직 동선을 엮고, 시선의 틈을 만들며, 공간과 공간 사이의 긴장을 조율한다.
가장 먼저 눈길을 사로잡는 것은 재료의 대비다. 오래된 건물에서 건져낸 붉은 벽돌이 새로운 생명을 얻었다. 풍화된 표면은 세월의 켜를 고스란히 드러낸다. 그 옆에 놓인 노출 콘크리트는 매끄럽고 차갑다. 붉은 질감과 회색 표면, 거친 손맛과 정밀한 거푸집 자국. 이 대비는 시간의 층위를 가시화한다. 과거와 현재가 충돌하지 않고 공존하는 방식이다.
두 재료는 보기 좋은 것 이상이다. 벽돌과 콘크리트는 모두 축열체로 기능한다. 낮 동안 열을 품었다가 밤에 방출하며 실내 온도를 조절하는 것이다. 이는 기후를 거스르지 않는 설계의 핵심이다. 붉은 색조는 단순한 미적 선택이 아니다. 이 색은 코미탄 역사지구의 색이며, 멕시코 남부 전통 건축의 색이다. 재료가 장소의 기억을 소환한다.
안뜰로 들어서면 물소리가 먼저 귀를 사로잡는다. 분수에서 흘러내린 물이 얕은 수면으로 떨어진다. 거울처럼 고요한 수면은 하늘과 벽을 담아낸다. 이곳은 프로젝트의 감각적 중심이다. 물소리는 청량함을 만들고, 증발하는 수증기는 공기에 서늘한 기운을 더한다. 사색의 공간이다.
정원 곳곳에 심긴 토종 식물들이 녹색 층위를 형성한다. 테라코타 화분에서 자라는 이 식물들은 멕시코 남부 고유의 풍경을 재현한다. 풀 내음이 공기를 채운다. 땅은 투수성 포장재로 마감되어 빗물이 스며든다. 청정 에너지 시스템이 건물 전체를 작동시킨다. 물, 식물, 빛, 소리. 이 모든 요소가 오감을 깨운다. 건축은 여기서 배경이 되고, 경험이 전면에 나선다.
내부 프로그램은 명확하다. 여섯 개의 독립된 침실이 각각의 프라이버시를 보장한다. 각 침실은 필요에 따라 다르게 쓸 수 있고, 관리하기도 쉽다. 숙소가 가져야 할 실용성과 건축적 완성도가 균형을 이룬다. 침실에서 바라본 중앙 정원은 또 다른 풍경을 제공한다. 빛의 변화에 따라 붉은 벽의 색조가 달라진다. 아침의 따스함, 정오의 강렬함, 저녁의 부드러움. 시간이 공간을 다시 쓴다.
카사 알리시아는 전통을 박제하지 않는다. 과거의 언어를 빌려 현재의 문장을 쓴다. 재활용 벽돌은 지속 가능성의 물리적 증거이며, 동시에 장소성의 은유다. 내향적 구조는 기후 대응이자 도시 밀도에 대한 건축적 답변이다. 중앙 정원은 기능적 장치이면서 동시에 시적 공간이다.
이곳에서 건축은 효율과 감각, 과거와 현재, 전통과 혁신 사이의 균형을 모색한다. 그 균형점에서 사람들은 머물고, 느끼고, 기억한다. 건축이 삶을 담는다는 것은 이런 의미일 것이다. 시간의 켜를 품은 붉은 벽 사이로, 물소리와 풀 내음이 흐른다. 그리고 그 안에서 누군가의 하루가 천천히 흘러간다.
Write by Claude & Jean Browwn



















Casa Alicia is a contemporary architectural intervention located in the Historic Center of Comitán de Domínguez, Chiapas —a Magical Town in southeastern Mexic— designed as accommodation for the Airbnb platform. It reinterprets vernacular architecture from a modern perspective, integrating bioclimatic strategies that balance efficiency, aesthetics, and low maintenance.
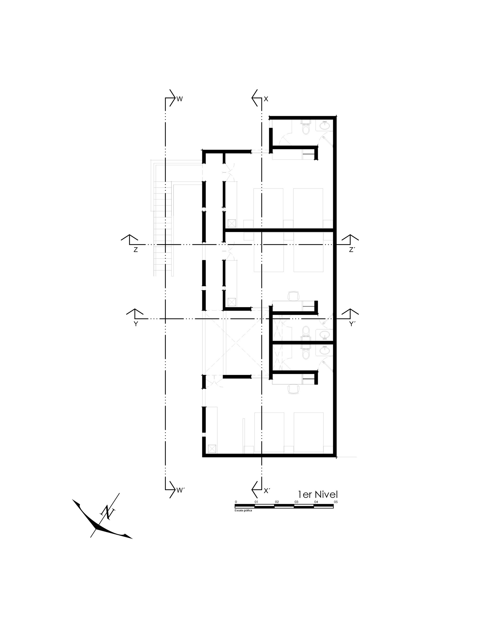
The complex consists of two volumes with gable roofs connected by a central bridge that articulates circulation, voids, and visual connections. The sober and monolithic volumetry closes off towards the street and opens up to a central courtyard, generating an introspective architecture that responds to the climate and the traditional urban context.
Bricks from a previous construction are reused, combined with exposed concrete, forming reddish walls that evoke the passage of time. Both materials act as thermal mass, providing character and comfort. The color palette, raw materials, and artisanal details reinforce the local roots.
The distribution includes six independent bedrooms that promote privacy, flexible use, and low maintenance. The central courtyard is the sensory core of the project: a fountain creates a waterfall that flows into a mirror of water, generating sound, freshness, and contemplation. Aromas, endemic vegetation, permeable flooring, and clean energy consolidate a livable, resilient, and emotional experience.
from archdaily


