"건축은 빛 안에서 정확하고 장엄하게 놀이하는 형태들의 조합이다."— 르 코르뷔지에

![]() |
![]() |
![]() |
유리 블록이 만드는 친밀함—시팟 앤 사우 빌라 Arkana Architects-Villa Sipat & Sauh
발리의 활기찬 동네에 자리한 시팟 앤 사우 빌라는 임대 숙박시설에 대한 통념을 깬다. 대부분의 렌탈 풀빌라가 놓치고 있는 것, 바로 집처럼 편안한 친밀감과 부드러움. 이곳에는 그것이 있다. 건축주의 요구는 단순하지만 까다로웠다. 렌탈 풀빌라지만 개인 주택처럼 느껴지는 공간, 그러면서도 건축적 정체성이 분명한 곳을 만들어달라는 것. 설계팀은 먼저 기존 풀빌라들에 무엇이 부족한지 살폈다. 익숙함, 따스함, 그리고 집이 숨 쉬는 느낌. 이 빌라는 그 빈자리를 채우려는 시도다.
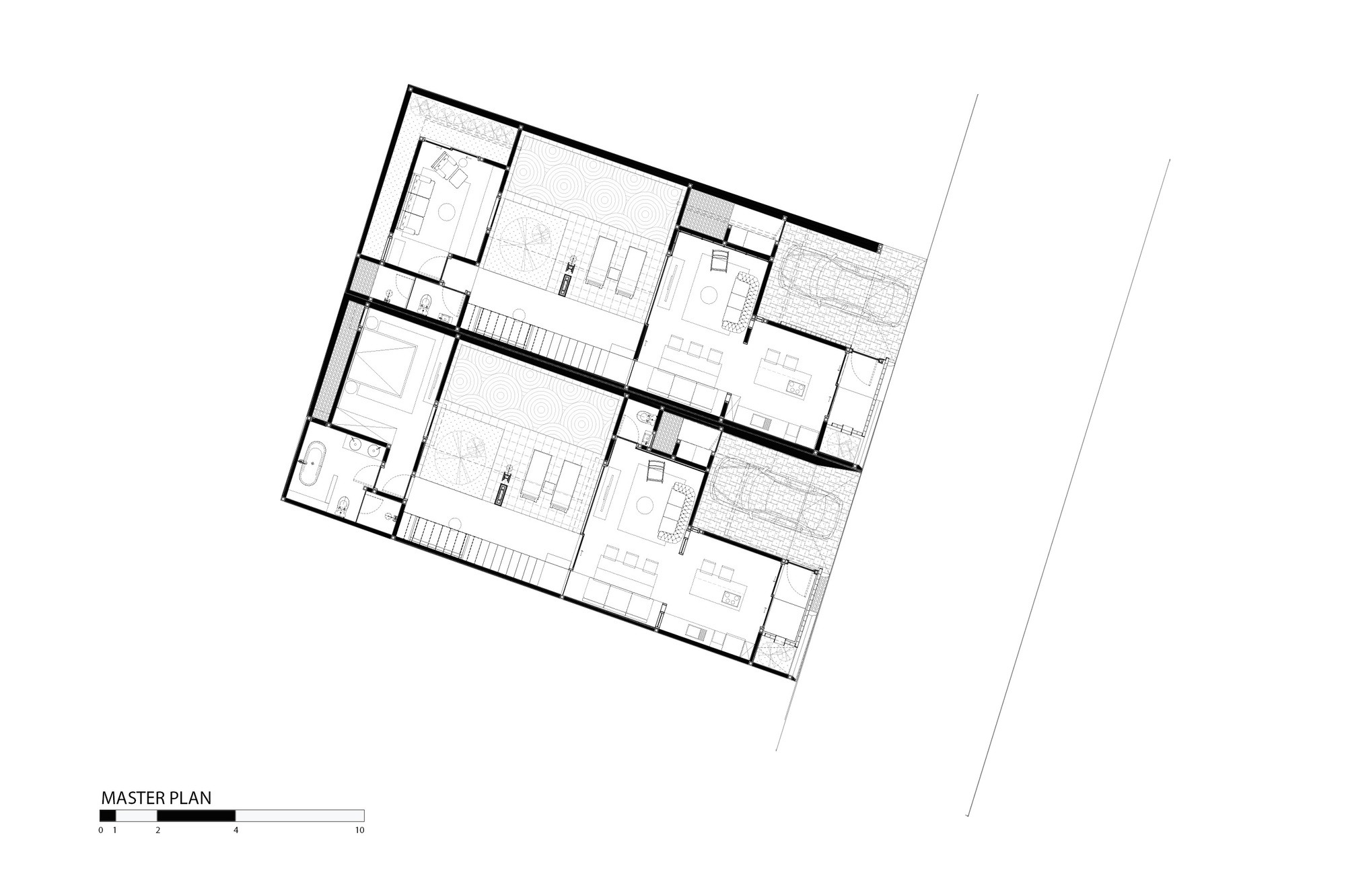
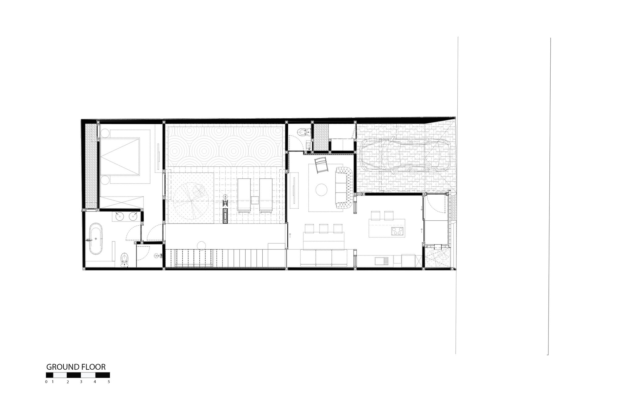
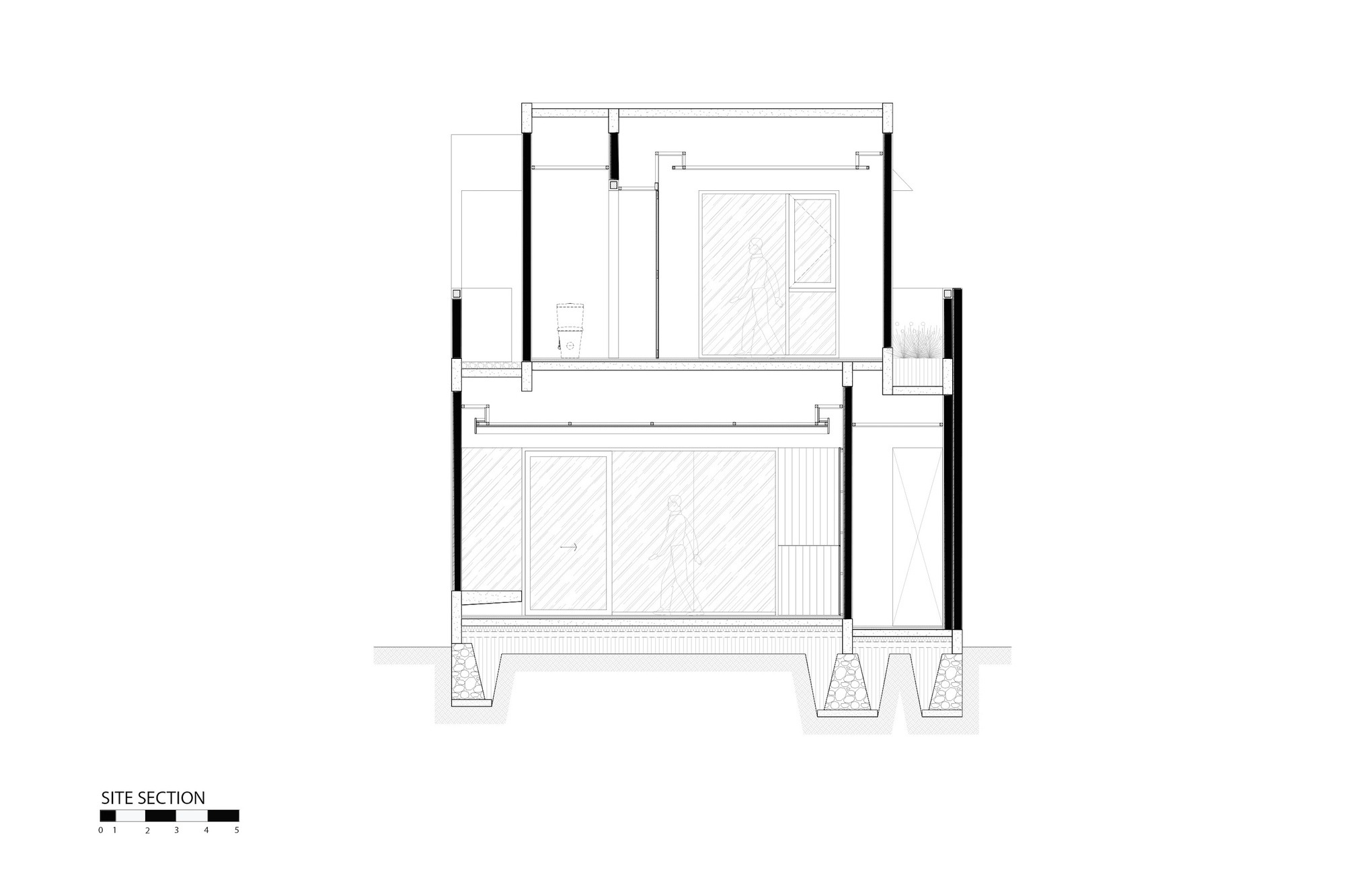
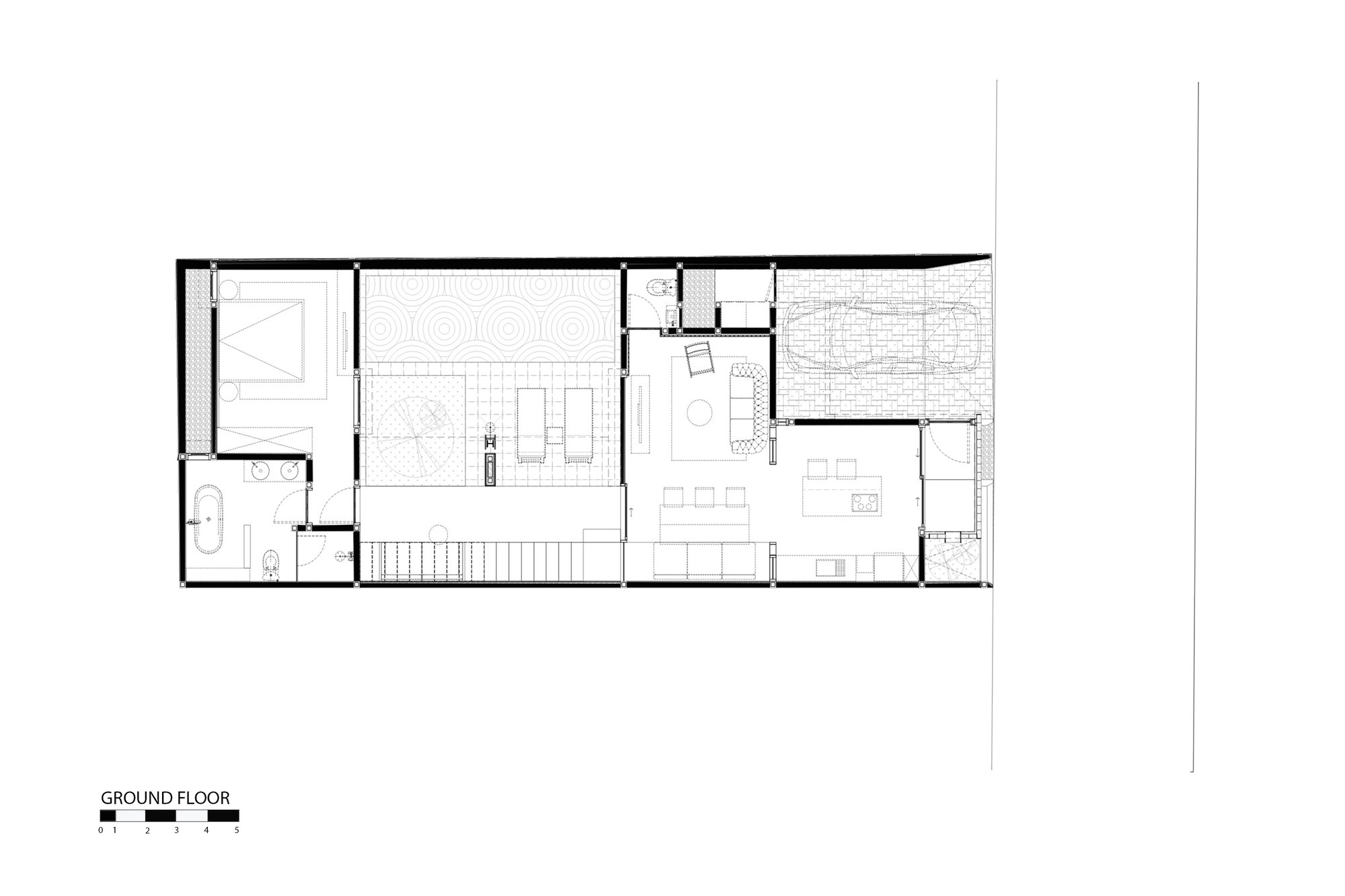
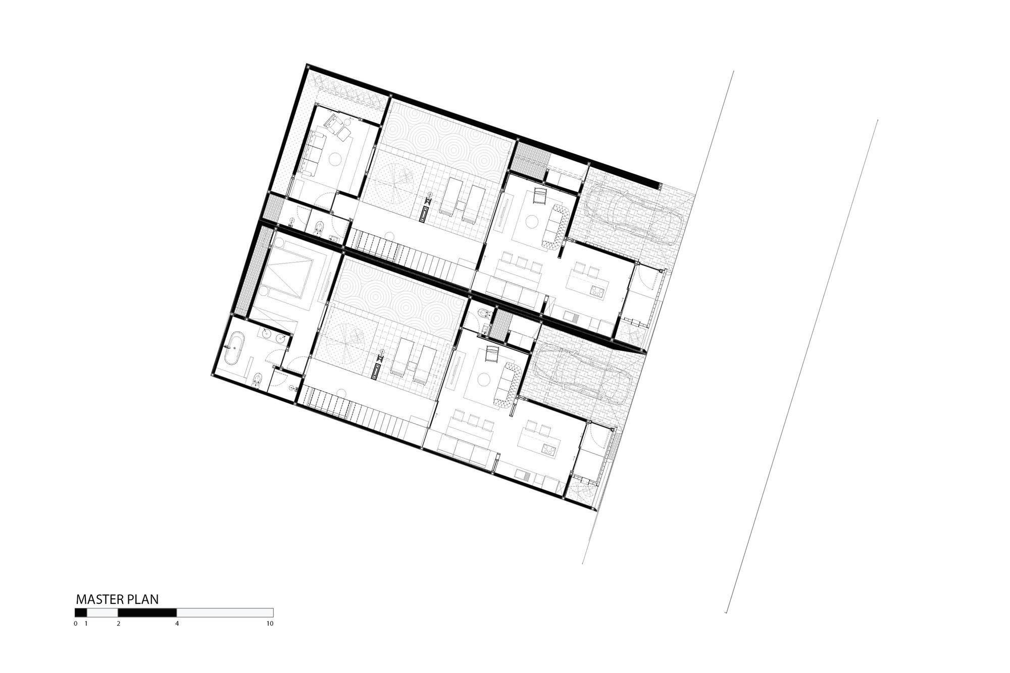
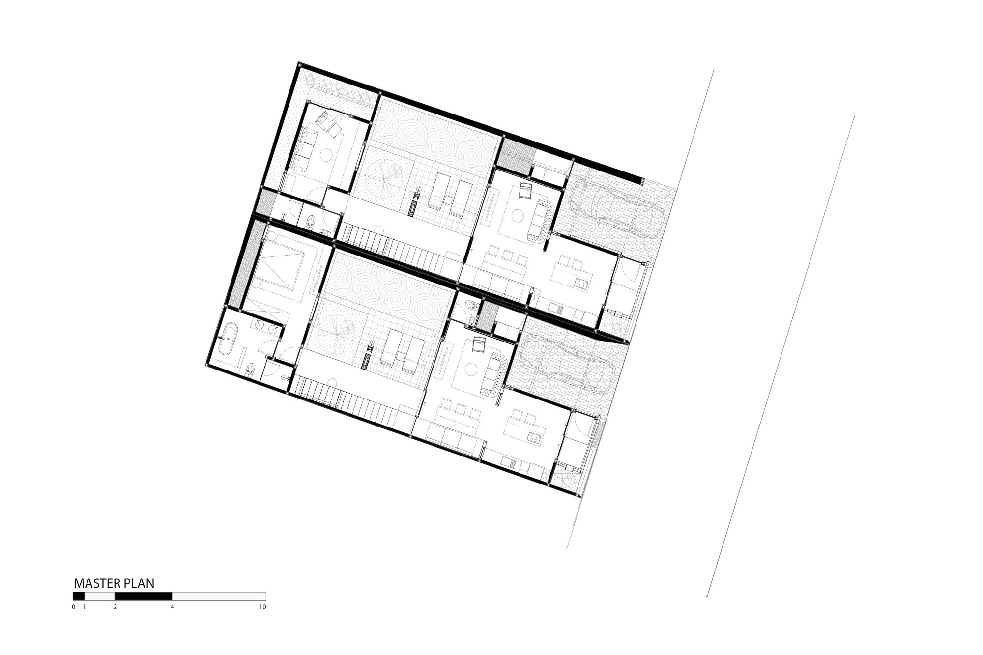
150㎡ 작은 대지 위에 두 개 층을 쌓아 올렸다. 총 건축면적은 190㎡. 공간은 열림과 닫힘, 기능과 감정 사이에서 균형을 이룬다. 집으로 들어서는 경험부터 이 의도가 드러난다. 집에 들어서면 가장 먼저 보이는 것은 유리 블록으로 둘러싼 작은 현관이다. 이 공간은 위가 열려 있어 하늘이 보인다. 낮에는 햇빛이 스며들고 비 오는 날에는 빗방울이 떨어지기도 한다. 집에 완전히 들어서기 전, 잠시 하늘과 날씨를 몸으로 느낀다. 인도네시아 주택에서 흔히 보는 거실 대신, 이곳에서 가장 먼저 만나는 공간은 주방이다. 작은 아일랜드 카운터가 있는 주방. 형식적인 환대 대신 일상적 편안함을 택한 것이다. 단기 숙박시설에서는 보기 드문, 자연스러운 대화를 이끄는 구성이다.
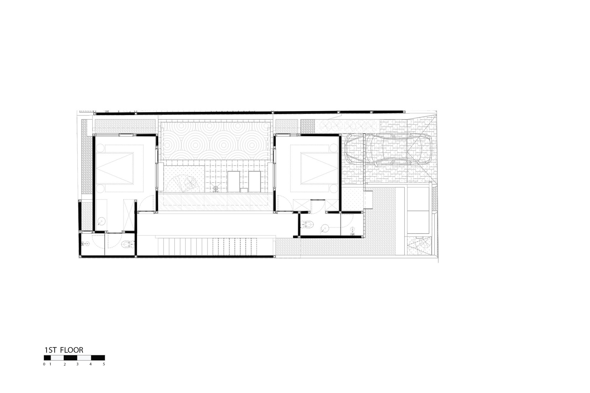
주방을 지나면 식당과 거실이 차례로 이어진다. 두 공간 사이에는 목재와 홈 파인 유리로 만든 반투명 칸막이가 서 있다. 이 칸막이는 영역을 나누면서도 시선과 공기는 막지 않는다. 경계가 흐려진 덕분에 각 방은 구분되지만 단절되지 않고, 빛과 공기가 자유롭게 통과한다. 집 한가운데에는 수영장이 있는 내부 중정이 자리한다. 한옥의 마당처럼 집 안쪽에 마련한 이 야외 공간은 기능적으로도 감정적으로도 이 집의 핵심이다. 중정은 앞쪽 공용 영역과 뒤편 및 위층 침실을 이어준다. 수영장 옆에 놓인 계단은 위아래 층을 잇고, 집 안을 이동할 때마다 야외를 거치도록 이끈다.
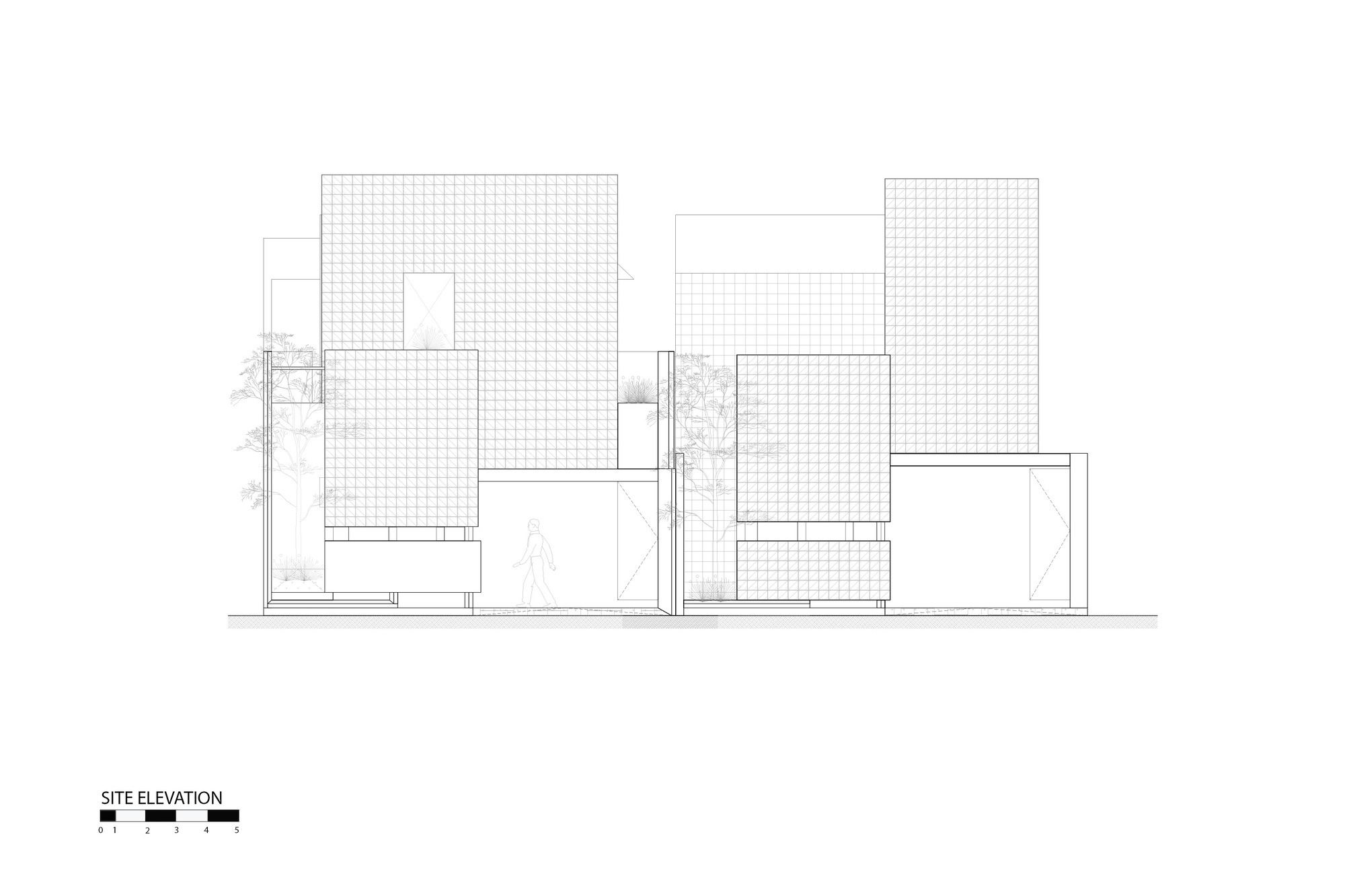
건축은 내부 구성만으로 끝나지 않는다. 외부는 명확하고 기하학적이다. 유리 블록이 이 건물의 얼굴을 만든다. 이 재료는 불투명함과 호기심을 동시에 만들어낸다. 유리 블록 표면은 안을 직접 보지 못하게 가리면서도, 어렴풋한 사람의 그림자는 내비친다. 숨김과 노출 사이의 긴장. 이 긴장이 파사드를 지키면서도 드러내는 얼굴로 만든다. 설계는 발리 렌탈 빌라에서 흔히 보는 열대풍 과장을 거부한다. 대신 절제와 재료의 솔직함을 택했다.
시팟 앤 사우 빌라의 모든 결정은 고요함과 소속감을 이끌어내려 한다. 작은 부지임에도 집은 넓게 느껴진다. 수직으로 켜를 쌓고, 빛을 걸러 들이고, 초록과 하늘을 끊임없이 시선에 담았기 때문이다. 그래서 이곳은 단순한 임대 숙박이 아니라 의미 있는 공간 경험이 된다. 가장 화려한 형태의 럭셔리가 아니라 빛과 질감과 시간이 만드는 조용한 일상의 리듬, 그 고요한 편안함이 이곳을 채운다.
Write by Claude & Jean Browwn






























Located in the vibrant neighborhood of Bali, Sipat & Sauh Villa redefines the idea of a rental property by bringing the intimacy and warmth of a private home into a hospitality setting. The client's brief was simple yet challenging: to design a pool villa for rent that feels deeply personal—"homey" while still making a strong architectural statement. The design began with an exploration of what was missing from most rental villas on the island: the sense of familiarity, softness, and spatial intimacy that makes a house feel lived in rather than staged.
Built on a compact 150-square meter site, the villa unfolds across two levels with a total floor area of 190 square meters. The spatial narrative balances openness with privacy, and functionality with emotion. The entry procession sets the tone for this experience. Visitors are greeted by a small foyer framed by glass blocks and left intentionally open to the sky. Sunlight filters through during the day, while rain occasionally seeps in, creating a tactile and poetic moment before one fully steps inside. Instead of the typical living room that usually marks the entrance in Indonesian homes, the first space encountered is a kitchen with a modest island counter—an unconventional gesture that replaces formality with intimacy. This layout subtly encourages interaction and a sense of domestic comfort rarely found in short-stay accommodations.
Beyond the kitchen, the dining and living areas are arranged as an interconnected sequence, separated by a translucent partition made of timber and fluted glass. The blurred boundary defines each room without severing its visual or spatial connection, allowing light and air to flow freely. At the heart of the villa lies an inner courtyard with a swimming pool—an open air core that anchors the plan both functionally and emotionally. This courtyard mediates between the public zone at the front and the private sleeping areas at the back and upper level. The stair beside the pool provides a vertical link while reinforcing the idea that movement through the house should always engage with the outdoors.
The architecture extends beyond its internal organization. The exterior embodies a clear, geometric expression defined by the use of glass blocks a material chosen for both its opacity and its ability to intrigue. The surface shields the interior from direct view while revealing faint silhouettes, inviting curiosity from the outside without compromising privacy. This interplay between concealment and exposure becomes a defining feature, making the facade both protective and expressive. The design resists the conventional tropical aesthetics commonly seen in Bali's rental villas, opting instead for restraint and material honesty.
Every decision in Sipat & Sauh Villa is intended to evoke calmness and belonging. Despite its small footprint, the house feels expansive through vertical layering, filtered light, and constant visual connections with greenery and sky. The result is a compact urban retreat that transforms a simple rental property into a meaningful spatial experience not about luxury in its grandest form, but about quiet comfort and the gentle rhythm of living with light, texture, and time.
from archdaily


