"건축은 공간 속에서 의지를 표현하는 예술이다."— 루이스 칸 (Louis I. Kahn)

![]() |
![]() |
![]() |
Perkins&Will-HVM Maya
자연을 품은 건축적 선언
고급 건축이 균질화의 덫에 빠지기 쉬운 시대다. 퍼킨스앤윌 상파울루의 신작은 그 흐름 속에서 하나의 전환점으로 떠오른다.
HVM 인코포라도라를 위해 설계된 마야는 브라질 중서부에서 '잘 산다는 것'의 의미를 새롭게 정의하는 건축적 선언이다. 고급 주거와 자연 사이의 경계를 지우는 것. 노출 콘크리트와 목재로 판타나우 습지의 생동감을 건축의 언어로 번역하는 것. 이 프로젝트는 바로 그 두 가지 목표에서 출발한다.
건물 안에 살면서도 자연과 하나된 집의 감각을 잃지 않는 것 — 마야의 본질적인 전제다. 아폰수 페나 대로, 캄푸그란지 최대의 도시 공원인 나소에스 인디헤나스 공원 바로 앞에 자리한 이 프로젝트는 두 가지 답을 동시에 건넨다. 장소에 대한 건축적 응답이자, 새로운 거주 방식에 대한 제안. 공원을 건축 안으로 끌어들여 풍경과 물성, 일상 사이의 경계를 지우는 이 전략은 설계의 첫 순간부터 한 번도 흔들리지 않았다.
장소가 설계를 결정할 때
이 선언의 출발점은 장소 그 자체다.
일사량이 강한 도시에서 열환경 성능은 설계의 결정적 출발점이었다. 설계팀은 수직과 수평의 모든 동선을 서측 파사드에 집약했다. 이 동선의 벽은 자연스럽게 기후 완충벨트가 되었고, 아파트는 가장 좋은 방위를 향해 열렸다. 각 세대의 발코니에는 빛과 열을 걸러주는 루버 차양, 브리즈솔레이유가 설치되었다. 이 판단은 단순히 쾌적함을 위한 것이 아니었다. 그것은 타워의 최종 형태와 건축적 정합성을 함께 결정한 근본적인 논리였다.
도시에서 자연으로 — 통과의 감각
이 전략은 공간의 서사로 이어진다.
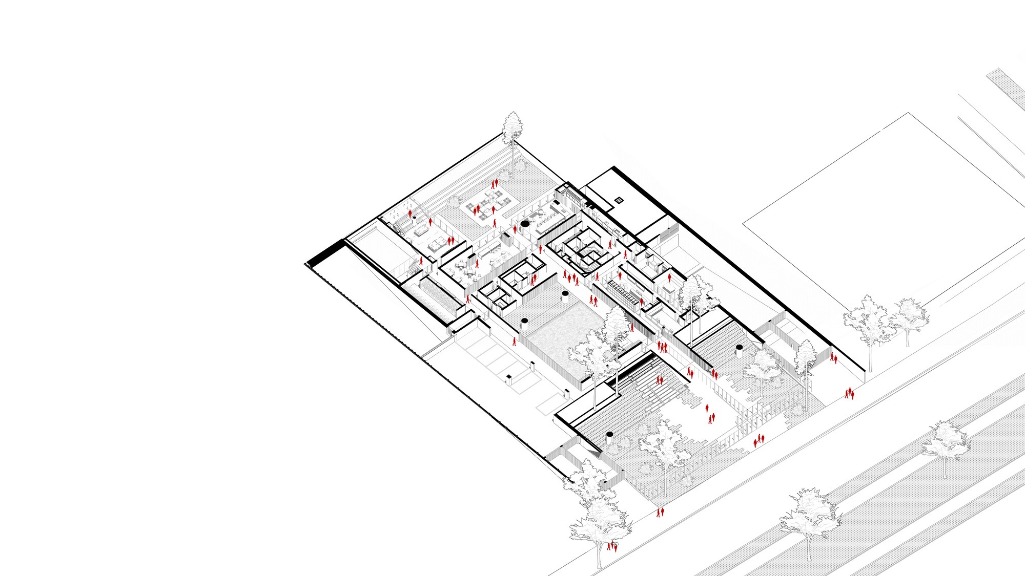
공용 진입부는 하나의 조각적 공간 시퀀스다. 거대한 캐노피가 먼저 보행자를 부드럽게 불러들인다. 안으로 들어서면 층을 관통하는 보이드가 열리고, 빛으로 가득 찬 통로가 이어진다. 그늘과 빛의 켜가 교차하고, 시선은 저 깊은 곳을 향해 열린다. 단순한 진입이 아니다. 도시의 밀도에서 자연의 소우주로 건너가는, 통과의 감각이다.
진입부의 풍성한 식재와 수반(水盤), 석재와 목재와 노출 콘크리트의 조합이 이 분위기를 단단히 붙잡는다. 물성의 촉감과 빛의 결, 자연의 층위가 차례로 쌓이며 공간은 하나의 여정처럼 펼쳐진다. 소재 하나하나는 미적 선택이기 이전에, 시간을 견디는 묵직함과 체온이 느껴지는 따뜻함, 그리고 거짓 없는 물성을 전달하기 위해 고른 것들이다.
빛과 녹음이 만드는 공동의 풍경
진입의 감각은 공용부에서 더욱 깊어진다.
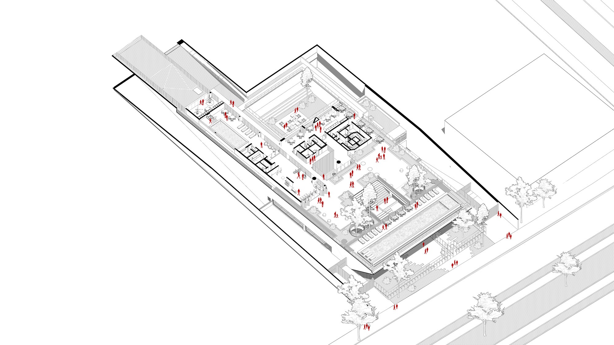
공용 공간은 레벨별로 나뉘어 프라이버시와 동선, 사용의 다양성을 위한 고유한 논리를 갖는다. 욕실과 설비는 하나의 서비스 코어에 모아두었다. 덕분에 공간은 더 넓게 열리고, 사람들이 자연스럽게 모이는 영역이 넉넉히 생겨난다. 슬래브에 뚫린 개구부를 타고 내려온 자연광은 하루를 따라 이동하며, 그늘의 형태와 공간의 부피감, 식재의 결을 시시각각 새로운 풍경으로 바꾸어놓는다. 공간은 멈춰 있지 않다. 빛과 함께 숨을 쉰다.
수영장과 라운지, 사우나와 피트니스 공간은 단순한 시설 목록이 아니다. 이 집의 주인들이 서로를 알아가고, 공간을 자신의 것으로 품어가는 — 살아있는 공동체적 경험을 위한 무대다.
건축은 거주될 때 완성된다
이 모든 설계의 완성은 결국 거주자의 손에 달려 있었다.
입주 후 거주자들은 자발적으로 공간을 촬영하고, 영상을 만들고, 그것을 나누기 시작했다. 이 단순한 행위가 모든 것을 말해준다. 이 프로젝트가 정체성과 귀속감, 그리고 진정한 소속감을 만들어냈다는 가장 솔직한 증거다. 건축은 비로소 거주될 때 완성된다.
장소, 개념, 실행이 가치가 되다
마야의 가치는 부동산 수치만으로 설명되지 않는다.
공원 앞 대지를 선택한 것은 HVM 인코포라도라의 전략적 결단이자, 지역의 기준을 높이겠다는 책임의 표명이었다. 뚜렷한 건축적 정체성을 원하는 시장의 목소리에, 장소와 개념과 실행이 함께 응답한다. 건축과 개발 전략은 여기서 하나로 수렴한다.
희소한 입지, 견고한 개념, 섬세한 실행 — 이 세 가지가 만나는 곳에서 도시적·문화적·자산 가치가 동시에 생성된다.
Write by Gemini & Jean Browwn





































In an era where luxury architecture often succumbs to globalized repetition, the new development by Perkins&Will São Paulo in Campo Grande (MS) emerges as a turning point.
Developed for HVM Incorporadora, Maya is an Architectural Manifesto that boldly redefines what it means to live well in the Brazilian Midwest. The project aims to dissolve the boundary between luxury and nature, transforming exposed concrete and wood into a vibrant celebration of the potency of the Pantanal.
The HVM Maya is born from an essential premise: living in a building without renouncing the sensory experience of living in a home integrated with nature. Located on Avenida Afonso Pena, in front of the Parque das Nações Indígenas — the largest postcard of Campo Grande — the project is, simultaneously, a response to the territory and a proposal for a new way of inhabiting. From the outset, the strategy was clear: bring the park into the architecture, dissolving limits between landscape, materiality, and daily life.
The implantation precisely explores the relationship with the surroundings. In a city with high temperatures, thermal performance became a critical starting point. We organized all vertical and horizontal circulation on the west facade, which receives the most sunlight throughout the day; this operation transforms circulation into a climate protection belt, while the apartments, oriented to the best directions, receive brise soleils that filter light and heat. This technical guideline was decisive for the final volume of the tower — not only for comfort but for architectural coherence.
The social access is treated as a sculptural spatial sequence: a large awning invites pedestrians and opens the building to the park, while internal voids and illuminated tunnels create breathing spaces, shadows, visual permeability, and a sense of crossing — almost a passage from the urban to a natural microcosm. The abundant landscaping, the water mirrors at the entrance, and the combined use of stone, wood, and exposed concrete reinforce this atmosphere of welcome, enhancing the idea of a guided visit through textures, light, and nature. Each material was chosen not only for aesthetics but for its ability to communicate permanence, temperature, and authenticity.
In the common areas, we organized leisure programs at different levels, creating a functional logic that values privacy, flow, and diversity of uses. A single support spine serves bathrooms and services, freeing up useful space for social interaction and reinforcing the clarity of the path. Natural light — captured through strategic openings in the slab — transforms these spaces throughout the day, always revealing new relationships between shadow, volume, and vegetation. Between the pool, game rooms, lounges, sauna, and fitness areas, the goal was never simply to offer amenities, but to build genuine social experiences, environments where residents recognize themselves, interact, and make them their own.
This sense of appropriation became clear right after the handover: residents spontaneously began recording videos, taking photos, and sharing the space — an unequivocal indicator that the project generated identification, symbolic comfort, and a sense of belonging. After all, architecture is only complete when inhabited.
Maya also fits into a particular market context. By choosing the land in front of the park, HVM Incorporadora took on the responsibility of producing a reference building, capable of elevating the local standard and engaging with a growing demand for high end developments with a strong architectural identity. Here, architecture and product strategy go hand in hand: rare location, solid concept, and sensitive execution convert into urban, cultural, and real estate value.
from archdaily
'House' 카테고리의 다른 글
| * 지그재그 평면이 숲을 꿰뚫다 [PL.architekci ] S House (1) | 2026.02.24 |
|---|---|
| * 비움으로 빚어낸 빛의 서사 [ Leckie Studio ] Lantern House (0) | 2026.02.11 |
| * 경계를 허물고 안으로 열린 집 [ TIMM Architecture ] Inverted House (0) | 2026.02.09 |
| * 비버리힐즈의 빛, 대지에 박힌 원석 [ Donaldson + Partners ] Fractal-Facade House (0) | 2026.02.04 |
| * 빛, 물성, 그리고 조각된 비움" [ P•A•N ] Casa LL (0) | 2026.02.03 |


