건축은 형태에 관한 것이 아니다. 그것은 사람에 관한 것이다. - 리처드 로저스

![]() |
![]() |
![]() |
Pedevilla Architects-Education Center Kössen
마을의 일상을 잇는 새로운 구심점
쾨센 마을 중심부의 북쪽 가장자리, 3면 스포츠 홀과 요양원으로 이어지는 길목은 마을의 일상이 가장 밀도 있게 모이는 장소입니다. 시청과 교회, 지역 극장 등 사람들에게 친숙한 공동체 생활의 중심지 사이에 이 모든 장소를 조용히 연결하는 새로운 건물이 들어서고 있습니다. 바로 쾨센 교육 센터입니다.
세대를 연결하는 교육의 풍경
이곳은 초등학교, 유치원, 영유아 보육 시설, 방과 후 교실, 그리고 체육관을 한 지붕 아래 아우릅니다. 단순히 기능적으로 시설을 한데 모은 것처럼 보일 수 있습니다. 하지만 이는 세대를 하나로 잇는 교육의 풍경을 만들겠다는 강력한 의지를 보여줍니다. 배움과 놀이, 일과 휴식, 다가옴과 머무름이 이 공간 안에서 자연스럽게 교차합니다. 교육 센터는 마을 가장자리의 새로운 구심점이자, 중심부의 공공 생활과 주변 주거 지역을 잇는 단단한 매개체로 자리 잡습니다.
끊임없는 대화로 빚어낸 과정
이 건물의 탄생은 밀실에서 이루어진 단선적인 과정이 아닙니다. 장소와 사용자, 그리고 건축을 짓는 사람들 사이에서 끊임없이 이어진 대화의 결과입니다. 프로젝트 개발은 의도적으로 여러 단계에 걸쳐 진행되었습니다. 초기에는 사용자 워크숍을 통해 다양한 요구사항과 일상의 시나리오를 수집했습니다. 2022년 8월 설계 공모 당선을 시작으로 건축 허가와 기공식, 그리고 상량식을 거쳤습니다. 마침내 2025년 9월 개관에 이르기까지, 이 모든 과정은 함께 고민하고 성찰해 온 순간들을 오롯이 기록하고 있습니다.
전통의 지혜를 현대적으로 번역하다
시작은 기존 환경에 대한 세심한 관찰이었습니다. 쾨센의 전통 마을과 농가들은 견고하고 차분한 건축적 언어를 들려줍니다. 넓게 처마를 낸 지붕이 건물의 볼륨을 보호하고, 목재 외장재가 묵직한 형태를 규정하며, 발코니는 뚜렷한 수평선을 만들어냅니다. 이러한 시각적 요소들은 단순한 차용을 넘어 교육 센터를 위한 새로운 개념으로 번역되었습니다. 외부로는 견고함과 굳건함을 드러내고, 내부로는 풍부한 분위기와 감각적인 경험을 담아낸 것입니다.
여러 층위로 펼쳐지는 공간의 서사
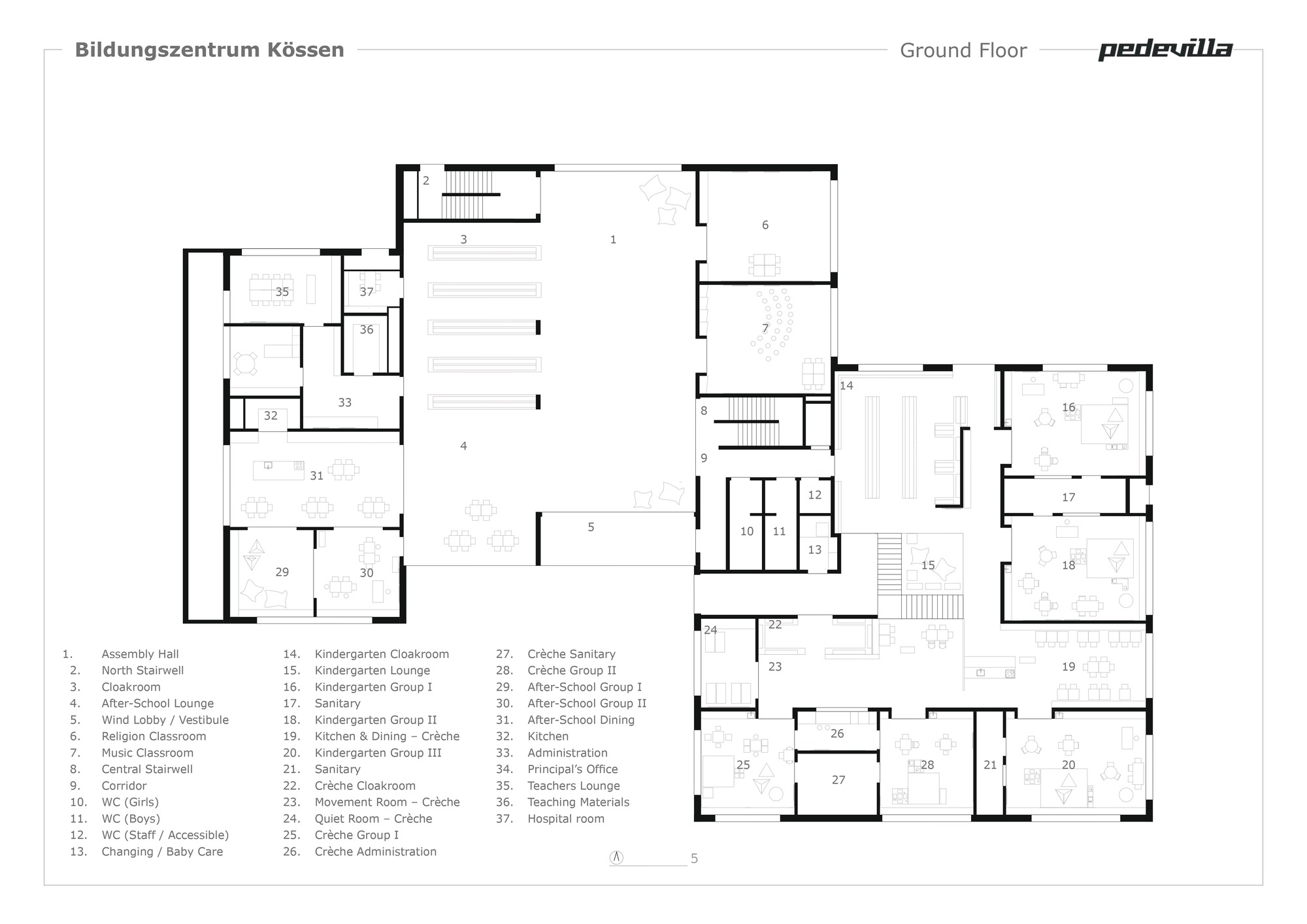
교육 센터는 여러 층위를 이룬 공간의 풍경으로 구상되었습니다. 유치원과 학교, 방과 후 교실은 각각 독립적인 출입구를 두었으며, 지붕이 덮인 공용 앞마당을 향해 열려 있습니다. 이 앞마당은 동선을 나누는 역할뿐만 아니라 건물을 하나로 묶는 진입 공간이 됩니다. 각 건물의 배치는 이러한 서사를 명확히 보여줍니다. 3층 규모의 학교 건물은 기존의 중심축을 연장하며 마을의 경계를 짓습니다. 2층 규모의 유치원은 체육관과 균형을 맞추며, 단층의 방과 후 교실은 주거 지역을 향해 부드럽게 이어집니다.
색상과 소재가 안내하는 내부 경험
건물의 색상 구성은 쾨센 지역의 특성과 긴밀하게 맞닿아 있습니다. 녹색으로 물들인 목재 파사드가 전체적인 기단을 형성하고, 여기에 처마 밑면의 노란색과 붉은색 악센트가 더해집니다. 이 색상들은 공간에 질서를 부여하고 길을 안내합니다. 이러한 건축적 태도는 내부로 일관되게 흐릅니다. 실내 표면과 붙박이 가구 대부분은 지역에서 생산된 천연 소재를 사용했습니다. 가공을 최소화하여 재료 본연의 질감을 훼손 없이 살렸기에, 시간이 흐를수록 자연스럽게 나이 들고 깊이를 더해갈 것입니다. 더불어 전통적인 십자수 패턴을 현대적으로 재해석한 디자인이 건물 전체를 조용히 관통합니다. 이는 사용자에게 길을 안내하는 동시에 이 공간만의 고유한 정체성을 불어넣습니다.
지역 사회의 미래를 품은 보금자리
결국 쾨센 교육 센터는 단순한 기능적 인프라 그 이상입니다. 아이들과 가족들이 겪는 형성기의 감정을 어루만지고 동행하는 정서적 공간을 지향합니다. 지역 사회의 미래를 향한 값진 투자인 셈입니다. 날마다 그리고 해마다, 아이들에게 지식을 전달할 뿐만 아니라 정서와 사회성, 문화적 정체성까지 단단하게 길러주는 든든한 보금자리입니다.
Write by Gemini & Jean Browwn

























At the northern edge of Kössen's settlement core, where the road leads toward the triple sports hall and the residential and nursing home for the elderly, everyday village life becomes particularly concentrated. Between the town hall, the church, and the local theatre – the familiar center of communal life a new building is emerging that quietly seeks to connect all these places: the Kössen Education Center.
Here, primary school, kindergarten, nursery, after school care, and sports hall are brought together under one roof. What at first glance may appear to be a functional consolidation is in fact a strong statement: a commitment to an educational landscape that connects generations, where learning, playing, working, arriving, and lingering naturally interweave. The education center positions itself as a new focal point at the edge of the village, as a link between the public life of the center and the surrounding residential neighborhoods.
The creation of this building is not a linear process behind closed doors, but a continuous dialogue: between the place, the users, and the people who build it. Project development is deliberately conceived as a sequence of phases. Initially, user workshops were held to collect needs and everyday scenarios. Milestones mark moments of collective reflection: the competition decision on 30 August 2022, planning approval on 30 May 2023, the groundbreaking ceremony on 16 October 2023, the topping-out ceremony on 8 August 2024, and the opening on 26 September 2025.
At the beginning stands an attentive look at what already exists: the traditional village and farmhouses of Kössen tell of a robust and calm way of building. Wide overhanging roofs protect the building volumes, wooden cladding defines the masses, and balconies create distinctive horizontal lines. Small, carefully placed openings cut precisely into the façades. These images are not simply adopted, but translated into a concept for the education center: robustness and groundedness on the outside, atmosphere and sensory perception on the inside.
The education center is conceived as a layered spatial landscape. Kindergarten, school, and after school care each have their own entrances, all oriented toward a shared, covered forecourt. This forecourt functions not only as a distributor, but as the common address of the building. The placement of the building volumes tells this story: the three-story school building extends the existing main axis and marks the edge of the settlement structure, the two-story kindergarten forms a balanced relationship with the sports hall, and the single-story after-school care building mediates toward the housing area.
The building's color scheme is closely linked to Kössen. The green stained wooden façade forms the base, complemented by yellow soffits and red accents. Color becomes a means of order and orientation.
This attitude continues consistently in the interior. Almost all surfaces and built in elements are made from natural, regional materials, used in as raw and authentic a manner as possible. They are explicitly allowed to age and mature. A contemporary reinterpretation of the traditional cross-stitch runs through the entire building as a quiet yet consistent thread, functioning as wayfinding, orientation, and identity.
The Kössen Education Center is far more than a functional infrastructure. It understands itself as an emotional space that accompanies the formative early years of children and their families. The Kössen Education Center thus represents an investment in the future of the community: a building that conveys not only education, but also strengthens emotions, social skills, and cultural identities – day after day, year after year.
from archdaily


