
![]() |
![]() |
![]() |
![]() |
AGi Architects- Wafra Living
에이지아이 아키텍츠
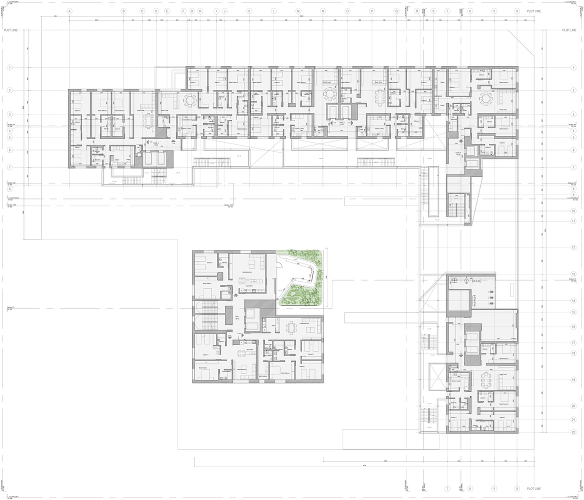
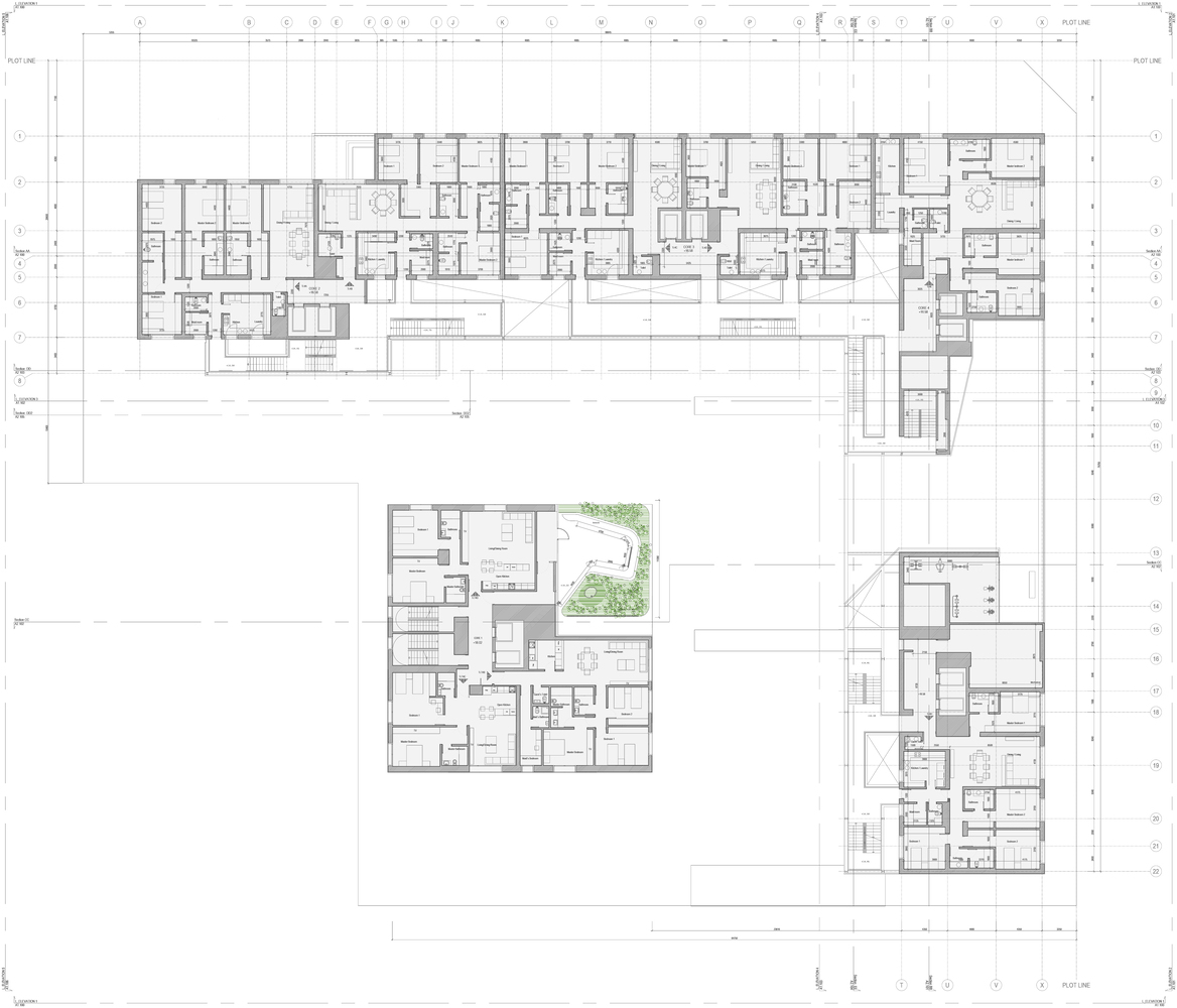
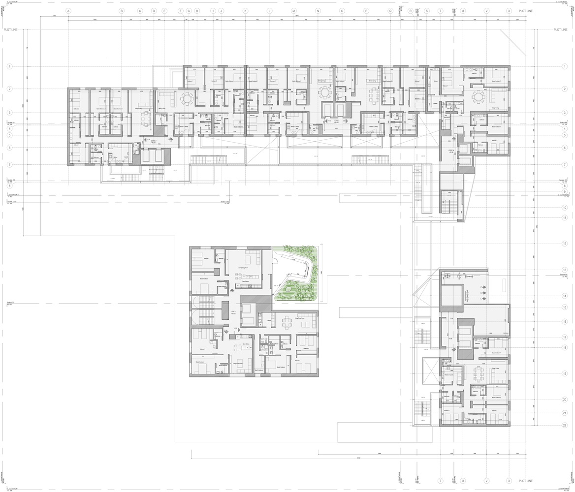
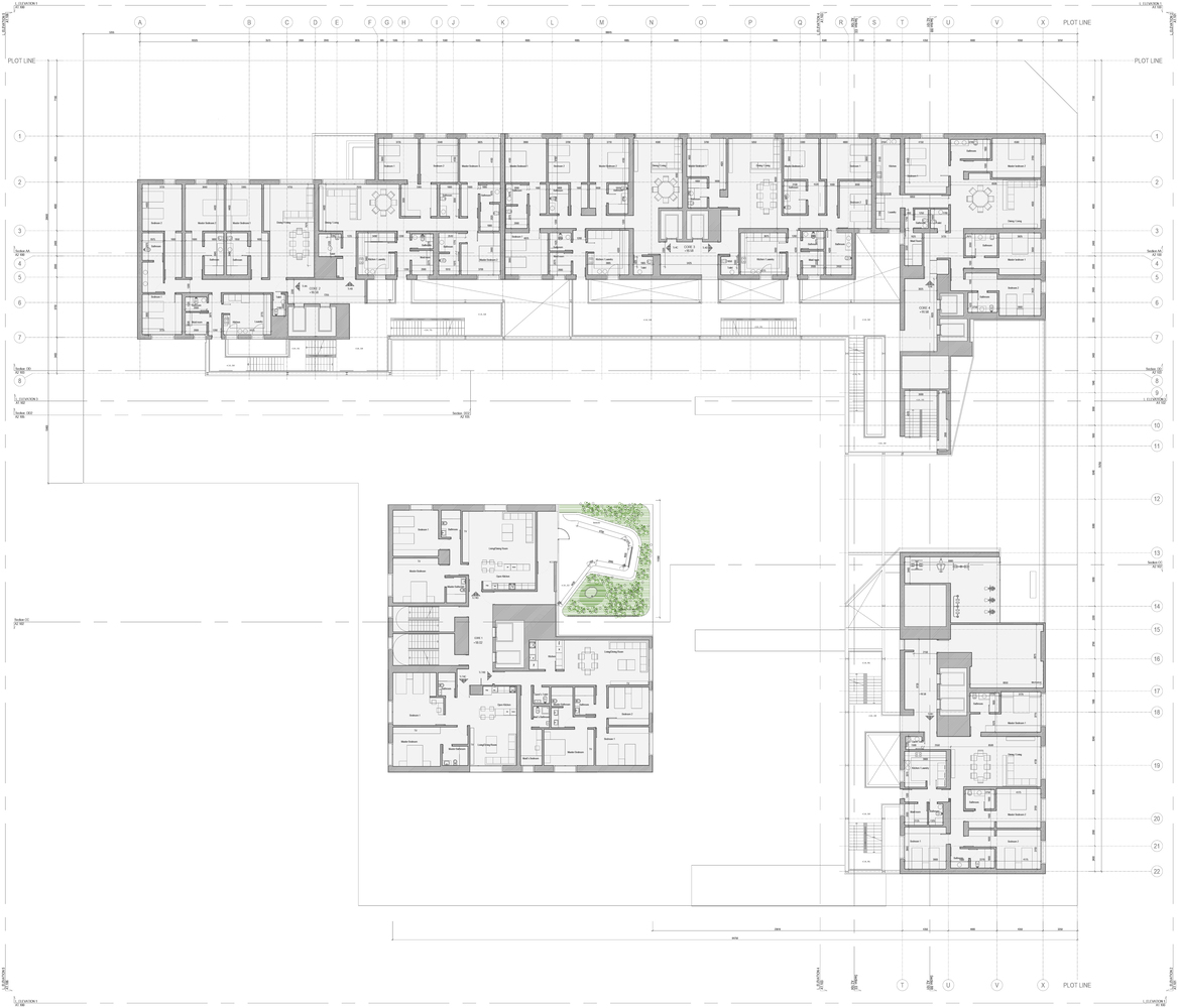
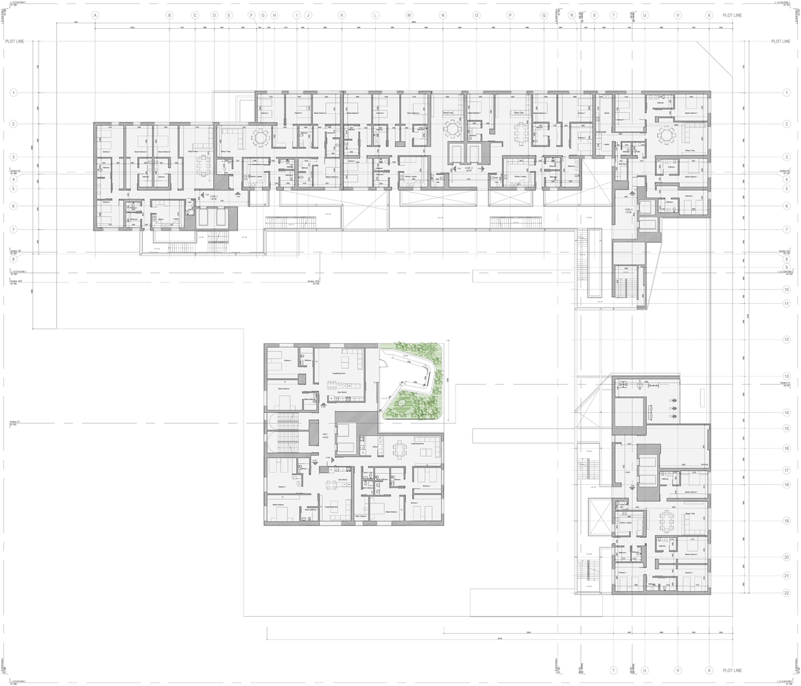
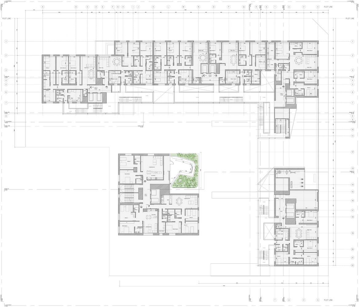
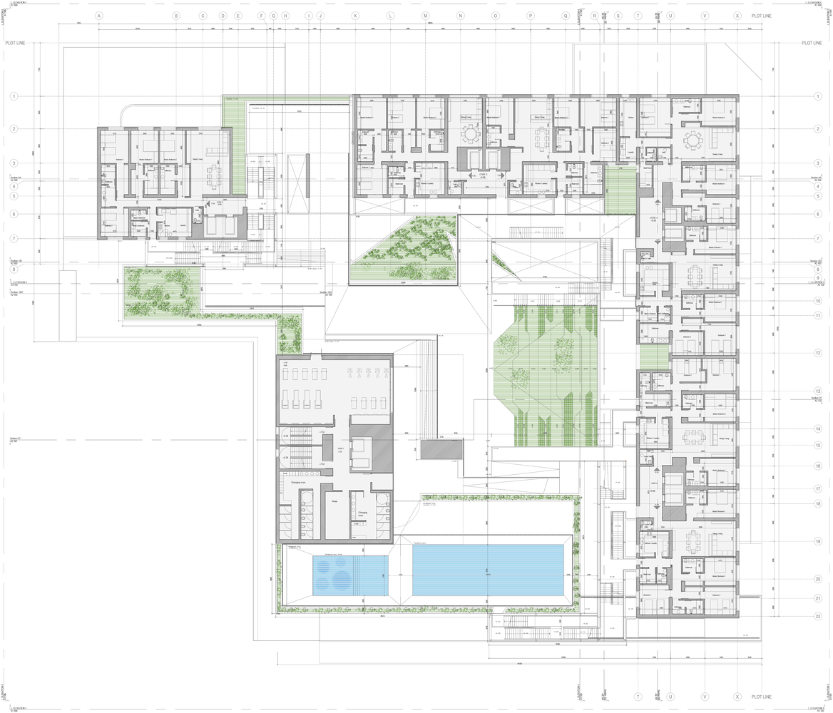
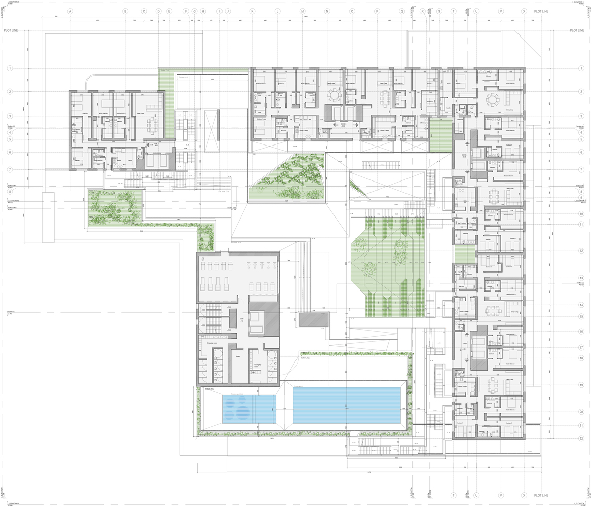
Wafra Living‘s design by AGi architects proposes an innovative housing organization in Kuwait, a new type of multi-family living as a social response to housing needs in the country. The design is guided by the requirements contemporary life while balancing traditional norms, and reintroduces urban life to the building level. Wafra Living is designed as a high-rise building set back from the street, with an L-shaped building defining the street edge. It is conceived to maximize privacy within the community, whilst providing ample natural light and usable indoor and outdoor common spaces. Cuts have been made on the ground floors of the front building to provide better views for the tower apartments.








agi가 설계한 공동주거는 지금 쿠웨이트에서 일어나는 다양한 주거수요에 대한 사회적 대응으로 혁신적인 주거공간을 제안한다. 전통적인 규범과 질서를 유지지하는 동시에 현대적인 생활방식을 반영한 결과물로 도시생활의 가이드라인을 준수합니다. 풍부한 자연 채광과 사용 가능한 실내 및 실외 공용 공간을 제공하면서 커뮤니티 내에서 프라이버시를 극대화하도록 고안되었습니다.
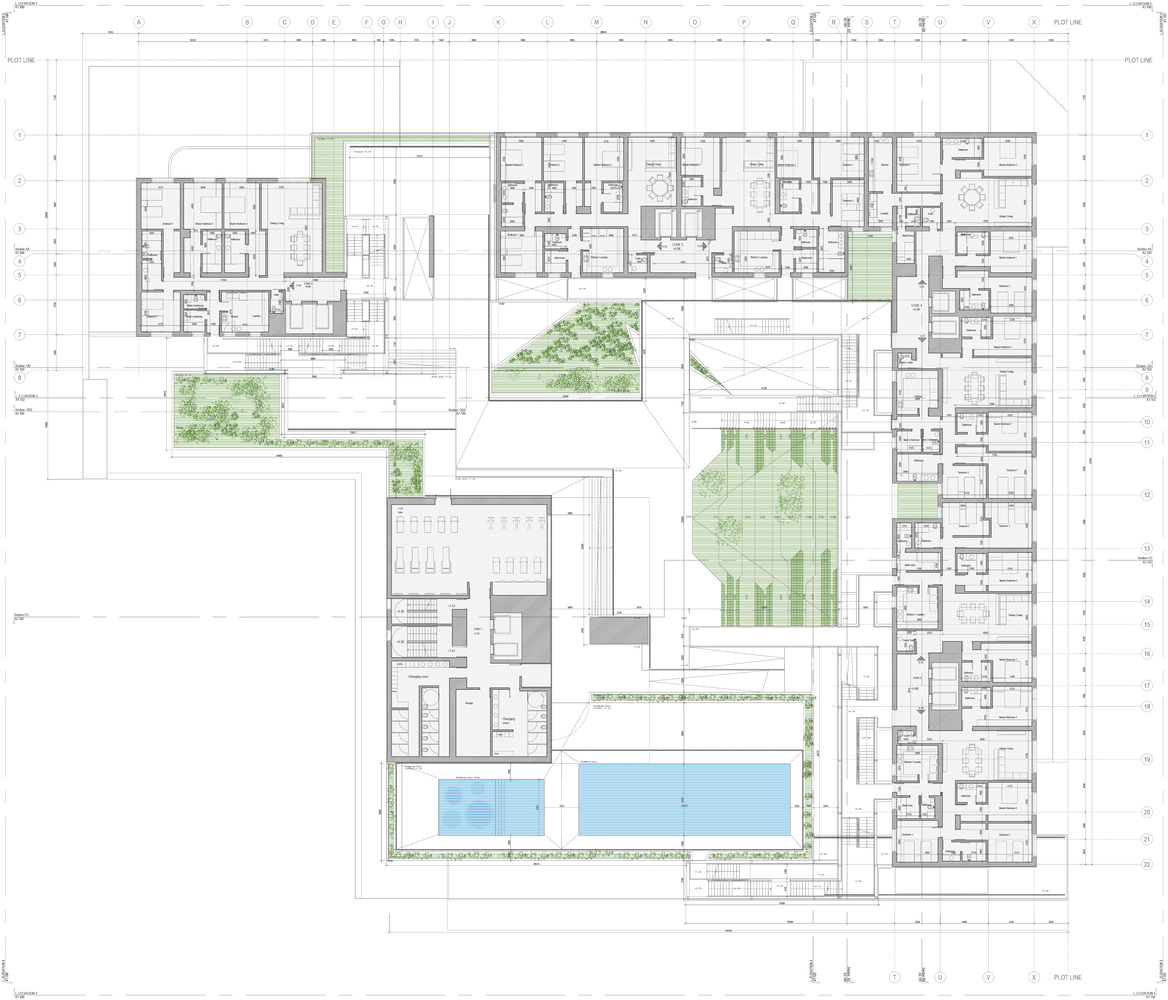
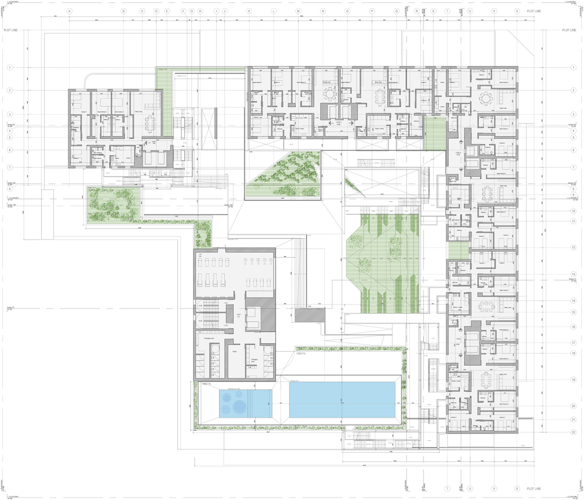
The complex combines at different levels domestic and collective scales that are both private and public. The architecture defines the edge of the block and creates a series of open spaces within the plot for the community, with various uses. The building cantilevers off the ground to draw street life into the building. The ground floor level opens up to the neighborhood with accessible retail facilities on the street level, integrating into the urban fabric, and links up to a high square through an inclined, stepped garden. The project is composed of 16 types of living typologies -ranging from two bedroom to four bedroom duplex- distributed across five cores to cater to a variety of tenants.
The project public amenities include multiple gardens, gyms, pools, kids playing areas, squash court, public terraces and community multi-purpose space. A “High Square” is created. It acts as a large-scale, private communal area for all tenants that includes various landscaped pockets, pools, and access to the gym to enjoy leisure activities in a more private setting.
The building envelope provides a safe environment for the inhabitants, protecting them from the hustle and bustle of the street. From this level, one can see an aluminum mesh: a double skin that climbs the internal facade containing the emergency routes, and conceals the various service spaces that do not relate to the public. Behind the lattice are the five cores, which connect the residential floors.
Passive design techniques and innovative materials are used to maximize thermal insulation and minimize light consumption, also enhancing ventilation of the building, avoiding the “heat-island” effect that occurs in this type of urban development. With the pandemic, typologies like this one have taken on a renewed interest as they offer a variety of ‘communal’ and public space and how crucial it is to our well-being as a society. Wafra Living is socially driven, environmentally responsive and behavior-conscious. This development has set an example of how to approach urban issues and redefining areas; thereby becoming a catalyst for the city's future growth.





from archdaily
'House' 카테고리의 다른 글
| *빌라 추쿠바 [ Naoi Architecture & Design Office ] Villa Tsukuba (0) | 2021.12.03 |
|---|---|
| *로프트 하우스 [ Arrova ] Loft A (0) | 2021.12.02 |
| *스플릿 우드 레벨 [ Yabashi Architects ] House in Shimo-ezu (0) | 2021.11.25 |
| *스위스 대사관저 인 멕시코 [ FHV + Blancasmoran ] House of the Swiss Embassy in Mexico City (0) | 2021.11.23 |
| *빅 캐노피 하우스 [ Shamsudin Kerimov ] House in Repino (0) | 2021.11.12 |



