
![]() |
![]() |
![]() |
ABK Architects-North Dock Office Building
강력한 규칙이 만드는 건물의 입면은 합리적인 건축환경을 표현하는데 사용된다. 규칙을 통해 정렬되는 건축어휘는 세로와 가로가 만나는 방법으로 바닷가에서 마주한다.
























If one was to identify a specific starting point for the design of North Dock, it may have been Fra Carnavale’s ‘Image of The Ideal City (1484), or perhaps it was the Ca’ Loredan on the Grand Canal, Venice…
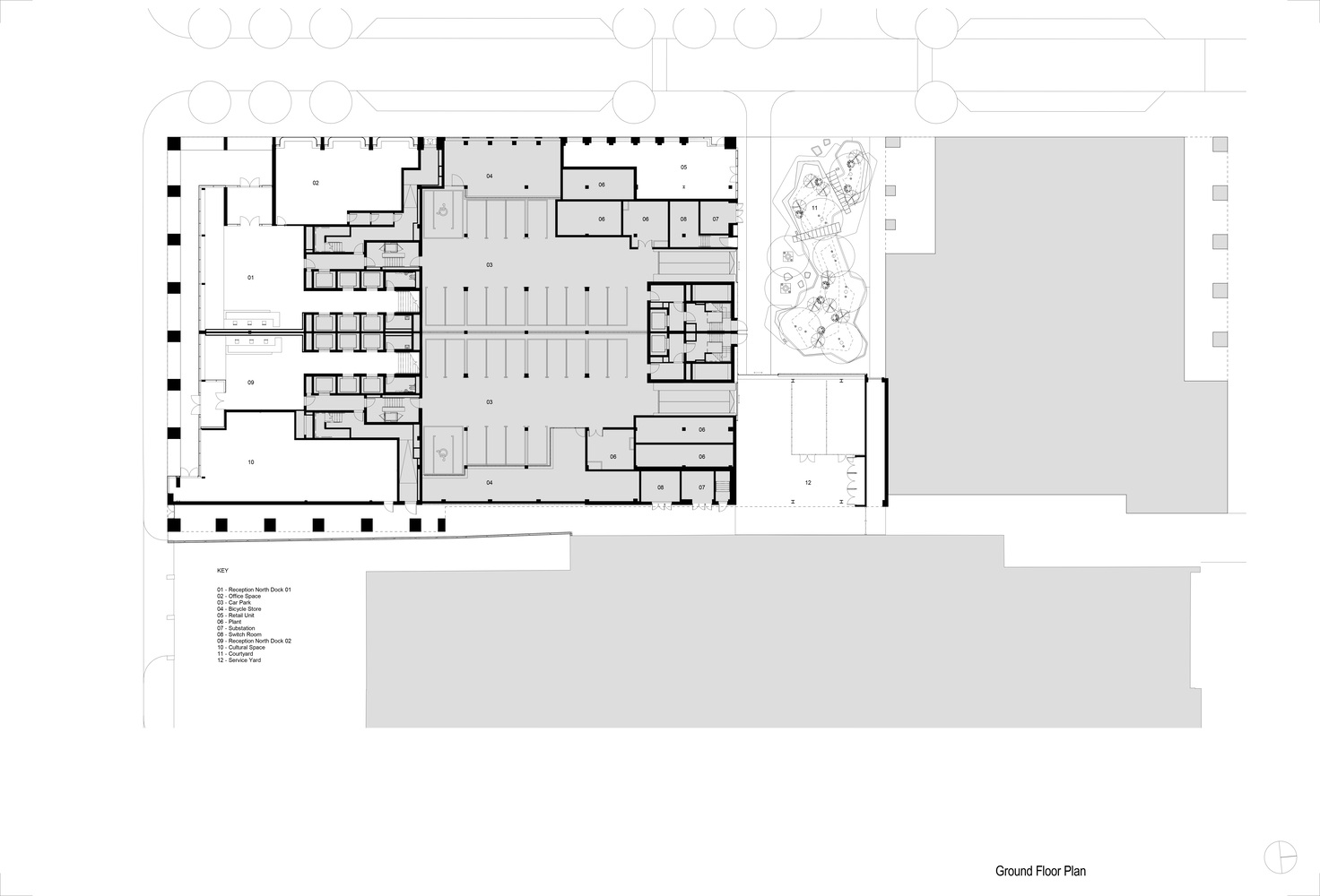
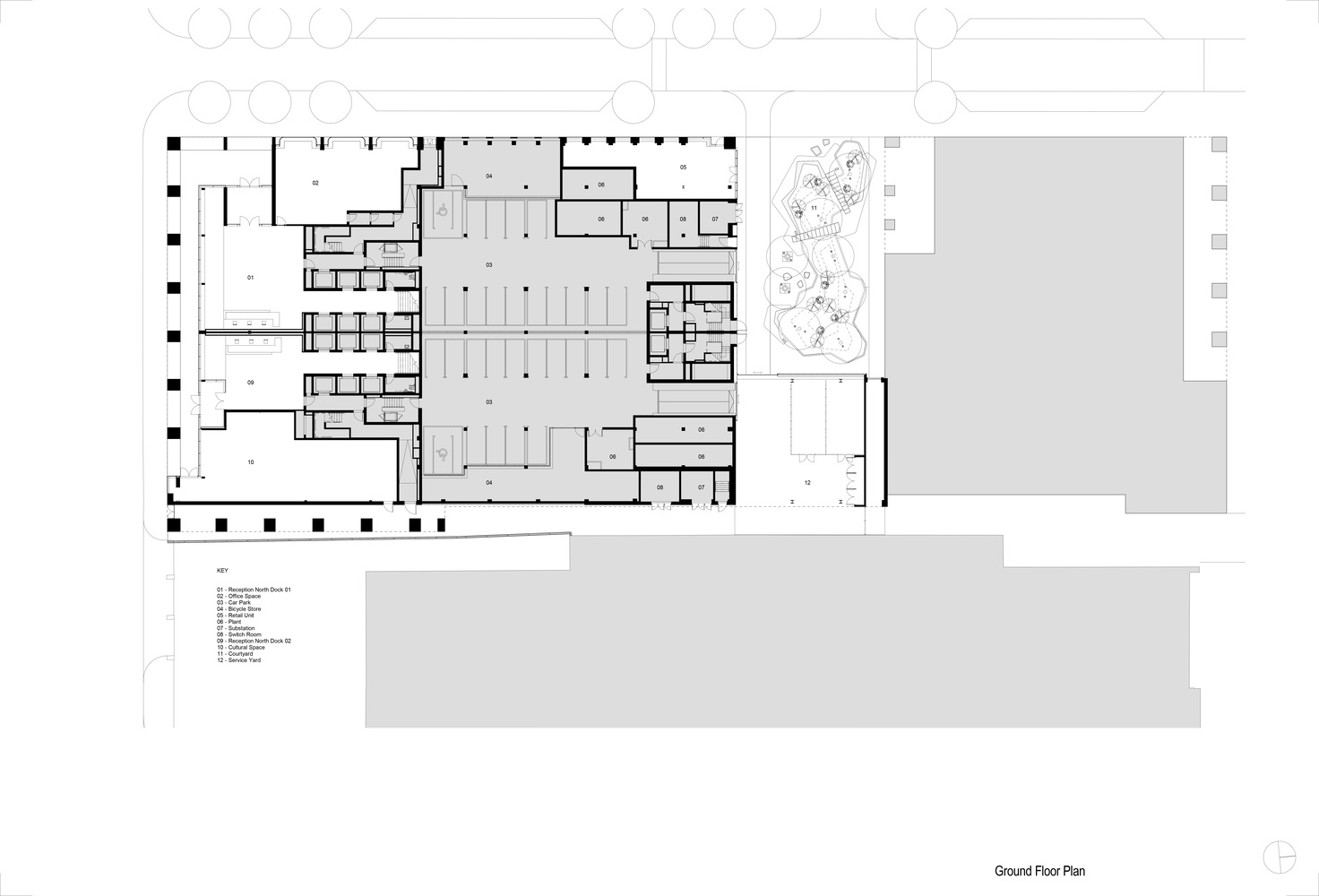
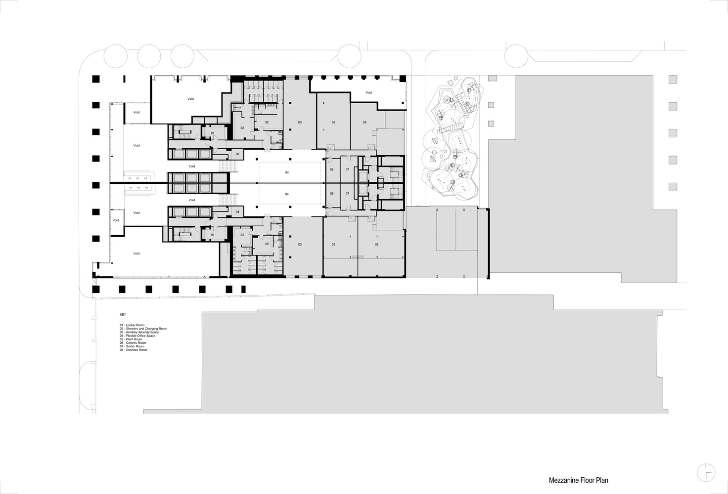
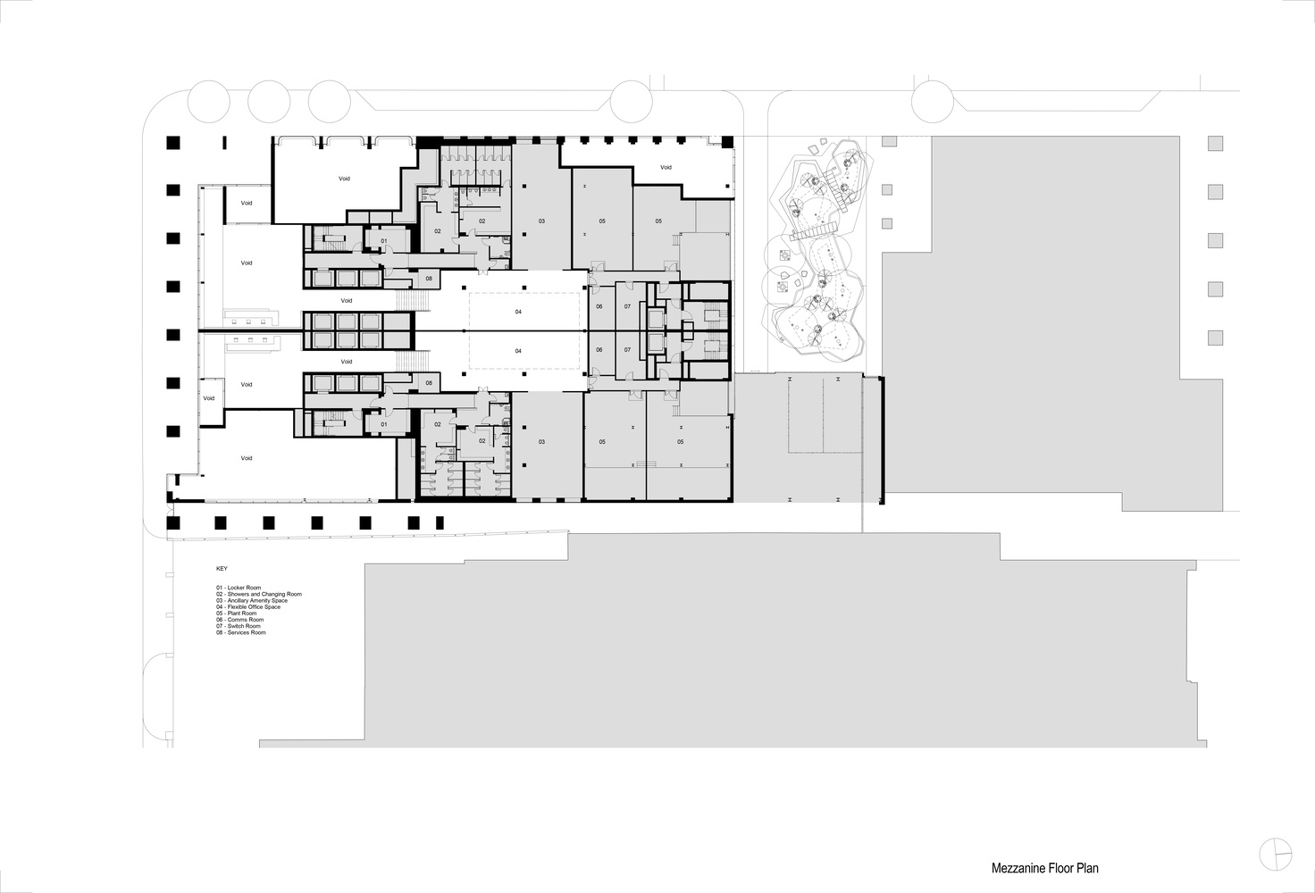
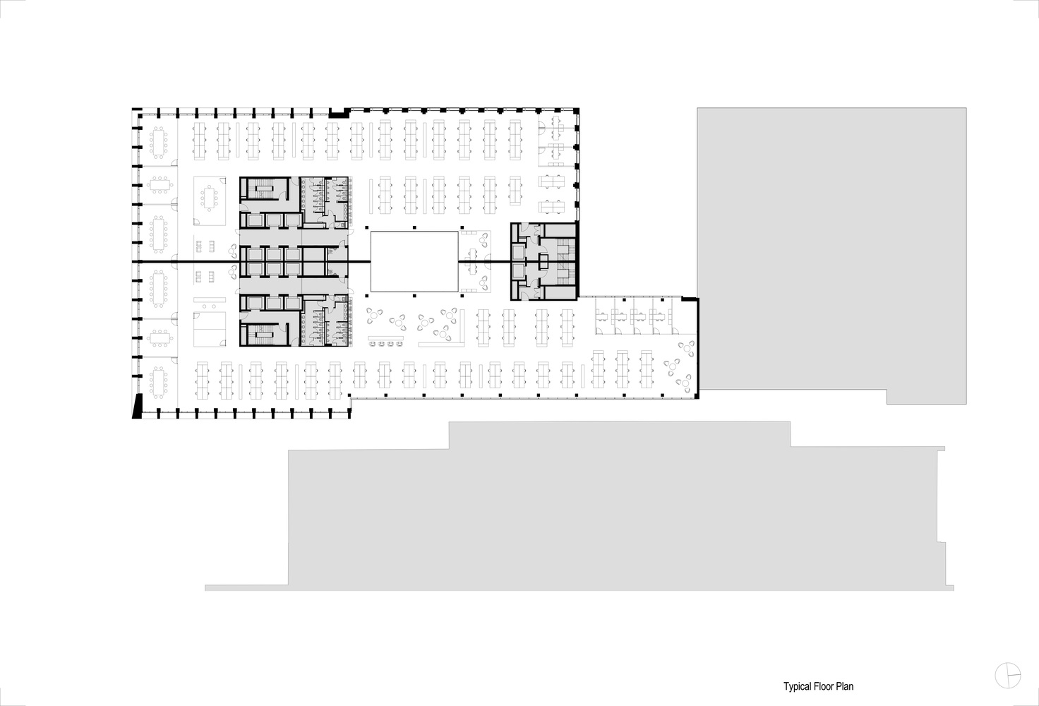
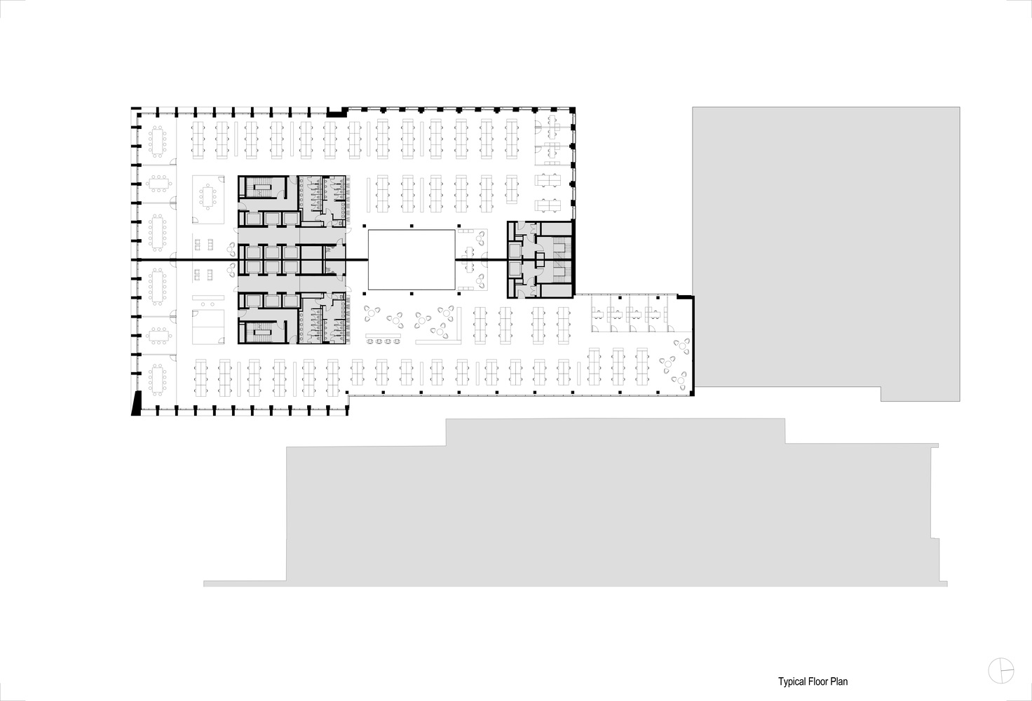
Facing onto the Liffey and adjacent to the East Link bridge, the primary arterial route connecting Northside to South, the project looks to provide a singular, monolithic architectural form in the tradition of great European riverfront buildings as a contrast to the more ephemeral developments ubiquitous in this part of the city. While fulfilling its brief to provide large column-free floor plates for the commercial office market the project offers a robust presence that embeds itself into the city.
The character of the project is derived from its mass and materiality generated by a layered and modulated asymmetrical composition of deep, precast concrete columns and transoms against an inner surface of bronze panels that together provide rhythm and scale, a coherent architectural whole. The expression of the key river front volume is defined by this logic whereby the precast concrete frame holds the minor scale of the window frame, ventilation shutter, and spandrel panel.
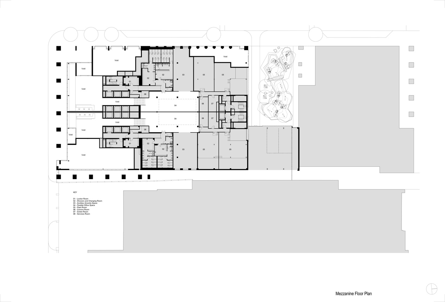
In recognition of the oft harsh environment of the quays, a generous double-height arcade on the ground floor provides generous, sheltered space for pedestrians to circulate. The ‘giant order’ of the colonnade provides an appropriate scale to the river and gives visual interest to passers by. The colonnade is terminated by an art gallery with a glazed corner window and bronze entrance screen while an opening at the first-floor level allows light from the east to enter the colonnade at a high level.
The façade is modulated through changes in the spacing of mullions and horizontal banding. A dense rhythm of mullions at 1.5-meter centers expresses the floor above the colonnade. This rhythm is changed to a 3 meter bay width on upper floors.
from archdaily


