
![]() |
![]() |
![]() |
LR-Architetti-Church of the Holy Spirit in Pegognaga
교회의 인상적인 장면을 만드는 정면은 박공지붕으로 이루어져 있다. 세로방향의 패턴은 거대한 기둥이 연속된 모습으로 붉은색 콘크리트를 이용하여 구현된다.




















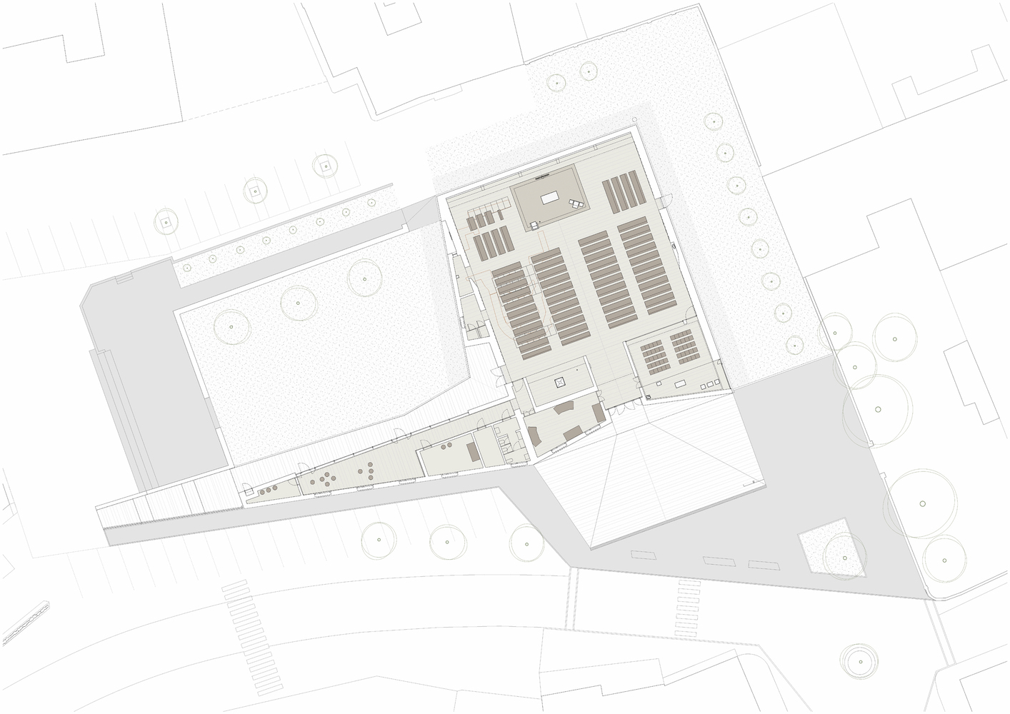
Church of the Holy Spirit in Pegognaga, near Mantua. The new Church of the Holy Spirit in Pegognaga, near Mantua, is the result of restricted competition. It replaces the previous parish church, damaged by the 2012 earthquake. The project ensures a proper scale and orientation in the historic small city.
The new building occupies the lot through a wall from which the gabled volume of the hall emerges. The parish hall is a free central space. Dense, slender terracotta-colored concrete pillars and full height windows run on the perimeter. Two rows of suspended tubular light fixtures mark the inner space.
The main facade extends on one side into a low building with a flat roof. This basement volume encloses the parish hall and other rooms for parish activities. It is clad in brick in varying tones from red to cocciopesto. Concrete acoustic panels with vertical grooves line the basement level inside.
A "carpet" of pinkish Lessinia stone, rough on the front court and polished in the interior, unifies the exterior pavement and the hall floor. The same marble characterized the liturgical furniture. The new design of the table and tabernacle integrates spoils from the old parish church.
On the back of the chancel stands the mosaic "Earth" as a symbol of "rebirth resurrection." It is set back from the upper pillars and lit by a hidden skylight. The used materials are brick fragments from the demolished church and gold tiles. They are assembled on a sloping wall using the opus scutulatum technique. Ground excavations uncovered a complex stratigraphy of ancient worship structures. Three portions are visible through slots cut into the floor. They will be opened on special occasions, showing the direct dialogue between the present and past.
from archdaily
'Culture' 카테고리의 다른 글
| *무채색 갤러리 [ AMAA ] Threshold and Treasure: A Design (0) | 2023.03.01 |
|---|---|
| *오렌지 콘티 뮤지엄 오브 아트 [ Morphosis Architects ] Orange County Museum of Art (12) | 2023.02.08 |
| *지그재그 박공지붕 유치원 [ ACAU Architectes ] Kindergarten in Saint-Ouen-Du-Tilleul (0) | 2023.01.31 |
| *슈즈 뮤지엄 [ Civic Architects ] Schoenenkwartier Shoe Museum (0) | 2023.01.26 |
| *시드니 모던 뮤지엄 [ SANAA ] Sydney Modern Museum (12) | 2023.01.24 |


