
![]() |
![]() |
![]() |
Civic Architects-Schoenenkwartier Shoe Museum
신발 박물관은 지난 세기 시청으로 사용되었던 유서깊은 건물이 있는 역사적인 도시의 한가운데 위치한다. 일반적인 박물관 기능 뿐만 아니라 카페, 작업공간 등, 마을에 일어나는 다양한 활동을 지원하는 공간으로 활용된다. 박물관인 동시에, 마을의 혁신센터, 커뮤니티의 중심지 역활을 수행한다.





















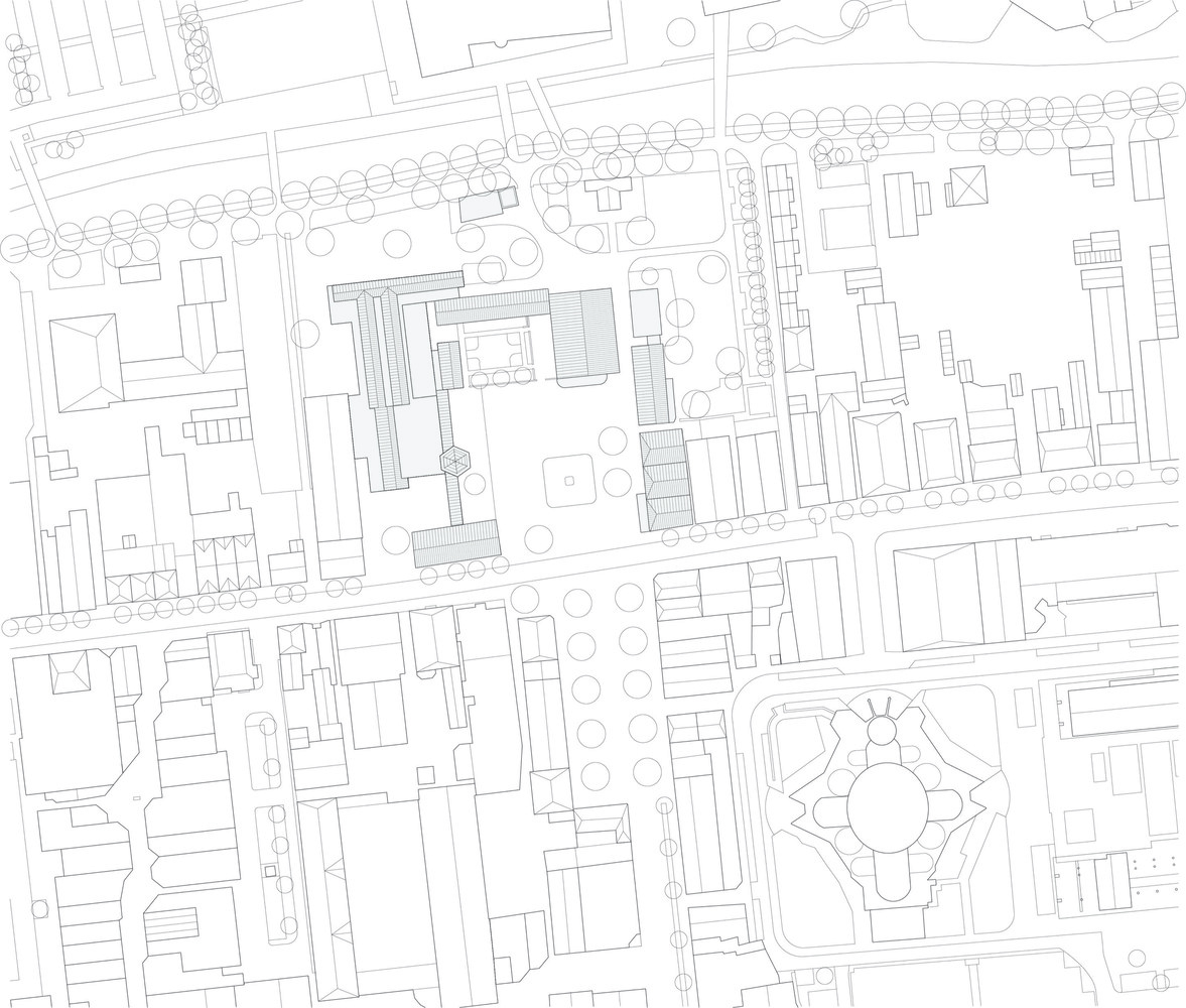
The Schoenenkwartier Museum is a new and innovative knowledge center for shoe design, shoe production, and shoe fashion in the center of Waalwijk, the Dutch leather and shoe city. It is housed in a listed building complex from the 1930s, by architect Alexander Kropholler, which has been partly renovated, transformed, and expanded. The buildings now house a collection of 12,000 objects, several permanent exhibitions, a knowledge center with a research library, workshop space and auditorium, a museum café, and laboratories for design and prototyping. Both the planning and design of the building and its interior map out a new inspiring future for the industry, the city, and the community, built on the values of the past.
Waalwijk is a typical small European city that became big through the industrial development of a local craft, but at the same time is struggling with its future. Leather processing and shoe manufacture formed the culture, economy, and pride of the region “de Langstraat” as an international player, but leather and shoe production have now disappeared. However, there are still areas of large and small shoe brands, and the Shoe and Leather Museum was founded in 1954. The building is a combination of a museum and an innovation center, interwoven into one living entity. A research library is located between the exhibition rooms, there are several innovation and design labs for education and artists in residence, and various possibilities for conferences and company presentations. The Shoe Museum has brought regional shoe craftsmanship back to where it started, the city is once again becoming an (inter)national destination for experts and innovators, and the cultural history of the local community is shown and enhanced. The collection is an endless source of inspiration in all this.
The Shoe Museum is located in the heart of the historic city center, on the Raadhuisplein, where the town hall and city hall were housed in the last century. The general functions of the museum, such as the work café with the open work labs, are directly visible from the square and are also open to the public, even for people not visiting the exhibitions. In addition to being a museum and innovation center, the Shoe Museum is a welcoming place for the community. The hospitable public atmosphere is also noticeable when you enter the building through the historic arcades with generous pivoting and sliding doors: The entrance area is completely open and in the center of the building runs an inner pavement with a cobble pattern, reminiscent of a covered city square.
from archdaily
'Culture' 카테고리의 다른 글
| *박공지붕이 인상적인 교회 [ LR-Architetti ] Church of the Holy Spirit in Pegognaga (0) | 2023.02.06 |
|---|---|
| *지그재그 박공지붕 유치원 [ ACAU Architectes ] Kindergarten in Saint-Ouen-Du-Tilleul (0) | 2023.01.31 |
| *시드니 모던 뮤지엄 [ SANAA ] Sydney Modern Museum (12) | 2023.01.24 |
| *북 라이브어리 하우스 [ Fria Folket ] MA03_Library House (0) | 2023.01.12 |
| *아쿠아틱 센터 [ Taillandier Architectes Associés ] Païcherou Aquatic Center (0) | 2022.12.29 |


