
![]() |
![]() |
![]() |
![]() |
![]() |
[Y/N] Studio-Bradbury Works
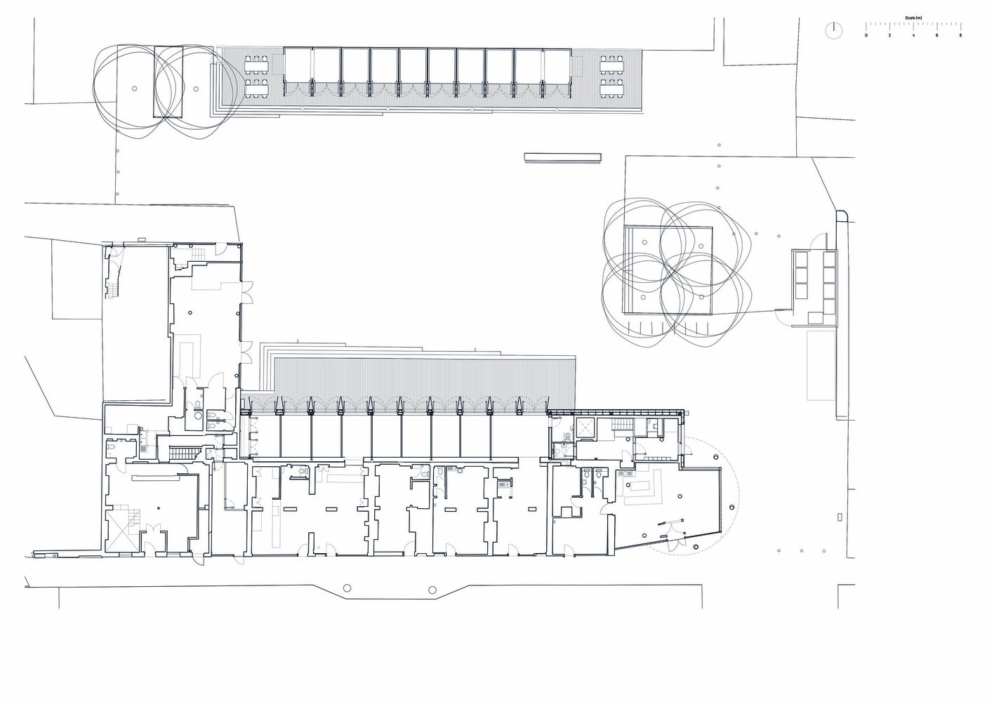
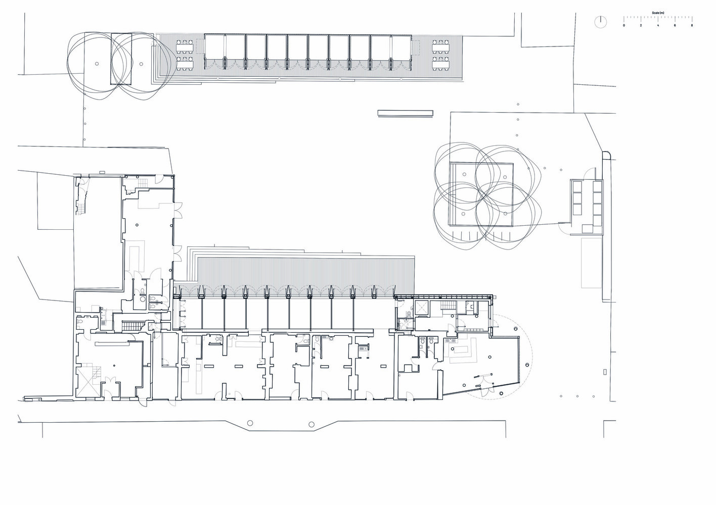
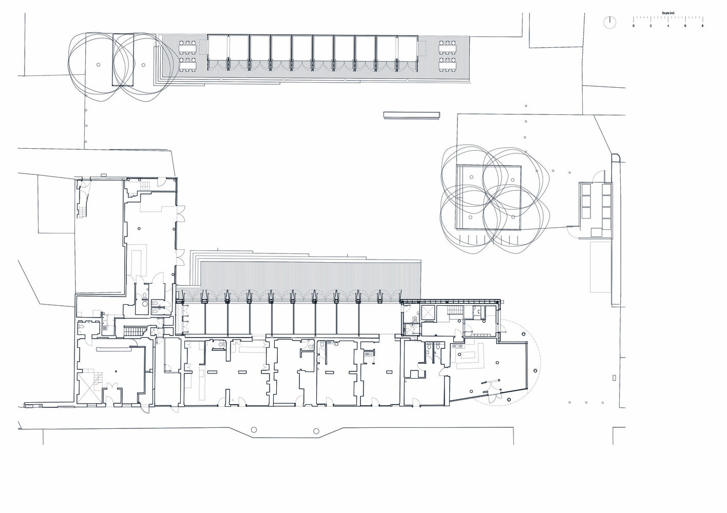
맨션의 오리지널 구조체의 기존 빅토리안 테라스는 유지시키는 방향으로 진행, 보수와 리노베이션을 통해 1036m2 규모의 크고 작은 워크스페이스 유닛으로 재구성된다. 그러는동안 브래드버리 거리와 마주한 기존 상가, 바, 레스토랑은 유지시킨다. 이층높이의 외부 테라스는 상부에 위치한 유닛과 연결되도록 재조정한다.








































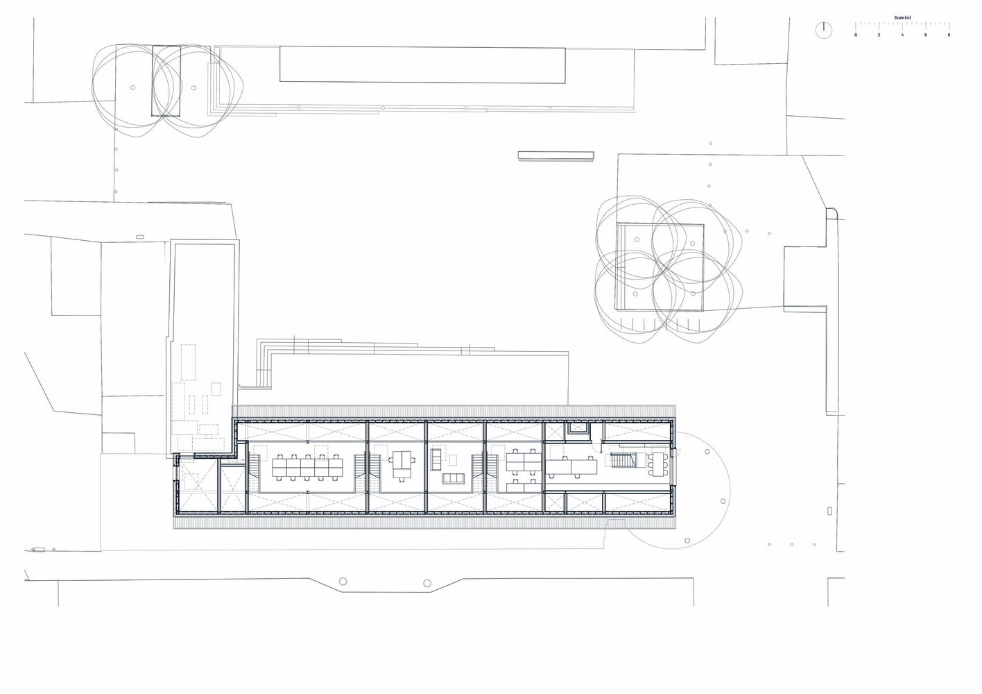
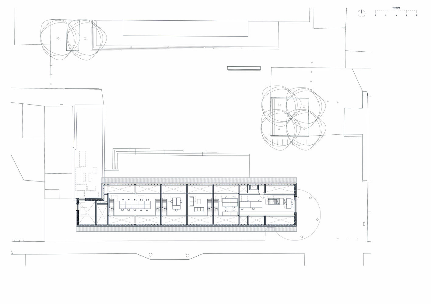
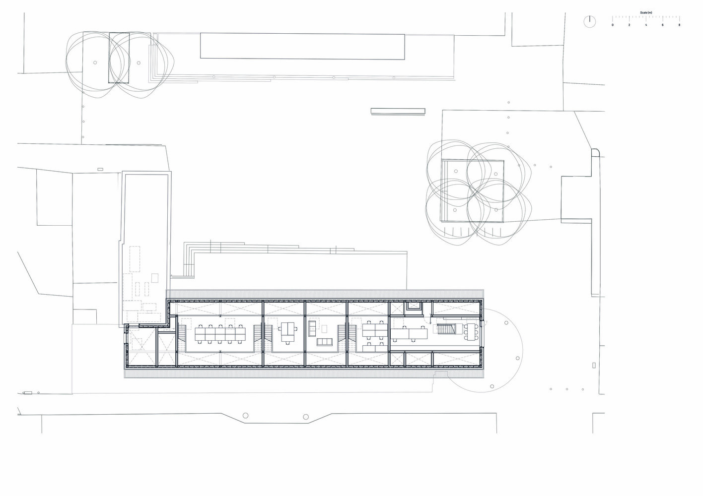
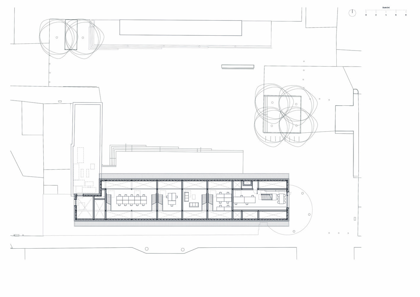
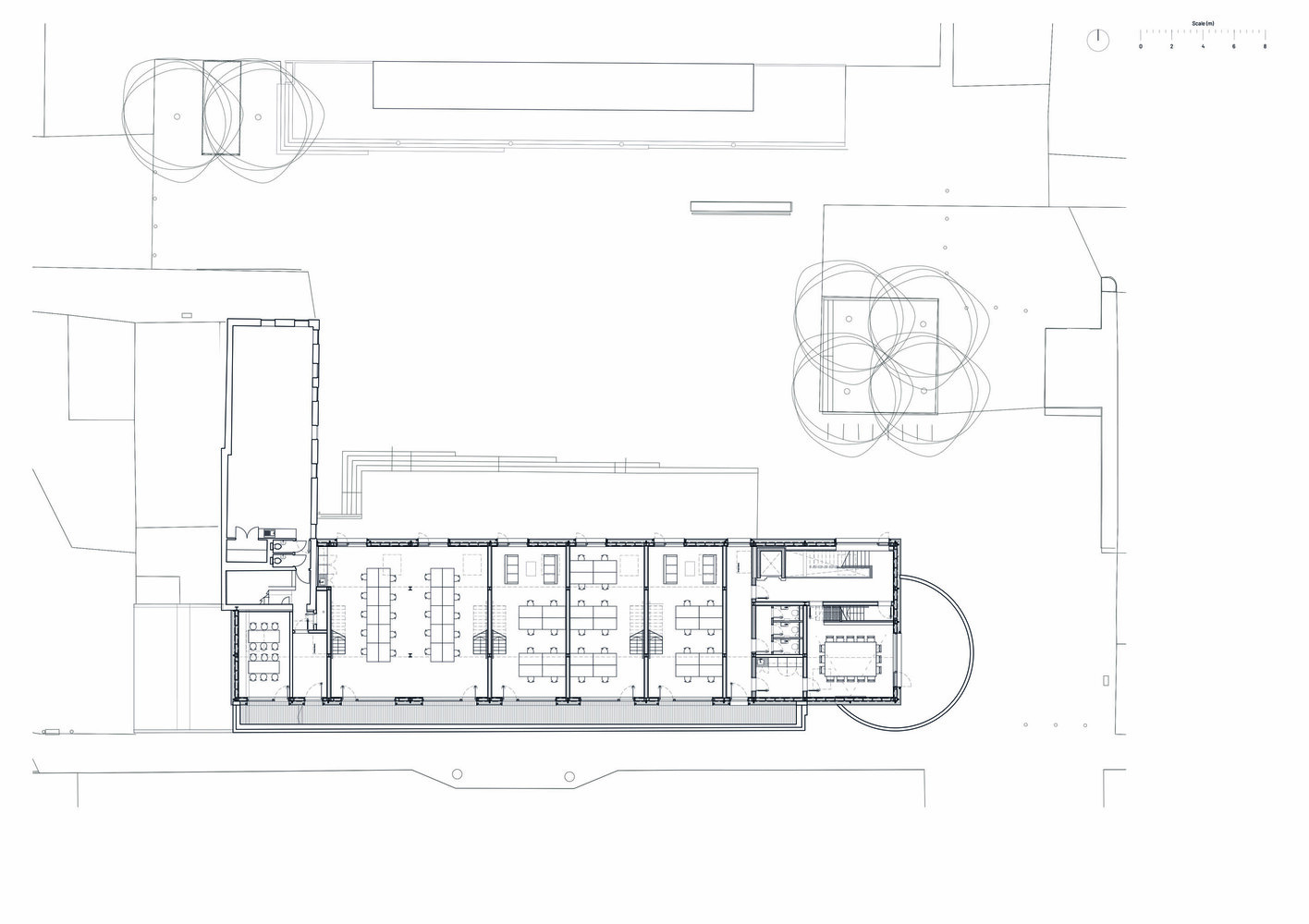
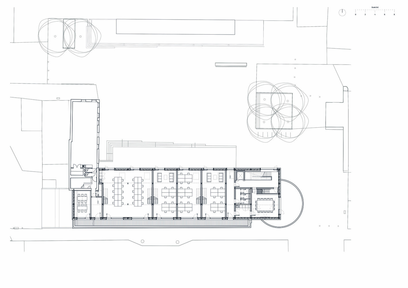
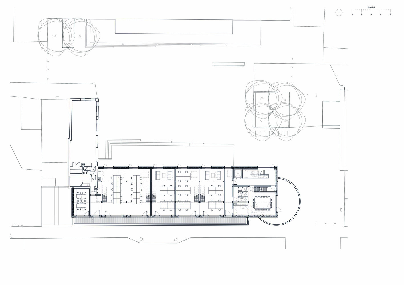
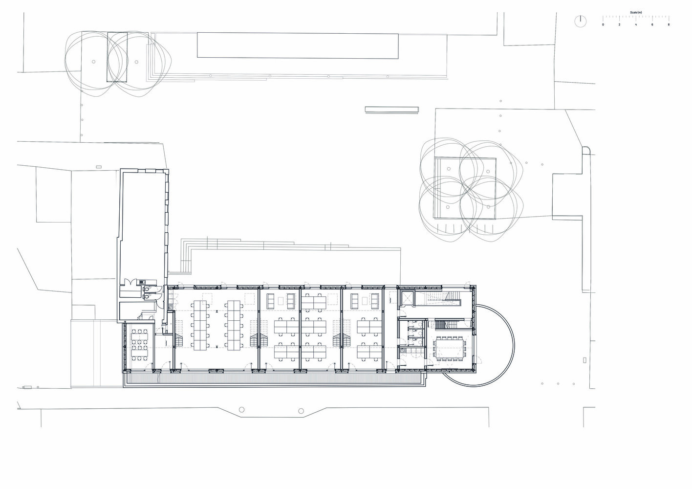
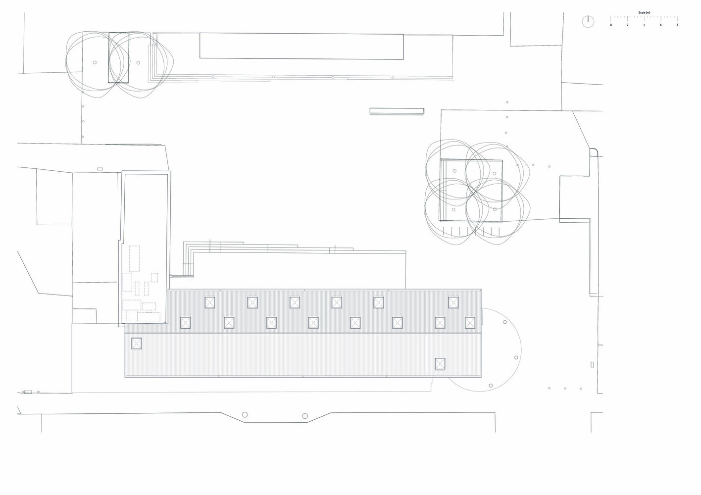
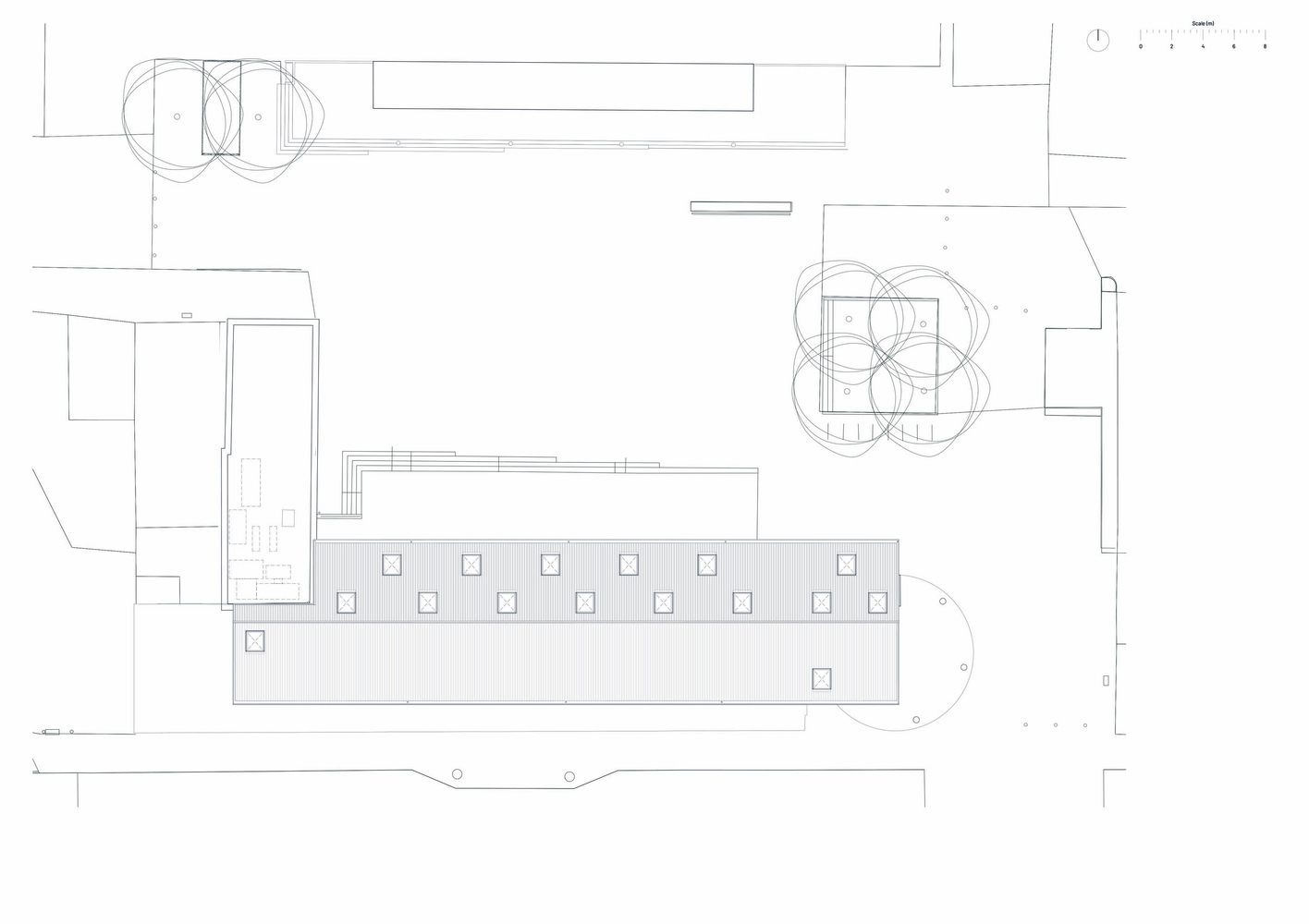
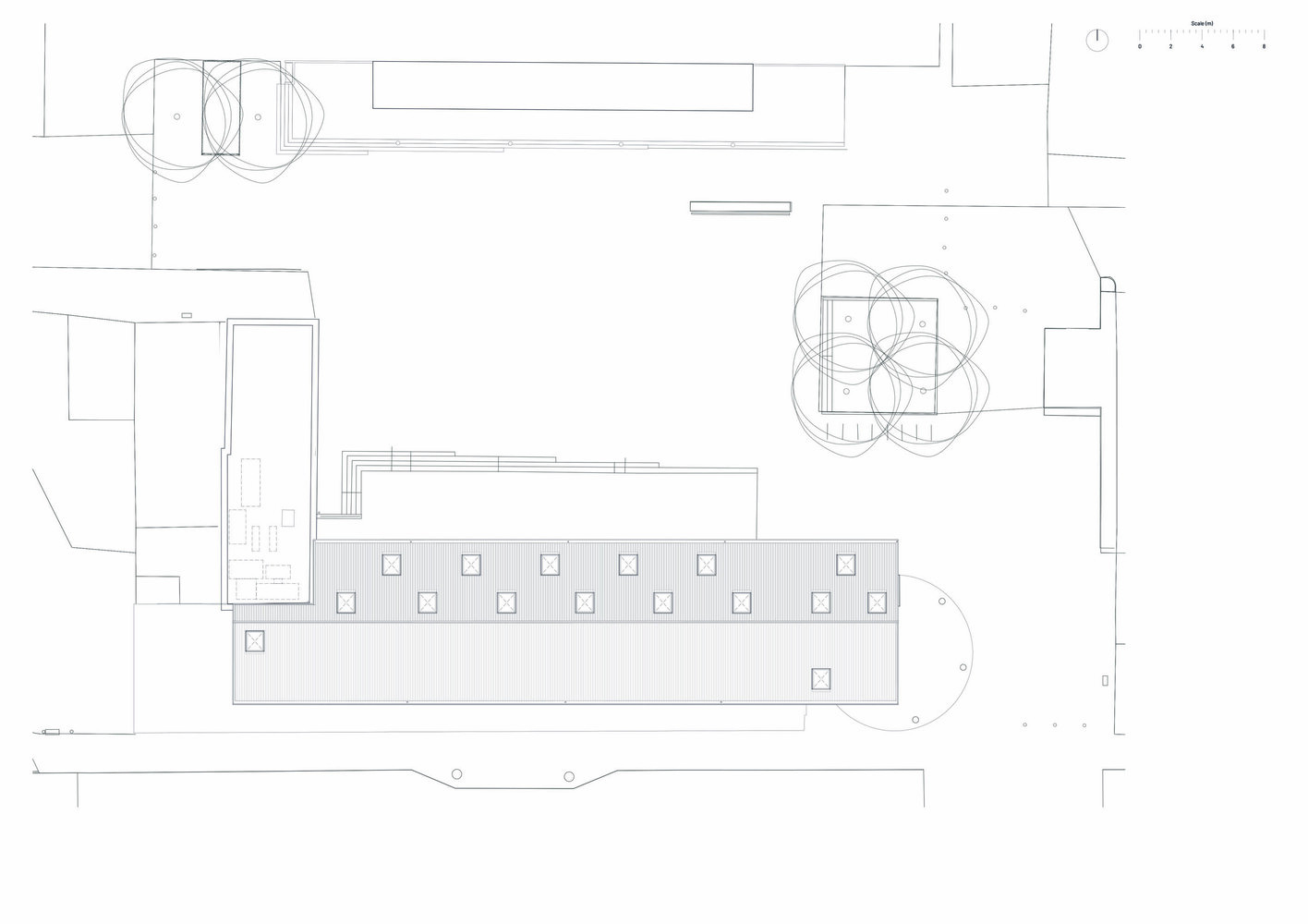
Bradbury Works in Gillett Square, Dalston, has now re opened its doors to new and returning tenants. The new building includes the refurbishment of 600m2 of existing affordable workspace, the replacement of ten mini retail units, and the provision of almost 500m2 of extra workspace in a two-story extension. Bradbury Works is the next step in the evolving story of one of the most unique and community-focused public spaces in the capital.
The scheme looks to retain the best attributes of the existing building including its tenants while providing additional flexible spaces to suit a variety of businesses. Facing into the square, new 10m2 retail pods are provided with fully openable glazed frontages which are further protected by profiled metal gates for security and privacy when closed but can transform the individual spaces with vibrant signage when open.
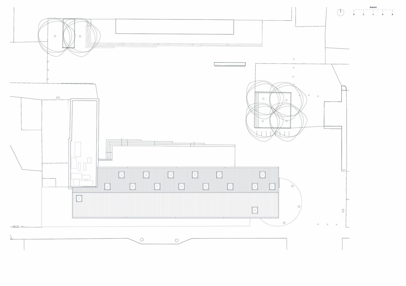
The original masonry structure of the existing Victorian terrace has been retained, refurbished, and renovated, providing small and medium 1036m2 workspace units while preserving the existing shops, bars, and restaurants facing onto Bradbury Street. A covered double-height external terrace space provides access to the upper units. Picnic tables, evergreen ferns, and climbing plants intend to encourage tenants to come together in all seasons and increase interaction with the square. On the third floor, new workspaces with private mezzanine levels in the pitch are accessed by a south-facing external deck.
Access to the new building is via the existing entrance which has been retained and improved by providing a new fully glazed entrance. New branding and wayfinding signage was designed by [Y/N] Studio. The existing stairwell and entrance have been repainted with the colors Cyan, Magenta, Yellow, and Key (black) referring to the ‘CMYK’ printing color range where four simple and contrasting colors combined can be used to create any artwork.
from archdaily




