
![]() |
![]() |
![]() |
Hiroshi Kinoshita and Associates-House with Indoor Garden
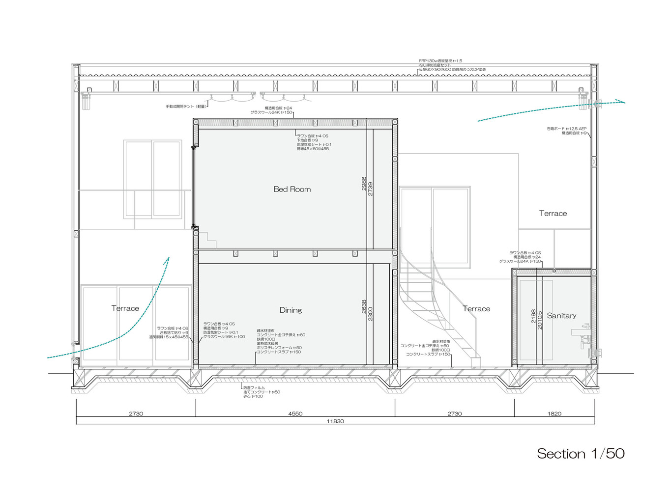
지붕은 전면이 반투명해 풍부한 햇빛이 실내 정원을 가득 채울 수 있습니다. 개폐가 가능한 천막의 움직임을 통해 일조량을 조절할 수 있습니다. 또한 다락방에 설치된 환기 팬의 배기량을 조절하여 온도 조절이 가능합니다. 실제로 실내 정원에는 소파, 학습용 책상, 책장, 해먹이 비치되어 있습니다. 이 공간은 자연 채광을 받으며 아이들과 함께 책을 읽고 놀 수 있는 아늑한 공간입니다. 실내 정원을 둘러싼 외벽은 기밀 시트로 밀폐하고 단열재를 사용해 벽 내부의 공기 대류를 최소화했습니다. 중첩된 방은 강력한 기밀성과 단열재로 열 경계를 명확히 하고 있습니다. 객실 내 공기 순환을 위해 24시간 환기 시스템을 도입하여 쾌적한 환경을 보장합니다.translate by DeepL

















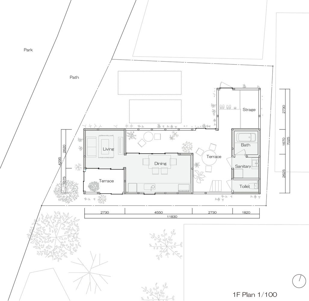
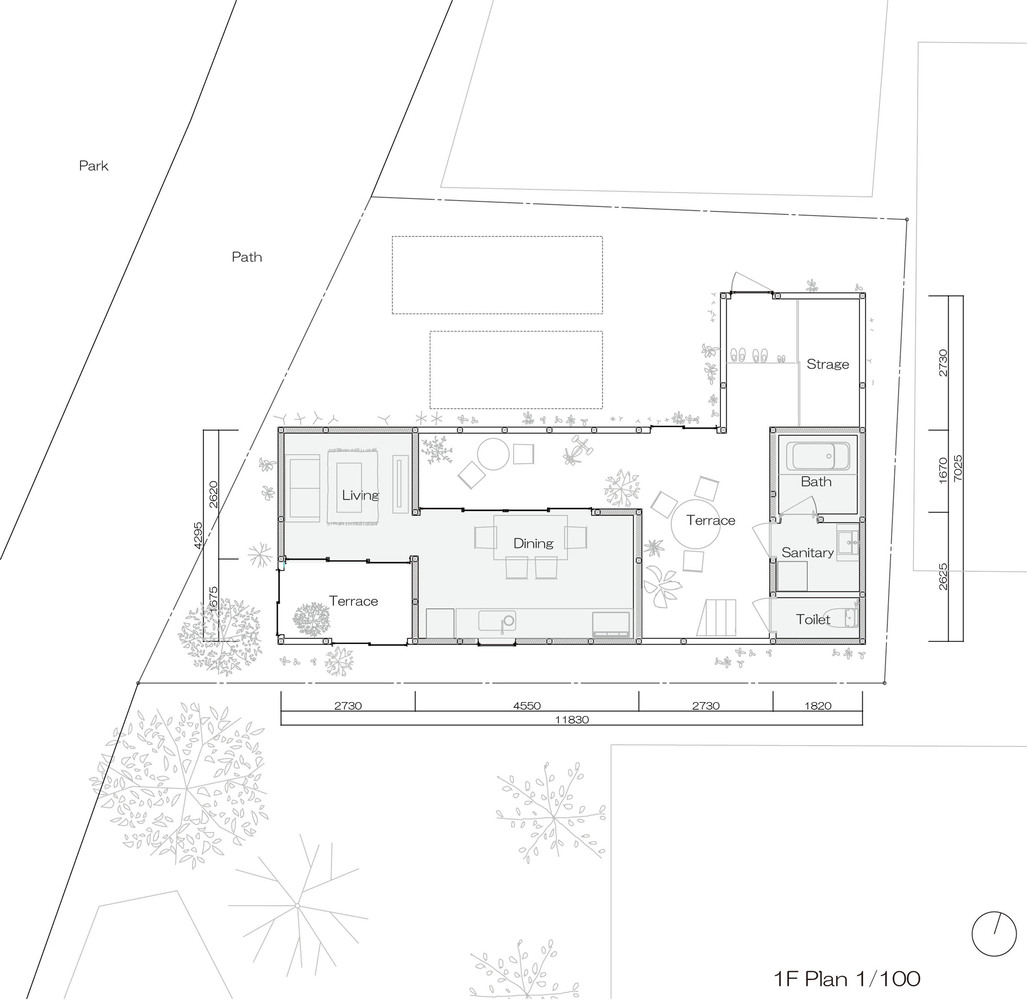
Tottori Prefecture, where the site is situated, experiences twice as many rainy days and snowfalls as the Sanyo region, making it less conducive to an outdoor garden. Consequently, our proposal involves integrating the garden, typically an outdoor element, into the interior design, seamlessly intertwining rooms with an indoor garden. The site is situated near a park, and the layout has been meticulously planned to maximize proximity to the park side, allowing for an inviting view of the park and facilitating the flow of refreshing breezes. To ensure privacy, especially given the road between the site and the park frequented by neighbors, we minimized the number of openings. The building is also located in a semi-fire zone, so other windows face the courtyard of the welfare facility on the south side, and under-windows are provided in shaded areas.
The roof is entirely translucent, allowing abundant sunlight to fill the indoor garden. The degree of solar radiation is adjustable through the movement of a tent, which can be opened or closed. Additionally, temperature control is achieved by regulating the exhaust air volume of the ventilation fan installed in the attic. In practical terms, the indoor garden is furnished with sofas, a study desk, bookshelves, and a hammock. This space serves as a cozy area for people to read and play with their children in the natural sunlight. The exterior walls surrounding the indoor garden are sealed with airtight sheets and insulated to minimize air convection within the walls. The nested rooms have well defined thermal boundaries with strong airtightness and insulation. A 24-hour ventilation system is implemented to circulate air within the rooms, ensuring a comfortable environment.
When considering the comfort of a space, one approach is to enhance the volume by expanding the area, raising the ceiling, or increasing overall openness. However, in regions with challenging climates, such as the Sanin region, larger space volumes can compromise air conditioning efficiency, necessitating more substantial air conditioners and heaters. In this house, the core living spaces are condensed into a smaller volume, with each area individually air-conditioned using smaller room air conditioners. The air is circulated within the living spaces. The rooms are interwoven with a large-volume indoor garden so that the house is small during the hot and cold seasons, and the sashes are open and spacious during the more pleasant seasons. The design was inspired by the unique San-in region's climate.
from archdaily
'House' 카테고리의 다른 글
| *버드하우스 Edition Office tops New South Wales home with "bird’s mouth" cutout roof (0) | 2024.02.02 |
|---|---|
| *미니멀 브라운 [ Claire Hung Design ] Cobble Hill (0) | 2024.02.01 |
| *지속가능한 집 taller11 creates an energy efficient house of two halves (0) | 2024.01.29 |
| *농가주택 [ Studio Guma ] Hécourt (0) | 2024.01.26 |
| *박공지붕 [ McLaren Excell ] Hunts Green Barn (0) | 2024.01.17 |


