"건축은 과거를 존중하면서도 현재를 위해 봉사해야 한다." — 르 코르뷔지에

![]() |
![]() |
![]() |
과거를 허물지 않고 미래를 짓다: 파리 라 퐁다시옹 복합 건물 PCA-STREAM-La Fondation Mixed-Use Complex
파리 바티뇰 지구에서 PCA-STREAM은 한때 철거 예정이었던 주차 시설을 호텔, 레스토랑, 오피스가 결합된 복합 용도 건물로 전환했다. 이 프로젝트는 철거 후 재건축 대신 기존 구조물을 보존하며 새로운 생명을 불어넣는 방식을 선택했다. 거리 파사드를 재설계하면서도 이곳의 산업적 성격을 유지했고, 동시에 현대 건축물이 갖춰야 할 성능과 쾌적함을 구현했다.
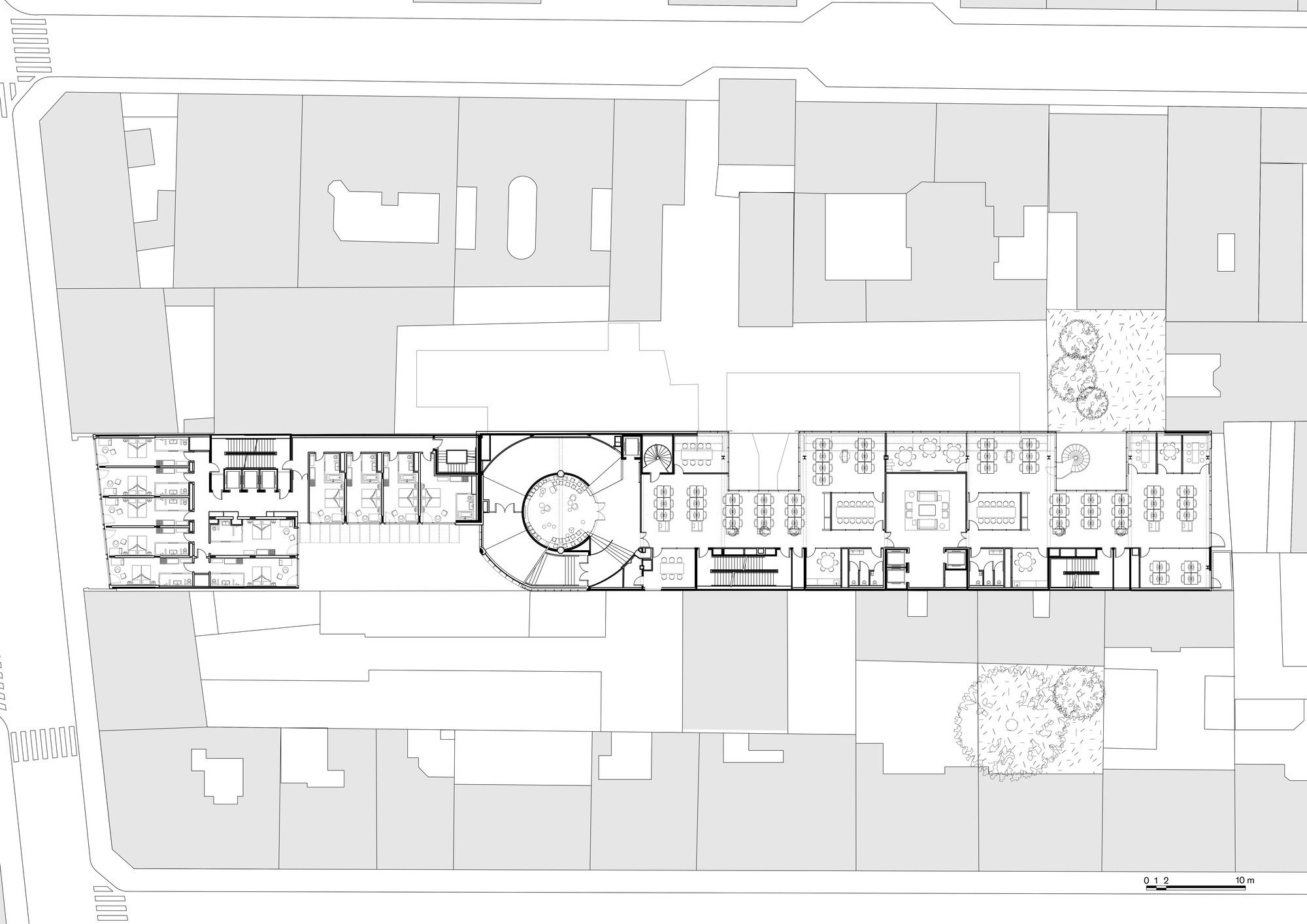
이곳에는 두 개의 프로그램이 만난다. 르장드르 거리를 면한 쪽에는 스파, 카페, 옥상 레스토랑을 갖춘 5성급 부티크 호텔이 자리한다. 부지 안쪽으로 들어가면 소쉬르 거리 중정을 향해 오피스 공간이 펼쳐지며, 카페, 피트니스, 이벤트 공간 등 다양한 부대시설이 마련되어 있다.
넉넉한 부대시설과 야외 공간, 테라스, 녹지가 조성된 파티오로의 접근성은 웰빙 중심 설계에 대한 강한 의지를 보여준다. 이 건물은 지역 주민을 위한 공간이면서 동시에 이 동네의 새로운 목적지를 만들고자 했다.
두 프로그램을 상징적으로 연결하는 요소는 노출 콘크리트로 만들어진 나선형 램프다. 이 장소의 과거를 간직한 흔적이자, 지금은 문화 행사와 이벤트를 위한 공간으로 자리잡았다. 나선형 램프는 틀에 얽매이지 않는 창의적 분위기를 지속시키는 건축적 장치다.
파리 도심 석조 건물 사이로 들어선 이 투명한 건축물은 과거와 현재가 공존할 수 있음을 증명한다. 철거가 아닌 전환을 선택함으로써, PCA-STREAM은 지속가능한 도시재생의 가능성을 제시한다. 산업유산의 흔적은 사라지지 않고 새로운 시대의 공간 속에서 살아 숨 쉰다.
Write by Claude & Jean Browwn




































In the Batignolles district, PCA STREAM is transforming a former parking structure, once slated for demolition and rebuild, into a mixed-use complex combining hotel, restaurants, and offices.
The project includes a redesign of the street façade, preserving the site's industrial character while conferring the performance and comfort of a contemporary building.
Two programs are woven together: on rue Legendre, a five star boutique hotel with a spa, café, and rooftop restaurant; deeper into the plot, office space with associated amenities (café, fitness, event venue) opening onto a courtyard on rue de Saussure.
enerous services and access to outdoor spaces, terraces, and planted patios reflect a strong focus on well-being.
Conceived to serve local residents while creating a new destination for the neighborhood, the ensemble is symbolically linked by the raw concrete helical ramp, a vestige of the site's past, which now anchors shared cultural and event programming and sustains an offbeat, creative spirit.
from archdaily


