"건축은 사람들에게 존엄을 되찾아주는 일이다."― 디에베도 프란시스 케레

![]() |
![]() |
![]() |
색채와 존엄의 건축,비전 파키스탄 복지재단 교육원, 이슬라마바드 DB Studios-Vision Pakistan
파키스탄 이슬라마바드 외곽, Ghauri Town의 비정형적으로 밀집된 도시 풍경 속에서 한 건물이 눈길을 사로잡는다. 노란색과 청록색, 주황색과 초록색으로 물든 자알리 스크린이 회색 콘크리트 골조를 감싼 6층 건물. 이곳은 비전 파키스탄 복지재단이 운영하는 직업훈련 교육원이다.
2007년 설립된 이 재단은 소외 계층 청년, 특히 비문해 저소득층 16세 이상 남성 청년들에게 두 번째 기회를 제공한다. 자카트(이슬람 의무 기부금)로 운영되는 1년 과정 프로그램은 재봉 기술 훈련을 중심에 둔다. 동시에 읽기와 쓰기, 기초 수학과 부기, 비판적 사고와 시간 관리 같은 생활 기술, 기초 이슬람 교육도 함께 제공한다. 목표는 명확하다. 사회적 독립과 경제적 자립이다.
도시의 틈새에서
Ghauri Road 모퉁이, 130제곱미터 대지 위에 건물이 들어섰다. 주변은 소규모 상가, 작은 주택, 노점상, 그리고 절충적인 건축물들이 뒤섞인 밀집 지역이다. 2019년 의뢰를 받아 2020~2022년 설계, 2021~2023년 시공을 거쳐 완공 직후 입주했다. 건축가 Mohammad Saifullah Siddiqui와 협력자들, 그리고 조경, 구조, 기계/전기/배관 설비 컨설턴트와 시공사가 함께 만들었다.
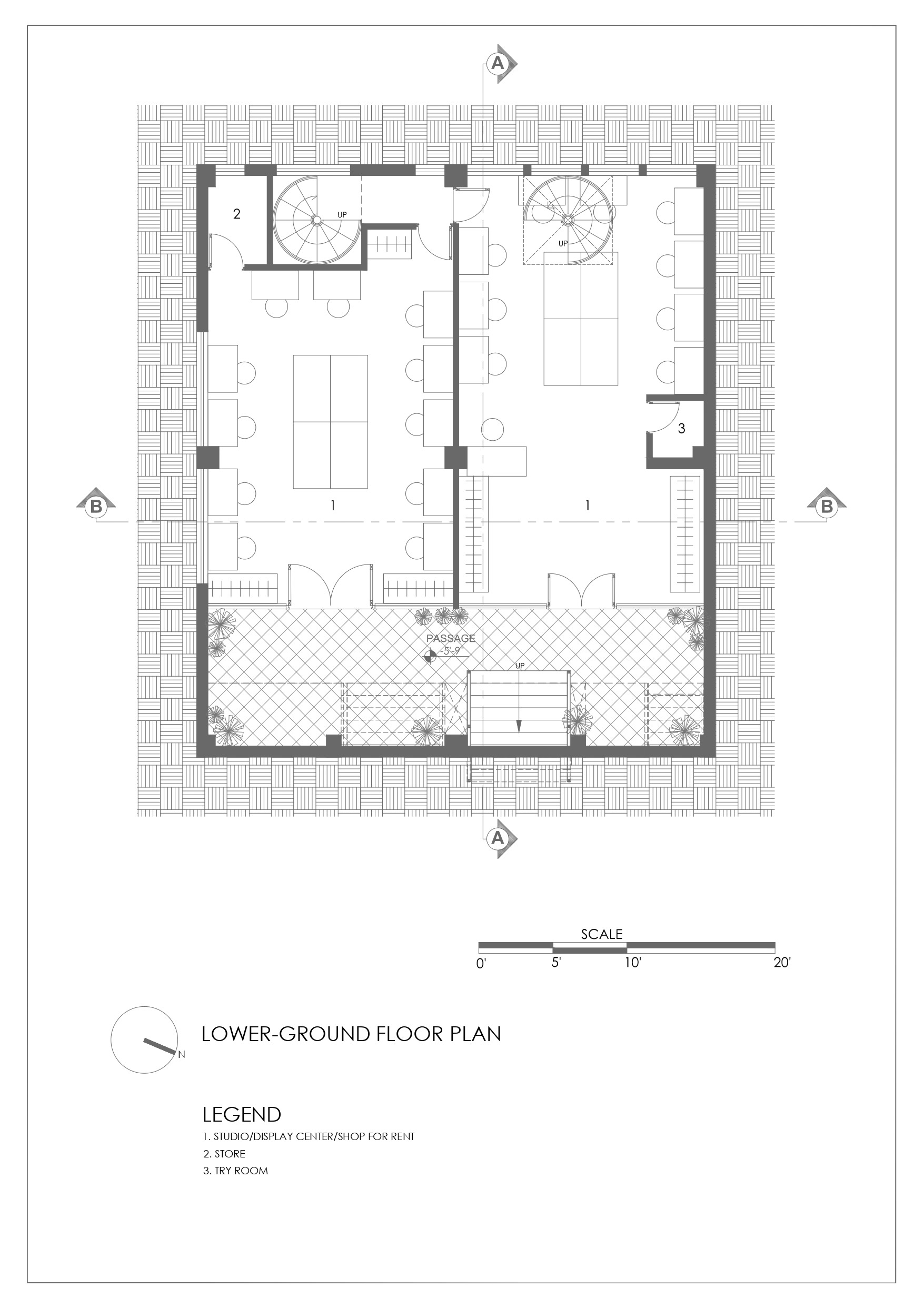
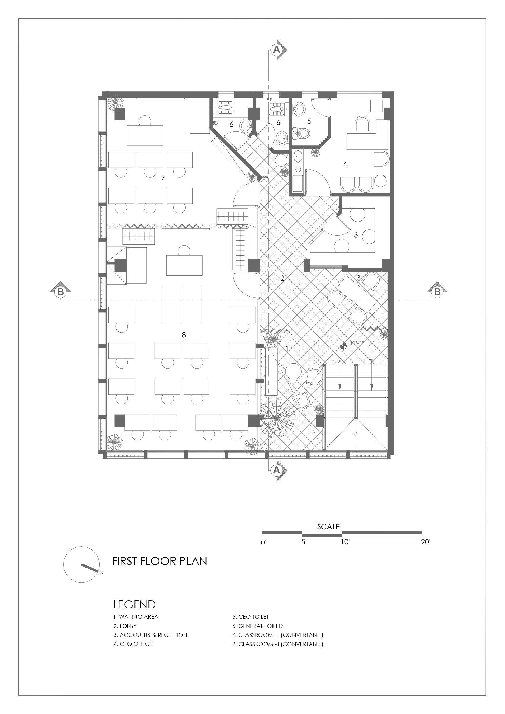
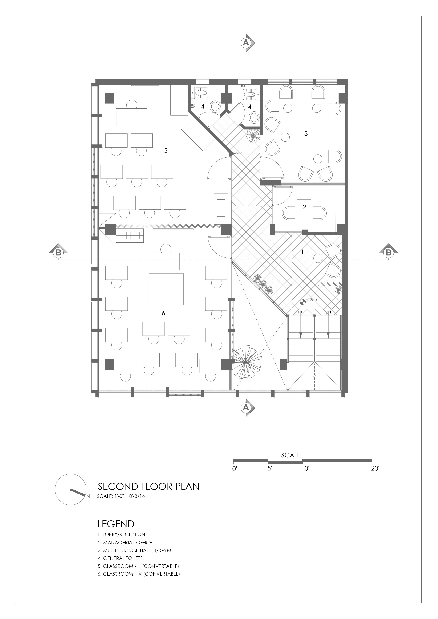
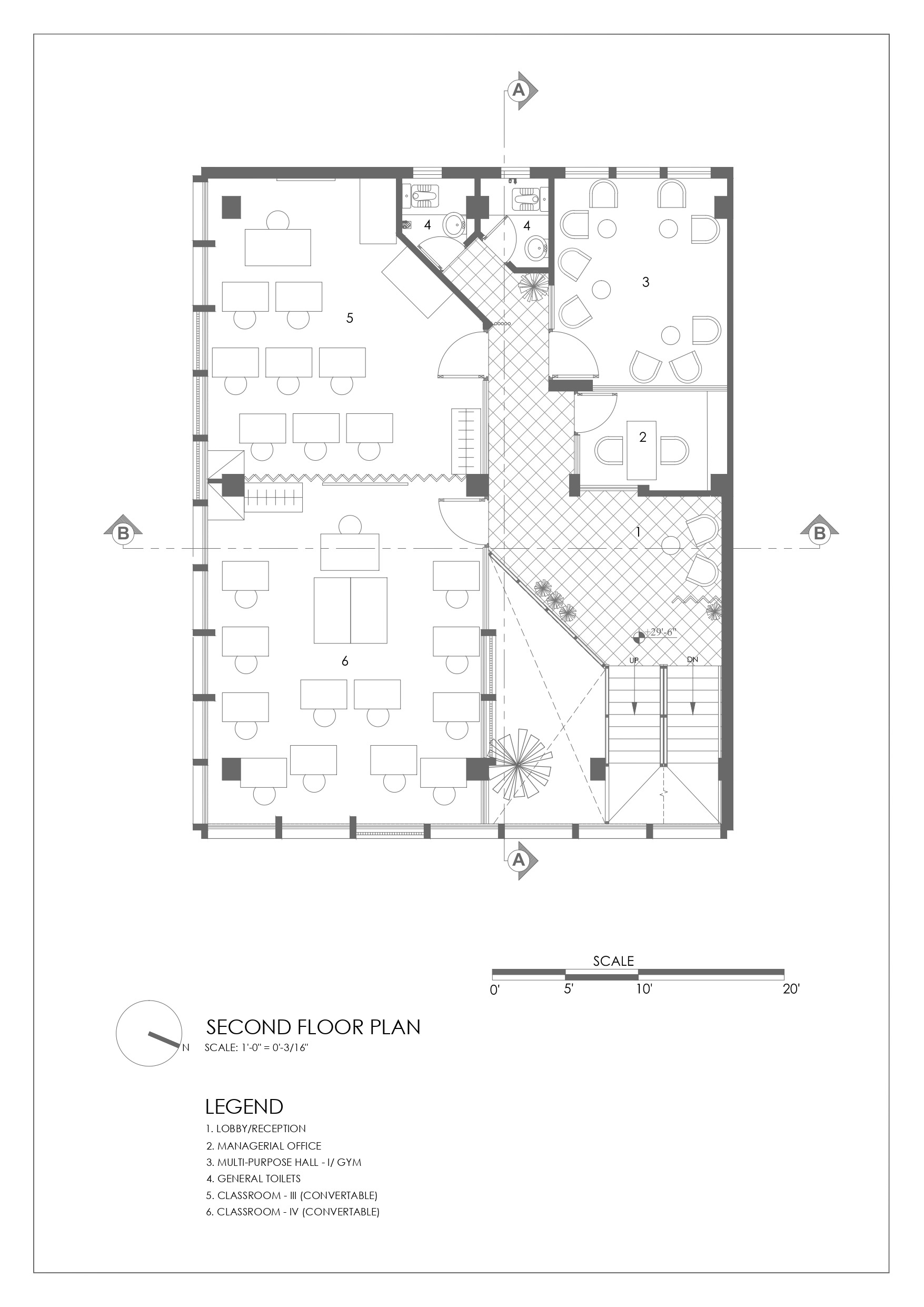
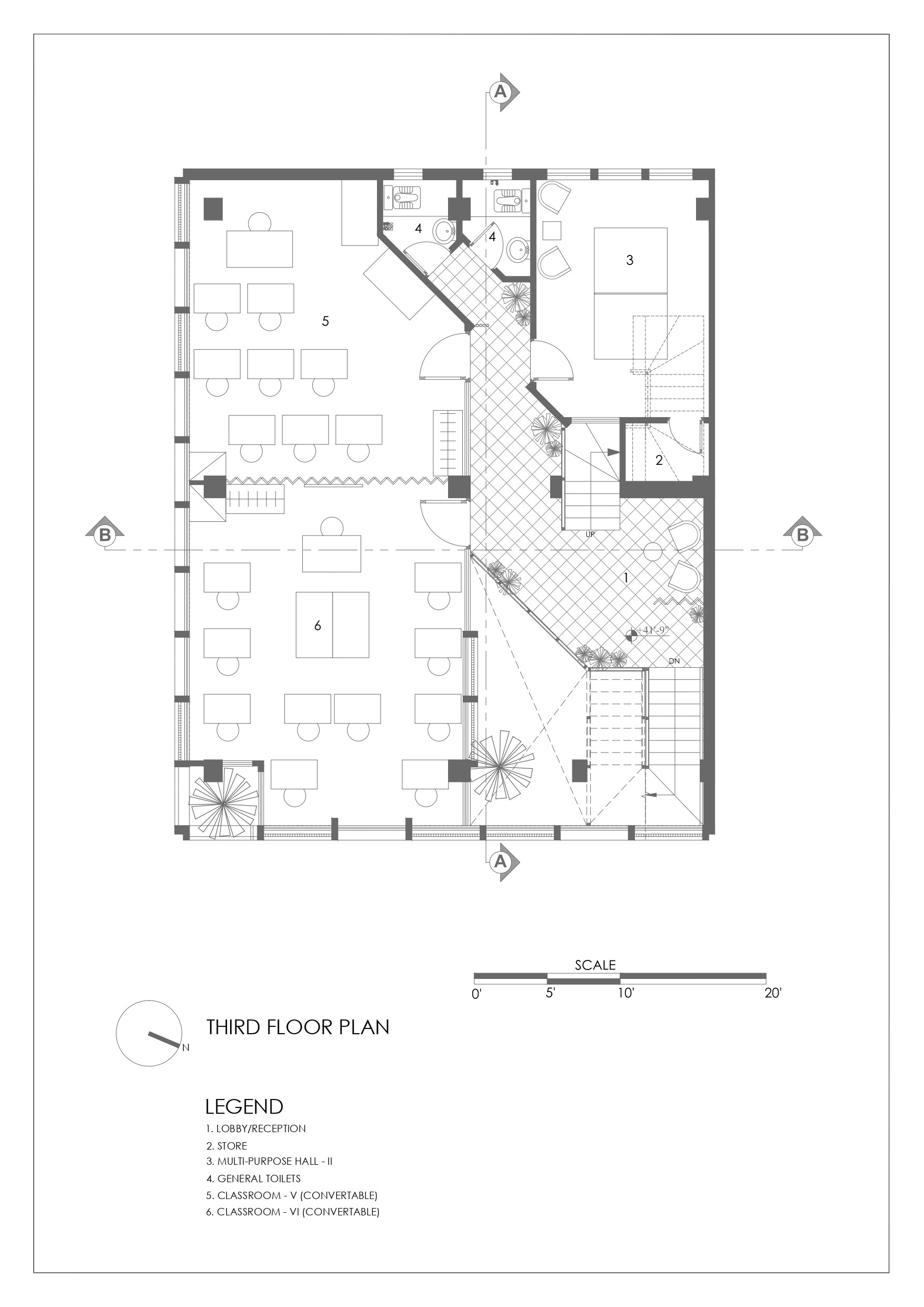
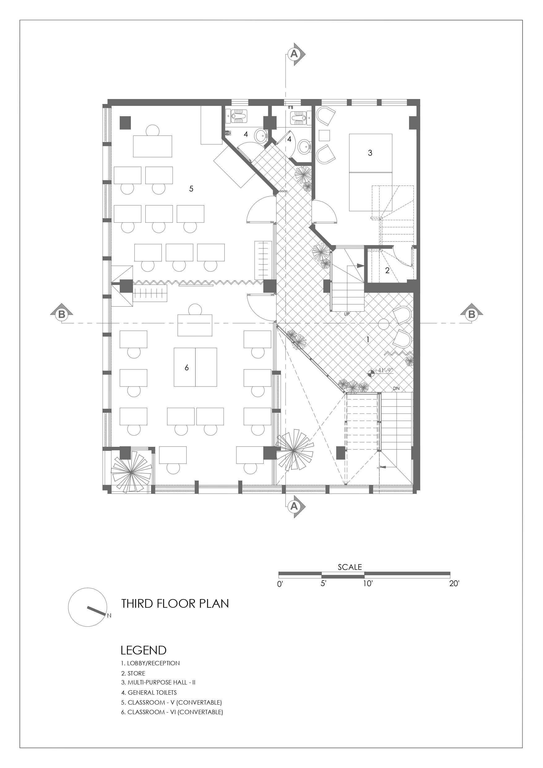
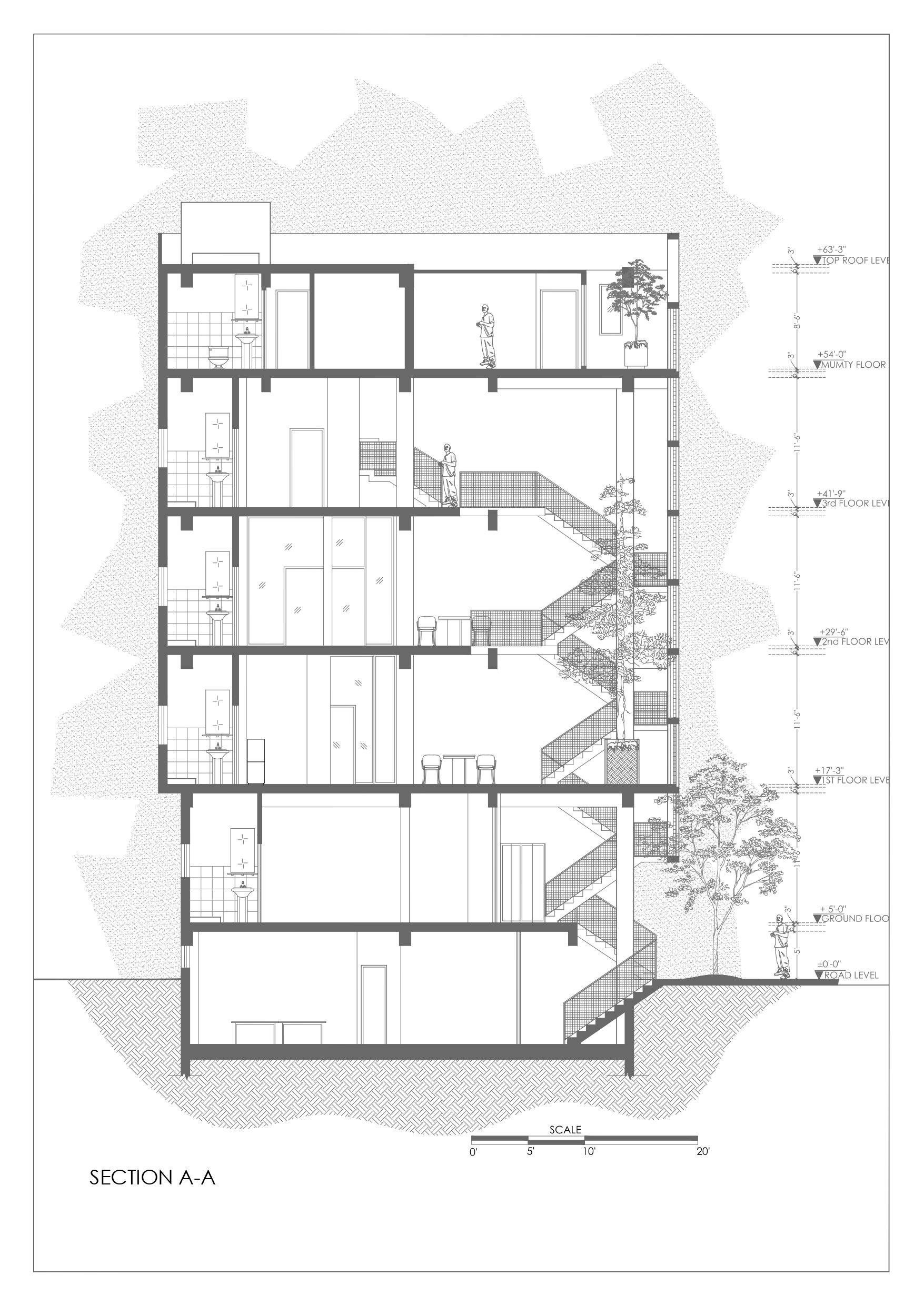
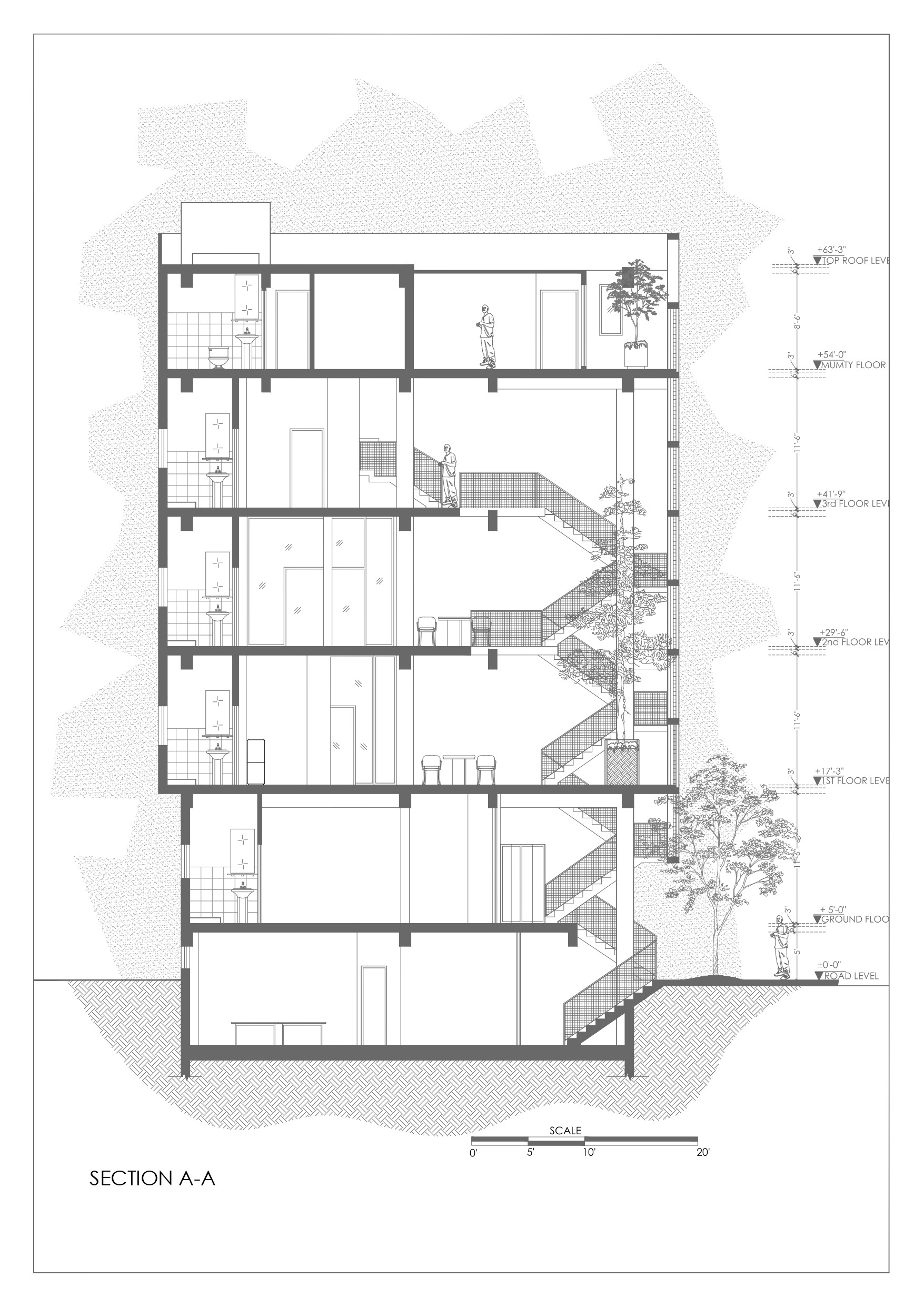
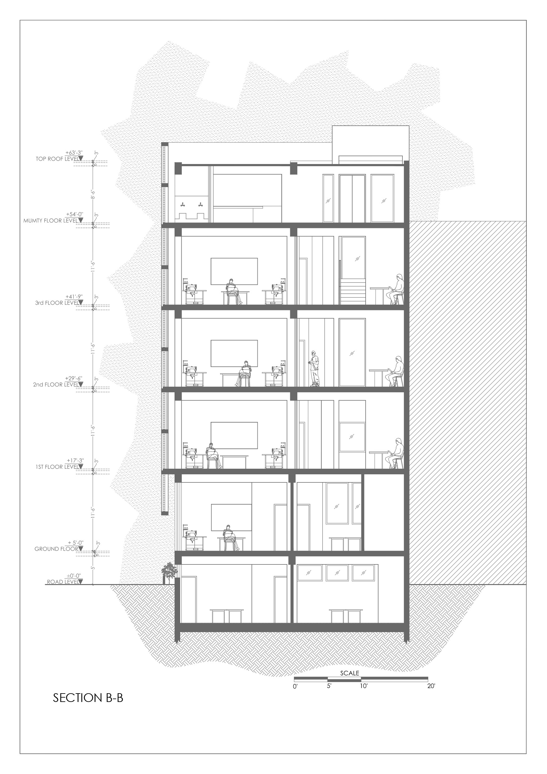
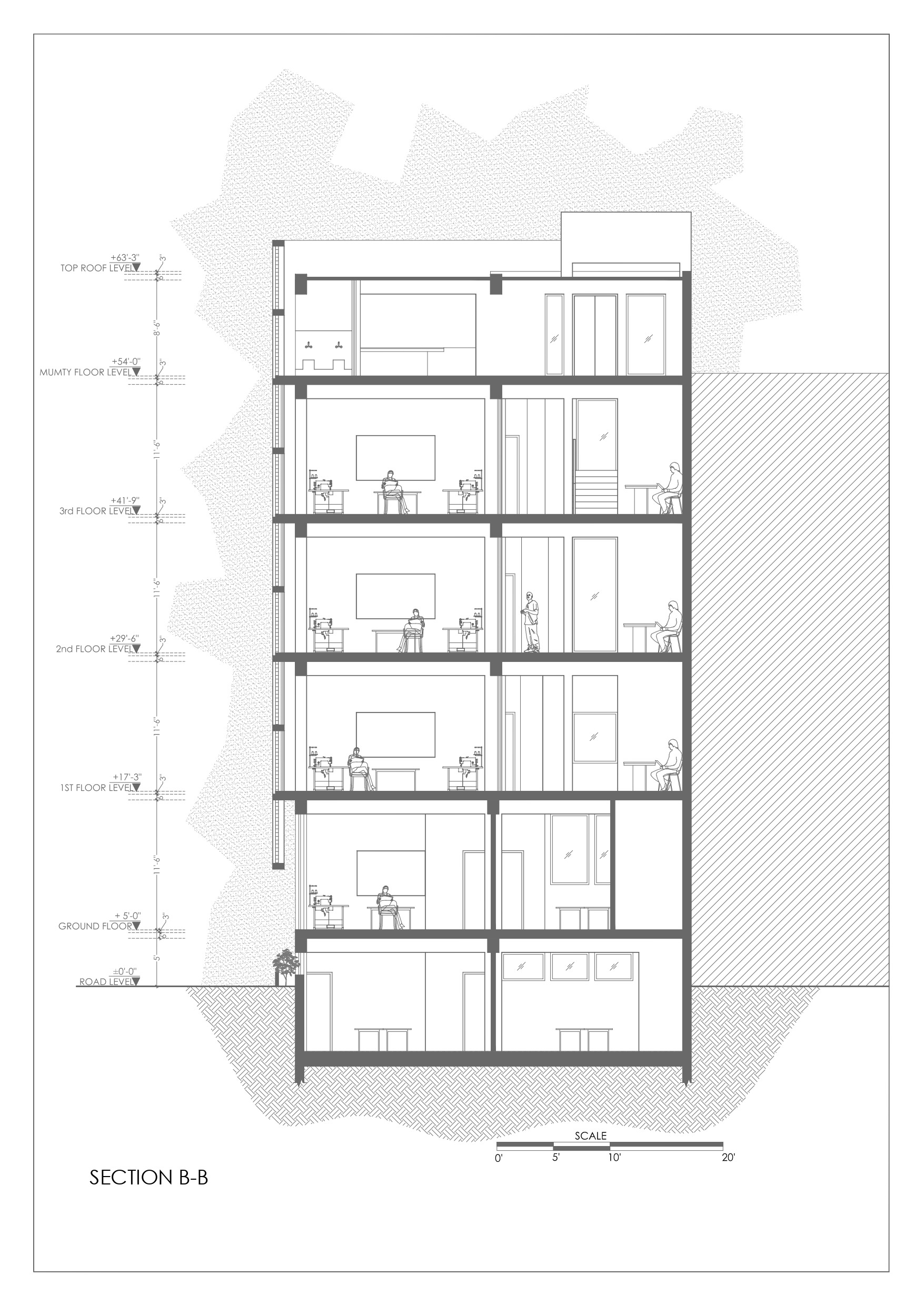
열악했던 임대 공간을 대체한 새 건물은 848제곱미터 규모로, 40~50명의 학생과 5~6명의 강사, 2명의 행정 직원, 2~3명의 지원 인력을 수용한다. 좁은 대지 위에서 허용 용적을 끝까지 밀어 올려, 중앙 수직 코어를 중심으로 각 층이 독립적으로 운영되도록 설계했다. 이를 통해 일부 층은 수익을 창출하는 임대 공간으로 활용한다.
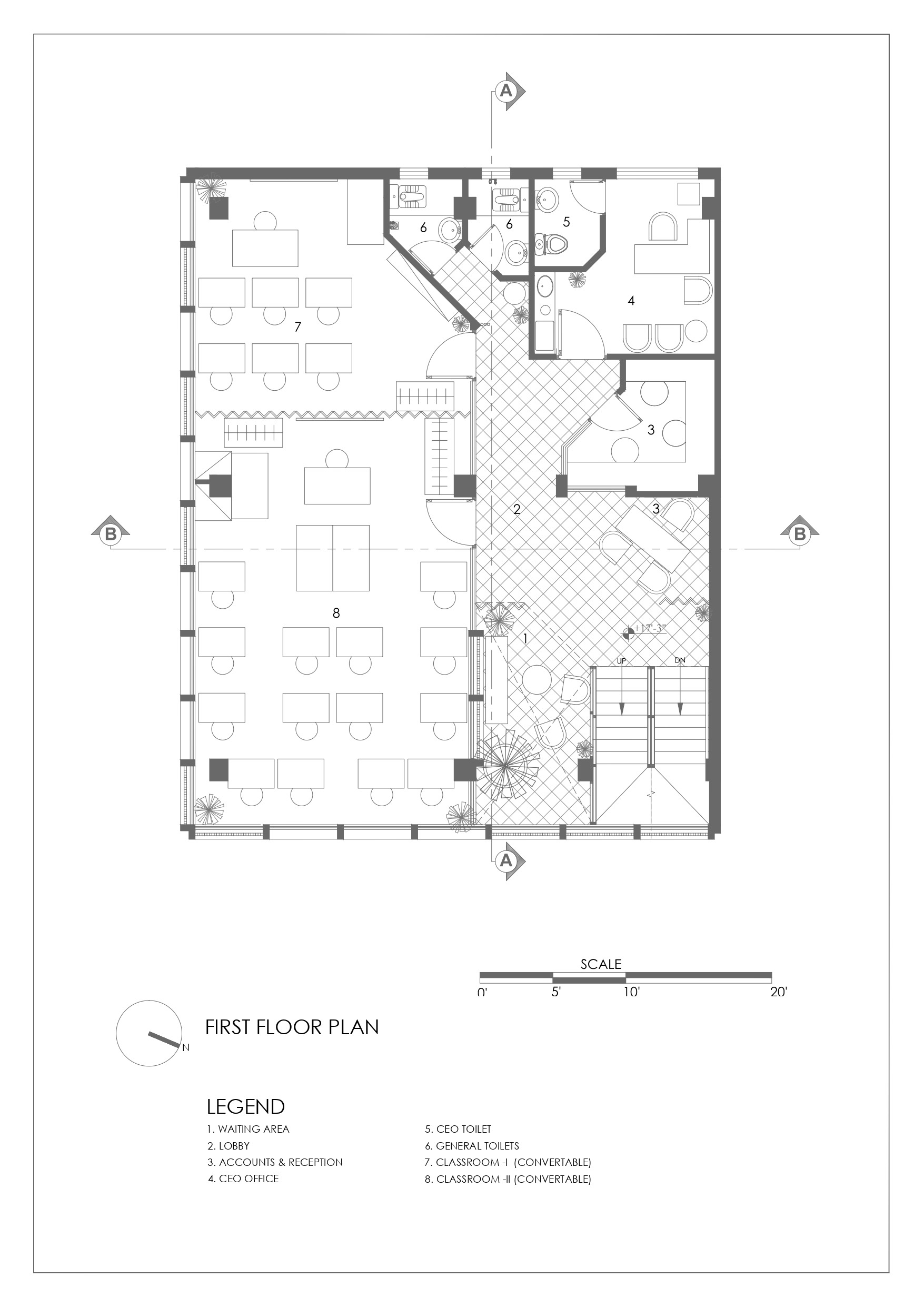
지하와 1층은 임대 가능한 소매점이나 전시 공간, 주차장으로 활용한다. 상층부에는 교실을 동쪽에 배치했다. 자연광과 환기를 고려한 선택이다. 사무실, 화장실, 다목적 홀도 상층부에 자리한다. 3층 높이 아트리움 중앙에 솟은 수목이 시선을 끌어올리며 자연 환기를 돕고 공간에 통일감을 부여한다. 최상층에는 직원 숙소, 식당, 테라스, 기도 공간, 그리고 텃밭이 자리한다.
색채가 품은 의미
건물 외관을 감싼 자알리 스크린은 이슬람 전통 투각 기법으로 만든 금속판이다. 기하학 패턴을 새긴 스크린들이 노란색, 청록색, 주황색, 초록색으로 칠해져 파사드를 생동하게 만든다. 이 색채와 패턴은 지역 문화와 파키스탄 전통 공예, 이슬람 문양을 참조한다. 동시에 1960년대 이슬라마바드 건설 시기의 절제된 모더니즘도 담았다.
자알리 스크린을 통과한 빛은 실내에 색색의 그림자를 드리운다. 아침 햇살이 동쪽 교실로 스며들 때, 재봉 기계 앞에 앉은 학생들은 따뜻한 빛 속에서 하루를 시작한다. 한낮에는 스크린이 강한 햇볕을 걸러내고, 저녁에는 건물 내부의 불빛이 스크린을 통해 거리로 새어 나와 주변을 밝힌다.
재료가 말하는 철학
재료 선택은 저비용, 내구성, 사용자 참여를 중심에 두었다. 철근 콘크리트 골조와 노출 콘크리트, 드러난 벽돌, 수성 페인트가 주를 이룬다. 기계/전기/배관 설비는 감추지 않고 드러냈고, 테라조 바닥과 내부 청소가 쉽도록 설계한 알루미늄 창호를 사용했다.
노출 콘크리트의 거친 질감과 테라조 바닥의 매끈한 촉감이 대비를 이루고, 드러난 벽돌은 솔직함을 전한다. 설비를 숨기지 않고 드러낸 것은 건물이 어떻게 작동하는지 보여주려는 의도다. 학생들은 이 공간에서 생활하며 건축이 어떻게 만들어지는지 자연스럽게 이해한다.
공동체가 자라는 곳
3층 높이 아트리움은 건물의 심장이다. 중앙에 솟은 수목은 층층이 놓인 화분에서 자라는 녹색 식물들과 함께 건물에 생명을 불어넣는다. 학생들은 계단을 오르내리며 이 나무를 마주하고, 나무는 계절에 따라 잎을 틔우고 지며 시간의 흐름을 알린다.
옥상 테라스에서는 학생들이 텃밭을 가꾼다. 허브와 채소를 심고, 물을 주고, 수확하는 과정에서 자연과 연결되고 노동의 보람을 느낀다. 옥상에서 바라본 이슬라마바드 도심이 발아래 펼쳐질 때, 이들은 자신이 속한 도시를 새로운 시선으로 본다.
재봉 작업실에서는 학생들이 재단법과 바느질을 배운다. 동시에 읽기와 쓰기, 기초 수학, 부기를 익히며 자립의 기초를 다진다. 또한 비판적 사고, 시간 관리, 성 평등 인식, 자기 인식 같은 생활 기술을 통해 사회 구성원으로서의 역량을 키운다. 하루 일과에는 공동 식사, 청소, 그리고 기초 이슬람 교육도 포함된다.
존엄을 되찾는 건축
이 건물은 단순한 교육 시설이 아니다. 생동하는 파사드, 수동적 환경 조절 전략, 문화적 뿌리, 그리고 유연한 공간 구성은 학생들에게 소속감과 자긍심을 심어준다. 소외되었던 이들이 이곳에서 기술을 배우고, 공동체를 경험하며, 존엄을 되찾는다.
건물은 공동체 정체성을 강화하고, 경제적 자립을 지원하며, 간과되었던 이들에게 긍정적이고 인간 중심적인 공간을 제공한다. 색채와 빛, 나무와 흙, 콘크리트와 금속이 어우러진 이 건축은 희망의 언어를 말한다.
프로젝트 정보
위치: Ghauri Town, 이슬라마바드, 파키스탄
대지 면적: 130㎡
건축 면적: 848㎡
설계: 2020~2022
시공: 2021~2023
입주: 2023
건축가: Mohammad Saifullah Siddiqui & Associates
사진: DB Studios
Write by Claude & Jean Browwn



























Vision Pakistan Welfare Trust (registered 2007) provides a second chance to marginalized youth (16+), especially non-literate low-income males of Ghauri Town, Islamabad. Funded through Zakat, it offers a 1 year program including meals, tailoring skills, literacy (Urdu, math, bookkeeping), life skills (critical thinking, time management, gender sensitivity, self-awareness), daily chores, and basic Islamic education. The goal is social independence and economic self-sufficiency.
The new 6-storey, 848 sqm custom-built institute replaces inadequate rented premises. It supports 40 50 students, 5–6 tutors, 2 administrative staff, 2–3 support staff. Commissioned in 2019, designed 2020–2022, built 2021–2023, occupied 2023. Architects: Mohammad Saifullah Siddiqui with associates; consultants include landscape, structure, MEP, and contractors.
Located on a 130 sqm corner lot on Ghauri Road, the site sits in a dense, informal peri-urban context of mixed use plazas, small houses, vendors, and eclectic architecture. The building maximizes the full volume allowed, using a central vertical core enabling independent floor operation for revenue generation. Lower/upper ground levels include rentable retail/exhibition spaces and parking. Upper floors contain classrooms (on the east for daylight/ventilation), offices, washrooms, multipurpose halls, and a triple-height atrium with a tall anchor tree enhancing ventilation and unity. The top floor includes staff quarters, a dining hall, terraces, a prayer area, and a kitchen garden.
Materials emphasize low cost, durability, and user engagement: RCC frame, fair face concrete, exposed brick, distemper, exposed MEP, terrazzo flooring, aluminum windows designed for easy inside cleaning, and colorful geometric metal jaali screens referencing local culture, Pakistani crafts, Islamic patterns, and 1960s Islamabad modernism.
The vibrant façade, passive strategies, cultural grounding, and flexible spaces foster ownership, pride, and environmental responsibility. The project enhances community identity, supports economic self sustainability, and offers a rare, positive, human-centered space for an overlooked demographic.
from archdaily


