"건축은 기억을 위한 그릇이다. 그것은 우리가 누구였는지, 그리고 누구인지를 담아낸다."— 루이스 칸

![]() |
![]() |
![]() |
호주전쟁기념관 신규 남측 입구와 의장대 광장 Studio.SC — Australian War Memorial Southern Entrance and Parade Ground
호주전쟁기념관의 신규 입구는 국가의 가장 중요한 문화 기관 중 하나로 향하는 도착 경험을 새롭게 정의한다. 이곳은 환대하면서도 성찰을 이끄는 문턱이다. 추모를 존중하면서 현대 방문자의 경험을 이끈다.
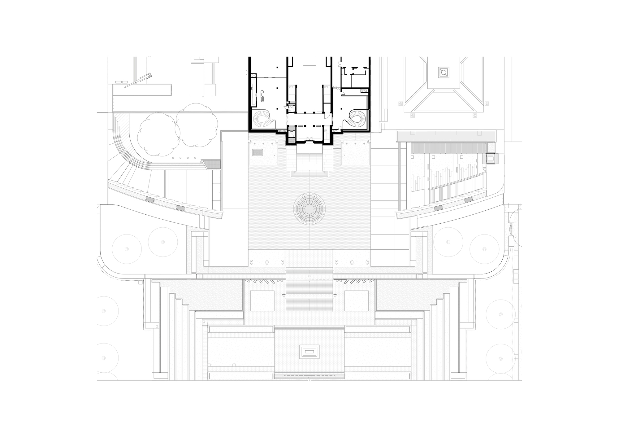
이 프로젝트는 기념관의 장기적 진화의 일부로 구상되었다. 더 나은 접근성과 명료함, 그리고 더 많은 방문자를 받아들여야 한다는 요구를 받아들이면서도, 이 땅에 새겨진 역사의 무게를 존중한다. 기념관은 Walter Burley Griffin의 마스터플랜 안에 자리한다. 국회의사당과 에인즐리 산을 잇는 강력한 방사축 위에 놓인 이 건물은 국가적 상징성을 지닌다. 신규 입구는 이 공간 질서를 강화한다. 시각적 연결과 의례적 동선을 명확히 한다.
세 가지 건축 장치가 동선과 의미를 조직한다. 첫째, 모든 시선이 모이는 중심부는 도착 동선을 Hall of Memory, 무명용사의 묘, 그리고 추모의 못과 정렬시킨다. 방문자를 기념관의 상징적 중심에 자리잡게 한다. 둘째, 안내하는 벽은 방사상 구조를 활용해 직관적으로 동선을 이끈다. 셋째, 광장을 감싸는 벽은 의장대 광장에 품위 있고 보호하는 경계를 만들며, 이 장소의 무게를 강화한다. 세 가지 장치는 함께 명확하고 절제된 문턱을 형성하며, 개방성과 경건함 사이의 균형을 잡는다.
신규 입구의 중심에는 오큘러스가 있다. 이는 공간의 중심이자 상징의 핵심이다. Hall of Memory의 돔에서 영감을 받았다. 청동으로 감싼 리브와 맞춤 제작된 유리가 자연광을 거른다. 아래 공간에는 시시각각 달라지는 빛과 그림자의 무늬가 새겨진다. 잠시 멈춰 서게 하고 성찰을 이끈다. 빛과 움직임, 그리고 재료가 기념관의 엄숙한 목적과 건축 경험을 정렬시킨다. 공공적 환경 안에서 조용한 성찰의 순간을 마련한다.
재료 선택은 연속성과 영속성을 강화한다. 현지에서 조달한 사암은 신축 부분을 기념관의 기존 외피와 통합시킨다. 노출 콘크리트는 영속성과 회복력을 보장한다. 청동 디테일과 목재 악센트는 온기와 손끝에 닿는 질감을 더한다. 경험을 부드럽게 하고 사람의 스케일에 맞는 경험을 지원한다. 토종 식물은 건축과 대지의 관계를 확장한다. 기념관과 주변 환경의 연결을 강화한다.
상징적 역할을 넘어, 신규 입구는 필수적인 방문자 서비스, 유연한 전시 공간, 그리고 추모 행사를 위한 극장을 담는다. 동선은 신중하게 고려되었다. 누구나 직관적이고 편안하게 공간을 통과하도록 접근성과 포용성을 보장한다.
신규 입구는 호주전쟁기념관의 사려 깊은 진화를 대표한다. 방향을 제시하고, 성찰을 이끌며, 사람들을 연결하는 장소다. 과거를 존중하면서 기념관이 미래로 나아가는 역할을 지원한다. 신중한 설계와 절제를 통해, 이곳은 모두를 위한 장소로 서 있다. 추모와 배움, 그리고 집단적 기억이 명료함과 존중 속에 머무는 곳이다.
Write by Claude & Jean Browwn
























The Australian War Memorial New Entrance redefines arrival at one of the nation's most significant cultural institutions, shaping a welcoming, inclusive, and deeply reflective threshold that honours remembrance while guiding contemporary public experience.
Conceived as part of the Memorial's long term evolution, the New Entrance responds to the need for greater accessibility, clarity, and capacity, while respecting the weight of history embedded within the site. Positioned within Walter Burley Griffin's master plan, the Memorial sits on a powerful radial axis between Capitol Hill and Mount Ainslie. This alignment establishes its national significance, and the New Entrance strengthens this spatial order by reinforcing visual connections, ceremonial movement, and legibility for visitors.
The project is structured around three key architectural elements that organise movement and meaning. The Focal Nexus aligns the arrival sequence with the Hall of Memory, the Tomb of the Unknown Soldier, and the Pool of Reflection, anchoring the visitor within the Memorial's symbolic core. The Guiding Wall uses radial geometry to intuitively direct circulation, while the Bounding Wall frames the Parade Ground, providing a dignified and protective edge that reinforces the gravity of the place. Together, these elements create a clear and composed threshold that balances openness with reverence.
At the heart of the New Entrance is the Oculus, a spatial and symbolic centrepiece inspired by the Hall of Memory's dome. Bronze clad ribs and bespoke glazing filter natural light into the space below, creating shifting patterns of illumination and shadow that encourage pause and contemplation. Light, movement, and material work together to align the architectural experience with the Memorial's solemn purpose, offering moments of quiet reflection within a public setting.
Material choices reinforce continuity and endurance. Locally sourced sandstone integrates the new structure with the existing fabric of the Memorial, while off form concrete provides permanence and resilience. Bronze detailing and timber accents introduce warmth and tactility, softening the experience and supporting a human-scaled encounter. Native plantings extend the relationship between architecture and landscape, reinforcing the Memorial's connection to its setting.
Beyond its symbolic role, the New Entrance accommodates essential visitor services, a flexible gallery space, and a theatre for commemorative events. Circulation has been carefully considered to ensure accessibility and inclusivity, allowing visitors of all abilities to move intuitively and comfortably through the space.
The New Entrance represents a thoughtful evolution of the Australian War Memorial. It is a place of orientation, reflection, and connection, honouring the past while supporting the Memorial's role into the future. Through careful design and restraint, it stands as a place for all, where remembrance, learning, and collective memory are held with clarity and respect.
fromm archdaily


