"건축이 빛과 만날 때, 재료는 비로소 말을 시작한다. 구조는 빛의 창조자다." - Louis Kahn

![]() |
![]() |
![]() |
막을 드리우다 - 저우좡 극장 파사드 리노베이션 CAALADI + Practice on Earth-Zhouzhuang Theater Façade Renovation
프로젝트는 중국 장쑤성 저우좡 수향 마을 입구에 자리한다. 2003년 지어진 호텔 건물을 몰입형 극장 공간으로 전환하는 작업이다. 저우좡진 정부와 중국동방연예그룹이 공동 제작한 공연 '저우좡 오디세이'를 위한 무대다. 중국미술학원 조경건축설계연구원이 EPC 계약을 주도했다. 딩종위 스튜디오가 설계를 이끌었고, 우리 팀은 파사드 개조를 담당했다. 가장 큰 도전은 호텔용으로 설계된 과도하게 큰 건물을 천년 고도의 규모와 분위기에 맞추는 일이었다. 설계는 문화적 상징성을 고려해야 했다. 동시에 관객 동선과 장비 반입 같은 실용적 공연 요구도 담아야 했다.
전통 모티프로 건물을 덮는 대신, 우리는 '막'이라는 개념을 도입했다. 시각적으로도, 은유적으로도 작동하는 개념이었다. 두 장의 곡면 알루미늄 패널이 원래 형태를 부드럽게 가린다. 가볍고 열린 인상을 준다. 살짝 띄운 입구는 공연에 대한 기대감을 불러일으킨다. 뒤편 어스름한 회랑은 전통 중국 박공지붕을 연상시키는 실루엣을 만든다. 현대적 개입에 문화적 거점을 제공하는 방식이다.
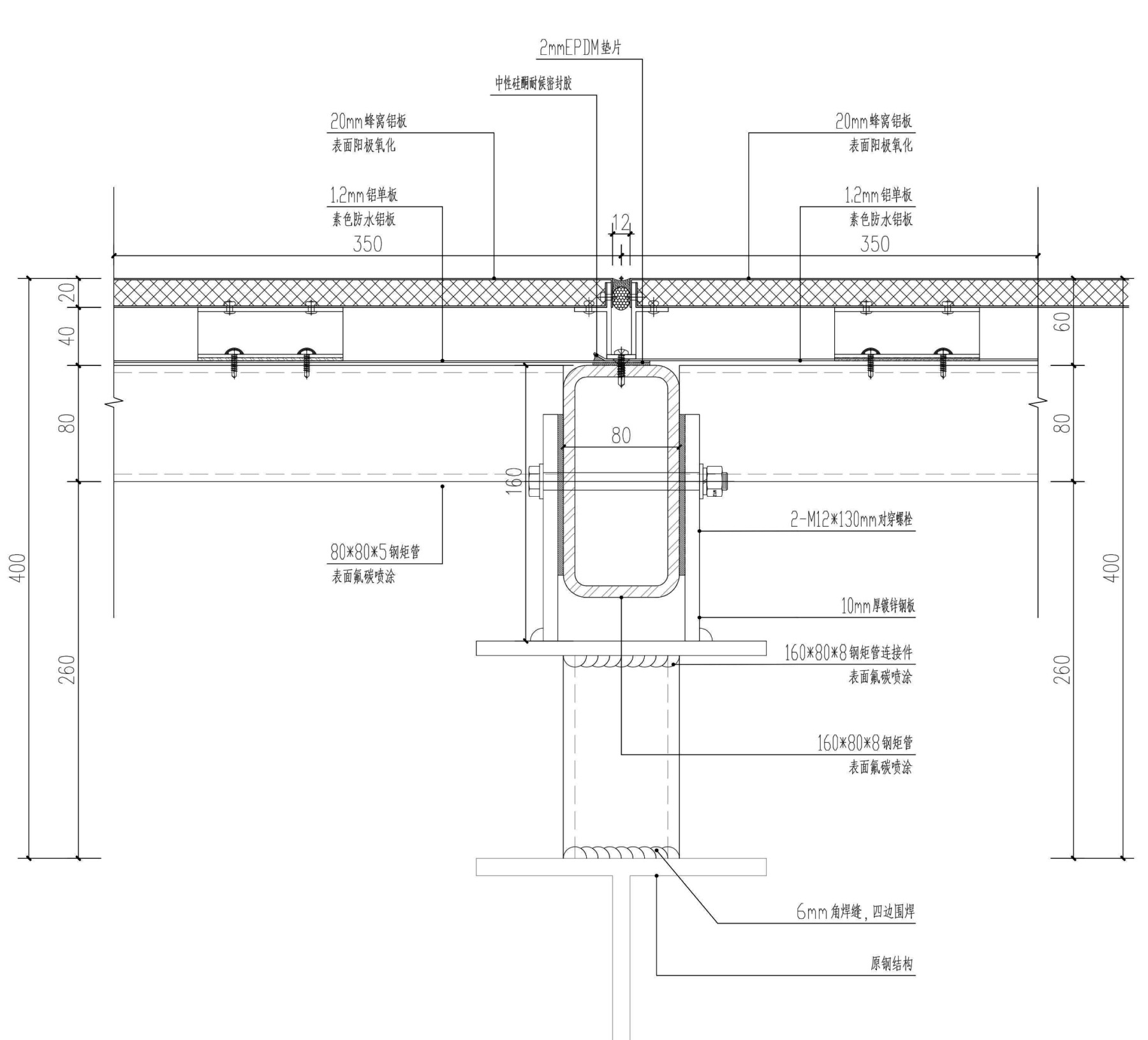
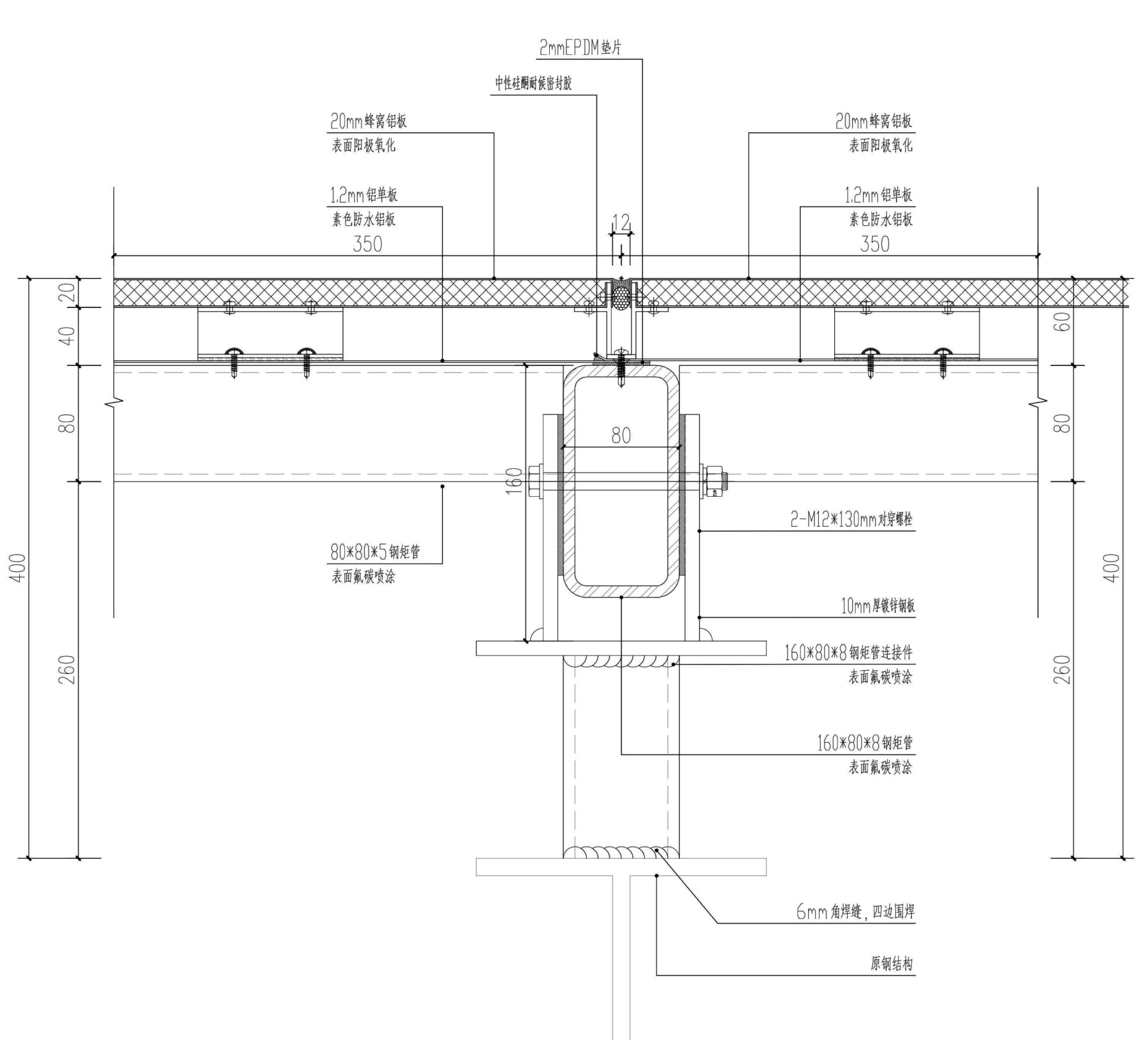
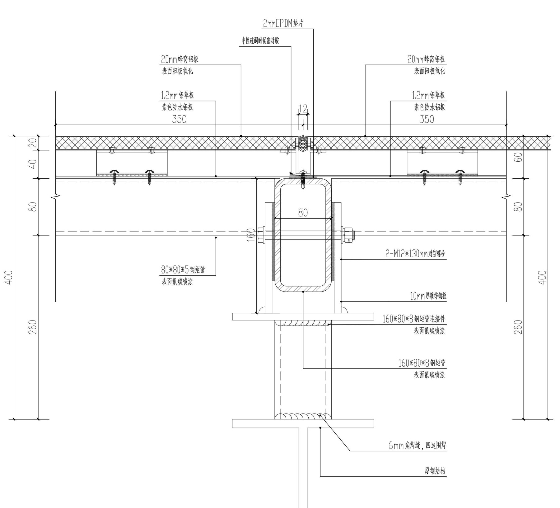
막은 여러 조건을 충족해야 했다. 구조 보강, 회랑 폭, 제작 복잡성까지. 설계팀은 초기부터 파라메트릭 설계 전략을 채택했다. 설계 변경을 효율적으로 관리하기 위해서였다. 개발 과정 내내 지속적인 조정이 가능했다. 양극산화 알루미늄 패널을 선택했다. 자연광을 역동적으로 반사하기 때문이다. 최종 설계는 20mm 두께 허니컴 패널을 사용했다. 재료 비용과 시공성 사이에서 균형을 잡았다. 이중 곡면 패널 사용은 분절화를 통해 최소화했다. 곡률이 높은 부분에는 작은 패널을 배치했다. 전통 기와 지붕의 스케일을 떠올리게 한다.
현장 여건이 좁아 대형 패널을 크레인으로 들어 올리는 일반적인 방법은 불가능했다. 대신 토털스테이션(정밀 측량 장비) 기반 배치, 강철 위치 고정판, 현장 미세 조정에 의존했다. 숙련된 시공팀이 작업을 맡았다. 이 과정을 통해 1,060개의 고유 패널을 정확하게 배치할 수 있었다. 완전한 BIM(3차원 설계-시공 통합 프로세스) 워크플로우를 거쳤다.
여러 시대를 아우르는 극장의 미학을 지역 유산과 조율하기 위해, 설계팀은 광범위한 협의를 진행했다. 연출가, 발주처, 저우좡 주민들과 논의했다. 파사드와 입구 회랑을 하나의 시스템으로 설계했다. 기능적으로는 관객을 안내하고, 동시에 지역 공간의 결을 담아낸다. 회랑은 50×100mm 그리드 모듈을 사용한다. 벽, 천장, 쌍기둥, 처마 등 모든 가시적 건축 요소를 조직한다. 모듈의 반복과 미세한 변화가 막 아래 보행 경험을 풍성하면서도 가볍게 만든다.
비를 설계의 기회로 삼았다. 숨겨진 배수 시스템이 표면 이음새에서 물을 모아 처마 홈통과 빗물줄로 흘려보낸다. 아래 수경 공간으로 떨어진다. 비 내리는 날, 파사드는 차분한 표정을 짓는다. 질감이 도드라진다. 햇빛 아래서는 밝은 청색으로 일렁인다. 저우좡의 자연 기후에 대한 시적 반응이다.
극장은 인접한 세 동의 건물에 걸쳐 있다. 각각 다른 파사드 조건을 가진다. 막이라는 개념을 공간적으로 확장했다. 패널 뒤편에 걸을 수 있는 계단 같은 공간을 만들었다. 미래의 야외 공연과 관객 상호작용을 위한 여지다. 네 가지 타공 알루미늄 패널을 조합해 표면에 부드러운 직물 같은 효과를 냈다. 전통적 참조와 현대적 공연 요구를 섞었다.
Write by Claude & Jean Browwn

























The project is located at the entrance of Zhouzhuang, Jiangsu, and transforms a long vacant 2003 hotel complex into the immersive theater space for Zhouzhuang Odyssey, a performance jointly produced by the Zhouzhuang Town Government and the China Oriental Performing Arts Group. The China Academy of Fine Arts Landscape Architecture Design and Research Institute led the EPC contract, with Dingzong Yu Studio as the design lead, and our team responsible for façade adaptation.
The main challenge was adapting the oversized building, originally designed as a hotel, to better fit the scale and atmosphere of the thousand-year old water town. The design not only needed to respond to cultural symbolism, but also incorporate practical performance logistics like audience circulation and equipment access.Rather than covering the building in traditional motifs, we introduced The Curtain—a concept that works both visually and metaphorically. Two curved, curtain-like aluminum panels gently mask the original form, creating a light, open impression. The lifted entrance hints at theatrical anticipation, while the dark corridor behind forms a silhouette reminiscent of traditional Chinese gabled roofs—offering a cultural anchor to the modern intervention.
"The Curtain" had to respond to multiple factors: structure reinforcement, corridor widths, and fabrication complexity. A parametric design strategy was adopted early on to manage design changes efficiently, allowing for ongoing adjustments throughout development. Anodized aluminum panels were chosen for their dynamic reflection of natural light. The final design used 20mm-thick honeycomb panels, balancing material cost and constructability. Double curved panel use was minimized through discretization, with smaller panels used in high-curvature areas—recalling the scale of traditional roof tiling.
Due to tight site constraints, the usual large panel hoisting method was not feasible. Instead, installation relied on Total Station-assisted layout, steel positioning plates, and on-site fine-tuning by experienced contractors. This process enabled the accurate placement of 1,060 unique panels through a complete BIM-based workflow. To align the theater's multi-dynastic aesthetic with local heritage, the team engaged in extensive consultations with directors, clients, and Zhouzhuang residents. The façade and entrance corridor were designed as one system—both functionally guiding audiences and embodying local spatial textures.
The corridor uses a 50×100 grid module that organizes all visible architectural elements, including walls, ceilings, twin columns, and eaves. Modular repetition and slight variation create a layered and lightweight pedestrian experience beneath the curtain. Rain was treated as a design opportunity. A hidden drainage system channels water from surface seams to eaves gutters and rain chains, feeding into pools below. On rainy days, the façade appears somber and textured; under sunlight, it shimmers in bright blue—a poetic material response to Zhouzhuang's natural climate.
The theater spans three adjacent buildings, each with distinct façade conditions. The concept of the curtain was extended spatially, forming walkable areas like a continuous staircase behind the panels offering room for future outdoor performances and audience interaction. A combination of four perforated aluminum panel types was used to create a soft, fabric-like effect across the surface, blending traditional reference with modern performance needs.
from archdaily


